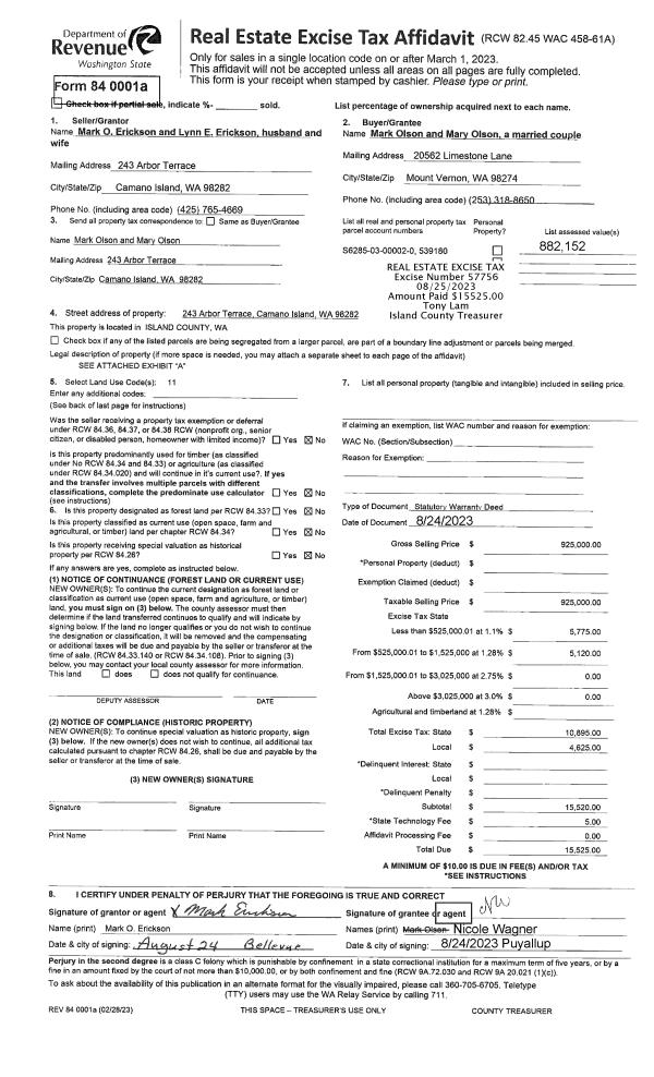
Property
Account |
| Property ID: | 810274 | Abbreviated Legal Description: | PT LOT 1 SP 145-07 AF# 4233462 & LOTS A & B SP 78-151 AF# 345980 DESC: BG NWCR LOT 1 SP 145-07 S1*W 154.04' S88*E 234.66' S1*W 140.18' S88*E 387.55' TPB S1*W 569.85' TO LNL POLNELL RD SD PT ON NON-TANGENT CURV/L RADIUS PT BEARS N3*W ELY ALG NLN POLNELL RD |
| Geographic ID: | R23203-092-2800 | Agent Code: | |
| Type: | Real | | |
| Tax Area: | 112 - APPRAISER-OH Schl Dist, outside OH, improved, greater than 1 acre | Land Use Code | 11 |
| Open Space: | N | DFL | N |
| Historic Property: | N | Remodel Property: | N |
| Multi-Family Redevelopment: | N | | |
| Township: | 32 | Section: | 03 |
| Range: | R2 |
Location |
| Address: | 2085 CHINOOK RIDGE LN OAK HARBOR, WA 98277 | Mapsco: | |
| Neighborhood: | Cycle 6 | Map ID: | 541 |
| Neighborhood CD: | 6 |
Owner |
| Name: | CHON, MYONG HAK | Owner ID: | 272536 |
| Mailing Address: | SUNG IN CHON 2085 CHINOOK RIDGE LANE OAK HARBOR, WA 98277 | % Ownership: | 100.0000000000% |
| | | Exemptions: | |
Taxes and Assessment Details
Values
| (+) Improvement Homesite Value: | + | $770,635 | |
| (+) Improvement Non-Homesite Value: | + | $0 | |
| (+) Land Homesite Value: | + | $0 | |
| (+) Land Non-Homesite Value: | + | $380,000 | |
| (+) Curr Use (HS): | + | $0 | $0 |
| (+) Curr Use (NHS): | + | $0 | $0 |
| | | -------------------------- | |
| (=) Market Value: | = | $1,150,635 | |
| (–) Productivity Loss: | – | $0 | |
| | | -------------------------- | |
| (=) Subtotal: | = | $1,150,635 | |
| (+) Senior Appraised Value: | + | $0 | |
| (+) Non-Senior Appraised Value: | + | $1,150,635 | |
| | | -------------------------- | |
| (=) Total Appraised Value: | = | $1,150,635 | |
| (–) Senior Exemption Loss: | – | $0 | |
| (–) Exemption Loss: | – | $0 | |
| | | -------------------------- | |
| (=) Taxable Value: | = | $1,150,635 | |
Taxing Jurisdiction
| Owner: | CHON, MYONG HAK | | |
| % Ownership: | 100.0000000000% | | |
| Total Value: | $1,150,635 | | |
| Tax Area: | 112 - APPRAISER-OH Schl Dist, outside OH, improved, greater than 1 acre |
| CF | Conservation Futures | 0.0316035091 | $1,150,635 | $1,150,635 | $36.36 | | |
| CEM1 | Cemetery #1 | 0.0040320932 | $1,150,635 | $1,150,635 | $4.64 | | |
| FIRE2 | Fire & Rescue Dist #2 N Whidbey GEN | 0.5475949600 | $1,150,635 | $1,150,635 | $630.08 | | |
| HOBOND | Hospital BOND | 0.1910887512 | $1,150,635 | $1,150,635 | $219.87 | | |
| HOGEN | Hospital GEN | 0.3902502903 | $1,150,635 | $1,150,635 | $449.04 | | |
| CE | County Current Expense | 0.3708482477 | $1,150,635 | $1,150,635 | $426.71 | | |
| CR | County Roads | 0.4584763726 | $1,150,635 | $1,150,635 | $527.54 | | |
| ISLANDEMS | Hospital GEN (EMS) | 0.5000000000 | $1,150,635 | $1,150,635 | $575.32 | | |
| LIB | Library Sno-Isle GEN | 0.3153421757 | $1,150,635 | $1,150,635 | $362.84 | | |
| NWHIDPRMT | P & R N Whidbey GEN | 0.2004466701 | $1,150,635 | $1,150,635 | $230.64 | | |
| SCH201MO | School 201 Enrichment | 1.8559231640 | $1,150,635 | $1,150,635 | $2,135.49 | | |
| ST | State School | 1.3035497053 | $1,150,635 | $1,150,635 | $1,499.91 | | |
| ST2 | State School Part 2 | 0.8169543533 | $1,150,635 | $1,150,635 | $940.02 | | |
| | Total Tax Rate: | 6.9861102925 | | | | | |
| | | | | Taxes w/Current Exemptions: | $8,038.46 | | |
| | | | | Taxes w/o Exemptions: | $8,038.46 | | |
Improvement / Building
| Improvement #1: | RESIDENTIAL | State Code: | Y | 3071.5 sqft | Value: | $770,635 |
| Bathrooms: | 2.5 | Bedrooms: | 3 | | Ceiling: | DRYWALL PAINTED | Exterior Wall/Cover: | CEMENT FIBER | | Floor Covering: | VINYL 100% | Floor Structure: | SLAB ABOVE GRADE | | Foundation: | CONCRETE | Heating: | FHA GAS | | Interior Finish: | DRYWALL PAINT | Plumbing Fixture Cnt: | 13 | | Roof Slope: | 8" IN 12" | Roof Structure/Cover: | CJ ASPHALT |
|
| | Type | Description | Class CD | Sub Class CD | Year Built | Area |
| | BAS | BASE/MAIN FLOOR | 5 | 0 | 2017 | 2189.3 |
| | UPS | UPPER STORY | 5 | 0 | 2017 | 882.2 |
| | AGR | ATTACHED GARAGE | 5 | 0 | 2017 | 1008.0 |
| | OWR | OPEN WOOD PORCH W/STEPS/ROOF | 5 | 0 | 2017 | 185.0 |
| | OWC | OPEN WOOD PORCH W/STEPS/ROOF/C | 5 | 0 | 2017 | 275.1 |
| | ATF | ATTIC FINISHED | 5 | 0 | 2017 | 576.0 |
| | OWC | OPEN WOOD PORCH W/STEPS/ROOF/C | 5 | 0 | 2017 | 253.5 |
| | UTY | STORAGE/UTILITY | 5 | 0 | 2017 | 160.0 |
| | CPD | OPEN CARPORT DIRT FLOOR | 5 | 0 | 2017 | 64.0 |
Sketch
Property Image
Land
| 1 | 32 | AC (03.01-09.99) | 5.0000 | 217800.00 | 0.00 | 0.00 | 1.00 | $380,000 | $0 |
Roll Value History
| 2026 | N/A | N/A | N/A | N/A | N/A |
| 2025 | $770,635 | $380,000 | $0 | $1,150,635 | $1,150,635 |
| 2024 | $776,900 | $340,000 | $0 | $1,116,900 | $1,116,900 |
| 2023 | $783,167 | $320,000 | $0 | $1,103,167 | $1,103,167 |
| 2022 | $659,354 | $320,000 | $0 | $979,354 | $979,354 |
| 2021 | $577,902 | $240,000 | $0 | $817,902 | $817,902 |
| 2020 | $562,869 | $160,000 | $0 | $722,869 | $722,869 |
| 2019 | $485,427 | $220,000 | $0 | $705,427 | $705,427 |
| 2018 | $304,041 | $245,000 | $0 | $549,041 | $549,041 |
| 2017 | $49,715 | $175,000 | $0 | $224,715 | $224,715 |
| 2016 | $0 | $190,000 | $0 | $190,000 | $190,000 |
| 2015 | $0 | $60,000 | $0 | $60,000 | $60,000 |
| 2014 | $0 | $65,000 | $0 | $65,000 | $65,000 |
| 2013 | $0 | $65,000 | $0 | $65,000 | $65,000 |
| 2012 | $0 | $60,984 | $0 | $60,984 | $60,984 |
| 2011 | $0 | $60,984 | $0 | $60,984 | $60,984 |
| 2010 | $0 | $60,984 | $0 | $60,984 | $60,984 |
Deed and Sales History
| 1 | 10/19/2015 | WD | Warranty Deed | VALLEY HIGH INVESTMENTS INC | CHON, MYONG HAK | | | $265,000.00 | 21849 | 4388133 |
| 2 | 10/06/2009 | ESTSEPPROP | Establish Separate Property | CHAMBERS, JOHN A | VALLEY HIGH INVESTMENTS, INC, | | | $0.00 | 92468 | 4261948 |
| 3 | 07/12/2010 | BLA | DNU - Boundary Line Adjustment | Unknown | CHAMBERS, JOHN A | | | $0.00 | 81792 | 4261716 |
Payout Agreement
| No payout information available.. |