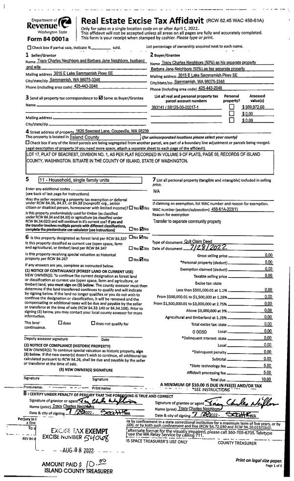
Property
Account |
| Property ID: | 810280 | Abbreviated Legal Description: | PT SW NE SEC 14 DESC: BG SWCR LOT 1 CAMANO HEIGHTS DIV 2 W 60.00' N ALG WLN CIRCLE DR 120.00' TPB CONT N 120.00' S89*W 138.00' M/L TO ELN SW SW NE SEC 14 S ALG ELN TO PT 120.00' N OF SLN SD SW NE SEC 14 E 138.00' M/L TPB |
| Geographic ID: | R23114-286-3360 | Agent Code: | |
| Type: | Real | | |
| Tax Area: | 510 - APPRAISER-Stan/Cam Schl Dist, improved & 1 acre or less | Land Use Code | 11 |
| Open Space: | N | DFL | N |
| Historic Property: | N | Remodel Property: | N |
| Multi-Family Redevelopment: | N | | |
| Township: | 31 | Section: | 14 |
| Range: | R2 |
Location |
| Address: | 994 CIRCLE DR CAMANO ISLAND, WA 98282 | Mapsco: | |
| Neighborhood: | Cycle 5 | Map ID: | 484 |
| Neighborhood CD: | 5 |
Owner |
| Name: | RICKENBACH, MARK D | Owner ID: | 3928 |
| Mailing Address: | JUDY M RICKENBACH 994 CIRCLE DR CAMANO ISLAND, WA 98282-7574 | % Ownership: | 100.0000000000% |
| | | Exemptions: | |
Taxes and Assessment Details
Values
| (+) Improvement Homesite Value: | + | $0 | |
| (+) Improvement Non-Homesite Value: | + | $451,893 | |
| (+) Land Homesite Value: | + | $0 | |
| (+) Land Non-Homesite Value: | + | $240,000 | |
| (+) Curr Use (HS): | + | $0 | $0 |
| (+) Curr Use (NHS): | + | $0 | $0 |
| | | -------------------------- | |
| (=) Market Value: | = | $691,893 | |
| (–) Productivity Loss: | – | $0 | |
| | | -------------------------- | |
| (=) Subtotal: | = | $691,893 | |
| (+) Senior Appraised Value: | + | $0 | |
| (+) Non-Senior Appraised Value: | + | $691,893 | |
| | | -------------------------- | |
| (=) Total Appraised Value: | = | $691,893 | |
| (–) Senior Exemption Loss: | – | $0 | |
| (–) Exemption Loss: | – | $0 | |
| | | -------------------------- | |
| (=) Taxable Value: | = | $691,893 | |
Taxing Jurisdiction
| Owner: | RICKENBACH, MARK D | | |
| % Ownership: | 100.0000000000% | | |
| Total Value: | $691,893 | | |
| Tax Area: | 510 - APPRAISER-Stan/Cam Schl Dist, improved & 1 acre or less |
| CF | Conservation Futures | 0.0316035091 | $691,893 | $691,893 | $21.87 | | |
| EMS1 | Fire & Rescue Dist #1 Camano GEN (EMS) | 0.3677864386 | $691,893 | $691,893 | $254.47 | | |
| FIRE1 | Fire & Rescue Dist #1 Camano GEN | 1.2502910536 | $691,893 | $691,893 | $865.07 | | |
| FIRE1BOND | Fire & Rescue Dist #1 Camano BOND | 0.1570001679 | $691,893 | $691,893 | $108.63 | | |
| CE | County Current Expense | 0.3708482477 | $691,893 | $691,893 | $256.59 | | |
| CR | County Roads | 0.4584763726 | $691,893 | $691,893 | $317.22 | | |
| LCIB | Library Sno-Isle BOND (Camano Island) | 0.0396325772 | $691,893 | $691,893 | $27.42 | | |
| LIB | Library Sno-Isle GEN | 0.3153421757 | $691,893 | $691,893 | $218.18 | | |
| SCH205_401 | School 205-401 Enrichment | 1.2698420524 | $691,893 | $691,893 | $878.59 | | |
| SCH205BOND | School 205-401 BOND | 0.9396497583 | $691,893 | $691,893 | $650.14 | | |
| ST | State School | 1.3035497053 | $691,893 | $691,893 | $901.92 | | |
| ST2 | State School Part 2 | 0.8169543533 | $691,893 | $691,893 | $565.24 | | |
| | Total Tax Rate: | 7.3209764117 | | | | | |
| | | | | Taxes w/Current Exemptions: | $5,065.34 | | |
| | | | | Taxes w/o Exemptions: | $5,065.34 | | |
Improvement / Building
| Improvement #1: | RESIDENTIAL | State Code: | A1 | 2350.0 sqft | Value: | $451,893 |
| Bathrooms: | 2.5 | Bedrooms: | 2 | | Ceiling: | DRYWALL PAINTED | Cooling: | HEAT PUMP/CONV/V | | Exterior Wall/Cover: | CEMENT FIBER | Floor Covering: | HARDWOOD/CARP 60-40 | | Floor Structure: | WOOD W/SUBFLOOR | Foundation: | CONCRETE | | Interior Finish: | DRYWALL PAINT | Plumbing Fixture Cnt: | 11 | | Roof Slope: | 5" IN 12" | Roof Structure/Cover: | CJ ASPHALT |
|
| | Type | Description | Class CD | Sub Class CD | Year Built | Area |
| | BAS | BASE/MAIN FLOOR | 3 | 0 | 2011 | 2350.0 |
| | AGR | ATTACHED GARAGE | 3 | 0 | 2011 | 804.0 |
| | OWC | OPEN WOOD PORCH W/STEPS/ROOF/C | 3 | 0 | 2011 | 108.0 |
| | OWP | OPEN WOOD PORCH W/STEPS | 3 | 0 | 2011 | 179.0 |
| | OWC | OPEN WOOD PORCH W/STEPS/ROOF/C | 3 | 0 | 2011 | 240.0 |
Sketch
Property Image
Land
| 1 | 15 | SQ (12001-21780) | 0.3800 | 16552.80 | 0.00 | 0.00 | 1.00 | $240,000 | $0 |
Roll Value History
| 2026 | N/A | N/A | N/A | N/A | N/A |
| 2025 | $451,893 | $240,000 | $0 | $691,893 | $691,893 |
| 2024 | $455,910 | $220,000 | $0 | $675,910 | $675,910 |
| 2023 | $459,425 | $210,000 | $0 | $669,425 | $669,425 |
| 2022 | $419,422 | $210,000 | $0 | $629,422 | $629,422 |
| 2021 | $355,838 | $150,000 | $0 | $505,838 | $505,838 |
| 2020 | $346,250 | $120,000 | $0 | $466,250 | $466,250 |
| 2019 | $269,408 | $160,000 | $0 | $429,408 | $429,408 |
| 2018 | $270,136 | $130,000 | $0 | $400,136 | $400,136 |
| 2017 | $271,598 | $100,000 | $0 | $371,598 | $371,598 |
| 2016 | $274,518 | $100,000 | $0 | $374,518 | $374,518 |
| 2015 | $290,825 | $54,400 | $0 | $345,225 | $345,225 |
| 2014 | $293,887 | $54,400 | $0 | $348,287 | $348,287 |
| 2013 | $296,947 | $54,400 | $0 | $351,347 | $351,347 |
| 2012 | $300,008 | $54,400 | $0 | $354,408 | $354,408 |
| 2011 | $306,131 | $68,000 | $0 | $374,131 | $374,131 |
| 2010 | $0 | $68,000 | $0 | $68,000 | $68,000 |
Deed and Sales History
| 1 | 07/16/2010 | BLA | DNU - Boundary Line Adjustment | Unknown | RICKENBACH, MARK D | | | $0.00 | 81796 | 4276998 |
Payout Agreement
| No payout information available.. |