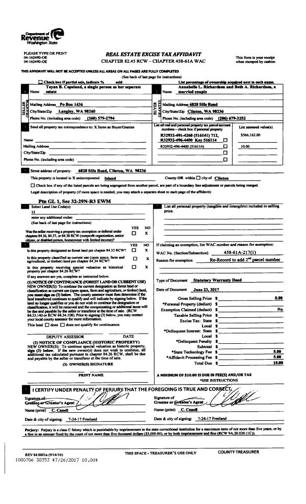
Property
Account |
| Property ID: | 810474 | Abbreviated Legal Description: | LOT 2 SP 296-09.32935-104-4560 AF#4278821 |
| Geographic ID: | R32935-090-4570 | Agent Code: | |
| Type: | Real | | |
| Tax Area: | 712 - APPRAISER-S Whid Schl Dist, outside Langley, improved, greater than 1 acre | Land Use Code | 11 |
| Open Space: | N | DFL | N |
| Historic Property: | N | Remodel Property: | N |
| Multi-Family Redevelopment: | N | | |
| Township: | 29 | Section: | 35 |
| Range: | R3 |
Location |
| Address: | 7131 HOLST WAY CLINTON, WA 98236 | Mapsco: | |
| Neighborhood: | Cycle 4 | Map ID: | 843 |
| Neighborhood CD: | 4 |
Owner |
| Name: | SMITH, WILLIAM | Owner ID: | 279804 |
| Mailing Address: | PAULA A MARSHALL PO BOX 589 CLINTON, WA 98236 | % Ownership: | 100.0000000000% |
| | | Exemptions: | |
Taxes and Assessment Details
Values
| (+) Improvement Homesite Value: | + | $0 | |
| (+) Improvement Non-Homesite Value: | + | $797,139 | |
| (+) Land Homesite Value: | + | $0 | |
| (+) Land Non-Homesite Value: | + | $360,000 | |
| (+) Curr Use (HS): | + | $0 | $0 |
| (+) Curr Use (NHS): | + | $0 | $0 |
| | | -------------------------- | |
| (=) Market Value: | = | $1,157,139 | |
| (–) Productivity Loss: | – | $0 | |
| | | -------------------------- | |
| (=) Subtotal: | = | $1,157,139 | |
| (+) Senior Appraised Value: | + | $0 | |
| (+) Non-Senior Appraised Value: | + | $1,157,139 | |
| | | -------------------------- | |
| (=) Total Appraised Value: | = | $1,157,139 | |
| (–) Senior Exemption Loss: | – | $0 | |
| (–) Exemption Loss: | – | $0 | |
| | | -------------------------- | |
| (=) Taxable Value: | = | $1,157,139 | |
Taxing Jurisdiction
| Owner: | SMITH, WILLIAM | | |
| % Ownership: | 100.0000000000% | | |
| Total Value: | $1,157,139 | | |
| Tax Area: | 712 - APPRAISER-S Whid Schl Dist, outside Langley, improved, greater than 1 acre |
| CF | Conservation Futures | 0.0316035091 | $1,157,139 | $1,157,139 | $36.57 | | |
| FIRE3 | Fire & Rescue Dist #3 S Whidbey GEN | 1.2004855531 | $1,157,139 | $1,157,139 | $1,389.13 | | |
| HOBOND | Hospital BOND | 0.1910887512 | $1,157,139 | $1,157,139 | $221.12 | | |
| HOGEN | Hospital GEN | 0.3902502903 | $1,157,139 | $1,157,139 | $451.57 | | |
| CE | County Current Expense | 0.3708482477 | $1,157,139 | $1,157,139 | $429.12 | | |
| CR | County Roads | 0.4584763726 | $1,157,139 | $1,157,139 | $530.52 | | |
| ISLANDEMS | Hospital GEN (EMS) | 0.5000000000 | $1,157,139 | $1,157,139 | $578.57 | | |
| LIB | Library Sno-Isle GEN | 0.3153421757 | $1,157,139 | $1,157,139 | $364.89 | | |
| PORTWHID | Port of S Whidbey GEN | 0.1094540357 | $1,157,139 | $1,157,139 | $126.65 | | |
| SCH206BOND | School 206 BOND | 0.3161759235 | $1,157,139 | $1,157,139 | $365.86 | | |
| SCH206MO | School 206 Enrichment | 0.4547169547 | $1,157,139 | $1,157,139 | $526.17 | | |
| ST | State School | 1.3035497053 | $1,157,139 | $1,157,139 | $1,508.39 | | |
| ST2 | State School Part 2 | 0.8169543533 | $1,157,139 | $1,157,139 | $945.33 | | |
| SWHIDPRBD | P & R S Whidbey BOND | 0.0152817568 | $1,157,139 | $1,157,139 | $17.68 | | |
| SWHIDPRBD2 | P & R S Whidbey BOND2 | 0.0138911264 | $1,157,139 | $1,157,139 | $16.07 | | |
| SWHIDPRMT | P & R S Whidbey GEN | 0.2053334452 | $1,157,139 | $1,157,139 | $237.60 | | |
| | Total Tax Rate: | 6.6934522006 | | | | | |
| | | | | Taxes w/Current Exemptions: | $7,745.24 | | |
| | | | | Taxes w/o Exemptions: | $7,745.24 | | |
Improvement / Building
| Improvement #1: | RESIDENTIAL | State Code: | Y | 3048.0 sqft | Value: | $797,139 |
| Bathrooms: | 2.5 | Bedrooms: | 3 | | Ceiling: | DRYWALL PAINTED | Cooling: | HEAT PUMP/CONV/V | | Exterior Wall/Cover: | SHINGLE | Floor Covering: | VINYL TILE | | Floor Structure: | WOOD W/SUBFLOOR | Foundation: | CONCRETE | | Interior Finish: | DRYWALL PAINT | Plumbing Fixture Cnt: | 17 | | Roof Slope: | 8" IN 12" | Roof Structure/Cover: | CJ ASPHALT |
|
| | Type | Description | Class CD | Sub Class CD | Year Built | Area |
| | BAS | BASE/MAIN FLOOR | 5 | 0 | 1990 | 3048.0 |
| | AGR | ATTACHED GARAGE | 5 | 0 | 1990 | 624.0 |
| | OWP | OPEN WOOD PORCH W/STEPS | 5 | 0 | 1990 | 1233.0 |
| | OWC | OPEN WOOD PORCH W/STEPS/ROOF/C | 5 | 0 | 1990 | 72.0 |
| | OWC | OPEN WOOD PORCH W/STEPS/ROOF/C | 5 | 0 | 1990 | 144.0 |
| | OWR | OPEN WOOD PORCH W/STEPS/ROOF | 5 | 0 | 1990 | 0.0 |
| | OCP | OPEN CARPORT | 5 | 0 | 1990 | 0.0 |
| | UTY | STORAGE/UTILITY | 5 | 0 | 1990 | 0.0 |
| | DGR | DETACHED GARAGE | 5 | 0 | 1990 | 828.0 |
| | OWC | OPEN WOOD PORCH W/STEPS/ROOF/C | 5 | 0 | 1990 | 239.9 |
Sketch
Property Image
Land
| 1 | 32 | AC (03.01-09.99) | 7.7000 | 335412.00 | 0.00 | 0.00 | 1.00 | $360,000 | $0 |
Roll Value History
| 2026 | N/A | N/A | N/A | N/A | N/A |
| 2025 | $797,139 | $360,000 | $0 | $1,157,139 | $1,157,139 |
| 2024 | $806,094 | $340,000 | $0 | $1,146,094 | $1,146,094 |
| 2023 | $812,811 | $330,000 | $0 | $1,142,811 | $1,142,811 |
| 2022 | $743,129 | $280,000 | $0 | $1,023,129 | $1,023,129 |
| 2021 | $652,032 | $230,000 | $0 | $882,032 | $882,032 |
| 2020 | $639,400 | $190,000 | $0 | $829,400 | $829,400 |
| 2019 | $531,536 | $250,000 | $0 | $781,536 | $781,536 |
| 2018 | $509,442 | $230,000 | $0 | $739,442 | $739,442 |
| 2017 | $512,188 | $165,000 | $0 | $677,188 | $677,188 |
| 2016 | $366,819 | $165,000 | $0 | $531,819 | $531,819 |
| 2015 | $371,435 | $150,000 | $0 | $521,435 | $521,435 |
| 2014 | $357,055 | $148,000 | $0 | $505,055 | $505,055 |
| 2013 | $365,343 | $105,000 | $0 | $470,343 | $470,343 |
| 2012 | $369,631 | $105,000 | $0 | $474,631 | $474,631 |
| 2011 | $373,921 | $105,000 | $0 | $478,921 | $478,921 |
| 2010 | $387,307 | $116,191 | $0 | $503,498 | $503,498 |
Deed and Sales History
| 1 | 10/11/2019 | EZ | Easement | SMITH, WILLIAM | PUGET SOUND ENERGY | | | $1,705.00 | 41015 | 4475076 |
| 2 | 05/08/2017 | WD | Warranty Deed | SHERMAN, GLORIA | SMITH, WILLIAM | | | $800,000.00 | 29202 | 4422132 |
Payout Agreement
| No payout information available.. |