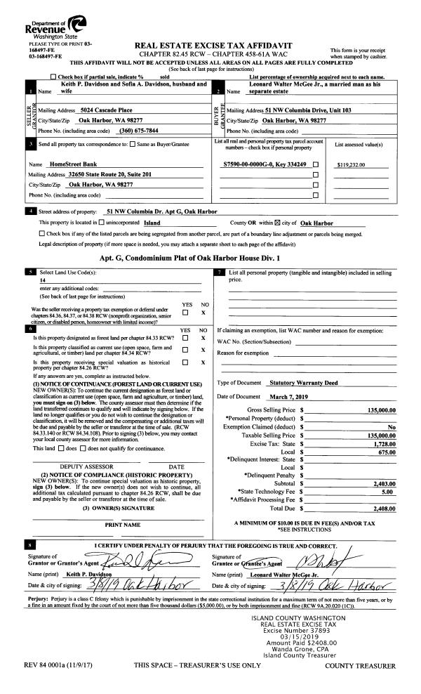
Property
Account |
| Property ID: | 810491 | Abbreviated Legal Description: | PT NW 1/4 DESC: BG SECR OF NW 1/4 SEC 13 N1*E ALG ELN SD NW 1/4 1080.38' TPB N1*E ALG ELN SD NW 1/4 1102.28' N86*W260.99' S17*W144.47' S10*W867.95' S252.66' N73*E458.60' TO ELN SD NW 1/4 TPB |
| Geographic ID: | R23013-415-2520 | Agent Code: | |
| Type: | Real | | |
| Tax Area: | 712 - APPRAISER-S Whid Schl Dist, outside Langley, improved, greater than 1 acre | Land Use Code | 11 |
| Open Space: | N | DFL | N |
| Historic Property: | N | Remodel Property: | N |
| Multi-Family Redevelopment: | N | | |
| Township: | 30 | Section: | 13 |
| Range: | R2 |
Location |
| Address: | 3339 WATER VIEW DR LANGLEY, WA 98260 | Mapsco: | |
| Neighborhood: | Cycle 3 | Map ID: | 375 |
| Neighborhood CD: | 3 |
Owner |
| Name: | OHLUND TTEE, JOHN F | Owner ID: | 289480 |
| Mailing Address: | 14442 SKYLINE BLVD WOODSIDE, CA 94062 | % Ownership: | 100.0000000000% |
| | | Exemptions: | |
Taxes and Assessment Details
Values
| (+) Improvement Homesite Value: | + | $0 | |
| (+) Improvement Non-Homesite Value: | + | $39,750 | |
| (+) Land Homesite Value: | + | $0 | |
| (+) Land Non-Homesite Value: | + | $400,000 | |
| (+) Curr Use (HS): | + | $0 | $0 |
| (+) Curr Use (NHS): | + | $0 | $0 |
| | | -------------------------- | |
| (=) Market Value: | = | $439,750 | |
| (–) Productivity Loss: | – | $0 | |
| | | -------------------------- | |
| (=) Subtotal: | = | $439,750 | |
| (+) Senior Appraised Value: | + | $0 | |
| (+) Non-Senior Appraised Value: | + | $439,750 | |
| | | -------------------------- | |
| (=) Total Appraised Value: | = | $439,750 | |
| (–) Senior Exemption Loss: | – | $0 | |
| (–) Exemption Loss: | – | $0 | |
| | | -------------------------- | |
| (=) Taxable Value: | = | $439,750 | |
Taxing Jurisdiction
| Owner: | OHLUND TTEE, JOHN F | | |
| % Ownership: | 100.0000000000% | | |
| Total Value: | $439,750 | | |
| Tax Area: | 712 - APPRAISER-S Whid Schl Dist, outside Langley, improved, greater than 1 acre |
| CF | Conservation Futures | 0.0316035091 | $439,750 | $439,750 | $13.90 | | |
| FIRE3 | Fire & Rescue Dist #3 S Whidbey GEN | 1.2004855531 | $439,750 | $439,750 | $527.91 | | |
| HOBOND | Hospital BOND | 0.1910887512 | $439,750 | $439,750 | $84.03 | | |
| HOGEN | Hospital GEN | 0.3902502903 | $439,750 | $439,750 | $171.61 | | |
| CE | County Current Expense | 0.3708482477 | $439,750 | $439,750 | $163.08 | | |
| CR | County Roads | 0.4584763726 | $439,750 | $439,750 | $201.61 | | |
| ISLANDEMS | Hospital GEN (EMS) | 0.5000000000 | $439,750 | $439,750 | $219.88 | | |
| LIB | Library Sno-Isle GEN | 0.3153421757 | $439,750 | $439,750 | $138.67 | | |
| PORTWHID | Port of S Whidbey GEN | 0.1094540357 | $439,750 | $439,750 | $48.13 | | |
| SCH206BOND | School 206 BOND | 0.3161759235 | $439,750 | $439,750 | $139.04 | | |
| SCH206MO | School 206 Enrichment | 0.4547169547 | $439,750 | $439,750 | $199.96 | | |
| ST | State School | 1.3035497053 | $439,750 | $439,750 | $573.24 | | |
| ST2 | State School Part 2 | 0.8169543533 | $439,750 | $439,750 | $359.26 | | |
| SWHIDPRBD | P & R S Whidbey BOND | 0.0152817568 | $439,750 | $439,750 | $6.72 | | |
| SWHIDPRBD2 | P & R S Whidbey BOND2 | 0.0138911264 | $439,750 | $439,750 | $6.11 | | |
| SWHIDPRMT | P & R S Whidbey GEN | 0.2053334452 | $439,750 | $439,750 | $90.30 | | |
| | Total Tax Rate: | 6.6934522006 | | | | | |
| | | | | Taxes w/Current Exemptions: | $2,943.45 | | |
| | | | | Taxes w/o Exemptions: | $2,943.45 | | |
Improvement / Building
| Improvement #1: | RESIDENTIAL | State Code: | Y | 0.0 sqft | Value: | $39,750 |
| | Type | Description | Class CD | Sub Class CD | Year Built | Area |
| | UTY | STORAGE/UTILITY | 2 | 0 | 2018 | 1499.9 |
| | CPD | OPEN CARPORT DIRT FLOOR | 2 | 0 | 2018 | 375.0 |
Sketch
Property Image
Land
| 1 | 35 | AC (10.00-30.99) | 10.0000 | 435600.00 | 0.00 | 0.00 | 1.00 | $400,000 | $0 |
Roll Value History
| 2026 | N/A | N/A | N/A | N/A | N/A |
| 2025 | $39,750 | $400,000 | $0 | $439,750 | $439,750 |
| 2024 | $39,750 | $360,000 | $0 | $399,750 | $399,750 |
| 2023 | $39,750 | $350,000 | $0 | $389,750 | $389,750 |
| 2022 | $39,750 | $230,000 | $0 | $269,750 | $269,750 |
| 2021 | $39,750 | $230,000 | $0 | $269,750 | $269,750 |
| 2020 | $39,750 | $200,000 | $0 | $239,750 | $239,750 |
| 2019 | $39,750 | $200,000 | $0 | $239,750 | $239,750 |
| 2018 | $39,750 | $150,000 | $0 | $189,750 | $189,750 |
| 2017 | $1,000 | $150,000 | $0 | $151,000 | $151,000 |
| 2016 | $0 | $130,000 | $0 | $130,000 | $130,000 |
| 2015 | $0 | $130,000 | $0 | $130,000 | $130,000 |
| 2014 | $0 | $150,000 | $0 | $150,000 | $150,000 |
| 2013 | $0 | $117,000 | $0 | $117,000 | $117,000 |
| 2012 | $0 | $117,000 | $0 | $117,000 | $117,000 |
| 2011 | $0 | $117,000 | $0 | $117,000 | $117,000 |
| 2010 | $0 | $86,739 | $0 | $86,739 | $86,739 |
Deed and Sales History
| 1 | 04/25/2019 | WD | Warranty Deed | VARNEY, MARK C | OHLUND TTEE, JOHN F | | | $400,000.00 | 38220 | 4462056 |
| 2 | 10/14/2015 | BARGSLD | Bargain And Sale Deed | MOUNTAIN PACIFIC BANK | VARNEY, MARK C | | | $212,000.00 | 21800 | 4387914 |
| 3 | 10/06/2010 | FORCLSR | DNU - Foreclosure | SARATOGA PASSAGE INVESTMENTS LLC | MOUNTAIN PACIFIC BANK | | | | 2475 | 4282272 |
Payout Agreement
| No payout information available.. |