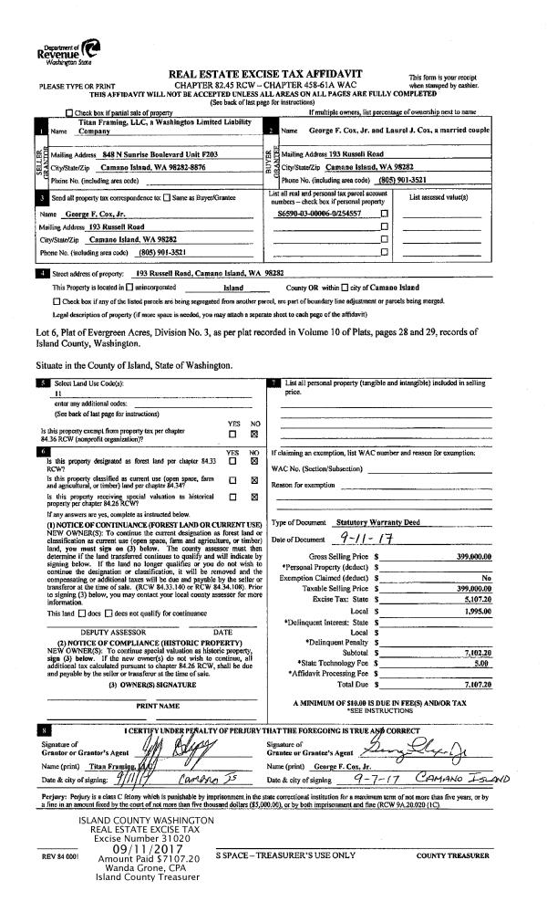
Property
Account |
| Property ID: | 810494 | Abbreviated Legal Description: | PT NW 1/4 DESC: BG SECR OF NW 1/4 SEC 13 N87*W ALG SLN SD NW 1/4 217.58' N30*W643.03' TPB N18*E407.09' N252.66' N10*E214.45' S86*W595.60' S6*W667.98' S73*E516.96' TPB |
| Geographic ID: | R23013-354-1980 | Agent Code: | |
| Type: | Real | | |
| Tax Area: | 712 - APPRAISER-S Whid Schl Dist, outside Langley, improved, greater than 1 acre | Land Use Code | 11 |
| Open Space: | N | DFL | N |
| Historic Property: | N | Remodel Property: | N |
| Multi-Family Redevelopment: | N | | |
| Township: | 30 | Section: | 13 |
| Range: | R2 |
Location |
| Address: | | Mapsco: | |
| Neighborhood: | Cycle 3 | Map ID: | 375 |
| Neighborhood CD: | 3 |
Owner |
| Name: | BERNTSON, JOHN A | Owner ID: | 289148 |
| Mailing Address: | SUSAN P BERNTSON 3333 WATER VIEW DR LANGLEY, WA 98260 | % Ownership: | 100.0000000000% |
| | | Exemptions: | |
Taxes and Assessment Details
Values
| (+) Improvement Homesite Value: | + | $0 | |
| (+) Improvement Non-Homesite Value: | + | $763,416 | |
| (+) Land Homesite Value: | + | $0 | |
| (+) Land Non-Homesite Value: | + | $460,000 | |
| (+) Curr Use (HS): | + | $0 | $0 |
| (+) Curr Use (NHS): | + | $0 | $0 |
| | | -------------------------- | |
| (=) Market Value: | = | $1,223,416 | |
| (–) Productivity Loss: | – | $0 | |
| | | -------------------------- | |
| (=) Subtotal: | = | $1,223,416 | |
| (+) Senior Appraised Value: | + | $0 | |
| (+) Non-Senior Appraised Value: | + | $1,223,416 | |
| | | -------------------------- | |
| (=) Total Appraised Value: | = | $1,223,416 | |
| (–) Senior Exemption Loss: | – | $0 | |
| (–) Exemption Loss: | – | $0 | |
| | | -------------------------- | |
| (=) Taxable Value: | = | $1,223,416 | |
Taxing Jurisdiction
| Owner: | BERNTSON, JOHN A | | |
| % Ownership: | 100.0000000000% | | |
| Total Value: | $1,223,416 | | |
| Tax Area: | 712 - APPRAISER-S Whid Schl Dist, outside Langley, improved, greater than 1 acre |
| CF | Conservation Futures | 0.0316035091 | $1,223,416 | $1,223,416 | $38.66 | | |
| FIRE3 | Fire & Rescue Dist #3 S Whidbey GEN | 1.2004855531 | $1,223,416 | $1,223,416 | $1,468.69 | | |
| HOBOND | Hospital BOND | 0.1910887512 | $1,223,416 | $1,223,416 | $233.78 | | |
| HOGEN | Hospital GEN | 0.3902502903 | $1,223,416 | $1,223,416 | $477.44 | | |
| CE | County Current Expense | 0.3708482477 | $1,223,416 | $1,223,416 | $453.70 | | |
| CR | County Roads | 0.4584763726 | $1,223,416 | $1,223,416 | $560.91 | | |
| ISLANDEMS | Hospital GEN (EMS) | 0.5000000000 | $1,223,416 | $1,223,416 | $611.71 | | |
| LIB | Library Sno-Isle GEN | 0.3153421757 | $1,223,416 | $1,223,416 | $385.79 | | |
| PORTWHID | Port of S Whidbey GEN | 0.1094540357 | $1,223,416 | $1,223,416 | $133.91 | | |
| SCH206BOND | School 206 BOND | 0.3161759235 | $1,223,416 | $1,223,416 | $386.81 | | |
| SCH206MO | School 206 Enrichment | 0.4547169547 | $1,223,416 | $1,223,416 | $556.31 | | |
| ST | State School | 1.3035497053 | $1,223,416 | $1,223,416 | $1,594.78 | | |
| ST2 | State School Part 2 | 0.8169543533 | $1,223,416 | $1,223,416 | $999.48 | | |
| SWHIDPRBD | P & R S Whidbey BOND | 0.0152817568 | $1,223,416 | $1,223,416 | $18.70 | | |
| SWHIDPRBD2 | P & R S Whidbey BOND2 | 0.0138911264 | $1,223,416 | $1,223,416 | $16.99 | | |
| SWHIDPRMT | P & R S Whidbey GEN | 0.2053334452 | $1,223,416 | $1,223,416 | $251.21 | | |
| | Total Tax Rate: | 6.6934522006 | | | | | |
| | | | | Taxes w/Current Exemptions: | $8,188.87 | | |
| | | | | Taxes w/o Exemptions: | $8,188.87 | | |
Improvement / Building
| Improvement #1: | RESIDENTIAL | State Code: | Y | 2823.0 sqft | Value: | $763,416 |
| Bathrooms: | 2.5 | Bedrooms: | 3 | | Ceiling: | BEAM PAINTED | Cooling: | HEAT PUMP/CONV/V | | Exterior Wall/Cover: | CEMENT FIBER | Floor Covering: | HARDWOOD/CARP 60-40 | | Floor Structure: | WOOD W/SUBFLOOR | Foundation: | CONCRETE | | Interior Finish: | DRYWALL PAINT | Plumbing Fixture Cnt: | 12 | | Roof Slope: | 6" IN 12" | Roof Structure/Cover: | BEAM ASPHALT |
|
| | Type | Description | Class CD | Sub Class CD | Year Built | Area |
| | BAS | BASE/MAIN FLOOR | 4 | 0 | 2021 | 2823.0 |
| | AGR | ATTACHED GARAGE | 4 | 0 | 2021 | 926.0 |
| | OWP | OPEN WOOD PORCH W/STEPS | 4 | 0 | 2021 | 200.0 |
| | OWR | OPEN WOOD PORCH W/STEPS/ROOF | 4 | 0 | 2021 | 193.0 |
| | oPOL | POLE BARN | 4 | 0 | 2021 | 1296.0 |
Sketch
Property Image
Land
| 1 | 35 | AC (10.00-30.99) | 10.0000 | 435600.00 | 0.00 | 0.00 | 1.00 | $460,000 | $0 |
Roll Value History
| 2026 | N/A | N/A | N/A | N/A | N/A |
| 2025 | $763,416 | $460,000 | $0 | $1,223,416 | $1,223,416 |
| 2024 | $757,923 | $430,000 | $0 | $1,187,923 | $1,187,923 |
| 2023 | $765,405 | $350,000 | $0 | $1,115,405 | $1,115,405 |
| 2022 | $663,835 | $190,000 | $0 | $853,835 | $853,835 |
| 2021 | $0 | $190,000 | $0 | $190,000 | $190,000 |
| 2020 | $0 | $160,000 | $0 | $160,000 | $160,000 |
| 2019 | $0 | $160,000 | $0 | $160,000 | $160,000 |
| 2018 | $0 | $150,000 | $0 | $150,000 | $150,000 |
| 2017 | $0 | $150,000 | $0 | $150,000 | $150,000 |
| 2016 | $0 | $130,000 | $0 | $130,000 | $130,000 |
| 2015 | $0 | $130,000 | $561 | $59,451 | $59,451 |
| 2014 | $0 | $120,000 | $561 | $54,921 | $54,921 |
| 2013 | $0 | $117,000 | $561 | $53,562 | $53,562 |
| 2012 | $0 | $124,815 | $561 | $87,967 | $87,967 |
| 2011 | $0 | $146,840 | $561 | $103,391 | $103,391 |
| 2010 | $0 | $88,192 | $561 | $39,854 | $39,854 |
Deed and Sales History
| 1 | 02/28/2019 | WD | Warranty Deed | VARNEY, MARK | BERNTSON, JOHN A | | | $236,000.00 | 37882 | 4460557 |
| 2 | 08/30/2016 | WD | Warranty Deed | MOUNTAIN PACIFIC BANK | VARNEY, MARK | | | $170,000.00 | 25951 | 4406456 |
| 3 | 09/12/2012 | FORCLSR | DNU - Foreclosure | SARATOGA PASSAGE INVESTMENTS LLC | MOUNTAIN PACIFIC BANK | | | | 2475 | 4282272 |
Payout Agreement
| No payout information available.. |