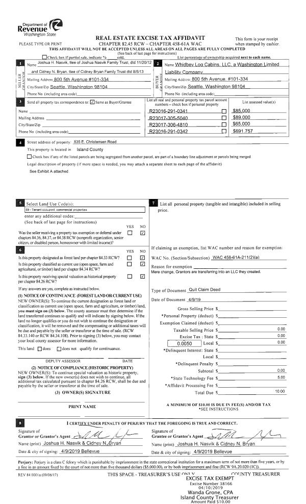
Property
Account |
| Property ID: | 810503 | Abbreviated Legal Description: | LOT 2 SP 365-04.42930-509-0340 AF#4278857 |
| Geographic ID: | R42930-510-0190 | Agent Code: | |
| Type: | Real | | |
| Tax Area: | 720 - APPRAISER-S Whid Schl Dist, Special District, improved & less than 1 acre | Land Use Code | 59 |
| Open Space: | N | DFL | N |
| Historic Property: | N | Remodel Property: | N |
| Multi-Family Redevelopment: | N | | |
| Township: | 29 | Section: | 30 |
| Range: | R4 |
Location |
| Address: | 8754 SR 525 CLINTON, WA 98236 | Mapsco: | |
| Neighborhood: | 44cCL-highway 525 | Map ID: | 1002 |
| Neighborhood CD: | 44cCLhw525 |
Owner |
| Name: | CAMERON LANDING HOLDINGS, LLC | Owner ID: | 289407 |
| Mailing Address: | 4835 GEDNEY VIEW LN CLINTON, WA 98236 | % Ownership: | 100.0000000000% |
| | | Exemptions: | |
Taxes and Assessment Details
Values
| (+) Improvement Homesite Value: | + | $0 | |
| (+) Improvement Non-Homesite Value: | + | $346,602 | |
| (+) Land Homesite Value: | + | $0 | |
| (+) Land Non-Homesite Value: | + | $330,000 | |
| (+) Curr Use (HS): | + | $0 | $0 |
| (+) Curr Use (NHS): | + | $0 | $0 |
| | | -------------------------- | |
| (=) Market Value: | = | $676,602 | |
| (–) Productivity Loss: | – | $0 | |
| | | -------------------------- | |
| (=) Subtotal: | = | $676,602 | |
| (+) Senior Appraised Value: | + | $0 | |
| (+) Non-Senior Appraised Value: | + | $676,602 | |
| | | -------------------------- | |
| (=) Total Appraised Value: | = | $676,602 | |
| (–) Senior Exemption Loss: | – | $0 | |
| (–) Exemption Loss: | – | $0 | |
| | | -------------------------- | |
| (=) Taxable Value: | = | $676,602 | |
Taxing Jurisdiction
| Owner: | CAMERON LANDING HOLDINGS, LLC | | |
| % Ownership: | 100.0000000000% | | |
| Total Value: | $676,602 | | |
| Tax Area: | 720 - APPRAISER-S Whid Schl Dist, Special District, improved & less than 1 acre |
| CF | Conservation Futures | 0.0316035091 | $676,602 | $676,602 | $21.38 | | |
| FIRE3 | Fire & Rescue Dist #3 S Whidbey GEN | 1.2004855531 | $676,602 | $676,602 | $812.25 | | |
| HOBOND | Hospital BOND | 0.1910887512 | $676,602 | $676,602 | $129.29 | | |
| HOGEN | Hospital GEN | 0.3902502903 | $676,602 | $676,602 | $264.04 | | |
| CE | County Current Expense | 0.3708482477 | $676,602 | $676,602 | $250.92 | | |
| CR | County Roads | 0.4584763726 | $676,602 | $676,602 | $310.21 | | |
| ISLANDEMS | Hospital GEN (EMS) | 0.5000000000 | $676,602 | $676,602 | $338.30 | | |
| LIB | Library Sno-Isle GEN | 0.3153421757 | $676,602 | $676,602 | $213.36 | | |
| PORTWHID | Port of S Whidbey GEN | 0.1094540357 | $676,602 | $676,602 | $74.06 | | |
| SCH206BOND | School 206 BOND | 0.3161759235 | $676,602 | $676,602 | $213.93 | | |
| SCH206MO | School 206 Enrichment | 0.4547169547 | $676,602 | $676,602 | $307.66 | | |
| ST | State School | 1.3035497053 | $676,602 | $676,602 | $881.98 | | |
| ST2 | State School Part 2 | 0.8169543533 | $676,602 | $676,602 | $552.75 | | |
| SWHIDPRBD | P & R S Whidbey BOND | 0.0152817568 | $676,602 | $676,602 | $10.34 | | |
| SWHIDPRBD2 | P & R S Whidbey BOND2 | 0.0138911264 | $676,602 | $676,602 | $9.40 | | |
| SWHIDPRMT | P & R S Whidbey GEN | 0.2053334452 | $676,602 | $676,602 | $138.93 | | |
| | Total Tax Rate: | 6.6934522006 | | | | | |
| | | | | Taxes w/Current Exemptions: | $4,528.80 | | |
| | | | | Taxes w/o Exemptions: | $4,528.80 | | |
Improvement / Building
| Improvement #1: | COMMERCIAL | State Code: | Y | 5686.9 sqft | Value: | $346,602 |
| Bathrooms: | 0 | Bedrooms: | 0 | | Ceiling: | ACOUSTIC FURRED | Exterior Wall/Cover: | 8" COM BRICK/WD FRAM | | Floor Covering: | CARPET 100% | Foundation: | SLAB | | Heating: | HEAT PUMP | Interior Finish: | RETAIL | | Plumbing Fixture Cnt: | 1 | Roof Structure/Cover: | BEAM BUILT-UP ROCK |
|
| | Type | Description | Class CD | Sub Class CD | Year Built | Area |
| | BAS | BASE/MAIN FLOOR | 3 | 0 | 1970 | 5686.9 |
| | OP2 | OPEN PORCH W/STEPS | 3 | 0 | 1970 | 48.0 |
| | OP1 | OPEN PORCH SLAB | 3 | 0 | 1970 | 236.9 |
| | OP3 | OPEN PORCH W/ROOF | 3 | 0 | 1970 | 384.1 |
| | OP4 | OPEN PORCH W/CEILING-ROOF | 3 | 0 | 1970 | 200.0 |
| | OP4 | OPEN PORCH W/CEILING-ROOF | 3 | 0 | 1970 | 241.1 |
| | UTY | STORAGE/UTILITY | 3 | 0 | 1970 | 40.0 |
| | OWP | OPEN WOOD PORCH W/STEPS | 3 | 0 | 1970 | 312.0 |
| | oPV1 | PV/ASPH 2" | 3 | 0 | 1970 | 3485.0 |
Sketch
Property Image
Land
| 1 | 14 | SQ (08001-12000) | 0.2755 | 20473.20 | 0.00 | 0.00 | 1.00 | $330,000 | $0 |
Roll Value History
| 2026 | N/A | N/A | N/A | N/A | N/A |
| 2025 | $346,602 | $330,000 | $0 | $676,602 | $676,602 |
| 2024 | $360,716 | $300,000 | $0 | $660,716 | $660,716 |
| 2023 | $381,683 | $286,625 | $0 | $668,308 | $668,308 |
| 2022 | $317,127 | $204,732 | $0 | $521,859 | $521,859 |
| 2021 | $313,876 | $204,732 | $0 | $518,608 | $518,608 |
| 2020 | $261,219 | $204,732 | $0 | $465,951 | $465,951 |
| 2019 | $246,011 | $204,732 | $0 | $450,743 | $450,743 |
| 2018 | $141,157 | $204,732 | $0 | $345,889 | $345,889 |
| 2017 | $141,251 | $156,000 | $0 | $297,251 | $297,251 |
| 2016 | $141,433 | $156,000 | $0 | $297,433 | $297,433 |
| 2015 | $151,592 | $156,000 | $0 | $307,592 | $307,592 |
| 2014 | $314,000 | $119,678 | $0 | $433,678 | $433,678 |
| 2013 | $314,000 | $119,678 | $0 | $433,678 | $433,678 |
| 2012 | $314,000 | $119,678 | $0 | $433,678 | $433,678 |
| 2011 | $314,000 | $119,678 | $0 | $433,678 | $433,678 |
| 2010 | $257,161 | $139,440 | $0 | $396,601 | $396,601 |
Deed and Sales History
| 1 | 04/05/2019 | WD | Warranty Deed | KNAPLUND, JOHN M | CAMERON LANDING HOLDINGS, LLC | | | $0.00 | 40769 | 4473771 |
| 2 | 04/05/2019 | WD | Warranty Deed | KNAPLUND, JOHN M | CAMERON LANDING HOLDINGS, LLC | | | $0.00 | 40688 | 4473313 |
| 3 | 04/23/2019 | WD | Warranty Deed | KNAPLUND, JOHN M | CAMERON LANDING HOLDINGS, LLC | | | $450,000.00 | 38136 | 4461667 |
Payout Agreement
| No payout information available.. |