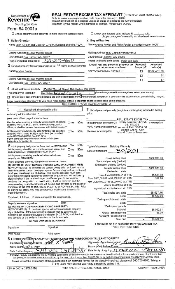
Property
Account |
| Property ID: | 810529 | Abbreviated Legal Description: | LOT A L-SP 2010-01.32903-470-4860 AF#4288340 |
| Geographic ID: | R32903-506-4880 | Agent Code: | |
| Type: | Real | | |
| Tax Area: | 700 - APPRAISER-S Whid Schl Dist, in town of Langley | Land Use Code | 91 |
| Open Space: | N | DFL | N |
| Historic Property: | N | Remodel Property: | N |
| Multi-Family Redevelopment: | N | | |
| Township: | 29 | Section: | 03 |
| Range: | R3 |
Location |
| Address: | | Mapsco: | |
| Neighborhood: | City of Langley | Map ID: | 727 |
| Neighborhood CD: | 04-L |
Owner |
| Name: | MCGEEVER, BENJAMIN | Owner ID: | 292709 |
| Mailing Address: | DEBORAH MCGEEVER 18802 92ND AVE W EDMONDS, WA 98020 | % Ownership: | 100.0000000000% |
| | | Exemptions: | |
Taxes and Assessment Details
Values
| (+) Improvement Homesite Value: | + | $0 | |
| (+) Improvement Non-Homesite Value: | + | $0 | |
| (+) Land Homesite Value: | + | $0 | |
| (+) Land Non-Homesite Value: | + | $250,000 | |
| (+) Curr Use (HS): | + | $0 | $0 |
| (+) Curr Use (NHS): | + | $0 | $0 |
| | | -------------------------- | |
| (=) Market Value: | = | $250,000 | |
| (–) Productivity Loss: | – | $0 | |
| | | -------------------------- | |
| (=) Subtotal: | = | $250,000 | |
| (+) Senior Appraised Value: | + | $0 | |
| (+) Non-Senior Appraised Value: | + | $250,000 | |
| | | -------------------------- | |
| (=) Total Appraised Value: | = | $250,000 | |
| (–) Senior Exemption Loss: | – | $0 | |
| (–) Exemption Loss: | – | $0 | |
| | | -------------------------- | |
| (=) Taxable Value: | = | $250,000 | |
Taxing Jurisdiction
| Owner: | MCGEEVER, BENJAMIN | | |
| % Ownership: | 100.0000000000% | | |
| Total Value: | $250,000 | | |
| Tax Area: | 700 - APPRAISER-S Whid Schl Dist, in town of Langley |
| CF | Conservation Futures | 0.0316035091 | $250,000 | $250,000 | $7.90 | | |
| LANG | City of Langley | 1.0093520762 | $250,000 | $250,000 | $252.34 | | |
| LANGBOND | City of Langley BOND | 1.0326110892 | $250,000 | $250,000 | $258.15 | | |
| FIRE3 | Fire & Rescue Dist #3 S Whidbey GEN | 1.2004855531 | $250,000 | $250,000 | $300.12 | | |
| HOBOND | Hospital BOND | 0.1910887512 | $250,000 | $250,000 | $47.77 | | |
| HOGEN | Hospital GEN | 0.3902502903 | $250,000 | $250,000 | $97.56 | | |
| CE | County Current Expense | 0.3708482477 | $250,000 | $250,000 | $92.71 | | |
| ISLANDEMS | Hospital GEN (EMS) | 0.5000000000 | $250,000 | $250,000 | $125.00 | | |
| LIB | Library Sno-Isle GEN | 0.3153421757 | $250,000 | $250,000 | $78.84 | | |
| PORTWHID | Port of S Whidbey GEN | 0.1094540357 | $250,000 | $250,000 | $27.36 | | |
| SCH206BOND | School 206 BOND | 0.3161759235 | $250,000 | $250,000 | $79.04 | | |
| SCH206MO | School 206 Enrichment | 0.4547169547 | $250,000 | $250,000 | $113.68 | | |
| ST | State School | 1.3035497053 | $250,000 | $250,000 | $325.89 | | |
| ST2 | State School Part 2 | 0.8169543533 | $250,000 | $250,000 | $204.24 | | |
| SWHIDPRBD | P & R S Whidbey BOND | 0.0152817568 | $250,000 | $250,000 | $3.82 | | |
| SWHIDPRBD2 | P & R S Whidbey BOND2 | 0.0138911264 | $250,000 | $250,000 | $3.47 | | |
| SWHIDPRMT | P & R S Whidbey GEN | 0.2053334452 | $250,000 | $250,000 | $51.33 | | |
| | Total Tax Rate: | 8.2769389934 | | | | | |
| | | | | Taxes w/Current Exemptions: | $2,069.22 | | |
| | | | | Taxes w/o Exemptions: | $2,069.22 | | |
Improvement / Building
Sketch
| No sketches available for this property. |
Property Image
Land
| 1 | 32 | AC (03.01-09.99) | 3.3450 | 145708.20 | 0.00 | 0.00 | 1.00 | $250,000 | $0 |
Roll Value History
| 2026 | N/A | N/A | N/A | N/A | N/A |
| 2025 | $0 | $250,000 | $0 | $250,000 | $250,000 |
| 2024 | $0 | $250,000 | $0 | $250,000 | $250,000 |
| 2023 | $0 | $240,000 | $0 | $240,000 | $240,000 |
| 2022 | $0 | $170,000 | $0 | $170,000 | $170,000 |
| 2021 | $0 | $150,000 | $0 | $150,000 | $150,000 |
| 2020 | $0 | $150,000 | $0 | $150,000 | $150,000 |
| 2019 | $0 | $135,000 | $0 | $135,000 | $135,000 |
| 2018 | $0 | $120,000 | $0 | $120,000 | $120,000 |
| 2017 | $0 | $120,000 | $0 | $120,000 | $120,000 |
| 2016 | $0 | $100,000 | $0 | $100,000 | $100,000 |
| 2015 | $0 | $100,000 | $0 | $100,000 | $100,000 |
| 2014 | $0 | $50,160 | $0 | $50,160 | $50,160 |
| 2013 | $0 | $50,160 | $0 | $50,160 | $50,160 |
| 2012 | $0 | $50,160 | $0 | $50,160 | $50,160 |
| 2011 | $0 | $50,160 | $0 | $50,160 | $50,160 |
Deed and Sales History
| 1 | 11/19/2019 | WD | Warranty Deed | NOBLE, THEODORE E | MCGEEVER, BENJAMIN | | | $180,000.00 | 41249 | 4476384 |
|   | |
Payout Agreement
| No payout information available.. |