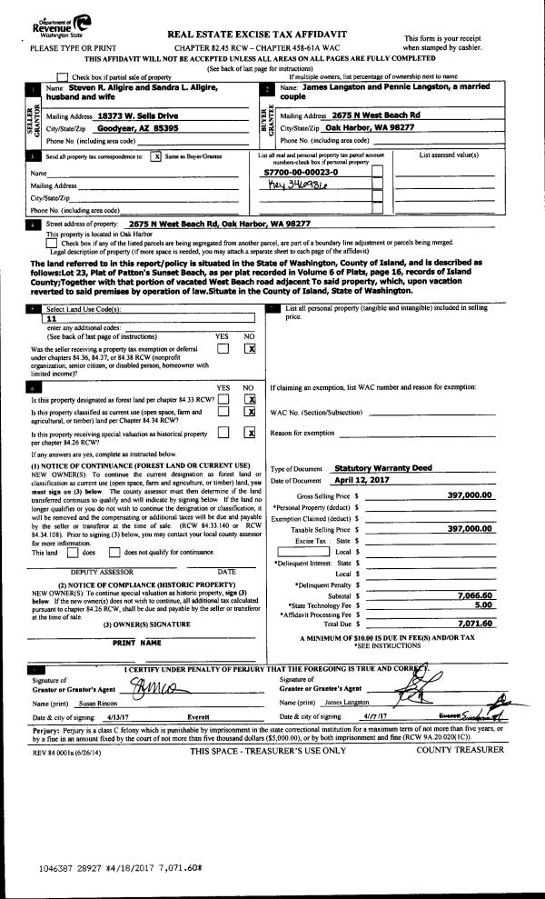
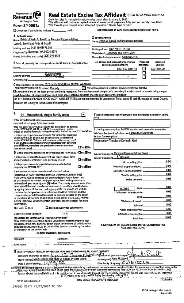
Property
Account |
| Property ID: | 810602 | Abbreviated Legal Description: | RIDGEVIEW PRD LOT 1 |
| Geographic ID: | S8524-00-00001-0 | Agent Code: | |
| Type: | Real | | |
| Tax Area: | 512 - APPRAISER-Stan/Cam Schl Dist, improved, greater than 1 acre | Land Use Code | 11 |
| Open Space: | N | DFL | N |
| Historic Property: | N | Remodel Property: | N |
| Multi-Family Redevelopment: | N | | |
| Township: | 32 | Section: | 35 |
| Range: | R2 |
Location |
| Address: | 141 ARBORCREST PL CAMANO ISLAND, WA 98282 | Mapsco: | |
| Neighborhood: | North Camano | Map ID: | 575 |
| Neighborhood CD: | 06-C |
Owner |
| Name: | REIST, LARRY W | Owner ID: | 280012 |
| Mailing Address: | JILL N REIST 141 ARBORCREST PLACE CAMANO ISLAND, WA 98282 | % Ownership: | 100.0000000000% |
| | | Exemptions: | |
Taxes and Assessment Details
Values
| (+) Improvement Homesite Value: | + | $0 | |
| (+) Improvement Non-Homesite Value: | + | $742,979 | |
| (+) Land Homesite Value: | + | $0 | |
| (+) Land Non-Homesite Value: | + | $380,000 | |
| (+) Curr Use (HS): | + | $0 | $0 |
| (+) Curr Use (NHS): | + | $0 | $0 |
| | | -------------------------- | |
| (=) Market Value: | = | $1,122,979 | |
| (–) Productivity Loss: | – | $0 | |
| | | -------------------------- | |
| (=) Subtotal: | = | $1,122,979 | |
| (+) Senior Appraised Value: | + | $0 | |
| (+) Non-Senior Appraised Value: | + | $1,122,979 | |
| | | -------------------------- | |
| (=) Total Appraised Value: | = | $1,122,979 | |
| (–) Senior Exemption Loss: | – | $0 | |
| (–) Exemption Loss: | – | $0 | |
| | | -------------------------- | |
| (=) Taxable Value: | = | $1,122,979 | |
Taxing Jurisdiction
| Owner: | REIST, LARRY W | | |
| % Ownership: | 100.0000000000% | | |
| Total Value: | $1,122,979 | | |
| Tax Area: | 512 - APPRAISER-Stan/Cam Schl Dist, improved, greater than 1 acre |
| CF | Conservation Futures | 0.0316035091 | $1,122,979 | $1,122,979 | $35.49 | | |
| EMS1 | Fire & Rescue Dist #1 Camano GEN (EMS) | 0.3677864386 | $1,122,979 | $1,122,979 | $413.02 | | |
| FIRE1 | Fire & Rescue Dist #1 Camano GEN | 1.2502910536 | $1,122,979 | $1,122,979 | $1,404.05 | | |
| FIRE1BOND | Fire & Rescue Dist #1 Camano BOND | 0.1570001679 | $1,122,979 | $1,122,979 | $176.31 | | |
| CE | County Current Expense | 0.3708482477 | $1,122,979 | $1,122,979 | $416.45 | | |
| CR | County Roads | 0.4584763726 | $1,122,979 | $1,122,979 | $514.86 | | |
| LCIB | Library Sno-Isle BOND (Camano Island) | 0.0396325772 | $1,122,979 | $1,122,979 | $44.51 | | |
| LIB | Library Sno-Isle GEN | 0.3153421757 | $1,122,979 | $1,122,979 | $354.12 | | |
| SCH205_401 | School 205-401 Enrichment | 1.2698420524 | $1,122,979 | $1,122,979 | $1,426.01 | | |
| SCH205BOND | School 205-401 BOND | 0.9396497583 | $1,122,979 | $1,122,979 | $1,055.21 | | |
| ST | State School | 1.3035497053 | $1,122,979 | $1,122,979 | $1,463.86 | | |
| ST2 | State School Part 2 | 0.8169543533 | $1,122,979 | $1,122,979 | $917.42 | | |
| | Total Tax Rate: | 7.3209764117 | | | | | |
| | | | | Taxes w/Current Exemptions: | $8,221.31 | | |
| | | | | Taxes w/o Exemptions: | $8,221.31 | | |
Improvement / Building
| Improvement #1: | RESIDENTIAL | State Code: | Y | 3962.4 sqft | Value: | $742,979 |
| Bathrooms: | 2.5 | Bedrooms: | 3 | | Ceiling: | DRYWALL PAINTED | Cooling: | HEAT PUMP/CONV/V | | Exterior Wall/Cover: | CEMENT FIBER | Floor Covering: | HARDWOOD/CARP 80-20 | | Floor Structure: | WOOD W/SUBFLOOR | Foundation: | CONCRETE | | Interior Finish: | DRYWALL PAINT | Plumbing Fixture Cnt: | 15 | | Roof Slope: | 10" IN 12" | Roof Structure/Cover: | CJ ASPHALT |
|
| | Type | Description | Class CD | Sub Class CD | Year Built | Area |
| | BAS | BASE/MAIN FLOOR | 4 | 0 | 2018 | 2162.4 |
| | AGR | ATTACHED GARAGE | 4 | 0 | 2018 | 864.0 |
| | DWN | DOWNSTAIRS LIVING AREA | 4 | 0 | 2018 | 1800.0 |
| | OWP | OPEN WOOD PORCH W/STEPS | 4 | 0 | 2018 | 160.0 |
| | OWP | OPEN WOOD PORCH W/STEPS | 4 | 0 | 2018 | 553.5 |
Sketch
Property Image
Land
| 1 | 17 | AC (01.01-02.00) | 1.2200 | 53143.20 | 0.00 | 0.00 | 1.00 | $380,000 | $0 |
Roll Value History
| 2026 | N/A | N/A | N/A | N/A | N/A |
| 2025 | $742,979 | $380,000 | $0 | $1,122,979 | $1,122,979 |
| 2024 | $749,020 | $380,000 | $0 | $1,129,020 | $1,129,020 |
| 2023 | $755,060 | $380,000 | $0 | $1,135,060 | $1,135,060 |
| 2022 | $716,577 | $360,000 | $0 | $1,076,577 | $1,076,577 |
| 2021 | $628,052 | $200,000 | $0 | $828,052 | $828,052 |
| 2020 | $612,090 | $200,000 | $0 | $812,090 | $812,090 |
| 2019 | $548,985 | $220,000 | $0 | $768,985 | $768,985 |
| 2018 | $102,053 | $190,000 | $0 | $292,053 | $292,053 |
| 2017 | $0 | $150,000 | $0 | $150,000 | $150,000 |
| 2016 | $0 | $150,000 | $0 | $150,000 | $150,000 |
| 2015 | $0 | $83,850 | $0 | $83,850 | $83,850 |
| 2014 | $0 | $83,850 | $0 | $83,850 | $83,850 |
| 2013 | $0 | $83,850 | $0 | $83,850 | $83,850 |
| 2012 | $0 | $83,850 | $0 | $83,850 | $83,850 |
| 2011 | $0 | $28,611 | $0 | $28,611 | $28,611 |
| 2010 | $0 | $28,611 | $0 | $28,611 | $28,611 |
Deed and Sales History
| 1 | 05/22/2017 | WD | Warranty Deed | HOLBECK CONST & DESIGN INC | REIST, LARRY W | | | $145,000.00 | 29396 | 4423000 |
Payout Agreement
| No payout information available.. |