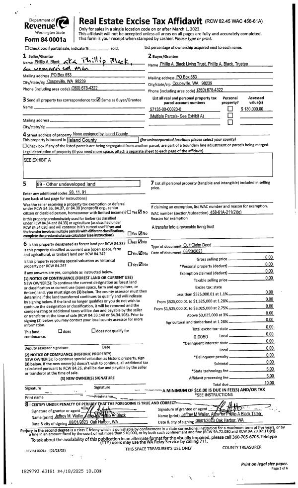
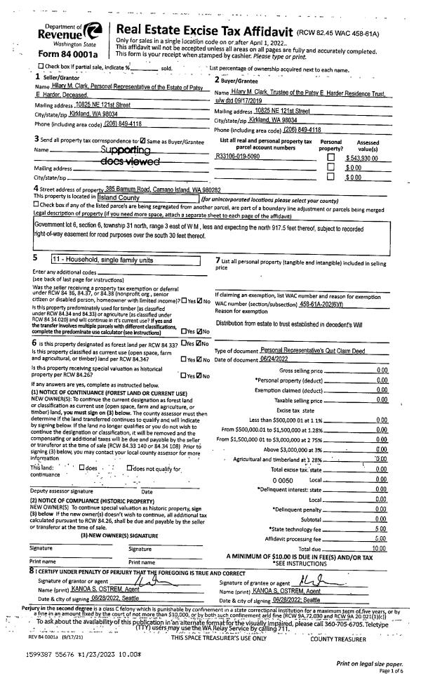
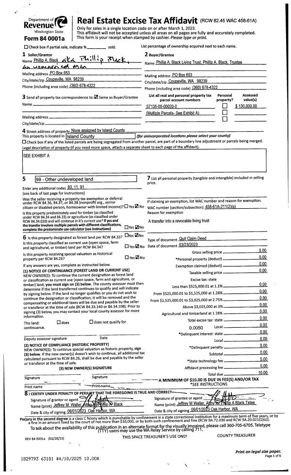
Property
Account |
| Property ID: | 810603 | Abbreviated Legal Description: | RIDGEVIEW PRD LOT 2 |
| Geographic ID: | S8524-00-00002-0 | Agent Code: | |
| Type: | Real | | |
| Tax Area: | 512 - APPRAISER-Stan/Cam Schl Dist, improved, greater than 1 acre | Land Use Code | 11 |
| Open Space: | N | DFL | N |
| Historic Property: | N | Remodel Property: | N |
| Multi-Family Redevelopment: | N | | |
| Township: | 32 | Section: | 35 |
| Range: | R2 |
Location |
| Address: | 145 ARBORCREST PL CAMANO ISLAND, WA 98282 | Mapsco: | |
| Neighborhood: | North Camano | Map ID: | 575 |
| Neighborhood CD: | 06-C |
Owner |
| Name: | POSEY, ALAN | Owner ID: | 313822 |
| Mailing Address: | ERIKA POSEY 145 ARBORCREST PLACE CAMANO ISLAND, WA 98282 | % Ownership: | 100.0000000000% |
| | | Exemptions: | |
Taxes and Assessment Details
Values
| (+) Improvement Homesite Value: | + | $0 | |
| (+) Improvement Non-Homesite Value: | + | $731,793 | |
| (+) Land Homesite Value: | + | $0 | |
| (+) Land Non-Homesite Value: | + | $380,000 | |
| (+) Curr Use (HS): | + | $0 | $0 |
| (+) Curr Use (NHS): | + | $0 | $0 |
| | | -------------------------- | |
| (=) Market Value: | = | $1,111,793 | |
| (–) Productivity Loss: | – | $0 | |
| | | -------------------------- | |
| (=) Subtotal: | = | $1,111,793 | |
| (+) Senior Appraised Value: | + | $0 | |
| (+) Non-Senior Appraised Value: | + | $1,111,793 | |
| | | -------------------------- | |
| (=) Total Appraised Value: | = | $1,111,793 | |
| (–) Senior Exemption Loss: | – | $0 | |
| (–) Exemption Loss: | – | $0 | |
| | | -------------------------- | |
| (=) Taxable Value: | = | $1,111,793 | |
Taxing Jurisdiction
| Owner: | POSEY, ALAN | | |
| % Ownership: | 100.0000000000% | | |
| Total Value: | $1,111,793 | | |
| Tax Area: | 512 - APPRAISER-Stan/Cam Schl Dist, improved, greater than 1 acre |
| CF | Conservation Futures | 0.0316035091 | $1,111,793 | $1,111,793 | $35.14 | | |
| EMS1 | Fire & Rescue Dist #1 Camano GEN (EMS) | 0.3677864386 | $1,111,793 | $1,111,793 | $408.90 | | |
| FIRE1 | Fire & Rescue Dist #1 Camano GEN | 1.2502910536 | $1,111,793 | $1,111,793 | $1,390.06 | | |
| FIRE1BOND | Fire & Rescue Dist #1 Camano BOND | 0.1570001679 | $1,111,793 | $1,111,793 | $174.55 | | |
| CE | County Current Expense | 0.3708482477 | $1,111,793 | $1,111,793 | $412.31 | | |
| CR | County Roads | 0.4584763726 | $1,111,793 | $1,111,793 | $509.73 | | |
| LCIB | Library Sno-Isle BOND (Camano Island) | 0.0396325772 | $1,111,793 | $1,111,793 | $44.06 | | |
| LIB | Library Sno-Isle GEN | 0.3153421757 | $1,111,793 | $1,111,793 | $350.60 | | |
| SCH205_401 | School 205-401 Enrichment | 1.2698420524 | $1,111,793 | $1,111,793 | $1,411.80 | | |
| SCH205BOND | School 205-401 BOND | 0.9396497583 | $1,111,793 | $1,111,793 | $1,044.70 | | |
| ST | State School | 1.3035497053 | $1,111,793 | $1,111,793 | $1,449.28 | | |
| ST2 | State School Part 2 | 0.8169543533 | $1,111,793 | $1,111,793 | $908.28 | | |
| | Total Tax Rate: | 7.3209764117 | | | | | |
| | | | | Taxes w/Current Exemptions: | $8,139.41 | | |
| | | | | Taxes w/o Exemptions: | $8,139.41 | | |
Improvement / Building
| Improvement #1: | RESIDENTIAL | State Code: | Y | 3599.3 sqft | Value: | $731,793 |
| Bathrooms: | 3 | Bedrooms: | 3 | | Ceiling: | BEAM PAINTED | Cooling: | HEAT PUMP/CONV/V | | Exterior Wall/Cover: | CEMENT FIBER | Floor Covering: | HARDWOOD/CARP 60-40 | | Floor Structure: | WOOD W/SUBFLOOR | Foundation: | CONCRETE | | Interior Finish: | DRYWALL PAINT | Plumbing Fixture Cnt: | 17 | | Roof Slope: | 6" IN 12" | Roof Structure/Cover: | CJ ASPHALT |
|
| | Type | Description | Class CD | Sub Class CD | Year Built | Area |
| | BAS | BASE/MAIN FLOOR | 4 | 0 | 2021 | 2362.7 |
| | AGR | ATTACHED GARAGE | 4 | 0 | 2021 | 696.0 |
| | UB8 | BASEMENT UNFINISHED 8" | 4 | 0 | 2021 | 1090.4 |
| | DWN | DOWNSTAIRS LIVING AREA | 4 | 0 | 2021 | 1236.6 |
| | OWP | OPEN WOOD PORCH W/STEPS | 4 | 0 | 2021 | 564.8 |
| | OWP | OPEN WOOD PORCH W/STEPS | 4 | 0 | 2021 | 368.0 |
| | OWC | OPEN WOOD PORCH W/STEPS/ROOF/C | 4 | 0 | 2021 | 196.8 |
| | OP4 | OPEN PORCH W/CEILING-ROOF | 4 | 0 | 2021 | 130.0 |
Sketch
Property Image
Land
| 1 | 17 | AC (01.01-02.00) | 1.0600 | 46173.60 | 0.00 | 0.00 | 1.00 | $380,000 | $0 |
Roll Value History
| 2026 | N/A | N/A | N/A | N/A | N/A |
| 2025 | $731,793 | $380,000 | $0 | $1,111,793 | $1,111,793 |
| 2024 | $727,882 | $380,000 | $0 | $1,107,882 | $1,107,882 |
| 2023 | $741,117 | $380,000 | $0 | $1,121,117 | $1,121,117 |
| 2022 | $549,306 | $360,000 | $0 | $909,306 | $909,306 |
| 2021 | $289,506 | $180,000 | $0 | $469,506 | $469,506 |
| 2020 | $0 | $180,000 | $0 | $180,000 | $180,000 |
| 2019 | $0 | $160,000 | $0 | $160,000 | $160,000 |
| 2018 | $0 | $150,000 | $0 | $150,000 | $150,000 |
| 2017 | $0 | $110,000 | $0 | $110,000 | $110,000 |
| 2016 | $0 | $110,000 | $0 | $110,000 | $110,000 |
| 2015 | $0 | $83,850 | $0 | $83,850 | $83,850 |
| 2014 | $0 | $83,850 | $0 | $83,850 | $83,850 |
| 2013 | $0 | $83,850 | $0 | $83,850 | $83,850 |
| 2012 | $0 | $83,850 | $0 | $83,850 | $83,850 |
| 2011 | $0 | $28,611 | $0 | $28,611 | $28,611 |
| 2010 | $0 | $28,611 | $0 | $28,611 | $28,611 |
Deed and Sales History
| 1 | 08/29/2024 | WD | Warranty Deed | CARTUS FINANCIAL CORPORATION | POSEY, ALAN | | | $1,450,000.00 | 61212 | 4576866 |
| 2 | 08/29/2024 | WD | Warranty Deed | TOUT, NIGEL D | CARTUS FINANCIAL CORPORATION | | | $1,450,000.00 | 61211 | 4576865 |
| 3 | 02/28/2022 | WD | Warranty Deed | RIDGELAND CUSTOM HOMES, LLC | TOUT, NIGEL D | | | $1,485,000.00 | 52128 | 4540667 |
| 4 | 10/20/2020 | WD | Warranty Deed | COBOCO, LLC | RIDGELAND CUSTOM HOMES, LLC | | | $180,000.00 | 45334 | 4500151 |
| 5 | 05/13/2016 | WD | Warranty Deed | HOLBECK CONST & DESIGN INC | COBOCO LLC | | | $110,000.00 | 24390 | 4399634 |
Payout Agreement
| No payout information available.. |