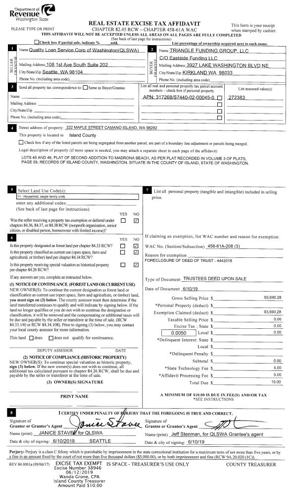
Property
Account |
| Property ID: | 810699 | Abbreviated Legal Description: | PENN COVE PARK #3 LOT 27 |
| Geographic ID: | S7730-03-00027-0 | Agent Code: | |
| Type: | Real | | |
| Tax Area: | 120 - APPRAISER-OH Schl Dist, Special Dist, improved & 1 acre or less | Land Use Code | 11 |
| Open Space: | N | DFL | N |
| Historic Property: | N | Remodel Property: | N |
| Multi-Family Redevelopment: | N | | |
| Township: | 32 | Section: | 22 |
| Range: | R1 |
Location |
| Address: | 1027 COVE VIEW CIR OAK HARBOR, WA 98277 | Mapsco: | |
| Neighborhood: | Cycle 2 | Map ID: | 153 |
| Neighborhood CD: | 2 |
Owner |
| Name: | MAURER, DARREN LEWIS | Owner ID: | 291165 |
| Mailing Address: | JERRA ROSHELLE MAURER 1027 COVE VIEW CIR OAK HARBOR, WA 98277 | % Ownership: | 100.0000000000% |
| | | Exemptions: | |
Taxes and Assessment Details
Values
| (+) Improvement Homesite Value: | + | $0 | |
| (+) Improvement Non-Homesite Value: | + | $385,301 | |
| (+) Land Homesite Value: | + | $0 | |
| (+) Land Non-Homesite Value: | + | $210,000 | |
| (+) Curr Use (HS): | + | $0 | $0 |
| (+) Curr Use (NHS): | + | $0 | $0 |
| | | -------------------------- | |
| (=) Market Value: | = | $595,301 | |
| (–) Productivity Loss: | – | $0 | |
| | | -------------------------- | |
| (=) Subtotal: | = | $595,301 | |
| (+) Senior Appraised Value: | + | $0 | |
| (+) Non-Senior Appraised Value: | + | $595,301 | |
| | | -------------------------- | |
| (=) Total Appraised Value: | = | $595,301 | |
| (–) Senior Exemption Loss: | – | $0 | |
| (–) Exemption Loss: | – | $0 | |
| | | -------------------------- | |
| (=) Taxable Value: | = | $595,301 | |
Taxing Jurisdiction
| Owner: | MAURER, DARREN LEWIS | | |
| % Ownership: | 100.0000000000% | | |
| Total Value: | $595,301 | | |
| Tax Area: | 120 - APPRAISER-OH Schl Dist, Special Dist, improved & 1 acre or less |
| CF | Conservation Futures | 0.0316035091 | $595,301 | $595,301 | $18.81 | | |
| CEM1 | Cemetery #1 | 0.0040320932 | $595,301 | $595,301 | $2.40 | | |
| FIRE2 | Fire & Rescue Dist #2 N Whidbey GEN | 0.5475949600 | $595,301 | $595,301 | $325.98 | | |
| HOBOND | Hospital BOND | 0.1910887512 | $595,301 | $595,301 | $113.76 | | |
| HOGEN | Hospital GEN | 0.3902502903 | $595,301 | $595,301 | $232.32 | | |
| CE | County Current Expense | 0.3708482477 | $595,301 | $595,301 | $220.77 | | |
| CR | County Roads | 0.4584763726 | $595,301 | $595,301 | $272.93 | | |
| ISLANDEMS | Hospital GEN (EMS) | 0.5000000000 | $595,301 | $595,301 | $297.65 | | |
| LIB | Library Sno-Isle GEN | 0.3153421757 | $595,301 | $595,301 | $187.72 | | |
| NWHIDPRMT | P & R N Whidbey GEN | 0.2004466701 | $595,301 | $595,301 | $119.33 | | |
| SCH201MO | School 201 Enrichment | 1.8559231640 | $595,301 | $595,301 | $1,104.83 | | |
| ST | State School | 1.3035497053 | $595,301 | $595,301 | $776.00 | | |
| ST2 | State School Part 2 | 0.8169543533 | $595,301 | $595,301 | $486.33 | | |
| | Total Tax Rate: | 6.9861102925 | | | | | |
| | | | | Taxes w/Current Exemptions: | $4,158.83 | | |
| | | | | Taxes w/o Exemptions: | $4,158.83 | | |
Improvement / Building
| Improvement #1: | RESIDENTIAL | State Code: | Y | 2213.5 sqft | Value: | $385,301 |
| Bathrooms: | 2.5 | Bedrooms: | 4 | | Ceiling: | DRYWALL PAINTED | Exterior Wall/Cover: | PLY/HARDBOARD T-111 | | Floor Covering: | HARDWOOD/CARP 20-80 | Floor Structure: | WOOD W/SUBFLOOR | | Foundation: | CONCRETE | Heating: | FHA GAS | | Interior Finish: | DRYWALL PAINT | Plumbing Fixture Cnt: | 13 | | Roof Slope: | 6" IN 12" | Roof Structure/Cover: | CJ ASPHALT |
|
| | Type | Description | Class CD | Sub Class CD | Year Built | Area |
| | BAS | BASE/MAIN FLOOR | 3 | 0 | 2012 | 917.0 |
| | BIG | BUILT IN GARAGE | 3 | 0 | 2012 | 660.0 |
| | UPS | UPPER STORY | 3 | 0 | 2012 | 1296.5 |
| | OP4 | OPEN PORCH W/CEILING-ROOF | 3 | 0 | 2012 | 102.0 |
| | OP1 | OPEN PORCH SLAB | 3 | 0 | 2012 | 555.0 |
Sketch
| No sketches available for this property. |
Property Image
Land
| 1 | 15 | SQ (12001-21780) | 0.4700 | 20473.20 | 0.00 | 0.00 | 1.00 | $210,000 | $0 |
Roll Value History
| 2026 | N/A | N/A | N/A | N/A | N/A |
| 2025 | $385,301 | $210,000 | $0 | $595,301 | $595,301 |
| 2024 | $379,838 | $210,000 | $0 | $589,838 | $589,838 |
| 2023 | $384,143 | $220,000 | $0 | $604,143 | $604,143 |
| 2022 | $350,781 | $180,000 | $0 | $530,781 | $530,781 |
| 2021 | $307,721 | $140,000 | $0 | $447,721 | $447,721 |
| 2020 | $298,627 | $100,000 | $0 | $398,627 | $398,627 |
| 2019 | $229,622 | $170,000 | $0 | $399,622 | $399,622 |
| 2018 | $220,426 | $130,000 | $0 | $350,426 | $350,426 |
| 2017 | $221,605 | $115,000 | $0 | $336,605 | $336,605 |
| 2016 | $223,963 | $80,000 | $0 | $303,963 | $303,963 |
| 2015 | $226,320 | $70,000 | $0 | $296,320 | $296,320 |
| 2014 | $228,677 | $60,000 | $0 | $288,677 | $288,677 |
| 2013 | $231,035 | $60,000 | $0 | $291,035 | $291,035 |
| 2012 | $0 | $63,750 | $0 | $63,750 | $63,750 |
| 2011 | $0 | $6,563 | $0 | $6,563 | $6,563 |
Deed and Sales History
| 1 | 07/29/2019 | WD | Warranty Deed | BINGHAM, BRETT A | MAURER, DARREN LEWIS | | | $435,000.00 | 39671 | 4468447 |
| 2 | 01/31/2013 | WD | Warranty Deed | SEATTLE PACIFIC HOMES, INC | BINGHAM, BRETT A | | | $304,950.00 | 10393 | 4333341 |
| 3 | 01/08/2013 | WD | Warranty Deed | BOYDEN ROBINETT & ASSOC LP | SEATTLE PACIFIC HOMES, INC | | | $500,000.00 | 10185 | 4331844 |
Payout Agreement
| No payout information available.. |