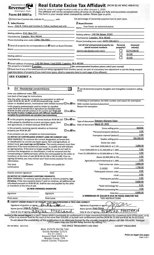
Property
Account |
| Property ID: | 810746 | Abbreviated Legal Description: | FAIRWAY POINT DIVISION 4 PRD LOT 151 |
| Geographic ID: | S6612-04-00151-0 | Agent Code: | |
| Type: | Real | | |
| Tax Area: | 100 - APPRAISER-OH Schl Dist, in OH | Land Use Code | 11 |
| Open Space: | N | DFL | N |
| Historic Property: | N | Remodel Property: | N |
| Multi-Family Redevelopment: | N | | |
| Township: | 32 | Section: | 4 |
| Range: | R1 |
Location |
| Address: | 3005 SW BERWICK DR OAK HARBOR, WA 98277 | Mapsco: | |
| Neighborhood: | Cycle 1 | Map ID: | 94 |
| Neighborhood CD: | 1 |
Owner |
| Name: | BERANEK, ASHLEY NICOLE | Owner ID: | 303712 |
| Mailing Address: | MARSHALL ROBERT BERANEK 3005 SW BERWICK DRIVE OAK HARBOR, WA 98277 | % Ownership: | 100.0000000000% |
| | | Exemptions: | |
Taxes and Assessment Details
Values
| (+) Improvement Homesite Value: | + | $0 | |
| (+) Improvement Non-Homesite Value: | + | $483,428 | |
| (+) Land Homesite Value: | + | $0 | |
| (+) Land Non-Homesite Value: | + | $175,000 | |
| (+) Curr Use (HS): | + | $0 | $0 |
| (+) Curr Use (NHS): | + | $0 | $0 |
| | | -------------------------- | |
| (=) Market Value: | = | $658,428 | |
| (–) Productivity Loss: | – | $0 | |
| | | -------------------------- | |
| (=) Subtotal: | = | $658,428 | |
| (+) Senior Appraised Value: | + | $0 | |
| (+) Non-Senior Appraised Value: | + | $658,428 | |
| | | -------------------------- | |
| (=) Total Appraised Value: | = | $658,428 | |
| (–) Senior Exemption Loss: | – | $0 | |
| (–) Exemption Loss: | – | $0 | |
| | | -------------------------- | |
| (=) Taxable Value: | = | $658,428 | |
Taxing Jurisdiction
| Owner: | BERANEK, ASHLEY NICOLE | | |
| % Ownership: | 100.0000000000% | | |
| Total Value: | $658,428 | | |
| Tax Area: | 100 - APPRAISER-OH Schl Dist, in OH |
| CF | Conservation Futures | 0.0316035091 | $658,428 | $658,428 | $20.81 | | |
| CEM1 | Cemetery #1 | 0.0040320932 | $658,428 | $658,428 | $2.65 | | |
| COH | City of Oak Harbor | 2.3001546061 | $658,428 | $658,428 | $1,514.49 | | |
| OAKBOND | City of Oak Harbor BOND | 0.1926904192 | $658,428 | $658,428 | $126.87 | | |
| HOBOND | Hospital BOND | 0.1910887512 | $658,428 | $658,428 | $125.82 | | |
| HOGEN | Hospital GEN | 0.3902502903 | $658,428 | $658,428 | $256.95 | | |
| CE | County Current Expense | 0.3708482477 | $658,428 | $658,428 | $244.18 | | |
| ISLANDEMS | Hospital GEN (EMS) | 0.5000000000 | $658,428 | $658,428 | $329.21 | | |
| LIB | Library Sno-Isle GEN | 0.3153421757 | $658,428 | $658,428 | $207.63 | | |
| NWHIDPRMT | P & R N Whidbey GEN | 0.2004466701 | $658,428 | $658,428 | $131.98 | | |
| SCH201MO | School 201 Enrichment | 1.8559231640 | $658,428 | $658,428 | $1,221.99 | | |
| ST | State School | 1.3035497053 | $658,428 | $658,428 | $858.29 | | |
| ST2 | State School Part 2 | 0.8169543533 | $658,428 | $658,428 | $537.91 | | |
| | Total Tax Rate: | 8.4728839852 | | | | | |
| | | | | Taxes w/Current Exemptions: | $5,578.78 | | |
| | | | | Taxes w/o Exemptions: | $5,578.78 | | |
Improvement / Building
| Improvement #1: | RESIDENTIAL | State Code: | Y | 2434.0 sqft | Value: | $483,428 |
| Bathrooms: | 2.5 | Bedrooms: | 4 | | Ceiling: | DRYWALL PAINTED | Exterior Wall/Cover: | CEMENT FIBER | | Floor Covering: | HARDWOOD/CARP 20-80 | Floor Structure: | WOOD W/SUBFLOOR | | Foundation: | CONCRETE | Heating: | FHA GAS | | Interior Finish: | DRYWALL PAINT | Plumbing Fixture Cnt: | 14 | | Roof Slope: | 5" IN 12" | Roof Structure/Cover: | CJ ASPHALT |
|
| | Type | Description | Class CD | Sub Class CD | Year Built | Area |
| | BAS | BASE/MAIN FLOOR | 4 | 0 | 2014 | 982.0 |
| | UPS | UPPER STORY | 4 | 0 | 2014 | 1452.0 |
| | BIG | BUILT IN GARAGE | 4 | 0 | 2014 | 606.1 |
| | OWC | OPEN WOOD PORCH W/STEPS/ROOF/C | 4 | 0 | 2014 | 126.0 |
| | OWC | OPEN WOOD PORCH W/STEPS/ROOF/C | 4 | 0 | 2014 | 120.0 |
Sketch
Property Image
Land
| 1 | 13 | SQ (06001-08000) | 0.0000 | 0.00 | 0.00 | 0.00 | 1.00 | $175,000 | $0 |
Roll Value History
| 2026 | N/A | N/A | N/A | N/A | N/A |
| 2025 | $483,428 | $175,000 | $0 | $658,428 | $658,428 |
| 2024 | $487,390 | $150,000 | $0 | $637,390 | $637,390 |
| 2023 | $479,730 | $150,000 | $0 | $629,730 | $629,730 |
| 2022 | $437,737 | $120,000 | $0 | $557,737 | $557,737 |
| 2021 | $383,767 | $85,000 | $0 | $468,767 | $468,767 |
| 2020 | $372,374 | $70,000 | $0 | $442,374 | $442,374 |
| 2019 | $278,930 | $140,000 | $0 | $418,930 | $418,930 |
| 2018 | $279,663 | $120,000 | $0 | $399,663 | $399,663 |
| 2017 | $256,289 | $120,000 | $0 | $376,289 | $376,289 |
| 2016 | $258,960 | $100,000 | $0 | $358,960 | $358,960 |
| 2015 | $261,628 | $60,000 | $0 | $321,628 | $321,628 |
| 2014 | $268,169 | $60,000 | $0 | $328,169 | $328,169 |
| 2013 | $0 | $60,000 | $0 | $60,000 | $60,000 |
| 2012 | $0 | $75,000 | $0 | $75,000 | $75,000 |
| 2011 | $0 | $12,285 | $0 | $12,285 | $12,285 |
Deed and Sales History
| 1 | 03/10/2022 | QCD | Quit Claim Deed | BERANEK, ASHELY NICOLE | BERANEK, ASHLEY NICOLE | | | $0.00 | 52643 | 4543003 |
| 2 | 11/12/2021 | WD | Warranty Deed | ODONNELL, MATTHEW T | BERANEK, ASHELY NICOLE | | | $585,000.00 | 50902 | 4533889 |
| 3 | 10/16/2017 | WD | Warranty Deed | VEIT, JOSHUA GRANT | ODONNELL, MATTHEW T | | | $400,000.00 | 31667 | 4432849 |
| 4 | 08/04/2014 | WD | Warranty Deed | FAIRWAY POINT IV INC | VEIT, JOSHUA GRANT | | | $324,400.00 | 16327 | 4363580 |
| 5 | 04/21/2014 | WD | Warranty Deed | FP4 LLC | FAIRWAY POINT IV INC | | | $120,000.00 | 15040 | 4358341 |
|   | |
Payout Agreement
| No payout information available.. |