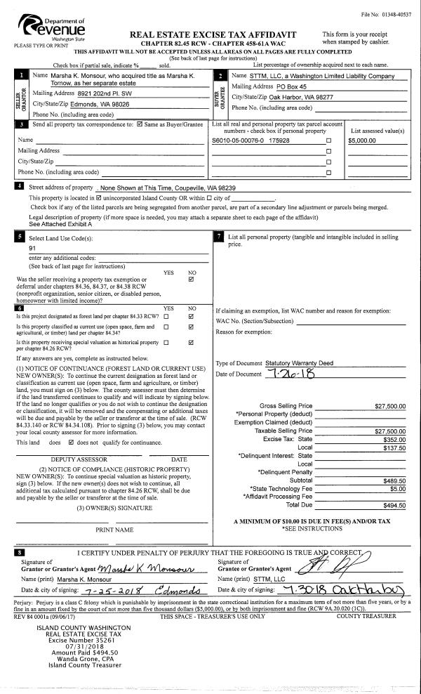
Property
Account |
| Property ID: | 810749 | Abbreviated Legal Description: | FAIRWAY POINT DIVISION 4 PRD LOT 154 |
| Geographic ID: | S6612-04-00154-0 | Agent Code: | |
| Type: | Real | | |
| Tax Area: | 100 - APPRAISER-OH Schl Dist, in OH | Land Use Code | 11 |
| Open Space: | N | DFL | N |
| Historic Property: | N | Remodel Property: | N |
| Multi-Family Redevelopment: | N | | |
| Township: | 32 | Section: | 4 |
| Range: | R1 |
Location |
| Address: | 3018 SW BERWICK DR OAK HARBOR, WA 98277 | Mapsco: | |
| Neighborhood: | Cycle 1 | Map ID: | 94 |
| Neighborhood CD: | 1 |
Owner |
| Name: | SANDERSON, AARON MICHAEL | Owner ID: | 298468 |
| Mailing Address: | LAURA SNEAD 3018 SW BERWICK DR OAK HARBOR, WA 98277 | % Ownership: | 100.0000000000% |
| | | Exemptions: | |
Taxes and Assessment Details
Values
| (+) Improvement Homesite Value: | + | $0 | |
| (+) Improvement Non-Homesite Value: | + | $499,711 | |
| (+) Land Homesite Value: | + | $0 | |
| (+) Land Non-Homesite Value: | + | $175,000 | |
| (+) Curr Use (HS): | + | $0 | $0 |
| (+) Curr Use (NHS): | + | $0 | $0 |
| | | -------------------------- | |
| (=) Market Value: | = | $674,711 | |
| (–) Productivity Loss: | – | $0 | |
| | | -------------------------- | |
| (=) Subtotal: | = | $674,711 | |
| (+) Senior Appraised Value: | + | $0 | |
| (+) Non-Senior Appraised Value: | + | $674,711 | |
| | | -------------------------- | |
| (=) Total Appraised Value: | = | $674,711 | |
| (–) Senior Exemption Loss: | – | $0 | |
| (–) Exemption Loss: | – | $0 | |
| | | -------------------------- | |
| (=) Taxable Value: | = | $674,711 | |
Taxing Jurisdiction
| Owner: | SANDERSON, AARON MICHAEL | | |
| % Ownership: | 100.0000000000% | | |
| Total Value: | $674,711 | | |
| Tax Area: | 100 - APPRAISER-OH Schl Dist, in OH |
| CF | Conservation Futures | 0.0316035091 | $674,711 | $674,711 | $21.32 | | |
| CEM1 | Cemetery #1 | 0.0040320932 | $674,711 | $674,711 | $2.72 | | |
| COH | City of Oak Harbor | 2.3001546061 | $674,711 | $674,711 | $1,551.94 | | |
| OAKBOND | City of Oak Harbor BOND | 0.1926904192 | $674,711 | $674,711 | $130.01 | | |
| HOBOND | Hospital BOND | 0.1910887512 | $674,711 | $674,711 | $128.93 | | |
| HOGEN | Hospital GEN | 0.3902502903 | $674,711 | $674,711 | $263.31 | | |
| CE | County Current Expense | 0.3708482477 | $674,711 | $674,711 | $250.22 | | |
| ISLANDEMS | Hospital GEN (EMS) | 0.5000000000 | $674,711 | $674,711 | $337.36 | | |
| LIB | Library Sno-Isle GEN | 0.3153421757 | $674,711 | $674,711 | $212.76 | | |
| NWHIDPRMT | P & R N Whidbey GEN | 0.2004466701 | $674,711 | $674,711 | $135.24 | | |
| SCH201MO | School 201 Enrichment | 1.8559231640 | $674,711 | $674,711 | $1,252.21 | | |
| ST | State School | 1.3035497053 | $674,711 | $674,711 | $879.52 | | |
| ST2 | State School Part 2 | 0.8169543533 | $674,711 | $674,711 | $551.21 | | |
| | Total Tax Rate: | 8.4728839852 | | | | | |
| | | | | Taxes w/Current Exemptions: | $5,716.75 | | |
| | | | | Taxes w/o Exemptions: | $5,716.75 | | |
Improvement / Building
| Improvement #1: | RESIDENTIAL | State Code: | Y | 2513.0 sqft | Value: | $499,711 |
| Bathrooms: | 2.5 | Bedrooms: | 3 | | Ceiling: | DRYWALL PAINTED | Exterior Wall/Cover: | CEMENT FIBER | | Floor Covering: | HARDWOOD/CARP 60-40 | Floor Structure: | WOOD W/SUBFLOOR | | Foundation: | CONCRETE | Heating: | FHA GAS | | Interior Finish: | DRYWALL PAINT | Plumbing Fixture Cnt: | 14 | | Roof Slope: | 6" IN 12" | Roof Structure/Cover: | CJ ASPHALT |
|
| | Type | Description | Class CD | Sub Class CD | Year Built | Area |
| | BAS | BASE/MAIN FLOOR | 4 | 0 | 2014 | 1361.0 |
| | UPS | UPPER STORY | 4 | 0 | 2014 | 1152.0 |
| | BIG | BUILT IN GARAGE | 4 | 0 | 2014 | 483.0 |
| | OP4 | OPEN PORCH W/CEILING-ROOF | 4 | 0 | 2014 | 152.0 |
| | OWC | OPEN WOOD PORCH W/STEPS/ROOF/C | 4 | 0 | 2014 | 135.0 |
Sketch
Property Image
Land
| 1 | 12 | SQ (00000-06000) | 0.0000 | 0.00 | 0.00 | 0.00 | 1.00 | $175,000 | $0 |
Roll Value History
| 2026 | N/A | N/A | N/A | N/A | N/A |
| 2025 | $499,711 | $175,000 | $0 | $674,711 | $674,711 |
| 2024 | $503,806 | $150,000 | $0 | $653,806 | $653,806 |
| 2023 | $495,887 | $150,000 | $0 | $645,887 | $645,887 |
| 2022 | $452,518 | $120,000 | $0 | $572,518 | $572,518 |
| 2021 | $396,706 | $85,000 | $0 | $481,706 | $481,706 |
| 2020 | $385,149 | $70,000 | $0 | $455,149 | $455,149 |
| 2019 | $289,733 | $140,000 | $0 | $429,733 | $429,733 |
| 2018 | $290,493 | $120,000 | $0 | $410,493 | $410,493 |
| 2017 | $281,669 | $120,000 | $0 | $401,669 | $401,669 |
| 2016 | $284,602 | $100,000 | $0 | $384,602 | $384,602 |
| 2015 | $287,537 | $60,000 | $0 | $347,537 | $347,537 |
| 2014 | $262,485 | $60,000 | $0 | $322,485 | $322,485 |
| 2013 | $0 | $60,000 | $0 | $60,000 | $60,000 |
| 2012 | $0 | $75,000 | $0 | $75,000 | $75,000 |
| 2011 | $0 | $12,285 | $0 | $12,285 | $12,285 |
Deed and Sales History
| 1 | 02/25/2021 | WD | Warranty Deed | SANCHEZ, MOISES | SANDERSON, AARON MICHAEL | | | $520,000.00 | 47330 | 4513455 |
| 2 | 05/10/2018 | WD | Warranty Deed | AMERINE, DENVER REESE | SANCHEZ, MOISES | | | $409,000.00 | 34072 | 4444288 |
| 3 | 04/16/2014 | WD | Warranty Deed | FAIRWAY POINT IV INC | AMERINE, DENVER REESE | | | $333,461.00 | 14957 | 4358061 |
| 4 | 01/24/2014 | WD | Warranty Deed | FP4 LLC | FAIRWAY POINT IV INC | | | $80,000.00 | 14149 | 4354594 |
|   | |
Payout Agreement
| No payout information available.. |