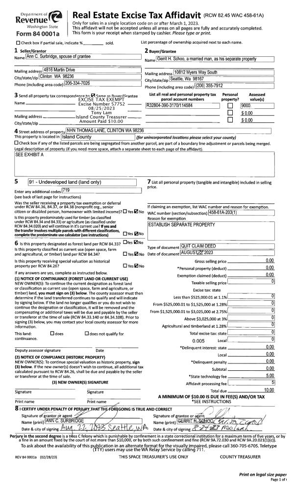
Property
Account |
| Property ID: | 810755 | Abbreviated Legal Description: | FAIRWAY POINT DIVISION 4 PRD LOT 160 |
| Geographic ID: | S6612-04-00160-0 | Agent Code: | |
| Type: | Real | | |
| Tax Area: | 100 - APPRAISER-OH Schl Dist, in OH | Land Use Code | 11 |
| Open Space: | N | DFL | N |
| Historic Property: | N | Remodel Property: | N |
| Multi-Family Redevelopment: | N | | |
| Township: | 32 | Section: | 4 |
| Range: | R1 |
Location |
| Address: | 1583 SW DOWNFIELD WAY OAK HARBOR, WA 98277 | Mapsco: | |
| Neighborhood: | Cycle 1 | Map ID: | 94 |
| Neighborhood CD: | 1 |
Owner |
| Name: | SISON, ANGEL RIOS | Owner ID: | 307656 |
| Mailing Address: | MAXINE ANNE SALVANERA SISON 1583 SW DOWNFIELD WAY OAK HARBOR, WA 98277 | % Ownership: | 100.0000000000% |
| | | Exemptions: | |
Taxes and Assessment Details
Values
| (+) Improvement Homesite Value: | + | $0 | |
| (+) Improvement Non-Homesite Value: | + | $432,819 | |
| (+) Land Homesite Value: | + | $0 | |
| (+) Land Non-Homesite Value: | + | $175,000 | |
| (+) Curr Use (HS): | + | $0 | $0 |
| (+) Curr Use (NHS): | + | $0 | $0 |
| | | -------------------------- | |
| (=) Market Value: | = | $607,819 | |
| (–) Productivity Loss: | – | $0 | |
| | | -------------------------- | |
| (=) Subtotal: | = | $607,819 | |
| (+) Senior Appraised Value: | + | $0 | |
| (+) Non-Senior Appraised Value: | + | $607,819 | |
| | | -------------------------- | |
| (=) Total Appraised Value: | = | $607,819 | |
| (–) Senior Exemption Loss: | – | $0 | |
| (–) Exemption Loss: | – | $0 | |
| | | -------------------------- | |
| (=) Taxable Value: | = | $607,819 | |
Taxing Jurisdiction
| Owner: | SISON, ANGEL RIOS | | |
| % Ownership: | 100.0000000000% | | |
| Total Value: | $607,819 | | |
| Tax Area: | 100 - APPRAISER-OH Schl Dist, in OH |
| CF | Conservation Futures | 0.0316035091 | $607,819 | $607,819 | $19.21 | | |
| CEM1 | Cemetery #1 | 0.0040320932 | $607,819 | $607,819 | $2.45 | | |
| COH | City of Oak Harbor | 2.3001546061 | $607,819 | $607,819 | $1,398.08 | | |
| OAKBOND | City of Oak Harbor BOND | 0.1926904192 | $607,819 | $607,819 | $117.12 | | |
| HOBOND | Hospital BOND | 0.1910887512 | $607,819 | $607,819 | $116.15 | | |
| HOGEN | Hospital GEN | 0.3902502903 | $607,819 | $607,819 | $237.20 | | |
| CE | County Current Expense | 0.3708482477 | $607,819 | $607,819 | $225.41 | | |
| ISLANDEMS | Hospital GEN (EMS) | 0.5000000000 | $607,819 | $607,819 | $303.91 | | |
| LIB | Library Sno-Isle GEN | 0.3153421757 | $607,819 | $607,819 | $191.67 | | |
| NWHIDPRMT | P & R N Whidbey GEN | 0.2004466701 | $607,819 | $607,819 | $121.84 | | |
| SCH201MO | School 201 Enrichment | 1.8559231640 | $607,819 | $607,819 | $1,128.07 | | |
| ST | State School | 1.3035497053 | $607,819 | $607,819 | $792.32 | | |
| ST2 | State School Part 2 | 0.8169543533 | $607,819 | $607,819 | $496.56 | | |
| | Total Tax Rate: | 8.4728839852 | | | | | |
| | | | | Taxes w/Current Exemptions: | $5,149.99 | | |
| | | | | Taxes w/o Exemptions: | $5,149.99 | | |
Improvement / Building
| Improvement #1: | RESIDENTIAL | State Code: | Y | 2363.5 sqft | Value: | $432,819 |
| Bathrooms: | 2.5 | Bedrooms: | 3 | | Ceiling: | DRY WALL SPRAYED | Exterior Wall/Cover: | CEMENT FIBER | | Floor Covering: | HARDWOOD/CARP 20-80 | Floor Structure: | WOOD ON WOOD JOIST | | Foundation: | CONCRETE | Heating: | FHA GAS | | Interior Finish: | DRYWALL PAINT | Plumbing Fixture Cnt: | 14 | | Roof Slope: | 6" IN 12" | Roof Structure/Cover: | CJ ASPHALT |
|
| | Type | Description | Class CD | Sub Class CD | Year Built | Area |
| | OWP | OPEN WOOD PORCH W/STEPS | 4 | 0 | 2013 | 156.0 |
| | BAS | BASE/MAIN FLOOR | 4 | 0 | 2013 | 1371.5 |
| | UPS | UPPER STORY | 4 | 0 | 2013 | 992.0 |
| | BIG | BUILT IN GARAGE | 4 | 0 | 2013 | 472.5 |
| | OWC | OPEN WOOD PORCH W/STEPS/ROOF/C | 4 | 0 | 2013 | 144.0 |
| | OWC | OPEN WOOD PORCH W/STEPS/ROOF/C | 4 | 0 | 2013 | 152.0 |
Sketch
Property Image
Land
| 1 | 13 | SQ (06001-08000) | 0.0000 | 0.00 | 0.00 | 0.00 | 1.00 | $175,000 | $0 |
Roll Value History
| 2026 | N/A | N/A | N/A | N/A | N/A |
| 2025 | $432,819 | $175,000 | $0 | $607,819 | $607,819 |
| 2024 | $436,665 | $150,000 | $0 | $586,665 | $586,665 |
| 2023 | $432,819 | $150,000 | $0 | $582,819 | $582,819 |
| 2022 | $395,411 | $120,000 | $0 | $515,411 | $515,411 |
| 2021 | $346,486 | $85,000 | $0 | $431,486 | $431,486 |
| 2020 | $335,875 | $70,000 | $0 | $405,875 | $405,875 |
| 2019 | $249,166 | $140,000 | $0 | $389,166 | $389,166 |
| 2018 | $249,826 | $120,000 | $0 | $369,826 | $369,826 |
| 2017 | $171,084 | $120,000 | $0 | $291,084 | $291,084 |
| 2016 | $172,886 | $100,000 | $0 | $272,886 | $272,886 |
| 2015 | $174,686 | $60,000 | $0 | $234,686 | $234,686 |
| 2014 | $176,487 | $60,000 | $0 | $236,487 | $236,487 |
| 2013 | $180,089 | $60,000 | $0 | $240,089 | $240,089 |
| 2012 | $0 | $75,000 | $0 | $75,000 | $75,000 |
| 2011 | $0 | $12,285 | $0 | $12,285 | $12,285 |
Deed and Sales History
| 1 | 02/10/2023 | WD | Warranty Deed | SALVAGGIO JR, PETER | SISON, ANGEL RIOS | | | $565,000.00 | 55885 | 4556836 |
| 2 | 03/26/2021 | QCD | Quit Claim Deed | SALVAGGIO, PETER | SALVAGGIO JR, PETER | | | $0.00 | 47578 | 4515160 |
| 3 | 12/26/2012 | WD | Warranty Deed | FAIRWAY POINT IV INC | SALVAGGIO, PETER | | | $311,900.00 | 10149 | 4331494 |
| 4 | 09/26/2012 | WD | Warranty Deed | FP4 LLC | FAIRWAY POINT IV INC | | | $80,000.00 | 9250 | 4325791 |
|   | |
Payout Agreement
| No payout information available.. |