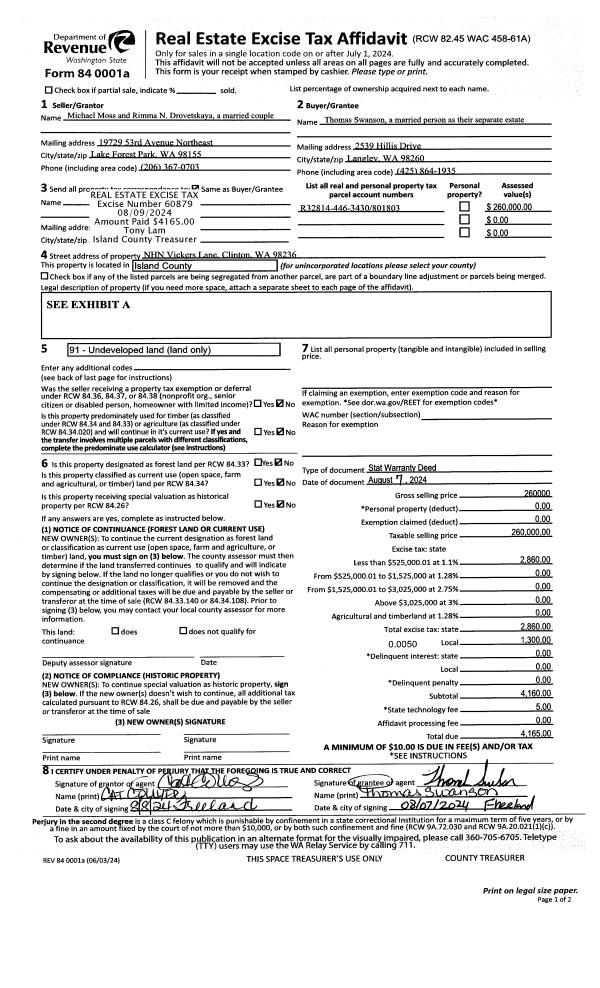
Property
Account |
| Property ID: | 810761 | Abbreviated Legal Description: | FAIRWAY POINT DIVISION 4 PRD LOT 166 |
| Geographic ID: | S6612-04-00166-0 | Agent Code: | |
| Type: | Real | | |
| Tax Area: | 100 - APPRAISER-OH Schl Dist, in OH | Land Use Code | 11 |
| Open Space: | N | DFL | N |
| Historic Property: | N | Remodel Property: | N |
| Multi-Family Redevelopment: | N | | |
| Township: | 32 | Section: | 4 |
| Range: | R1 |
Location |
| Address: | 1582 SW DOWNFIELD WAY OAK HARBOR, WA 98277 | Mapsco: | |
| Neighborhood: | Cycle 1 | Map ID: | 94 |
| Neighborhood CD: | 1 |
Owner |
| Name: | DELANO, KENNETH R | Owner ID: | 263685 |
| Mailing Address: | CHERRY B DELANO 1582 SW DOWNFIELD WAY OAK HARBOR, WA 98277 | % Ownership: | 100.0000000000% |
| | | Exemptions: | |
Taxes and Assessment Details
Values
| (+) Improvement Homesite Value: | + | $0 | |
| (+) Improvement Non-Homesite Value: | + | $469,608 | |
| (+) Land Homesite Value: | + | $0 | |
| (+) Land Non-Homesite Value: | + | $175,000 | |
| (+) Curr Use (HS): | + | $0 | $0 |
| (+) Curr Use (NHS): | + | $0 | $0 |
| | | -------------------------- | |
| (=) Market Value: | = | $644,608 | |
| (–) Productivity Loss: | – | $0 | |
| | | -------------------------- | |
| (=) Subtotal: | = | $644,608 | |
| (+) Senior Appraised Value: | + | $0 | |
| (+) Non-Senior Appraised Value: | + | $644,608 | |
| | | -------------------------- | |
| (=) Total Appraised Value: | = | $644,608 | |
| (–) Senior Exemption Loss: | – | $0 | |
| (–) Exemption Loss: | – | $0 | |
| | | -------------------------- | |
| (=) Taxable Value: | = | $644,608 | |
Taxing Jurisdiction
| Owner: | DELANO, KENNETH R | | |
| % Ownership: | 100.0000000000% | | |
| Total Value: | $644,608 | | |
| Tax Area: | 100 - APPRAISER-OH Schl Dist, in OH |
| CF | Conservation Futures | 0.0316035091 | $644,608 | $644,608 | $20.37 | | |
| CEM1 | Cemetery #1 | 0.0040320932 | $644,608 | $644,608 | $2.60 | | |
| COH | City of Oak Harbor | 2.3001546061 | $644,608 | $644,608 | $1,482.70 | | |
| OAKBOND | City of Oak Harbor BOND | 0.1926904192 | $644,608 | $644,608 | $124.21 | | |
| HOBOND | Hospital BOND | 0.1910887512 | $644,608 | $644,608 | $123.18 | | |
| HOGEN | Hospital GEN | 0.3902502903 | $644,608 | $644,608 | $251.56 | | |
| CE | County Current Expense | 0.3708482477 | $644,608 | $644,608 | $239.05 | | |
| ISLANDEMS | Hospital GEN (EMS) | 0.5000000000 | $644,608 | $644,608 | $322.30 | | |
| LIB | Library Sno-Isle GEN | 0.3153421757 | $644,608 | $644,608 | $203.27 | | |
| NWHIDPRMT | P & R N Whidbey GEN | 0.2004466701 | $644,608 | $644,608 | $129.21 | | |
| SCH201MO | School 201 Enrichment | 1.8559231640 | $644,608 | $644,608 | $1,196.34 | | |
| ST | State School | 1.3035497053 | $644,608 | $644,608 | $840.28 | | |
| ST2 | State School Part 2 | 0.8169543533 | $644,608 | $644,608 | $526.62 | | |
| | Total Tax Rate: | 8.4728839852 | | | | | |
| | | | | Taxes w/Current Exemptions: | $5,461.69 | | |
| | | | | Taxes w/o Exemptions: | $5,461.69 | | |
Improvement / Building
| Improvement #1: | RESIDENTIAL | State Code: | Y | 2233.4 sqft | Value: | $469,608 |
| Bathrooms: | 2.5 | Bedrooms: | 3 | | Ceiling: | DRYWALL PAINTED | Exterior Wall/Cover: | CEMENT FIBER | | Floor Covering: | HARDWOOD/CARP 60-40 | Floor Structure: | WOOD W/SUBFLOOR | | Foundation: | CONCRETE | Heating: | FHA GAS | | Interior Finish: | DRYWALL PAINT | Plumbing Fixture Cnt: | 14 | | Roof Slope: | 6" IN 12" | Roof Structure/Cover: | CJ ASPHALT |
|
| | Type | Description | Class CD | Sub Class CD | Year Built | Area |
| | AGR | ATTACHED GARAGE | 4 | 0 | 2013 | 474.6 |
| | BAS | BASE/MAIN FLOOR | 4 | 0 | 2013 | 1369.4 |
| | UPS | UPPER STORY | 4 | 0 | 2013 | 864.0 |
| | OP4 | OPEN PORCH W/CEILING-ROOF | 4 | 0 | 2013 | 96.0 |
| | OP4 | OPEN PORCH W/CEILING-ROOF | 4 | 0 | 2013 | 152.0 |
Sketch
Property Image
Land
| 1 | 13 | SQ (06001-08000) | 0.0000 | 0.00 | 0.00 | 0.00 | 1.00 | $175,000 | $0 |
Roll Value History
| 2026 | N/A | N/A | N/A | N/A | N/A |
| 2025 | $469,608 | $175,000 | $0 | $644,608 | $644,608 |
| 2024 | $473,228 | $150,000 | $0 | $623,228 | $623,228 |
| 2023 | $465,469 | $150,000 | $0 | $615,469 | $615,469 |
| 2022 | $425,232 | $120,000 | $0 | $545,232 | $545,232 |
| 2021 | $372,616 | $85,000 | $0 | $457,616 | $457,616 |
| 2020 | $361,458 | $70,000 | $0 | $431,458 | $431,458 |
| 2019 | $269,447 | $140,000 | $0 | $409,447 | $409,447 |
| 2018 | $270,161 | $120,000 | $0 | $390,161 | $390,161 |
| 2017 | $268,905 | $120,000 | $0 | $388,905 | $388,905 |
| 2016 | $271,736 | $100,000 | $0 | $371,736 | $371,736 |
| 2015 | $274,567 | $60,000 | $0 | $334,567 | $334,567 |
| 2014 | $277,397 | $60,000 | $0 | $337,397 | $337,397 |
| 2013 | $22,507 | $60,000 | $0 | $82,507 | $82,507 |
| 2012 | $0 | $75,000 | $0 | $75,000 | $75,000 |
| 2011 | $0 | $12,285 | $0 | $12,285 | $12,285 |
Deed and Sales History
| 1 | 09/09/2013 | WD | Warranty Deed | FAIRWAY POINT IV INC | DELANO, KENNETH R | | | $309,400.00 | 12761 | 4347899 |
| 2 | 07/09/2013 | WD | Warranty Deed | FP4 LLC | FAIRWAY POINT IV INC | | | $40,000.00 | 11938 | 4343587 |
Payout Agreement
| No payout information available.. |