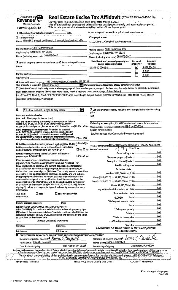
Property
Account |
| Property ID: | 810766 | Abbreviated Legal Description: | FAIRWAY POINT DIVISION 4 PRD LOT 171 |
| Geographic ID: | S6612-04-00171-0 | Agent Code: | |
| Type: | Real | | |
| Tax Area: | 100 - APPRAISER-OH Schl Dist, in OH | Land Use Code | 11 |
| Open Space: | N | DFL | N |
| Historic Property: | N | Remodel Property: | N |
| Multi-Family Redevelopment: | N | | |
| Township: | 32 | Section: | 4 |
| Range: | R1 |
Location |
| Address: | 1704 SW DOWNFIELD WAY OAK HARBOR, WA 98277 | Mapsco: | |
| Neighborhood: | Cycle 1 | Map ID: | 94 |
| Neighborhood CD: | 1 |
Owner |
| Name: | REYNDERS, MICHAEL P | Owner ID: | 295012 |
| Mailing Address: | ELLEN JOYCE REYNDERS 1704 SW DOWNFIELD WAY OAK HARBOR, WA 98277 | % Ownership: | 100.0000000000% |
| | | Exemptions: | |
Taxes and Assessment Details
Values
| (+) Improvement Homesite Value: | + | $0 | |
| (+) Improvement Non-Homesite Value: | + | $467,144 | |
| (+) Land Homesite Value: | + | $0 | |
| (+) Land Non-Homesite Value: | + | $175,000 | |
| (+) Curr Use (HS): | + | $0 | $0 |
| (+) Curr Use (NHS): | + | $0 | $0 |
| | | -------------------------- | |
| (=) Market Value: | = | $642,144 | |
| (–) Productivity Loss: | – | $0 | |
| | | -------------------------- | |
| (=) Subtotal: | = | $642,144 | |
| (+) Senior Appraised Value: | + | $0 | |
| (+) Non-Senior Appraised Value: | + | $642,144 | |
| | | -------------------------- | |
| (=) Total Appraised Value: | = | $642,144 | |
| (–) Senior Exemption Loss: | – | $0 | |
| (–) Exemption Loss: | – | $0 | |
| | | -------------------------- | |
| (=) Taxable Value: | = | $642,144 | |
Taxing Jurisdiction
| Owner: | REYNDERS, MICHAEL P | | |
| % Ownership: | 100.0000000000% | | |
| Total Value: | $642,144 | | |
| Tax Area: | 100 - APPRAISER-OH Schl Dist, in OH |
| CF | Conservation Futures | 0.0316035091 | $642,144 | $642,144 | $20.29 | | |
| CEM1 | Cemetery #1 | 0.0040320932 | $642,144 | $642,144 | $2.59 | | |
| COH | City of Oak Harbor | 2.3001546061 | $642,144 | $642,144 | $1,477.03 | | |
| OAKBOND | City of Oak Harbor BOND | 0.1926904192 | $642,144 | $642,144 | $123.73 | | |
| HOBOND | Hospital BOND | 0.1910887512 | $642,144 | $642,144 | $122.71 | | |
| HOGEN | Hospital GEN | 0.3902502903 | $642,144 | $642,144 | $250.60 | | |
| CE | County Current Expense | 0.3708482477 | $642,144 | $642,144 | $238.14 | | |
| ISLANDEMS | Hospital GEN (EMS) | 0.5000000000 | $642,144 | $642,144 | $321.07 | | |
| LIB | Library Sno-Isle GEN | 0.3153421757 | $642,144 | $642,144 | $202.50 | | |
| NWHIDPRMT | P & R N Whidbey GEN | 0.2004466701 | $642,144 | $642,144 | $128.72 | | |
| SCH201MO | School 201 Enrichment | 1.8559231640 | $642,144 | $642,144 | $1,191.77 | | |
| ST | State School | 1.3035497053 | $642,144 | $642,144 | $837.07 | | |
| ST2 | State School Part 2 | 0.8169543533 | $642,144 | $642,144 | $524.60 | | |
| | Total Tax Rate: | 8.4728839852 | | | | | |
| | | | | Taxes w/Current Exemptions: | $5,440.82 | | |
| | | | | Taxes w/o Exemptions: | $5,440.82 | | |
Improvement / Building
| Improvement #1: | RESIDENTIAL | State Code: | Y | 2514.0 sqft | Value: | $467,144 |
| Bathrooms: | 2.5 | Bedrooms: | 4 | | Ceiling: | DRYWALL PAINTED | Exterior Wall/Cover: | CEMENT FIBER | | Floor Covering: | HARDWOOD/CARP 20-80 | Floor Structure: | WOOD W/SUBFLOOR | | Foundation: | CONCRETE | Heating: | FHA GAS | | Interior Finish: | DRYWALL PAINT | Plumbing Fixture Cnt: | 14 | | Roof Slope: | 5" IN 12" | Roof Structure/Cover: | CJ ASPHALT |
|
| | Type | Description | Class CD | Sub Class CD | Year Built | Area |
| | BAS | BASE/MAIN FLOOR | 4 | 0 | 2014 | 982.0 |
| | UPS | UPPER STORY | 4 | 0 | 2014 | 1532.0 |
| | BIG | BUILT IN GARAGE | 4 | 0 | 2014 | 606.1 |
| | OWC | OPEN WOOD PORCH W/STEPS/ROOF/C | 4 | 0 | 2014 | 120.0 |
| | OWP | OPEN WOOD PORCH W/STEPS | 4 | 0 | 2014 | 160.0 |
Sketch
Property Image
Land
| 1 | 13 | SQ (06001-08000) | 0.0000 | 0.00 | 0.00 | 0.00 | 1.00 | $175,000 | $0 |
Roll Value History
| 2026 | N/A | N/A | N/A | N/A | N/A |
| 2025 | $467,144 | $175,000 | $0 | $642,144 | $642,144 |
| 2024 | $471,070 | $150,000 | $0 | $621,070 | $621,070 |
| 2023 | $480,849 | $150,000 | $0 | $630,849 | $630,849 |
| 2022 | $438,758 | $120,000 | $0 | $558,758 | $558,758 |
| 2021 | $384,669 | $85,000 | $0 | $469,669 | $469,669 |
| 2020 | $373,347 | $70,000 | $0 | $443,347 | $443,347 |
| 2019 | $280,380 | $140,000 | $0 | $420,380 | $420,380 |
| 2018 | $281,114 | $120,000 | $0 | $401,114 | $401,114 |
| 2017 | $268,021 | $120,000 | $0 | $388,021 | $388,021 |
| 2016 | $270,814 | $100,000 | $0 | $370,814 | $370,814 |
| 2015 | $273,604 | $60,000 | $0 | $333,604 | $333,604 |
| 2014 | $284,782 | $60,000 | $0 | $344,782 | $344,782 |
| 2013 | $0 | $60,000 | $0 | $60,000 | $60,000 |
| 2012 | $0 | $75,000 | $0 | $75,000 | $75,000 |
| 2011 | $0 | $12,285 | $0 | $12,285 | $12,285 |
Deed and Sales History
| 1 | 06/25/2020 | WD | Warranty Deed | GEORGE, JASON PHILIP | REYNDERS, MICHAEL P | | | $505,000.00 | 43642 | 4490421 |
| 2 | 01/16/2018 | WD | Warranty Deed | HALTON, SCOTT A | GEORGE, JASON PHILIP | | | $419,900.00 | 32654 | 4437700 |
| 3 | 03/27/2014 | WD | Warranty Deed | FAIRWAY POINT IV INC | HALTON, SCOTT A | | | $328,900.00 | 14750 | 4357188 |
| 4 | 10/15/2013 | WD | Warranty Deed | FP4 LLC | FAIRWAY POINT IV INC | | | $40,000.00 | 13154 | 4350048 |
Payout Agreement
| No payout information available.. |