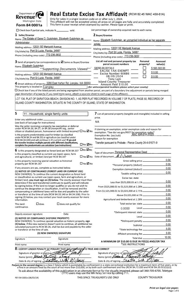
Property
Account |
| Property ID: | 810773 | Abbreviated Legal Description: | FAIRWAY POINT DIVISION 4 PRD LOT 178 |
| Geographic ID: | S6612-04-00178-0 | Agent Code: | |
| Type: | Real | | |
| Tax Area: | 100 - APPRAISER-OH Schl Dist, in OH | Land Use Code | 11 |
| Open Space: | N | DFL | N |
| Historic Property: | N | Remodel Property: | N |
| Multi-Family Redevelopment: | N | | |
| Township: | 32 | Section: | 4 |
| Range: | R1 |
Location |
| Address: | 1844 SW DOWNFIELD WAY OAK HARBOR, WA 98277 | Mapsco: | |
| Neighborhood: | Cycle 1 | Map ID: | 94 |
| Neighborhood CD: | 1 |
Owner |
| Name: | MCDANIEL, STUART A | Owner ID: | 294423 |
| Mailing Address: | KELEIGH A LEONARD PSC 561 BOX 2772 FPO, AP 96310-0028 | % Ownership: | 100.0000000000% |
| | | Exemptions: | |
Taxes and Assessment Details
Values
| (+) Improvement Homesite Value: | + | $0 | |
| (+) Improvement Non-Homesite Value: | + | $381,910 | |
| (+) Land Homesite Value: | + | $0 | |
| (+) Land Non-Homesite Value: | + | $175,000 | |
| (+) Curr Use (HS): | + | $0 | $0 |
| (+) Curr Use (NHS): | + | $0 | $0 |
| | | -------------------------- | |
| (=) Market Value: | = | $556,910 | |
| (–) Productivity Loss: | – | $0 | |
| | | -------------------------- | |
| (=) Subtotal: | = | $556,910 | |
| (+) Senior Appraised Value: | + | $0 | |
| (+) Non-Senior Appraised Value: | + | $556,910 | |
| | | -------------------------- | |
| (=) Total Appraised Value: | = | $556,910 | |
| (–) Senior Exemption Loss: | – | $0 | |
| (–) Exemption Loss: | – | $0 | |
| | | -------------------------- | |
| (=) Taxable Value: | = | $556,910 | |
Taxing Jurisdiction
| Owner: | MCDANIEL, STUART A | | |
| % Ownership: | 100.0000000000% | | |
| Total Value: | $556,910 | | |
| Tax Area: | 100 - APPRAISER-OH Schl Dist, in OH |
| CF | Conservation Futures | 0.0316035091 | $556,910 | $556,910 | $17.60 | | |
| CEM1 | Cemetery #1 | 0.0040320932 | $556,910 | $556,910 | $2.25 | | |
| COH | City of Oak Harbor | 2.3001546061 | $556,910 | $556,910 | $1,280.98 | | |
| OAKBOND | City of Oak Harbor BOND | 0.1926904192 | $556,910 | $556,910 | $107.31 | | |
| HOBOND | Hospital BOND | 0.1910887512 | $556,910 | $556,910 | $106.42 | | |
| HOGEN | Hospital GEN | 0.3902502903 | $556,910 | $556,910 | $217.33 | | |
| CE | County Current Expense | 0.3708482477 | $556,910 | $556,910 | $206.53 | | |
| ISLANDEMS | Hospital GEN (EMS) | 0.5000000000 | $556,910 | $556,910 | $278.46 | | |
| LIB | Library Sno-Isle GEN | 0.3153421757 | $556,910 | $556,910 | $175.62 | | |
| NWHIDPRMT | P & R N Whidbey GEN | 0.2004466701 | $556,910 | $556,910 | $111.63 | | |
| SCH201MO | School 201 Enrichment | 1.8559231640 | $556,910 | $556,910 | $1,033.58 | | |
| ST | State School | 1.3035497053 | $556,910 | $556,910 | $725.96 | | |
| ST2 | State School Part 2 | 0.8169543533 | $556,910 | $556,910 | $454.97 | | |
| | Total Tax Rate: | 8.4728839852 | | | | | |
| | | | | Taxes w/Current Exemptions: | $4,718.64 | | |
| | | | | Taxes w/o Exemptions: | $4,718.64 | | |
Improvement / Building
| Improvement #1: | RESIDENTIAL | State Code: | Y | 1551.0 sqft | Value: | $381,910 |
| Bathrooms: | 2 | Bedrooms: | 3 | | Ceiling: | DRYWALL PAINTED | Exterior Wall/Cover: | CEMENT FIBER | | Floor Covering: | HARDWOOD/CARP 60-40 | Floor Structure: | WOOD W/SUBFLOOR | | Foundation: | CONCRETE | Heating: | FHA GAS | | Interior Finish: | DRYWALL PAINT | Plumbing Fixture Cnt: | 12 | | Roof Slope: | 6" IN 12" | Roof Structure/Cover: | CJ ASPHALT |
|
| | Type | Description | Class CD | Sub Class CD | Year Built | Area |
| | BAS | BASE/MAIN FLOOR | 4 | 0 | 2013 | 1551.0 |
| | AGR | ATTACHED GARAGE | 4 | 0 | 2013 | 462.0 |
| | OP4 | OPEN PORCH W/CEILING-ROOF | 4 | 0 | 2013 | 152.0 |
| | OWC | OPEN WOOD PORCH W/STEPS/ROOF/C | 4 | 0 | 2013 | 132.9 |
Sketch
Property Image
Land
| 1 | 13 | SQ (06001-08000) | 0.0000 | 0.00 | 0.00 | 0.00 | 1.00 | $175,000 | $0 |
Roll Value History
| 2026 | N/A | N/A | N/A | N/A | N/A |
| 2025 | $381,910 | $175,000 | $0 | $556,910 | $556,910 |
| 2024 | $384,855 | $150,000 | $0 | $534,855 | $534,855 |
| 2023 | $378,546 | $150,000 | $0 | $528,546 | $528,546 |
| 2022 | $345,826 | $120,000 | $0 | $465,826 | $465,826 |
| 2021 | $303,031 | $85,000 | $0 | $388,031 | $388,031 |
| 2020 | $293,453 | $70,000 | $0 | $363,453 | $363,453 |
| 2019 | $213,787 | $140,000 | $0 | $353,787 | $353,787 |
| 2018 | $214,353 | $120,000 | $0 | $334,353 | $334,353 |
| 2017 | $207,536 | $120,000 | $0 | $327,536 | $327,536 |
| 2016 | $209,720 | $100,000 | $0 | $309,720 | $309,720 |
| 2015 | $211,905 | $60,000 | $0 | $271,905 | $271,905 |
| 2014 | $214,089 | $60,000 | $0 | $274,089 | $274,089 |
| 2013 | $0 | $60,000 | $0 | $60,000 | $60,000 |
| 2012 | $0 | $75,000 | $0 | $75,000 | $75,000 |
| 2011 | $0 | $12,285 | $0 | $12,285 | $12,285 |
Deed and Sales History
| 1 | 06/01/2020 | WD | Warranty Deed | PIERCE, WALTER | MCDANIEL, STUART A | | | $379,900.00 | 43227 | 4488119 |
| 2 | 01/23/2014 | WD | Warranty Deed | FAIRWAY POINT IV INC | PIERCE, WALTER | | | $269,900.00 | 14154 | 4354593 |
| 3 | 09/19/2013 | WD | Warranty Deed | FP4 LLC | FAIRWAY POINT IV INC | | | $120,000.00 | 13015 | 4349073 |
|   | |
Payout Agreement
| No payout information available.. |