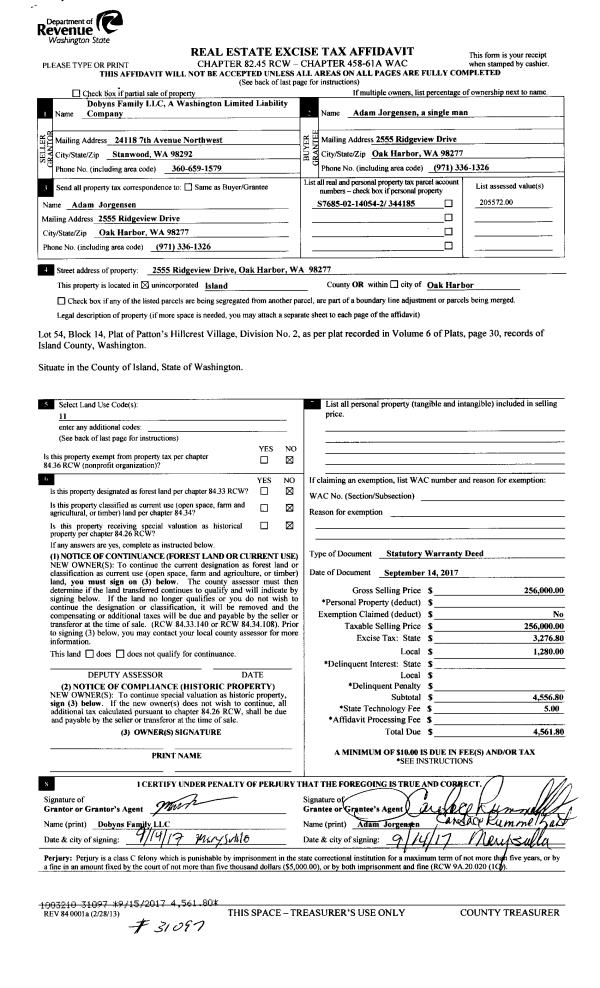
Property
Account |
| Property ID: | 810774 | Abbreviated Legal Description: | FAIRWAY POINT DIVISION 4 PRD LOT 179 |
| Geographic ID: | S6612-04-00179-0 | Agent Code: | |
| Type: | Real | | |
| Tax Area: | 100 - APPRAISER-OH Schl Dist, in OH | Land Use Code | 11 |
| Open Space: | N | DFL | N |
| Historic Property: | N | Remodel Property: | N |
| Multi-Family Redevelopment: | N | | |
| Township: | 32 | Section: | 4 |
| Range: | R1 |
Location |
| Address: | 1868 SW DOWNFIELD WAY OAK HARBOR, WA 98277 | Mapsco: | |
| Neighborhood: | Cycle 1 | Map ID: | 94 |
| Neighborhood CD: | 1 |
Owner |
| Name: | MONTOYA, MATTHEW J | Owner ID: | 265278 |
| Mailing Address: | JAIME E MONTOYA 1868 SW DOWNFIELD WAY OAK HARBOR, WA 98277-9745 | % Ownership: | 100.0000000000% |
| | | Exemptions: | |
Taxes and Assessment Details
Values
| (+) Improvement Homesite Value: | + | $0 | |
| (+) Improvement Non-Homesite Value: | + | $545,866 | |
| (+) Land Homesite Value: | + | $0 | |
| (+) Land Non-Homesite Value: | + | $175,000 | |
| (+) Curr Use (HS): | + | $0 | $0 |
| (+) Curr Use (NHS): | + | $0 | $0 |
| | | -------------------------- | |
| (=) Market Value: | = | $720,866 | |
| (–) Productivity Loss: | – | $0 | |
| | | -------------------------- | |
| (=) Subtotal: | = | $720,866 | |
| (+) Senior Appraised Value: | + | $0 | |
| (+) Non-Senior Appraised Value: | + | $720,866 | |
| | | -------------------------- | |
| (=) Total Appraised Value: | = | $720,866 | |
| (–) Senior Exemption Loss: | – | $0 | |
| (–) Exemption Loss: | – | $0 | |
| | | -------------------------- | |
| (=) Taxable Value: | = | $720,866 | |
Taxing Jurisdiction
| Owner: | MONTOYA, MATTHEW J | | |
| % Ownership: | 100.0000000000% | | |
| Total Value: | $720,866 | | |
| Tax Area: | 100 - APPRAISER-OH Schl Dist, in OH |
| CF | Conservation Futures | 0.0316035091 | $720,866 | $720,866 | $22.78 | | |
| CEM1 | Cemetery #1 | 0.0040320932 | $720,866 | $720,866 | $2.91 | | |
| COH | City of Oak Harbor | 2.3001546061 | $720,866 | $720,866 | $1,658.10 | | |
| OAKBOND | City of Oak Harbor BOND | 0.1926904192 | $720,866 | $720,866 | $138.90 | | |
| HOBOND | Hospital BOND | 0.1910887512 | $720,866 | $720,866 | $137.75 | | |
| HOGEN | Hospital GEN | 0.3902502903 | $720,866 | $720,866 | $281.32 | | |
| CE | County Current Expense | 0.3708482477 | $720,866 | $720,866 | $267.33 | | |
| ISLANDEMS | Hospital GEN (EMS) | 0.5000000000 | $720,866 | $720,866 | $360.43 | | |
| LIB | Library Sno-Isle GEN | 0.3153421757 | $720,866 | $720,866 | $227.32 | | |
| NWHIDPRMT | P & R N Whidbey GEN | 0.2004466701 | $720,866 | $720,866 | $144.50 | | |
| SCH201MO | School 201 Enrichment | 1.8559231640 | $720,866 | $720,866 | $1,337.87 | | |
| ST | State School | 1.3035497053 | $720,866 | $720,866 | $939.68 | | |
| ST2 | State School Part 2 | 0.8169543533 | $720,866 | $720,866 | $588.91 | | |
| | Total Tax Rate: | 8.4728839852 | | | | | |
| | | | | Taxes w/Current Exemptions: | $6,107.80 | | |
| | | | | Taxes w/o Exemptions: | $6,107.80 | | |
Improvement / Building
| Improvement #1: | RESIDENTIAL | State Code: | Y | 3053.6 sqft | Value: | $545,866 |
| Bathrooms: | 3 | Bedrooms: | 5 | | Ceiling: | DRYWALL PAINTED | Exterior Wall/Cover: | CEMENT FIBER | | Floor Covering: | HARDWOOD/CARP 60-40 | Floor Structure: | WOOD W/SUBFLOOR | | Foundation: | CONCRETE | Heating: | FHA GAS | | Interior Finish: | DRYWALL PAINT | Plumbing Fixture Cnt: | 15 | | Roof Slope: | 6" IN 12" | Roof Structure/Cover: | CJ ASPHALT |
|
| | Type | Description | Class CD | Sub Class CD | Year Built | Area |
| | BAS | BASE/MAIN FLOOR | 4 | 0 | 2014 | 1439.1 |
| | UPS | UPPER STORY | 4 | 0 | 2014 | 1614.5 |
| | BIG | BUILT IN GARAGE | 4 | 0 | 2014 | 670.0 |
| | OP4 | OPEN PORCH W/CEILING-ROOF | 4 | 0 | 2014 | 162.5 |
| | OWC | OPEN WOOD PORCH W/STEPS/ROOF/C | 4 | 0 | 2014 | 55.0 |
| | OWP | OPEN WOOD PORCH W/STEPS | 4 | 0 | 2014 | 44.0 |
Sketch
Property Image
Land
| 1 | 13 | SQ (06001-08000) | 0.1400 | 6098.40 | 0.00 | 0.00 | 1.00 | $175,000 | $0 |
Roll Value History
| 2026 | N/A | N/A | N/A | N/A | N/A |
| 2025 | $545,866 | $175,000 | $0 | $720,866 | $720,866 |
| 2024 | $550,342 | $150,000 | $0 | $700,342 | $700,342 |
| 2023 | $547,487 | $150,000 | $0 | $697,487 | $697,487 |
| 2022 | $499,596 | $120,000 | $0 | $619,596 | $619,596 |
| 2021 | $437,995 | $85,000 | $0 | $522,995 | $522,995 |
| 2020 | $425,547 | $70,000 | $0 | $495,547 | $495,547 |
| 2019 | $335,425 | $140,000 | $0 | $475,425 | $475,425 |
| 2018 | $336,306 | $120,000 | $0 | $456,306 | $456,306 |
| 2017 | $326,434 | $120,000 | $0 | $446,434 | $446,434 |
| 2016 | $329,834 | $100,000 | $0 | $429,834 | $429,834 |
| 2015 | $333,234 | $60,000 | $0 | $393,234 | $393,234 |
| 2014 | $340,035 | $60,000 | $0 | $400,035 | $400,035 |
| 2013 | $0 | $60,000 | $0 | $60,000 | $60,000 |
| 2012 | $0 | $75,000 | $0 | $75,000 | $75,000 |
| 2011 | $0 | $12,285 | $0 | $12,285 | $12,285 |
Deed and Sales History
| 1 | 06/10/2022 | WD | Warranty Deed | MILLER, JONATHAN | MONTOYA, MATTHEW J | | | $675,000.00 | 53506 | 4546861 |
| 2 | 05/31/2017 | WD | Warranty Deed | CARTUS FINANCIAL CORPORATION | MILLER, JONATHAN | | | $475,000.00 | 29793 | 4424427 |
| 3 | 05/08/2017 | WD | Warranty Deed | VASQUEZ, CHRISTIAN | CARTUS FINANCIAL CORPORATION | | | $475,000.00 | 29792 | 4424426 |
| 4 | 03/17/2014 | WD | Warranty Deed | FAIRWAY POINT IV INC | VASQUEZ, CHRISTIAN | | | $385,000.00 | 14766 | 4357325 |
| 5 | 02/19/2014 | WD | Warranty Deed | FP4 LLC | FAIRWAY POINT IV INC | | | $40,000.00 | 14364 | 4355643 |
Payout Agreement
| No payout information available.. |