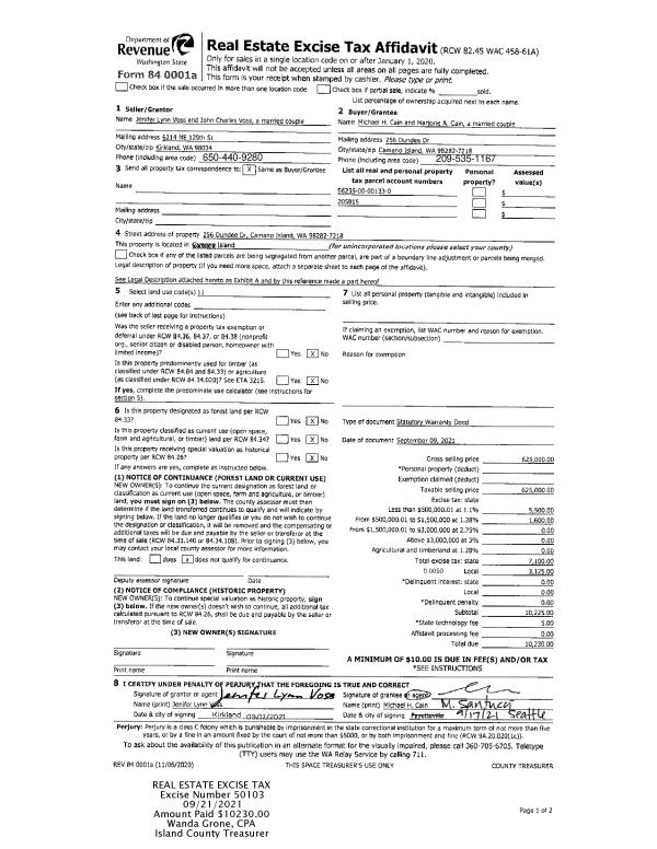
Property
Account |
| Property ID: | 810782 | Abbreviated Legal Description: | KOELLER LOT 2 |
| Geographic ID: | S8549-00-00002-0 | Agent Code: | |
| Type: | Real | | |
| Tax Area: | 712 - APPRAISER-S Whid Schl Dist, outside Langley, improved, greater than 1 acre | Land Use Code | 11 |
| Open Space: | N | DFL | N |
| Historic Property: | N | Remodel Property: | N |
| Multi-Family Redevelopment: | N | | |
| Township: | 29 | Section: | 02 |
| Range: | R3 |
Location |
| Address: | 4935 FIREWEED PLACE LANGLEY, WA 98260 | Mapsco: | |
| Neighborhood: | Cycle 4 | Map ID: | 722 |
| Neighborhood CD: | 4 |
Owner |
| Name: | RICE, JEFFREY M | Owner ID: | 258456 |
| Mailing Address: | SHARON V BETCHER PO BOX 385 LANGLEY, WA 98260 | % Ownership: | 100.0000000000% |
| | | Exemptions: | |
Taxes and Assessment Details
Values
| (+) Improvement Homesite Value: | + | $0 | |
| (+) Improvement Non-Homesite Value: | + | $836,156 | |
| (+) Land Homesite Value: | + | $0 | |
| (+) Land Non-Homesite Value: | + | $420,000 | |
| (+) Curr Use (HS): | + | $0 | $0 |
| (+) Curr Use (NHS): | + | $0 | $0 |
| | | -------------------------- | |
| (=) Market Value: | = | $1,256,156 | |
| (–) Productivity Loss: | – | $0 | |
| | | -------------------------- | |
| (=) Subtotal: | = | $1,256,156 | |
| (+) Senior Appraised Value: | + | $0 | |
| (+) Non-Senior Appraised Value: | + | $1,256,156 | |
| | | -------------------------- | |
| (=) Total Appraised Value: | = | $1,256,156 | |
| (–) Senior Exemption Loss: | – | $0 | |
| (–) Exemption Loss: | – | $0 | |
| | | -------------------------- | |
| (=) Taxable Value: | = | $1,256,156 | |
Taxing Jurisdiction
| Owner: | RICE, JEFFREY M | | |
| % Ownership: | 100.0000000000% | | |
| Total Value: | $1,256,156 | | |
| Tax Area: | 712 - APPRAISER-S Whid Schl Dist, outside Langley, improved, greater than 1 acre |
| CF | Conservation Futures | 0.0316035091 | $1,256,156 | $1,256,156 | $39.70 | | |
| FIRE3 | Fire & Rescue Dist #3 S Whidbey GEN | 1.2004855531 | $1,256,156 | $1,256,156 | $1,508.00 | | |
| HOBOND | Hospital BOND | 0.1910887512 | $1,256,156 | $1,256,156 | $240.04 | | |
| HOGEN | Hospital GEN | 0.3902502903 | $1,256,156 | $1,256,156 | $490.22 | | |
| CE | County Current Expense | 0.3708482477 | $1,256,156 | $1,256,156 | $465.84 | | |
| CR | County Roads | 0.4584763726 | $1,256,156 | $1,256,156 | $575.92 | | |
| ISLANDEMS | Hospital GEN (EMS) | 0.5000000000 | $1,256,156 | $1,256,156 | $628.08 | | |
| LIB | Library Sno-Isle GEN | 0.3153421757 | $1,256,156 | $1,256,156 | $396.12 | | |
| PORTWHID | Port of S Whidbey GEN | 0.1094540357 | $1,256,156 | $1,256,156 | $137.49 | | |
| SCH206BOND | School 206 BOND | 0.3161759235 | $1,256,156 | $1,256,156 | $397.17 | | |
| SCH206MO | School 206 Enrichment | 0.4547169547 | $1,256,156 | $1,256,156 | $571.20 | | |
| ST | State School | 1.3035497053 | $1,256,156 | $1,256,156 | $1,637.46 | | |
| ST2 | State School Part 2 | 0.8169543533 | $1,256,156 | $1,256,156 | $1,026.22 | | |
| SWHIDPRBD | P & R S Whidbey BOND | 0.0152817568 | $1,256,156 | $1,256,156 | $19.20 | | |
| SWHIDPRBD2 | P & R S Whidbey BOND2 | 0.0138911264 | $1,256,156 | $1,256,156 | $17.45 | | |
| SWHIDPRMT | P & R S Whidbey GEN | 0.2053334452 | $1,256,156 | $1,256,156 | $257.93 | | |
| | Total Tax Rate: | 6.6934522006 | | | | | |
| | | | | Taxes w/Current Exemptions: | $8,408.04 | | |
| | | | | Taxes w/o Exemptions: | $8,408.04 | | |
Improvement / Building
| Improvement #1: | RESIDENTIAL | State Code: | Y | 3524.5 sqft | Value: | $836,156 |
| Bathrooms: | 4 | Bedrooms: | 0 | | Ceiling: | DRYWALL PAINTED | Exterior Wall/Cover: | CEMENT FIBER | | Floor Covering: | COLORED CONCRETE | Floor Structure: | WOOD W/SUBFLOOR | | Foundation: | CONCRETE | Heating: | RADIANT FLOOR | | Interior Finish: | DRYWALL PAINT | Plumbing Fixture Cnt: | 20 | | Roof Slope: | 8" IN 12" | Roof Structure/Cover: | CJ ASPHALT |
|
| | Type | Description | Class CD | Sub Class CD | Year Built | Area |
| | BAS | BASE/MAIN FLOOR | 6 | 0 | 2005 | 2430.5 |
| | OP1 | OPEN PORCH SLAB | 6 | 0 | 2005 | 343.3 |
| | OP1 | OPEN PORCH SLAB | 6 | 0 | 2005 | 746.3 |
| | OP1 | OPEN PORCH SLAB | 6 | 0 | 2005 | 344.1 |
| | OP3 | OPEN PORCH W/ROOF | 6 | 0 | 2005 | 26.2 |
| | OP4 | OPEN PORCH W/CEILING-ROOF | 6 | 0 | 2005 | 30.8 |
| | BIG | BUILT IN GARAGE | 6 | 0 | 2005 | 720.0 |
| | UPS | UPPER STORY | 6 | 0 | 2005 | 800.0 |
| | LOF | LOFT | 6 | 0 | 2005 | 294.0 |
| | oPOL | POLE BARN | 6 | 0 | 2005 | 384.0 |
Sketch
Property Image
Land
| 1 | 32 | AC (03.01-09.99) | 5.1300 | 223462.80 | 0.00 | 0.00 | 1.00 | $420,000 | $0 |
Roll Value History
| 2026 | N/A | N/A | N/A | N/A | N/A |
| 2025 | $836,156 | $420,000 | $0 | $1,256,156 | $1,256,156 |
| 2024 | $845,623 | $420,000 | $0 | $1,265,623 | $1,265,623 |
| 2023 | $855,091 | $420,000 | $0 | $1,275,091 | $1,275,091 |
| 2022 | $781,671 | $400,000 | $0 | $1,181,671 | $1,181,671 |
| 2021 | $686,954 | $340,000 | $0 | $1,026,954 | $1,026,954 |
| 2020 | $641,968 | $340,000 | $0 | $981,968 | $981,968 |
| 2019 | $574,421 | $370,000 | $0 | $944,421 | $944,421 |
| 2018 | $576,003 | $250,000 | $0 | $826,003 | $826,003 |
| 2017 | $579,081 | $250,000 | $0 | $829,081 | $829,081 |
| 2016 | $585,404 | $250,000 | $0 | $835,404 | $835,404 |
| 2015 | $591,726 | $250,000 | $0 | $841,726 | $841,726 |
| 2014 | $595,198 | $186,949 | $0 | $782,147 | $782,147 |
| 2013 | $601,491 | $186,949 | $0 | $788,440 | $788,440 |
| 2012 | $564,900 | $186,949 | $0 | $751,849 | $751,849 |
| 2011 | $570,774 | $186,949 | $0 | $757,723 | $757,723 |
Deed and Sales History
| 1 | 06/28/2012 | WD | Warranty Deed | | RICE, JEFFREY M | | | $900,000.00 | 8115 | 4318263 |
|   | |
Payout Agreement
| No payout information available.. |