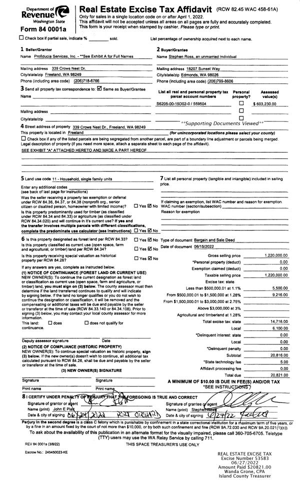
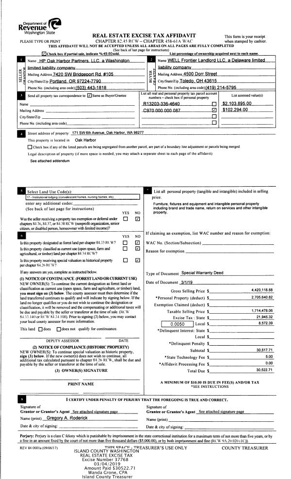
Property
Account |
| Property ID: | 81084 | Abbreviated Legal Description: | 60 - IN GL2:BG IP N CAM N ALG ELN RD 100' TPB N ALG RD 100' N79*E184.5' S101.91 S79*W165.98' TPB |
| Geographic ID: | R23115-327-4920 | Agent Code: | |
| Type: | Real | | |
| Tax Area: | 510 - APPRAISER-Stan/Cam Schl Dist, improved & 1 acre or less | Land Use Code | 11 |
| Open Space: | N | DFL | N |
| Historic Property: | N | Remodel Property: | N |
| Multi-Family Redevelopment: | N | | |
| Township: | 31 | Section: | 15 |
| Range: | R2 |
Location |
| Address: | 955 SANDS VIEW RD CAMANO ISLAND, WA 98282 | Mapsco: | |
| Neighborhood: | Cycle 5 | Map ID: | 486 |
| Neighborhood CD: | 5 |
Owner |
| Name: | CARD, SEANANN | Owner ID: | 302664 |
| Mailing Address: | 848 N SUNRISE BLVD STE 8 PMB 139 CAMANO ISLAND, WA 98282 | % Ownership: | 100.0000000000% |
| | | Exemptions: | |
Taxes and Assessment Details
Values
| (+) Improvement Homesite Value: | + | $0 | |
| (+) Improvement Non-Homesite Value: | + | $270,276 | |
| (+) Land Homesite Value: | + | $0 | |
| (+) Land Non-Homesite Value: | + | $280,000 | |
| (+) Curr Use (HS): | + | $0 | $0 |
| (+) Curr Use (NHS): | + | $0 | $0 |
| | | -------------------------- | |
| (=) Market Value: | = | $550,276 | |
| (–) Productivity Loss: | – | $0 | |
| | | -------------------------- | |
| (=) Subtotal: | = | $550,276 | |
| (+) Senior Appraised Value: | + | $0 | |
| (+) Non-Senior Appraised Value: | + | $550,276 | |
| | | -------------------------- | |
| (=) Total Appraised Value: | = | $550,276 | |
| (–) Senior Exemption Loss: | – | $0 | |
| (–) Exemption Loss: | – | $0 | |
| | | -------------------------- | |
| (=) Taxable Value: | = | $550,276 | |
Taxing Jurisdiction
| Owner: | CARD, SEANANN | | |
| % Ownership: | 100.0000000000% | | |
| Total Value: | $550,276 | | |
| Tax Area: | 510 - APPRAISER-Stan/Cam Schl Dist, improved & 1 acre or less |
| CF | Conservation Futures | 0.0316035091 | $550,276 | $550,276 | $17.39 | | |
| EMS1 | Fire & Rescue Dist #1 Camano GEN (EMS) | 0.3677864386 | $550,276 | $550,276 | $202.38 | | |
| FIRE1 | Fire & Rescue Dist #1 Camano GEN | 1.2502910536 | $550,276 | $550,276 | $688.01 | | |
| FIRE1BOND | Fire & Rescue Dist #1 Camano BOND | 0.1570001679 | $550,276 | $550,276 | $86.39 | | |
| CE | County Current Expense | 0.3708482477 | $550,276 | $550,276 | $204.07 | | |
| CR | County Roads | 0.4584763726 | $550,276 | $550,276 | $252.29 | | |
| LCIB | Library Sno-Isle BOND (Camano Island) | 0.0396325772 | $550,276 | $550,276 | $21.81 | | |
| LIB | Library Sno-Isle GEN | 0.3153421757 | $550,276 | $550,276 | $173.53 | | |
| SCH205_401 | School 205-401 Enrichment | 1.2698420524 | $550,276 | $550,276 | $698.76 | | |
| SCH205BOND | School 205-401 BOND | 0.9396497583 | $550,276 | $550,276 | $517.07 | | |
| ST | State School | 1.3035497053 | $550,276 | $550,276 | $717.31 | | |
| ST2 | State School Part 2 | 0.8169543533 | $550,276 | $550,276 | $449.55 | | |
| | Total Tax Rate: | 7.3209764117 | | | | | |
| | | | | Taxes w/Current Exemptions: | $4,028.56 | | |
| | | | | Taxes w/o Exemptions: | $4,028.56 | | |
Improvement / Building
| Improvement #1: | RESIDENTIAL | State Code: | Y | 1680.0 sqft | Value: | $270,276 |
| Bathrooms: | 1.75 | Bedrooms: | 2 | | Ceiling: | TONGUE & GROOVE | Exterior Wall/Cover: | VINYL | | Floor Covering: | HARDWOOD/CARP 60-40 | Floor Structure: | WOOD W/SUBFLOOR | | Foundation: | CONCRETE | Heating: | BASEBOARD ELECTRIC | | Interior Finish: | DRYWALL PAINT | Plumbing Fixture Cnt: | 9 | | Roof Slope: | 10" IN 12" | Roof Structure/Cover: | BEAM ASPHALT |
|
| | Type | Description | Class CD | Sub Class CD | Year Built | Area |
| | BAS | BASE/MAIN FLOOR | 3 | 0 | 1977 | 1056.0 |
| | OP1 | OPEN PORCH SLAB | 3 | 0 | 1977 | 192.0 |
| | OWP | OPEN WOOD PORCH W/STEPS | 3 | 0 | 1977 | 241.3 |
| | OWP | OPEN WOOD PORCH W/STEPS | 3 | 0 | 1977 | 58.9 |
| | LOF | LOFT | 3 | 0 | 1977 | 336.0 |
| | DWN | DOWNSTAIRS LIVING AREA | 3 | 0 | 1977 | 288.0 |
| | DGR | DETACHED GARAGE | 3 | 0 | 1977 | 650.0 |
Sketch
Property Image
Land
| 1 | 15 | SQ (12001-21780) | 0.4000 | 17424.00 | 0.00 | 0.00 | 1.00 | $280,000 | $0 |
Roll Value History
| 2026 | N/A | N/A | N/A | N/A | N/A |
| 2025 | $270,276 | $280,000 | $0 | $550,276 | $550,276 |
| 2024 | $279,154 | $270,000 | $0 | $549,154 | $549,154 |
| 2023 | $282,815 | $270,000 | $0 | $552,815 | $552,815 |
| 2022 | $259,409 | $240,000 | $0 | $499,409 | $499,409 |
| 2021 | $198,490 | $160,000 | $0 | $358,490 | $358,490 |
| 2020 | $193,894 | $150,000 | $0 | $343,894 | $343,894 |
| 2019 | $133,377 | $180,000 | $0 | $313,377 | $313,377 |
| 2018 | $133,832 | $150,000 | $0 | $283,832 | $283,832 |
| 2017 | $134,733 | $150,000 | $0 | $284,733 | $284,733 |
| 2016 | $136,555 | $110,000 | $0 | $246,555 | $246,555 |
| 2015 | $118,054 | $65,000 | $0 | $183,054 | $183,054 |
| 2014 | $119,628 | $65,000 | $0 | $184,628 | $184,628 |
| 2013 | $121,202 | $41,600 | $0 | $162,802 | $162,802 |
| 2012 | $122,777 | $41,600 | $0 | $164,377 | $164,377 |
| 2011 | $124,351 | $52,000 | $0 | $176,351 | $176,351 |
| 2010 | $131,712 | $52,000 | $0 | $183,712 | $183,712 |
| 2009 | $133,591 | $90,000 | $0 | $223,591 | $223,591 |
| 2008 | $135,409 | $83,460 | $0 | $218,869 | $218,869 |
| 2007 | $137,227 | $83,460 | $0 | $220,687 | $220,687 |
Deed and Sales History
| 1 | 01/06/2022 | WD | Warranty Deed | GIRAUD, JAYCIE | CARD, SEANANN | | | $650,000.00 | 51665 | 4537950 |
| 2 | 03/05/2019 | WD | Warranty Deed | CARRATALA JR, RINALDO G | GIRAUD, JAYCIE | | | $418,750.00 | 37852 | 4460410 |
| 3 | 07/13/2018 | WD | Warranty Deed | KNAPIK, MAXINE B | CARRATALA JR, RINALDO G | | | $339,000.00 | 34987 | 4447947 |
| 4 | 10/03/2012 | PRD | Personal Representatives Deed | KNAPIK, BERNARD F | KNAPIK, MAXINE B | | | $0.00 | 9235 | 4325721 |
| 5 | 01/01/1900 | OTHER | Other - Misc. Documents | Unknown | KNAPIK, BERNARD F | | | $0.00 | 0 | 0 |
Payout Agreement
| No payout information available.. |