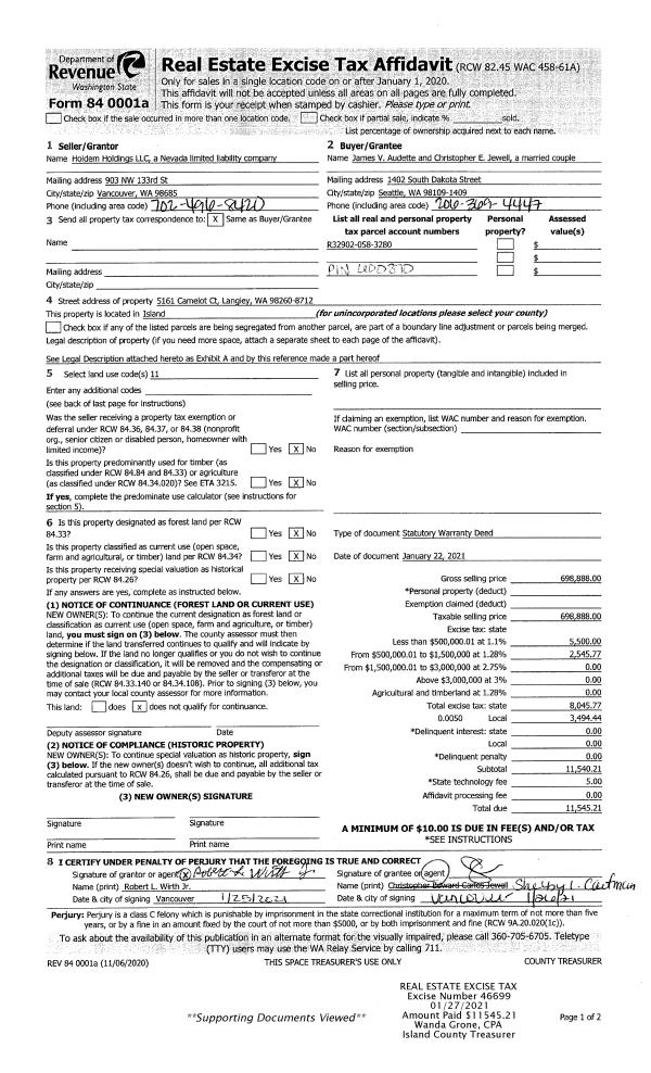
Property
Account |
| Property ID: | 810877 | Abbreviated Legal Description: | S511.12' OF E426.13' OF N/2 NE SE MEAS ALG ELN & SLN SD N/2 EX PT IF ANY LY WITHIN MORTLAND DR |
| Geographic ID: | R32809-228-4930 | Agent Code: | |
| Type: | Real | | |
| Tax Area: | 710 - APPRAISER-S Whid Schl Dist, outside Langley, improved & 1 acre or less | Land Use Code | 11 |
| Open Space: | N | DFL | N |
| Historic Property: | N | Remodel Property: | N |
| Multi-Family Redevelopment: | N | | |
| Township: | 28 | Section: | 09 |
| Range: | R3 |
Location |
| Address: | 7822 MORTLAND DR CLINTON, WA 98236 | Mapsco: | |
| Neighborhood: | Cycle 4 | Map ID: | 694 |
| Neighborhood CD: | 4 |
Owner |
| Name: | MOORE, WARREN G | Owner ID: | 277265 |
| Mailing Address: | KRISTINE A NEMETH-MOORE 7822 MORTLAND DRIVE CLINTON, WA 98236 | % Ownership: | 100.0000000000% |
| | | Exemptions: | |
Taxes and Assessment Details
Values
| (+) Improvement Homesite Value: | + | $0 | |
| (+) Improvement Non-Homesite Value: | + | $403,846 | |
| (+) Land Homesite Value: | + | $0 | |
| (+) Land Non-Homesite Value: | + | $370,000 | |
| (+) Curr Use (HS): | + | $0 | $0 |
| (+) Curr Use (NHS): | + | $0 | $0 |
| | | -------------------------- | |
| (=) Market Value: | = | $773,846 | |
| (–) Productivity Loss: | – | $0 | |
| | | -------------------------- | |
| (=) Subtotal: | = | $773,846 | |
| (+) Senior Appraised Value: | + | $0 | |
| (+) Non-Senior Appraised Value: | + | $773,846 | |
| | | -------------------------- | |
| (=) Total Appraised Value: | = | $773,846 | |
| (–) Senior Exemption Loss: | – | $0 | |
| (–) Exemption Loss: | – | $0 | |
| | | -------------------------- | |
| (=) Taxable Value: | = | $773,846 | |
Taxing Jurisdiction
| Owner: | MOORE, WARREN G | | |
| % Ownership: | 100.0000000000% | | |
| Total Value: | $773,846 | | |
| Tax Area: | 710 - APPRAISER-S Whid Schl Dist, outside Langley, improved & 1 acre or less |
| CF | Conservation Futures | 0.0316035091 | $773,846 | $773,846 | $24.46 | | |
| FIRE3 | Fire & Rescue Dist #3 S Whidbey GEN | 1.2004855531 | $773,846 | $773,846 | $928.99 | | |
| HOBOND | Hospital BOND | 0.1910887512 | $773,846 | $773,846 | $147.87 | | |
| HOGEN | Hospital GEN | 0.3902502903 | $773,846 | $773,846 | $301.99 | | |
| CE | County Current Expense | 0.3708482477 | $773,846 | $773,846 | $286.98 | | |
| CR | County Roads | 0.4584763726 | $773,846 | $773,846 | $354.79 | | |
| ISLANDEMS | Hospital GEN (EMS) | 0.5000000000 | $773,846 | $773,846 | $386.92 | | |
| LIB | Library Sno-Isle GEN | 0.3153421757 | $773,846 | $773,846 | $244.03 | | |
| PORTWHID | Port of S Whidbey GEN | 0.1094540357 | $773,846 | $773,846 | $84.70 | | |
| SCH206BOND | School 206 BOND | 0.3161759235 | $773,846 | $773,846 | $244.67 | | |
| SCH206MO | School 206 Enrichment | 0.4547169547 | $773,846 | $773,846 | $351.88 | | |
| ST | State School | 1.3035497053 | $773,846 | $773,846 | $1,008.75 | | |
| ST2 | State School Part 2 | 0.8169543533 | $773,846 | $773,846 | $632.20 | | |
| SWHIDPRBD | P & R S Whidbey BOND | 0.0152817568 | $773,846 | $773,846 | $11.83 | | |
| SWHIDPRBD2 | P & R S Whidbey BOND2 | 0.0138911264 | $773,846 | $773,846 | $10.75 | | |
| SWHIDPRMT | P & R S Whidbey GEN | 0.2053334452 | $773,846 | $773,846 | $158.90 | | |
| | Total Tax Rate: | 6.6934522006 | | | | | |
| | | | | Taxes w/Current Exemptions: | $5,179.71 | | |
| | | | | Taxes w/o Exemptions: | $5,179.71 | | |
Improvement / Building
| Improvement #1: | RESIDENTIAL | State Code: | Y | 2218.0 sqft | Value: | $403,846 |
| Bathrooms: | 2.5 | Bedrooms: | 2 | | Ceiling: | DRYWALL PAINTED | Cooling: | HEAT PUMP/CONV/V | | Floor Covering: | CARPET/VINYL 20-80 | Floor Structure: | WOOD W/SUBFLOOR | | Foundation: | CONCRETE | Interior Finish: | DRYWALL PAINT | | Plumbing Fixture Cnt: | 14 | Roof Slope: | 5" IN 12" | | Roof Structure/Cover: | CJ ASPHALT |   |   |
|
| | Type | Description | Class CD | Sub Class CD | Year Built | Area |
| | BAS | BASE/MAIN FLOOR | 4 | 0 | 2019 | 2218.0 |
| | AGR | ATTACHED GARAGE | 4 | 0 | 2019 | 576.0 |
| | OWR | OPEN WOOD PORCH W/STEPS/ROOF | 4 | 0 | 2019 | 144.0 |
| | OWR | OPEN WOOD PORCH W/STEPS/ROOF | 4 | 0 | 2019 | 40.0 |
| | OWP | OPEN WOOD PORCH W/STEPS | 4 | 0 | 2019 | 158.0 |
Sketch
Property Image
Land
| 1 | 32 | AC (03.01-09.99) | 5.0000 | 217800.00 | 0.00 | 0.00 | 1.00 | $370,000 | $0 |
Roll Value History
| 2026 | N/A | N/A | N/A | N/A | N/A |
| 2025 | $403,846 | $370,000 | $0 | $773,846 | $773,846 |
| 2024 | $407,103 | $350,000 | $0 | $757,103 | $757,103 |
| 2023 | $410,360 | $330,000 | $0 | $740,360 | $740,360 |
| 2022 | $374,546 | $280,000 | $0 | $654,546 | $654,546 |
| 2021 | $329,100 | $230,000 | $0 | $559,100 | $559,100 |
| 2020 | $320,932 | $190,000 | $0 | $510,932 | $510,932 |
| 2019 | $235,055 | $135,000 | $0 | $370,055 | $370,055 |
| 2018 | $0 | $130,000 | $0 | $130,000 | $130,000 |
| 2017 | $0 | $100,000 | $0 | $100,000 | $100,000 |
| 2016 | $0 | $100,000 | $0 | $100,000 | $100,000 |
| 2015 | $0 | $100,000 | $0 | $100,000 | $100,000 |
| 2014 | $0 | $90,000 | $0 | $90,000 | $90,000 |
| 2013 | $0 | $90,000 | $0 | $90,000 | $90,000 |
| 2012 | $0 | $65,000 | $0 | $65,000 | $65,000 |
| 2011 | $0 | $67,745 | $0 | $67,745 | $67,745 |
Deed and Sales History
| 1 | 10/20/2016 | WD | Warranty Deed | RYAN'S HOUSE FOR YOUTH | MOORE, WARREN G | | | $109,000.00 | 26624 | 4409830 |
| 2 | 02/27/2012 | WD | Warranty Deed | LUBINSKI, GERALD / CHRISTEN | RYAN'S HOUSE FOR YOUTH | | | $0.00 | 7057 | 4311196 |
Payout Agreement
| No payout information available.. |