Property
Account |
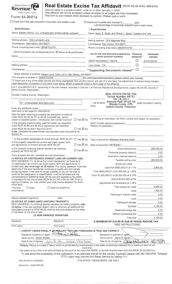
| Property ID: | 810939 | Abbreviated Legal Description: | BG PT 44 RODS (726') N OF SECR OF NE/4 W968' TPB W1800' TO CLN SEC 18 N1090' TP 56 RODS (924') FR NLN SEC 18 E1800' S TPB TGW FOLL DESC: BG PT 247.5'N OF SECR OF NE/4 W2640' N478.5' E2640' S478.5' TPB EX E30' & EX S212' OF E515' EX E816.92' EX PT LY S |
| Geographic ID: | R32918-290-4920 | Agent Code: | |
| Type: | Real | | |
| Tax Area: | 812 - APPRAISER-S Whid Schl Dist, outside Langley, improved, greater than 1 acre | Land Use Code | 83 |
| Open Space: | Y | DFL | N |
| Historic Property: | N | Remodel Property: | N |
| Multi-Family Redevelopment: | N | | |
| Township: | 29 | Section: | 18 |
| Range: | R3 |
Location |
| Address: | | Mapsco: | |
| Neighborhood: | Cycle 4 | Map ID: | 787 |
| Neighborhood CD: | 4 |
Owner |
| Name: | GABELEIN, RAYMOND E | Owner ID: | 180073 |
| Mailing Address: | LAURIE J GABELEIN 5785 BAYVIEW RD LANGLEY, WA 98260-9732 | % Ownership: | 100.0000000000% |
| | | Exemptions: | |
Taxes and Assessment Details
Values
| (+) Improvement Homesite Value: | + | $0 | |
| (+) Improvement Non-Homesite Value: | + | $3,000 | |
| (+) Land Homesite Value: | + | $0 | |
| (+) Land Non-Homesite Value: | + | $0 | |
| (+) Curr Use (HS): | + | $0 | $0 |
| (+) Curr Use (NHS): | + | $280,000 | $1,127 |
| | | -------------------------- | |
| (=) Market Value: | = | $283,000 | |
| (–) Productivity Loss: | – | $278,873 | |
| | | -------------------------- | |
| (=) Subtotal: | = | $4,127 | |
| (+) Senior Appraised Value: | + | $0 | |
| (+) Non-Senior Appraised Value: | + | $4,127 | |
| | | -------------------------- | |
| (=) Total Appraised Value: | = | $4,127 | |
| (–) Senior Exemption Loss: | – | $0 | |
| (–) Exemption Loss: | – | $0 | |
| | | -------------------------- | |
| (=) Taxable Value: | = | $4,127 | |
Taxing Jurisdiction
| Owner: | GABELEIN, RAYMOND E | | |
| % Ownership: | 100.0000000000% | | |
| Total Value: | $283,000 | | |
| Tax Area: | 812 - APPRAISER-S Whid Schl Dist, outside Langley, improved, greater than 1 acre |
| CF | Conservation Futures | 0.0316035091 | $4,127 | $4,127 | $0.13 | | |
| FIRE3 | Fire & Rescue Dist #3 S Whidbey GEN | 1.2004855531 | $4,127 | $4,127 | $4.95 | | |
| HOBOND | Hospital BOND | 0.1910887512 | $4,127 | $4,127 | $0.79 | | |
| HOGEN | Hospital GEN | 0.3902502903 | $4,127 | $4,127 | $1.61 | | |
| CE | County Current Expense | 0.3708482477 | $4,127 | $4,127 | $1.53 | | |
| CR | County Roads | 0.4584763726 | $4,127 | $4,127 | $1.89 | | |
| ISLANDEMS | Hospital GEN (EMS) | 0.5000000000 | $4,127 | $4,127 | $2.06 | | |
| LIB | Library Sno-Isle GEN | 0.3153421757 | $4,127 | $4,127 | $1.30 | | |
| PORTWHID | Port of S Whidbey GEN | 0.1094540357 | $4,127 | $4,127 | $0.45 | | |
| SCH206BOND | School 206 BOND | 0.3161759235 | $4,127 | $4,127 | $1.30 | | |
| SCH206MO | School 206 Enrichment | 0.4547169547 | $4,127 | $4,127 | $1.88 | | |
| ST | State School | 1.3035497053 | $4,127 | $4,127 | $5.38 | | |
| ST2 | State School Part 2 | 0.8169543533 | $4,127 | $4,127 | $3.37 | | |
| SWHIDPRBD | P & R S Whidbey BOND | 0.0152817568 | $4,127 | $4,127 | $0.06 | | |
| SWHIDPRBD2 | P & R S Whidbey BOND2 | 0.0138911264 | $4,127 | $4,127 | $0.06 | | |
| SWHIDPRMT | P & R S Whidbey GEN | 0.2053334452 | $4,127 | $4,127 | $0.85 | | |
| | Total Tax Rate: | 6.6934522006 | | | | | |
| | | | | Taxes w/Current Exemptions: | $27.61 | | |
| | | | | Taxes w/o Exemptions: | $27.61 | | |
Improvement / Building
| Improvement #1: | RESIDENTIAL | State Code: | Y | 0.0 sqft | Value: | $3,000 |
Sketch
Property Image
Land
| 1 | 32 | AC (03.01-09.99) | 6.6600 | 290109.60 | 0.00 | 0.00 | 1.00 | $280,000 | $1,127 |
Roll Value History
| 2026 | N/A | N/A | N/A | N/A | N/A |
| 2025 | $3,000 | $280,000 | $1,127 | $4,127 | $4,127 |
| 2024 | $3,000 | $280,000 | $1,127 | $4,127 | $4,127 |
| 2023 | $3,000 | $240,000 | $1,127 | $4,127 | $4,127 |
| 2022 | $3,000 | $230,000 | $1,127 | $4,127 | $4,127 |
| 2021 | $3,000 | $190,000 | $1,127 | $4,127 | $4,127 |
| 2020 | $3,000 | $170,000 | $1,127 | $4,127 | $4,127 |
| 2019 | $3,000 | $170,000 | $1,127 | $4,127 | $4,127 |
| 2018 | $3,000 | $160,000 | $1,127 | $4,127 | $4,127 |
| 2017 | $3,000 | $160,000 | $1,127 | $4,127 | $4,127 |
| 2016 | $3,000 | $160,000 | $1,127 | $4,127 | $4,127 |
| 2015 | $3,000 | $160,000 | $1,127 | $4,127 | $4,127 |
| 2014 | $10,085 | $233,100 | $1,127 | $11,212 | $11,212 |
| 2013 | $10,085 | $152,847 | $1,127 | $11,212 | $11,212 |
| 2012 | $10,085 | $152,847 | $1,127 | $11,212 | $11,212 |
| 2011 | $10,085 | $268,830 | $1,127 | $11,212 | $11,212 |
Deed and Sales History
Payout Agreement
| No payout information available.. |