Property
Account |
| Property ID: | 810976 | Abbreviated Legal Description: | IN NE NE: BG NECR SEC 25 S ALG ELN SD SEC 25 1319.78' TO SECR SD NE NE S84*W ALG SLN SD NE NE 1280.42' TO CTRLN ANDERSON RD N84*E30.08' TPB ON ELY LN SD RD N84*E109.92' N1*W PARA/W CLN SD RD 75.20' S84*W PARA/W SLN SD NE NE 109.92' TO ELY LN SD RD S1*E AL |
| Geographic ID: | R32925-407-3940 | Agent Code: | |
| Type: | Real | | |
| Tax Area: | 720 - APPRAISER-S Whid Schl Dist, Special District, improved & less than 1 acre | Land Use Code | 11 |
| Open Space: | N | DFL | N |
| Historic Property: | N | Remodel Property: | N |
| Multi-Family Redevelopment: | N | | |
| Township: | 29 | Section: | 25 |
| Range: | R3 |
Location |
| Address: | 6499 ANDERSON RD CLINTON, WA 98236 | Mapsco: | |
| Neighborhood: | Cycle 4 | Map ID: | 815 |
| Neighborhood CD: | 4 |
Owner |
| Name: | MCCAULEY, LAWRENCE M | Owner ID: | 188371 |
| Mailing Address: | ELIZABETH L MCCAULEY PO BOX 799 CLINTON, WA 98236-0799 | % Ownership: | 100.0000000000% |
| | | Exemptions: | |
Taxes and Assessment Details
Values
| (+) Improvement Homesite Value: | + | $0 | |
| (+) Improvement Non-Homesite Value: | + | $260,882 | |
| (+) Land Homesite Value: | + | $0 | |
| (+) Land Non-Homesite Value: | + | $340,000 | |
| (+) Curr Use (HS): | + | $0 | $0 |
| (+) Curr Use (NHS): | + | $0 | $0 |
| | | -------------------------- | |
| (=) Market Value: | = | $600,882 | |
| (–) Productivity Loss: | – | $0 | |
| | | -------------------------- | |
| (=) Subtotal: | = | $600,882 | |
| (+) Senior Appraised Value: | + | $0 | |
| (+) Non-Senior Appraised Value: | + | $600,882 | |
| | | -------------------------- | |
| (=) Total Appraised Value: | = | $600,882 | |
| (–) Senior Exemption Loss: | – | $0 | |
| (–) Exemption Loss: | – | $0 | |
| | | -------------------------- | |
| (=) Taxable Value: | = | $600,882 | |
Taxing Jurisdiction
| Owner: | MCCAULEY, LAWRENCE M | | |
| % Ownership: | 100.0000000000% | | |
| Total Value: | $600,882 | | |
| Tax Area: | 720 - APPRAISER-S Whid Schl Dist, Special District, improved & less than 1 acre |
| CF | Conservation Futures | 0.0316035091 | $600,882 | $600,882 | $18.99 | | |
| FIRE3 | Fire & Rescue Dist #3 S Whidbey GEN | 1.2004855531 | $600,882 | $600,882 | $721.35 | | |
| HOBOND | Hospital BOND | 0.1910887512 | $600,882 | $600,882 | $114.82 | | |
| HOGEN | Hospital GEN | 0.3902502903 | $600,882 | $600,882 | $234.49 | | |
| CE | County Current Expense | 0.3708482477 | $600,882 | $600,882 | $222.84 | | |
| CR | County Roads | 0.4584763726 | $600,882 | $600,882 | $275.49 | | |
| ISLANDEMS | Hospital GEN (EMS) | 0.5000000000 | $600,882 | $600,882 | $300.44 | | |
| LIB | Library Sno-Isle GEN | 0.3153421757 | $600,882 | $600,882 | $189.48 | | |
| PORTWHID | Port of S Whidbey GEN | 0.1094540357 | $600,882 | $600,882 | $65.77 | | |
| SCH206BOND | School 206 BOND | 0.3161759235 | $600,882 | $600,882 | $189.98 | | |
| SCH206MO | School 206 Enrichment | 0.4547169547 | $600,882 | $600,882 | $273.23 | | |
| ST | State School | 1.3035497053 | $600,882 | $600,882 | $783.28 | | |
| ST2 | State School Part 2 | 0.8169543533 | $600,882 | $600,882 | $490.89 | | |
| SWHIDPRBD | P & R S Whidbey BOND | 0.0152817568 | $600,882 | $600,882 | $9.18 | | |
| SWHIDPRBD2 | P & R S Whidbey BOND2 | 0.0138911264 | $600,882 | $600,882 | $8.35 | | |
| SWHIDPRMT | P & R S Whidbey GEN | 0.2053334452 | $600,882 | $600,882 | $123.38 | | |
| | Total Tax Rate: | 6.6934522006 | | | | | |
| | | | | Taxes w/Current Exemptions: | $4,021.96 | | |
| | | | | Taxes w/o Exemptions: | $4,021.96 | | |
Improvement / Building
| Improvement #1: | RESIDENTIAL | State Code: | Y | 1591.5 sqft | Value: | $260,882 |
| Bathrooms: | 2 | Bedrooms: | 2 | | Ceiling: | DRY WALL SPRAYED | Exterior Wall/Cover: | WOOD SIDING | | Floor Covering: | CARPET/VINYL 80-20 | Floor Structure: | WOOD W/SUBFLOOR | | Foundation: | CONCRETE | Heating: | FHA GAS | | Interior Finish: | DRYWALL PAINT | Plumbing Fixture Cnt: | 9 | | Roof Slope: | 4" IN 12" | Roof Structure/Cover: | CJ ASPHALT |
|
| | Type | Description | Class CD | Sub Class CD | Year Built | Area |
| | BAS | BASE/MAIN FLOOR | 3 | 0 | 1983 | 1591.5 |
| | AGR | ATTACHED GARAGE | 3 | 0 | 1983 | 500.0 |
| | OWP | OPEN WOOD PORCH W/STEPS | 3 | 0 | 1983 | 424.4 |
Sketch
Property Image
Land
| 1 | 15 | SQ (12001-21780) | 0.0000 | 0.00 | 0.00 | 0.00 | 1.00 | $340,000 | $0 |
Roll Value History
| 2026 | N/A | N/A | N/A | N/A | N/A |
| 2025 | $260,882 | $340,000 | $0 | $600,882 | $600,882 |
| 2024 | $264,349 | $320,000 | $0 | $584,349 | $584,349 |
| 2023 | $267,816 | $300,000 | $0 | $567,816 | $567,816 |
| 2022 | $245,650 | $280,000 | $0 | $525,650 | $525,650 |
| 2021 | $216,336 | $230,000 | $0 | $446,336 | $446,336 |
| 2020 | $208,966 | $180,000 | $0 | $388,966 | $388,966 |
| 2019 | $152,956 | $190,000 | $0 | $342,956 | $342,956 |
| 2018 | $153,438 | $160,000 | $0 | $313,438 | $313,438 |
| 2017 | $148,608 | $150,000 | $0 | $298,608 | $298,608 |
| 2016 | $150,538 | $150,000 | $0 | $300,538 | $300,538 |
| 2015 | $152,467 | $150,000 | $0 | $302,467 | $302,467 |
| 2014 | $149,971 | $150,000 | $0 | $299,971 | $299,971 |
| 2013 | $151,956 | $150,000 | $0 | $301,956 | $301,956 |
| 2012 | $153,940 | $150,000 | $0 | $303,940 | $303,940 |
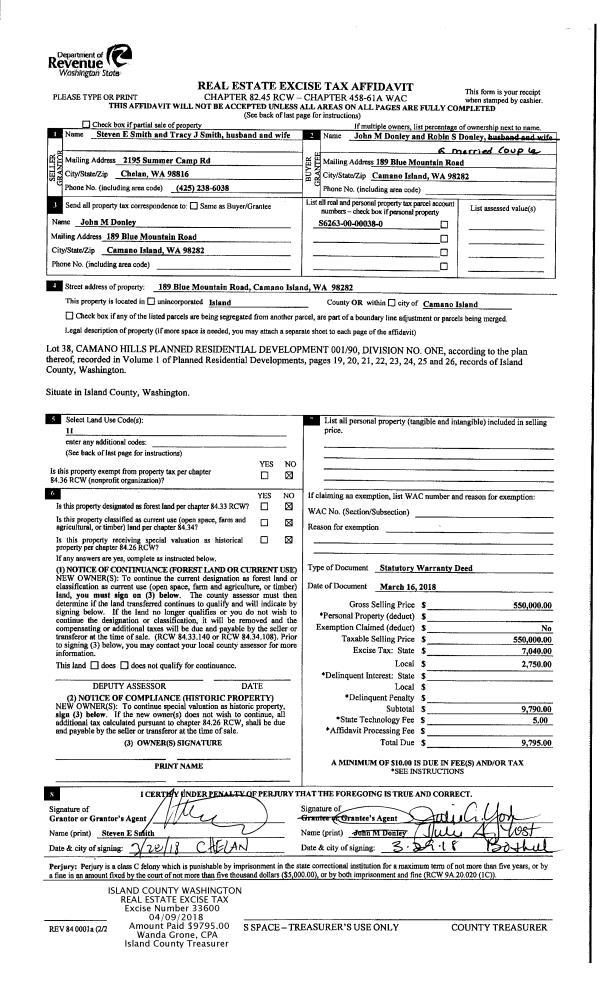
Deed and Sales History
| 1 | 02/13/2018 | WD | Warranty Deed | THORSEN, LES | MCCAULEY, LAWRENCE M | | | $370,000.00 | 32945 | 4439232 |
Payout Agreement
| No payout information available.. |