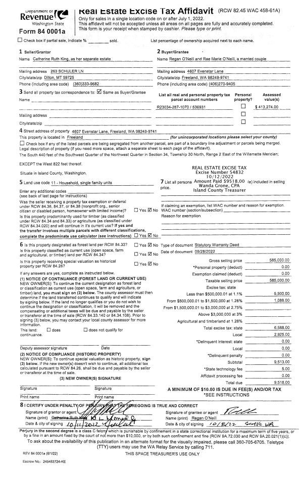
Property
Account |
| Property ID: | 811286 | Abbreviated Legal Description: | JUNIPER BEACH CONDO UNIT B |
| Geographic ID: | S8552-00-0000B-0 | Agent Code: | |
| Type: | Real | | |
| Tax Area: | 580 - APPRAISER-Stan/Cam Schl Dist, Special Dist, improved & less than 1 acre | Land Use Code | 14 |
| Open Space: | N | DFL | N |
| Historic Property: | N | Remodel Property: | N |
| Multi-Family Redevelopment: | N | | |
| Township: | 32 | Section: | 27 |
| Range: | R3 |
Location |
| Address: | 1406 OCEAN DR UNIT B CAMANO ISLAND, WA 98282 | Mapsco: | |
| Neighborhood: | Cycle 5 | Map ID: | 980 |
| Neighborhood CD: | 5 |
Owner |
| Name: | STUBRUD, RICHARD G | Owner ID: | 290308 |
| Mailing Address: | MOLLY K STUBRUD 1406 OCEAN DR CAMANO ISLAND, WA 98282 | % Ownership: | 100.0000000000% |
| | | Exemptions: | |
Taxes and Assessment Details
Values
| (+) Improvement Homesite Value: | + | $0 | |
| (+) Improvement Non-Homesite Value: | + | $220,043 | |
| (+) Land Homesite Value: | + | $0 | |
| (+) Land Non-Homesite Value: | + | $550,000 | |
| (+) Curr Use (HS): | + | $0 | $0 |
| (+) Curr Use (NHS): | + | $0 | $0 |
| | | -------------------------- | |
| (=) Market Value: | = | $770,043 | |
| (–) Productivity Loss: | – | $0 | |
| | | -------------------------- | |
| (=) Subtotal: | = | $770,043 | |
| (+) Senior Appraised Value: | + | $0 | |
| (+) Non-Senior Appraised Value: | + | $770,043 | |
| | | -------------------------- | |
| (=) Total Appraised Value: | = | $770,043 | |
| (–) Senior Exemption Loss: | – | $0 | |
| (–) Exemption Loss: | – | $0 | |
| | | -------------------------- | |
| (=) Taxable Value: | = | $770,043 | |
Taxing Jurisdiction
| Owner: | STUBRUD, RICHARD G | | |
| % Ownership: | 100.0000000000% | | |
| Total Value: | $770,043 | | |
| Tax Area: | 580 - APPRAISER-Stan/Cam Schl Dist, Special Dist, improved & less than 1 acre |
| CF | Conservation Futures | 0.0316035091 | $770,043 | $770,043 | $24.34 | | |
| EMS1 | Fire & Rescue Dist #1 Camano GEN (EMS) | 0.3677864386 | $770,043 | $770,043 | $283.21 | | |
| FIRE1 | Fire & Rescue Dist #1 Camano GEN | 1.2502910536 | $770,043 | $770,043 | $962.78 | | |
| FIRE1BOND | Fire & Rescue Dist #1 Camano BOND | 0.1570001679 | $770,043 | $770,043 | $120.90 | | |
| CE | County Current Expense | 0.3708482477 | $770,043 | $770,043 | $285.57 | | |
| CR | County Roads | 0.4584763726 | $770,043 | $770,043 | $353.05 | | |
| LCIB | Library Sno-Isle BOND (Camano Island) | 0.0396325772 | $770,043 | $770,043 | $30.52 | | |
| LIB | Library Sno-Isle GEN | 0.3153421757 | $770,043 | $770,043 | $242.83 | | |
| SCH205_401 | School 205-401 Enrichment | 1.2698420524 | $770,043 | $770,043 | $977.83 | | |
| SCH205BOND | School 205-401 BOND | 0.9396497583 | $770,043 | $770,043 | $723.57 | | |
| ST | State School | 1.3035497053 | $770,043 | $770,043 | $1,003.79 | | |
| ST2 | State School Part 2 | 0.8169543533 | $770,043 | $770,043 | $629.09 | | |
| | Total Tax Rate: | 7.3209764117 | | | | | |
| | | | | Taxes w/Current Exemptions: | $5,637.48 | | |
| | | | | Taxes w/o Exemptions: | $5,637.48 | | |
Improvement / Building
| Improvement #1: | RESIDENTIAL | State Code: | Y | 1321.3 sqft | Value: | $220,043 |
| Bathrooms: | 1.75 | Bedrooms: | 2 | | Ceiling: | DRYWALL PAINTED | Exterior Wall/Cover: | CEMENT FIBER | | Floor Covering: | CARPET/VINYL 60-40 | Floor Structure: | WOOD W/SUBFLOOR | | Foundation: | CONCRETE | Heating: | WALL HEAT ELECTRIC | | Interior Finish: | DRYWALL PAINT | Plumbing Fixture Cnt: | 10 | | Roof Slope: | 10" IN 12" | Roof Structure/Cover: | CJ ASPHALT |
|
| | Type | Description | Class CD | Sub Class CD | Year Built | Area |
| | BAS | BASE/MAIN FLOOR | 3 | 0 | 1983 | 668.8 |
| | UPS | UPPER STORY | 3 | 0 | 1983 | 652.5 |
| | OWP | OPEN WOOD PORCH W/STEPS | 3 | 0 | 1983 | 480.3 |
Sketch
Property Image
Land
| 1 | LB | LOW BANK | 0.0000 | 0.00 | 25.00 | 0.00 | 1.00 | $550,000 | $0 |
Roll Value History
| 2026 | N/A | N/A | N/A | N/A | N/A |
| 2025 | $220,043 | $550,000 | $0 | $770,043 | $770,043 |
| 2024 | $222,892 | $550,000 | $0 | $772,892 | $772,892 |
| 2023 | $225,741 | $550,000 | $0 | $775,741 | $775,741 |
| 2022 | $207,001 | $550,000 | $0 | $757,001 | $757,001 |
| 2021 | $186,713 | $450,000 | $0 | $636,713 | $636,713 |
| 2020 | $181,731 | $427,500 | $0 | $609,231 | $609,231 |
| 2019 | $130,070 | $325,000 | $0 | $455,070 | $455,070 |
| 2018 | $130,470 | $216,000 | $0 | $346,470 | $346,470 |
| 2017 | $131,236 | $180,000 | $0 | $311,236 | $311,236 |
| 2016 | $132,837 | $180,000 | $0 | $312,837 | $312,837 |
| 2015 | $129,001 | $191,049 | $0 | $320,050 | $320,050 |
| 2014 | $130,613 | $191,049 | $0 | $321,662 | $321,662 |
| 2013 | $132,226 | $191,049 | $0 | $323,275 | $323,275 |
| 2012 | $133,838 | $191,049 | $0 | $324,887 | $324,887 |
Deed and Sales History
| 1 | 06/13/2019 | QCD | Quit Claim Deed | STUBRUD, MOLLY K | STUBRUD, RICHARD G | | | $0.00 | 39027 | 4465623 |
| 2 | 10/06/2011 | QCD | Quit Claim Deed | STUBRUD, MOLLY K | | | | | 6636 | 4308190 |
| 3 | 10/06/2011 | QCD | Quit Claim Deed | SLATER ET AL, ANTONIA E | STUBRUD, MOLLY K | | | | 6308 | 4305764 |
Payout Agreement
| No payout information available.. |