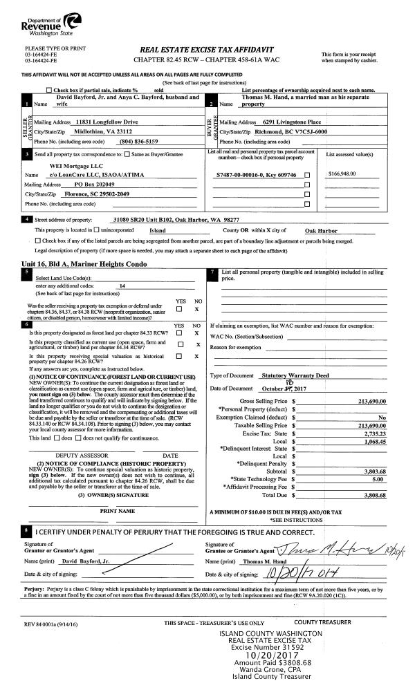
Property
Account |
| Property ID: | 811310 | Abbreviated Legal Description: | FISH FOREST PRD LOT 2 |
| Geographic ID: | S8548-00-00002-0 | Agent Code: | |
| Type: | Real | | |
| Tax Area: | 760 - APPRAISER-S Whid Schl Dist, Special District, improved & less than 1 acre | Land Use Code | 11 |
| Open Space: | N | DFL | N |
| Historic Property: | N | Remodel Property: | N |
| Multi-Family Redevelopment: | N | | |
| Township: | 29 | Section: | 15 |
| Range: | R2 |
Location |
| Address: | 1523 KING SALMON CT FREELAND, WA 98249 | Mapsco: | |
| Neighborhood: | Cycle 3 | Map ID: | 330 |
| Neighborhood CD: | 3 |
Owner |
| Name: | SMITH, CLARK I | Owner ID: | 282212 |
| Mailing Address: | MERRY SMITH 1523 KING SALMON CT FREELAND, WA 98249 | % Ownership: | 100.0000000000% |
| | | Exemptions: | |
Taxes and Assessment Details
Values
| (+) Improvement Homesite Value: | + | $0 | |
| (+) Improvement Non-Homesite Value: | + | $416,640 | |
| (+) Land Homesite Value: | + | $0 | |
| (+) Land Non-Homesite Value: | + | $260,000 | |
| (+) Curr Use (HS): | + | $0 | $0 |
| (+) Curr Use (NHS): | + | $0 | $0 |
| | | -------------------------- | |
| (=) Market Value: | = | $676,640 | |
| (–) Productivity Loss: | – | $0 | |
| | | -------------------------- | |
| (=) Subtotal: | = | $676,640 | |
| (+) Senior Appraised Value: | + | $0 | |
| (+) Non-Senior Appraised Value: | + | $676,640 | |
| | | -------------------------- | |
| (=) Total Appraised Value: | = | $676,640 | |
| (–) Senior Exemption Loss: | – | $0 | |
| (–) Exemption Loss: | – | $0 | |
| | | -------------------------- | |
| (=) Taxable Value: | = | $676,640 | |
Taxing Jurisdiction
| Owner: | SMITH, CLARK I | | |
| % Ownership: | 100.0000000000% | | |
| Total Value: | $676,640 | | |
| Tax Area: | 760 - APPRAISER-S Whid Schl Dist, Special District, improved & less than 1 acre |
| CF | Conservation Futures | 0.0316035091 | $676,640 | $676,640 | $21.38 | | |
| FIRE3 | Fire & Rescue Dist #3 S Whidbey GEN | 1.2004855531 | $676,640 | $676,640 | $812.30 | | |
| HOBOND | Hospital BOND | 0.1910887512 | $676,640 | $676,640 | $129.30 | | |
| HOGEN | Hospital GEN | 0.3902502903 | $676,640 | $676,640 | $264.06 | | |
| CE | County Current Expense | 0.3708482477 | $676,640 | $676,640 | $250.93 | | |
| CR | County Roads | 0.4584763726 | $676,640 | $676,640 | $310.22 | | |
| ISLANDEMS | Hospital GEN (EMS) | 0.5000000000 | $676,640 | $676,640 | $338.32 | | |
| LIB | Library Sno-Isle GEN | 0.3153421757 | $676,640 | $676,640 | $213.37 | | |
| PORTWHID | Port of S Whidbey GEN | 0.1094540357 | $676,640 | $676,640 | $74.06 | | |
| SCH206BOND | School 206 BOND | 0.3161759235 | $676,640 | $676,640 | $213.94 | | |
| SCH206MO | School 206 Enrichment | 0.4547169547 | $676,640 | $676,640 | $307.68 | | |
| ST | State School | 1.3035497053 | $676,640 | $676,640 | $882.03 | | |
| ST2 | State School Part 2 | 0.8169543533 | $676,640 | $676,640 | $552.78 | | |
| SWHIDPRBD | P & R S Whidbey BOND | 0.0152817568 | $676,640 | $676,640 | $10.34 | | |
| SWHIDPRBD2 | P & R S Whidbey BOND2 | 0.0138911264 | $676,640 | $676,640 | $9.40 | | |
| SWHIDPRMT | P & R S Whidbey GEN | 0.2053334452 | $676,640 | $676,640 | $138.94 | | |
| | Total Tax Rate: | 6.6934522006 | | | | | |
| | | | | Taxes w/Current Exemptions: | $4,529.05 | | |
| | | | | Taxes w/o Exemptions: | $4,529.05 | | |
Improvement / Building
| Improvement #1: | RESIDENTIAL | State Code: | Y | 2022.7 sqft | Value: | $416,640 |
| Bathrooms: | 2.5 | Bedrooms: | 3 | | Ceiling: | DRYWALL PAINTED | Cooling: | HEAT PUMP/CONV/V | | Exterior Wall/Cover: | CEMENT FIBER | Floor Covering: | HARDWOOD/CARP 60-40 | | Floor Structure: | WOOD W/SUBFLOOR | Foundation: | CONCRETE | | Interior Finish: | DRYWALL PAINT | Plumbing Fixture Cnt: | 13 | | Roof Slope: | 4" IN 12" | Roof Structure/Cover: | CJ ASPHALT |
|
| | Type | Description | Class CD | Sub Class CD | Year Built | Area |
| | BAS | BASE/MAIN FLOOR | 3 | 0 | 2017 | 2022.7 |
| | AGR | ATTACHED GARAGE | 3 | 0 | 2017 | 637.1 |
| | OP4 | OPEN PORCH W/CEILING-ROOF | 3 | 0 | 2017 | 100.0 |
Sketch
Property Image
Land
| 1 | 16 | AC (00.51-01.00) | 0.6300 | 27442.80 | 0.00 | 0.00 | 1.00 | $260,000 | $0 |
Roll Value History
| 2026 | N/A | N/A | N/A | N/A | N/A |
| 2025 | $416,640 | $260,000 | $0 | $676,640 | $676,640 |
| 2024 | $420,055 | $230,000 | $0 | $650,055 | $650,055 |
| 2023 | $423,470 | $230,000 | $0 | $653,470 | $653,470 |
| 2022 | $386,548 | $220,000 | $0 | $606,548 | $606,548 |
| 2021 | $338,818 | $160,000 | $0 | $498,818 | $498,818 |
| 2020 | $328,704 | $130,000 | $0 | $458,704 | $458,704 |
| 2019 | $301,122 | $170,000 | $0 | $471,122 | $471,122 |
| 2018 | $301,888 | $130,000 | $0 | $431,888 | $431,888 |
| 2017 | $209,310 | $60,000 | $0 | $269,310 | $269,310 |
| 2016 | $0 | $60,000 | $0 | $60,000 | $60,000 |
| 2015 | $0 | $60,000 | $0 | $60,000 | $60,000 |
| 2014 | $0 | $75,000 | $0 | $75,000 | $75,000 |
| 2013 | $0 | $75,000 | $0 | $75,000 | $75,000 |
| 2012 | $0 | $34,950 | $0 | $34,950 | $34,950 |
Deed and Sales History
| 1 | 09/28/2017 | WD | Warranty Deed | CRAIG IZETT LLC | SMITH, CLARK I | | | $439,000.00 | 31308 | 4431120 |
| 2 | 03/16/2017 | WD | Warranty Deed | WEIMER TRUSTEE, WAYNE | CRAIG IZETT LLC | | | $70,000.00 | 28678 | 4419901 |
| 3 | 12/09/2014 | QCD | Quit Claim Deed | SILVER FIN INVESTMENTS LLC | WEIMER TRUSTEE, WAYNE | | | $0.00 | 17926 | 4370298 |
Payout Agreement
| No payout information available.. |