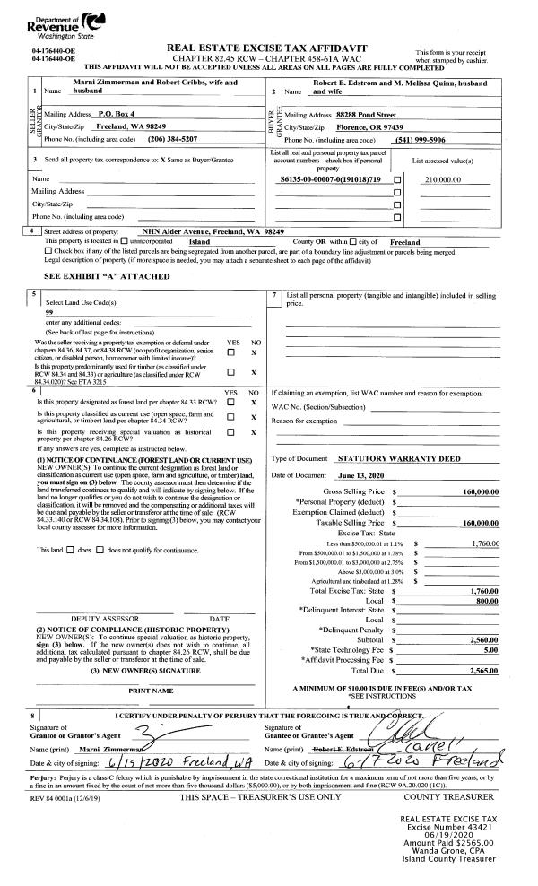
Property
Account |
| Property ID: | 811328 | Abbreviated Legal Description: | MENLO BCH PT LOTS 13 & 33 DESC: BG NWCR SD LOT 13 S39*W ALG WLN LOT 13 500.84' TPB S39*W311.09' TO ORDHITDLN S47*E ALG ORDHITDLN 31.06' S44*E ALG ORDHITDLN 38.43' N39*E316.29' N50*W69.66' TPB INCL ADJ TIDES |
| Geographic ID: | S7505-00-00033-0 | Agent Code: | |
| Type: | Real | | |
| Tax Area: | 710 - APPRAISER-S Whid Schl Dist, outside Langley, improved & 1 acre or less | Land Use Code | 11 |
| Open Space: | N | DFL | N |
| Historic Property: | N | Remodel Property: | N |
| Multi-Family Redevelopment: | N | | |
| Township: | | Section: | |
| Range: | |
Location |
| Address: | 5694 MORGAN VIEW LN FREELAND, WA 98249 | Mapsco: | |
| Neighborhood: | Cycle 3 | Map ID: | 333 |
| Neighborhood CD: | 3 |
Owner |
| Name: | REINER, DANIEL J | Owner ID: | 261179 |
| Mailing Address: | JERI ANN MORGAN-REINER 1951 SUNSET AVE SW SEATTLE, WA 98116 | % Ownership: | 100.0000000000% |
| | | Exemptions: | |
Taxes and Assessment Details
Values
| (+) Improvement Homesite Value: | + | $0 | |
| (+) Improvement Non-Homesite Value: | + | $693,028 | |
| (+) Land Homesite Value: | + | $0 | |
| (+) Land Non-Homesite Value: | + | $2,300,700 | |
| (+) Curr Use (HS): | + | $0 | $0 |
| (+) Curr Use (NHS): | + | $0 | $0 |
| | | -------------------------- | |
| (=) Market Value: | = | $2,993,728 | |
| (–) Productivity Loss: | – | $0 | |
| | | -------------------------- | |
| (=) Subtotal: | = | $2,993,728 | |
| (+) Senior Appraised Value: | + | $0 | |
| (+) Non-Senior Appraised Value: | + | $2,993,728 | |
| | | -------------------------- | |
| (=) Total Appraised Value: | = | $2,993,728 | |
| (–) Senior Exemption Loss: | – | $0 | |
| (–) Exemption Loss: | – | $0 | |
| | | -------------------------- | |
| (=) Taxable Value: | = | $2,993,728 | |
Taxing Jurisdiction
| Owner: | REINER, DANIEL J | | |
| % Ownership: | 100.0000000000% | | |
| Total Value: | $2,993,728 | | |
| Tax Area: | 710 - APPRAISER-S Whid Schl Dist, outside Langley, improved & 1 acre or less |
| CF | Conservation Futures | 0.0316035091 | $2,993,728 | $2,993,728 | $94.61 | | |
| FIRE3 | Fire & Rescue Dist #3 S Whidbey GEN | 1.2004855531 | $2,993,728 | $2,993,728 | $3,593.93 | | |
| HOBOND | Hospital BOND | 0.1910887512 | $2,993,728 | $2,993,728 | $572.07 | | |
| HOGEN | Hospital GEN | 0.3902502903 | $2,993,728 | $2,993,728 | $1,168.30 | | |
| CE | County Current Expense | 0.3708482477 | $2,993,728 | $2,993,728 | $1,110.22 | | |
| CR | County Roads | 0.4584763726 | $2,993,728 | $2,993,728 | $1,372.55 | | |
| ISLANDEMS | Hospital GEN (EMS) | 0.5000000000 | $2,993,728 | $2,993,728 | $1,496.86 | | |
| LIB | Library Sno-Isle GEN | 0.3153421757 | $2,993,728 | $2,993,728 | $944.05 | | |
| PORTWHID | Port of S Whidbey GEN | 0.1094540357 | $2,993,728 | $2,993,728 | $327.68 | | |
| SCH206BOND | School 206 BOND | 0.3161759235 | $2,993,728 | $2,993,728 | $946.54 | | |
| SCH206MO | School 206 Enrichment | 0.4547169547 | $2,993,728 | $2,993,728 | $1,361.30 | | |
| ST | State School | 1.3035497053 | $2,993,728 | $2,993,728 | $3,902.47 | | |
| ST2 | State School Part 2 | 0.8169543533 | $2,993,728 | $2,993,728 | $2,445.74 | | |
| SWHIDPRBD | P & R S Whidbey BOND | 0.0152817568 | $2,993,728 | $2,993,728 | $45.75 | | |
| SWHIDPRBD2 | P & R S Whidbey BOND2 | 0.0138911264 | $2,993,728 | $2,993,728 | $41.59 | | |
| SWHIDPRMT | P & R S Whidbey GEN | 0.2053334452 | $2,993,728 | $2,993,728 | $614.71 | | |
| | Total Tax Rate: | 6.6934522006 | | | | | |
| | | | | Taxes w/Current Exemptions: | $20,038.37 | | |
| | | | | Taxes w/o Exemptions: | $20,038.37 | | |
Improvement / Building
| Improvement #1: | RESIDENTIAL | State Code: | Y | 2663.8 sqft | Value: | $693,028 |
| Bathrooms: | 3.5 | Bedrooms: | 2 | | Ceiling: | BEAM PAINTED | Exterior Wall/Cover: | CEMENT FIBER | | Floor Covering: | HARDWOOD/CARP 60-40 | Floor Structure: | WOOD W/SUBFLOOR | | Foundation: | CONCRETE | Heating: | FHA GAS | | Interior Finish: | DRYWALL PAINT | Plumbing Fixture Cnt: | 14 | | Roof Slope: | 3" IN 12" | Roof Structure/Cover: | STEEL TERNE |
|
| | Type | Description | Class CD | Sub Class CD | Year Built | Area |
| | BAS | BASE/MAIN FLOOR | 4 | 0 | 2011 | 2663.8 |
| | DGR | DETACHED GARAGE | 4 | 0 | 2011 | 660.0 |
| | OP4 | OPEN PORCH W/CEILING-ROOF | 4 | 0 | 2011 | 124.0 |
| | OP4 | OPEN PORCH W/CEILING-ROOF | 4 | 0 | 2011 | 240.0 |
| | OP4 | OPEN PORCH W/CEILING-ROOF | 4 | 0 | 2011 | 135.0 |
| | OP1 | OPEN PORCH SLAB | 4 | 0 | 2011 | 155.2 |
Sketch
Property Image
Land
| 1 | LB | LOW BANK | 0.5000 | 21780.00 | 70.00 | 0.00 | 1.00 | $2,300,000 | $0 |
| 2 | 55 | TIDES | 0.0000 | 0.00 | 70.00 | 0.00 | 1.00 | $700 | $0 |
Roll Value History
| 2026 | N/A | N/A | N/A | N/A | N/A |
| 2025 | $693,028 | $2,300,700 | $0 | $2,993,728 | $2,993,728 |
| 2024 | $688,773 | $2,300,700 | $0 | $2,989,473 | $2,989,473 |
| 2023 | $695,021 | $2,300,700 | $0 | $2,995,721 | $2,995,721 |
| 2022 | $634,188 | $2,000,700 | $0 | $2,634,888 | $2,634,888 |
| 2021 | $555,987 | $1,300,700 | $0 | $1,856,687 | $1,856,687 |
| 2020 | $540,230 | $1,050,700 | $0 | $1,590,930 | $1,590,930 |
| 2019 | $393,249 | $1,100,700 | $0 | $1,493,949 | $1,493,949 |
| 2018 | $394,316 | $950,700 | $0 | $1,345,016 | $1,345,016 |
| 2017 | $396,446 | $950,700 | $0 | $1,347,146 | $1,347,146 |
| 2016 | $400,708 | $950,700 | $0 | $1,351,408 | $1,351,408 |
| 2015 | $404,972 | $950,700 | $0 | $1,355,672 | $1,355,672 |
| 2014 | $409,235 | $950,700 | $0 | $1,359,935 | $1,359,935 |
| 2013 | $329,351 | $1,046,079 | $0 | $1,375,430 | $1,375,430 |
| 2012 | $332,747 | $1,046,079 | $0 | $1,378,826 | $1,378,826 |
| 2011 | $316,361 | $1,046,079 | $0 | $1,362,440 | $1,362,440 |
| 2010 | $0 | $1,315,347 | $0 | $1,315,347 | $1,315,347 |
Deed and Sales History
| 1 | 12/08/2010 | QCD | Quit Claim Deed | MORGAN TRUSTEE, ALLEN JEROME | REINER, DANIEL J | | | | 3181 | 4287104 |
Payout Agreement
| No payout information available.. |