Property
Account |
| Property ID: | 811363 | Abbreviated Legal Description: | 9 - PT NE NW DESC: BG NECR OF NW/4 N88*W288.14' S1*E40' TPB S1*W410' N88*W583' S1*W467' S88*E837.62' N1*E877.01' N88*W257.98' TPB |
| Geographic ID: | R13208-461-2330 | Agent Code: | |
| Type: | Real | | |
| Tax Area: | 112 - APPRAISER-OH Schl Dist, outside OH, improved, greater than 1 acre | Land Use Code | 11 |
| Open Space: | N | DFL | N |
| Historic Property: | N | Remodel Property: | N |
| Multi-Family Redevelopment: | N | | |
| Township: | 32 | Section: | 08 |
| Range: | R1 |
Location |
| Address: | 2285 ZYLSTRA RD OAK HARBOR, WA 98277 | Mapsco: | |
| Neighborhood: | Cycle 1 | Map ID: | 110 |
| Neighborhood CD: | 1 |
Owner |
| Name: | HUTCHENS, HARRISON E | Owner ID: | 314356 |
| Mailing Address: | ANNA A HENDRICKS 2285 ZYLSTRA RD OAK HARBOR, WA 98277 | % Ownership: | 100.0000000000% |
| | | Exemptions: | |
Taxes and Assessment Details
Values
| (+) Improvement Homesite Value: | + | $0 | |
| (+) Improvement Non-Homesite Value: | + | $262,485 | |
| (+) Land Homesite Value: | + | $0 | |
| (+) Land Non-Homesite Value: | + | $350,000 | |
| (+) Curr Use (HS): | + | $0 | $0 |
| (+) Curr Use (NHS): | + | $0 | $0 |
| | | -------------------------- | |
| (=) Market Value: | = | $612,485 | |
| (–) Productivity Loss: | – | $0 | |
| | | -------------------------- | |
| (=) Subtotal: | = | $612,485 | |
| (+) Senior Appraised Value: | + | $0 | |
| (+) Non-Senior Appraised Value: | + | $612,485 | |
| | | -------------------------- | |
| (=) Total Appraised Value: | = | $612,485 | |
| (–) Senior Exemption Loss: | – | $0 | |
| (–) Exemption Loss: | – | $0 | |
| | | -------------------------- | |
| (=) Taxable Value: | = | $612,485 | |
Taxing Jurisdiction
| Owner: | HUTCHENS, HARRISON E | | |
| % Ownership: | 100.0000000000% | | |
| Total Value: | $612,485 | | |
| Tax Area: | 112 - APPRAISER-OH Schl Dist, outside OH, improved, greater than 1 acre |
| CF | Conservation Futures | 0.0316035091 | $612,485 | $612,485 | $19.36 | | |
| CEM1 | Cemetery #1 | 0.0040320932 | $612,485 | $612,485 | $2.47 | | |
| FIRE2 | Fire & Rescue Dist #2 N Whidbey GEN | 0.5475949600 | $612,485 | $612,485 | $335.39 | | |
| HOBOND | Hospital BOND | 0.1910887512 | $612,485 | $612,485 | $117.04 | | |
| HOGEN | Hospital GEN | 0.3902502903 | $612,485 | $612,485 | $239.02 | | |
| CE | County Current Expense | 0.3708482477 | $612,485 | $612,485 | $227.14 | | |
| CR | County Roads | 0.4584763726 | $612,485 | $612,485 | $280.81 | | |
| ISLANDEMS | Hospital GEN (EMS) | 0.5000000000 | $612,485 | $612,485 | $306.24 | | |
| LIB | Library Sno-Isle GEN | 0.3153421757 | $612,485 | $612,485 | $193.14 | | |
| NWHIDPRMT | P & R N Whidbey GEN | 0.2004466701 | $612,485 | $612,485 | $122.77 | | |
| SCH201MO | School 201 Enrichment | 1.8559231640 | $612,485 | $612,485 | $1,136.73 | | |
| ST | State School | 1.3035497053 | $612,485 | $612,485 | $798.40 | | |
| ST2 | State School Part 2 | 0.8169543533 | $612,485 | $612,485 | $500.37 | | |
| | Total Tax Rate: | 6.9861102925 | | | | | |
| | | | | Taxes w/Current Exemptions: | $4,278.88 | | |
| | | | | Taxes w/o Exemptions: | $4,278.88 | | |
Improvement / Building
| Improvement #1: | RESIDENTIAL | State Code: | Y | 1935.5 sqft | Value: | $262,485 |
| Bathrooms: | 1 | Bedrooms: | 2 | | Ceiling: | DRYWALL PAINTED | Cooling: | HEAT PUMP/CONV/V | | Exterior Wall/Cover: | WOOD SIDING | Floor Covering: | VINYL 100% | | Floor Structure: | WOOD W/SUBFLOOR | Foundation: | CONCRETE | | Interior Finish: | DRYWALL PAINT | Plumbing Fixture Cnt: | 6 | | Roof Slope: | 8" IN 12" | Roof Structure/Cover: | CJ ASPHALT |
|
| | Type | Description | Class CD | Sub Class CD | Year Built | Area |
| | BAS | BASE/MAIN FLOOR | 3 | 0 | 1950 | 1023.5 |
| | DWN | DOWNSTAIRS LIVING AREA | 3 | 0 | 1950 | 912.0 |
| | OWP | OPEN WOOD PORCH W/STEPS | 3 | 0 | 1950 | 210.0 |
| | oBAR | BARN | 3 | 0 | 1950 | 800.0 |
| | OP2 | OPEN PORCH W/STEPS | 3 | 0 | 1950 | 920.0 |
Sketch
| No sketches available for this property. |
Property Image
Land
| 1 | 91 | UNDEVELOPED LAND-METES AND BOUNDS | 10.4100 | 453459.60 | 0.00 | 0.00 | 1.00 | $130,000 | $0 |
| 2 | HS | HOMESITE | 1.0000 | 43560.00 | 0.00 | 0.00 | 1.00 | $220,000 | $0 |
Roll Value History
| 2026 | N/A | N/A | N/A | N/A | N/A |
| 2025 | $262,485 | $350,000 | $0 | $612,485 | $612,485 |
| 2024 | $243,285 | $310,000 | $0 | $553,285 | $553,285 |
| 2023 | $246,475 | $290,000 | $0 | $536,475 | $536,475 |
| 2022 | $194,049 | $270,000 | $0 | $464,049 | $464,049 |
| 2021 | $170,894 | $255,000 | $0 | $425,894 | $425,894 |
| 2020 | $176,292 | $200,000 | $0 | $376,292 | $376,292 |
| 2019 | $125,615 | $230,000 | $0 | $355,615 | $355,615 |
| 2018 | $89,454 | $170,000 | $0 | $259,454 | $259,454 |
| 2017 | $52,181 | $160,000 | $0 | $212,181 | $212,181 |
| 2016 | $53,425 | $160,000 | $0 | $213,425 | $213,425 |
| 2015 | $54,667 | $150,000 | $0 | $204,667 | $204,667 |
| 2014 | $55,908 | $136,920 | $0 | $192,828 | $192,828 |
| 2013 | $57,151 | $136,920 | $0 | $194,071 | $194,071 |
Deed and Sales History
| 1 | 10/23/2024 | WD | Warranty Deed | VANPELT, STEPHANIE | HUTCHENS, HARRISON E | | | $640,000.00 | 61683 | 4578676 |
| 2 | 05/31/2022 | WD | Warranty Deed | WOOLEY, ERIN | VANPELT, STEPHANIE | | | $604,000.00 | 53378 | 4546369 |
| 3 | 08/10/2020 | WD | Warranty Deed | WILLENBORG, CHRISTOPHER JOSEPH | WOOLEY, ERIN | | | $435,000.00 | 44167 | 4493410 |
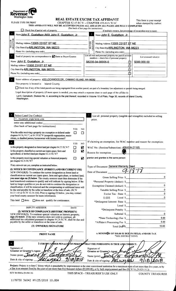
| 4 | 09/18/2018 | WD | Warranty Deed | UPCHURCH, DOUGLAS B | WILLENBORG, CHRISTOPHER JOSEPH | | | $360,000.00 | 36037 | 4452329 |
Payout Agreement
| No payout information available.. |