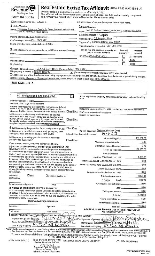
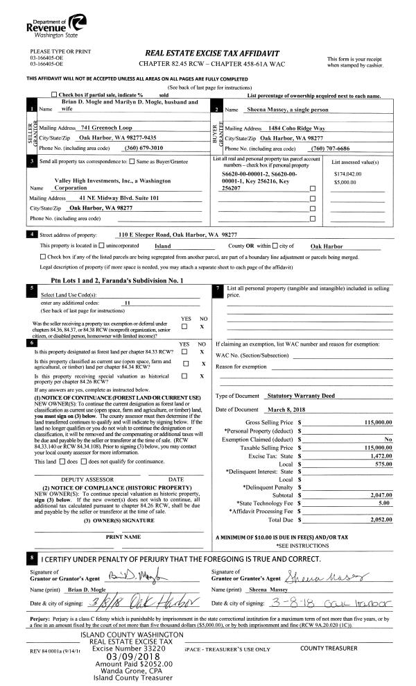
Property
Account |
| Property ID: | 811402 | Abbreviated Legal Description: | LOT 2 SP 450-03.33228-440-4800 AF#4319919 |
| Geographic ID: | R33228-442-4860 | Agent Code: | |
| Type: | Real | | |
| Tax Area: | 519 - APPRAISER-Stan/Cam Schl Dist, vacant & 50 acres or less | Land Use Code | 91 |
| Open Space: | N | DFL | N |
| Historic Property: | N | Remodel Property: | N |
| Multi-Family Redevelopment: | N | | |
| Township: | 32 | Section: | 28 |
| Range: | R3 |
Location |
| Address: | VINEYARD LN CAMANO ISLAND, WA 98282 | Mapsco: | |
| Neighborhood: | 51cRR-highway 532 | Map ID: | 984 |
| Neighborhood CD: | 51cRRhw532 |
Owner |
| Name: | BAYVIEW-CAMANO & LOSS LLC | Owner ID: | 287510 |
| Mailing Address: | 101 N SUNSET DR CAMANO ISLAND, WA 98282 | % Ownership: | 100.0000000000% |
| | | Exemptions: | |
Taxes and Assessment Details
Values
| (+) Improvement Homesite Value: | + | $0 | |
| (+) Improvement Non-Homesite Value: | + | $0 | |
| (+) Land Homesite Value: | + | $0 | |
| (+) Land Non-Homesite Value: | + | $140,000 | |
| (+) Curr Use (HS): | + | $0 | $0 |
| (+) Curr Use (NHS): | + | $0 | $0 |
| | | -------------------------- | |
| (=) Market Value: | = | $140,000 | |
| (–) Productivity Loss: | – | $0 | |
| | | -------------------------- | |
| (=) Subtotal: | = | $140,000 | |
| (+) Senior Appraised Value: | + | $0 | |
| (+) Non-Senior Appraised Value: | + | $140,000 | |
| | | -------------------------- | |
| (=) Total Appraised Value: | = | $140,000 | |
| (–) Senior Exemption Loss: | – | $0 | |
| (–) Exemption Loss: | – | $0 | |
| | | -------------------------- | |
| (=) Taxable Value: | = | $140,000 | |
Taxing Jurisdiction
| Owner: | BAYVIEW-CAMANO & LOSS LLC | | |
| % Ownership: | 100.0000000000% | | |
| Total Value: | $140,000 | | |
| Tax Area: | 519 - APPRAISER-Stan/Cam Schl Dist, vacant & 50 acres or less |
| CF | Conservation Futures | 0.0316035091 | $140,000 | $140,000 | $4.42 | | |
| EMS1 | Fire & Rescue Dist #1 Camano GEN (EMS) | 0.3677864386 | $140,000 | $140,000 | $51.49 | | |
| CE | County Current Expense | 0.3708482477 | $140,000 | $140,000 | $51.92 | | |
| CR | County Roads | 0.4584763726 | $140,000 | $140,000 | $64.19 | | |
| LCIB | Library Sno-Isle BOND (Camano Island) | 0.0396325772 | $140,000 | $140,000 | $5.55 | | |
| LIB | Library Sno-Isle GEN | 0.3153421757 | $140,000 | $140,000 | $44.15 | | |
| SCH205_401 | School 205-401 Enrichment | 1.2698420524 | $140,000 | $140,000 | $177.78 | | |
| SCH205BOND | School 205-401 BOND | 0.9396497583 | $140,000 | $140,000 | $131.55 | | |
| ST | State School | 1.3035497053 | $140,000 | $140,000 | $182.50 | | |
| ST2 | State School Part 2 | 0.8169543533 | $140,000 | $140,000 | $114.37 | | |
| | Total Tax Rate: | 5.9136851902 | | | | | |
| | | | | Taxes w/Current Exemptions: | $827.92 | | |
| | | | | Taxes w/o Exemptions: | $827.92 | | |
Improvement / Building
Sketch
| No sketches available for this property. |
Property Image
Land
| 1 | 17 | AC (01.01-02.00) | 1.1643 | 50719.00 | 0.00 | 0.00 | 1.00 | $140,000 | $0 |
Roll Value History
| 2026 | N/A | N/A | N/A | N/A | N/A |
| 2025 | $0 | $140,000 | $0 | $140,000 | $140,000 |
| 2024 | $0 | $140,000 | $0 | $140,000 | $140,000 |
| 2023 | $0 | $120,000 | $0 | $120,000 | $120,000 |
| 2022 | $0 | $130,000 | $0 | $130,000 | $130,000 |
| 2021 | $0 | $130,000 | $0 | $130,000 | $130,000 |
| 2020 | $0 | $130,000 | $0 | $130,000 | $130,000 |
| 2019 | $0 | $130,000 | $0 | $130,000 | $130,000 |
| 2018 | $0 | $100,000 | $0 | $100,000 | $100,000 |
| 2017 | $0 | $100,000 | $0 | $100,000 | $100,000 |
| 2016 | $0 | $100,000 | $0 | $100,000 | $100,000 |
| 2015 | $0 | $56,986 | $0 | $56,986 | $56,986 |
| 2014 | $0 | $56,986 | $0 | $56,986 | $56,986 |
| 2013 | $0 | $56,986 | $0 | $56,986 | $56,986 |
Deed and Sales History
| 1 | 10/05/2018 | QCD | Quit Claim Deed | LITTLE, THOMAS A | BAYVIEW-CAMANO & LOSS LLC | | | $0.00 | 36297 | 4453440 |
| 2 | 01/17/2018 | WD | Warranty Deed | SKAGIT BANK | LITTLE, THOMAS A | | | $575,000.00 | 32664 | 4437737 |
|   | |
| 3 | 10/22/2015 | DEEDINLIEU | Deed In Lieu Of Foreclosure | TR CAMANO INC | SKAGIT BANK | | | $0.00 | 21941 | 4388507 |
Payout Agreement
| No payout information available.. |