Property
Account |
| Property ID: | 811663 | Abbreviated Legal Description: | 12.1500 Acres ins Section 18s Township 29s Range R3s LOT F BLC AF#4514876;s |
| Geographic ID: | R32918-057-3870 | Agent Code: | |
| Type: | Real | | |
| Tax Area: | 812 - APPRAISER-S Whid Schl Dist, outside Langley, improved, greater than 1 acre | Land Use Code | 11 |
| Open Space: | N | DFL | N |
| Historic Property: | N | Remodel Property: | N |
| Multi-Family Redevelopment: | N | | |
| Township: | 29 | Section: | 18 |
| Range: | R3 |
Location |
| Address: | 2706 EVA LN CLINTON, WA 98236 | Mapsco: | |
| Neighborhood: | Cycle 4 | Map ID: | 784 |
| Neighborhood CD: | 4 |
Owner |
| Name: | GABELEIN, TIMOTHY WILSON | Owner ID: | 310803 |
| Mailing Address: | 15430 NE 164TH ST WOODINVILLE, WA 98072 | % Ownership: | 100.0000000000% |
| | | Exemptions: | |
Taxes and Assessment Details
Values
| (+) Improvement Homesite Value: | + | $0 | |
| (+) Improvement Non-Homesite Value: | + | $18,000 | |
| (+) Land Homesite Value: | + | $0 | |
| (+) Land Non-Homesite Value: | + | $340,000 | |
| (+) Curr Use (HS): | + | $0 | $0 |
| (+) Curr Use (NHS): | + | $0 | $0 |
| | | -------------------------- | |
| (=) Market Value: | = | $358,000 | |
| (–) Productivity Loss: | – | $0 | |
| | | -------------------------- | |
| (=) Subtotal: | = | $358,000 | |
| (+) Senior Appraised Value: | + | $0 | |
| (+) Non-Senior Appraised Value: | + | $358,000 | |
| | | -------------------------- | |
| (=) Total Appraised Value: | = | $358,000 | |
| (–) Senior Exemption Loss: | – | $0 | |
| (–) Exemption Loss: | – | $0 | |
| | | -------------------------- | |
| (=) Taxable Value: | = | $358,000 | |
Taxing Jurisdiction
| Owner: | GABELEIN, TIMOTHY WILSON | | |
| % Ownership: | 100.0000000000% | | |
| Total Value: | $358,000 | | |
| Tax Area: | 812 - APPRAISER-S Whid Schl Dist, outside Langley, improved, greater than 1 acre |
| CF | Conservation Futures | 0.0316035091 | $358,000 | $358,000 | $11.31 | | |
| FIRE3 | Fire & Rescue Dist #3 S Whidbey GEN | 1.2004855531 | $358,000 | $358,000 | $429.77 | | |
| HOBOND | Hospital BOND | 0.1910887512 | $358,000 | $358,000 | $68.41 | | |
| HOGEN | Hospital GEN | 0.3902502903 | $358,000 | $358,000 | $139.71 | | |
| CE | County Current Expense | 0.3708482477 | $358,000 | $358,000 | $132.76 | | |
| CR | County Roads | 0.4584763726 | $358,000 | $358,000 | $164.13 | | |
| ISLANDEMS | Hospital GEN (EMS) | 0.5000000000 | $358,000 | $358,000 | $179.00 | | |
| LIB | Library Sno-Isle GEN | 0.3153421757 | $358,000 | $358,000 | $112.89 | | |
| PORTWHID | Port of S Whidbey GEN | 0.1094540357 | $358,000 | $358,000 | $39.18 | | |
| SCH206BOND | School 206 BOND | 0.3161759235 | $358,000 | $358,000 | $113.19 | | |
| SCH206MO | School 206 Enrichment | 0.4547169547 | $358,000 | $358,000 | $162.79 | | |
| ST | State School | 1.3035497053 | $358,000 | $358,000 | $466.67 | | |
| ST2 | State School Part 2 | 0.8169543533 | $358,000 | $358,000 | $292.47 | | |
| SWHIDPRBD | P & R S Whidbey BOND | 0.0152817568 | $358,000 | $358,000 | $5.47 | | |
| SWHIDPRBD2 | P & R S Whidbey BOND2 | 0.0138911264 | $358,000 | $358,000 | $4.97 | | |
| SWHIDPRMT | P & R S Whidbey GEN | 0.2053334452 | $358,000 | $358,000 | $73.51 | | |
| | Total Tax Rate: | 6.6934522006 | | | | | |
| | | | | Taxes w/Current Exemptions: | $2,396.23 | | |
| | | | | Taxes w/o Exemptions: | $2,396.23 | | |
Improvement / Building
| Improvement #1: | RESIDENTIAL | State Code: | Y | 0.0 sqft | Value: | $18,000 |
Sketch
| No sketches available for this property. |
Property Image
Land
| 1 | 35 | AC (10.00-30.99) | 12.1500 | 529254.00 | 0.00 | 0.00 | 1.00 | $340,000 | $0 |
Roll Value History
| 2026 | N/A | N/A | N/A | N/A | N/A |
| 2025 | $18,000 | $340,000 | $0 | $358,000 | $358,000 |
| 2024 | $18,000 | $330,000 | $0 | $348,000 | $348,000 |
| 2023 | $18,000 | $300,000 | $0 | $318,000 | $318,000 |
| 2022 | $18,000 | $300,000 | $0 | $318,000 | $318,000 |
| 2021 | $18,000 | $240,000 | $0 | $258,000 | $258,000 |
| 2020 | $18,000 | $220,000 | $0 | $238,000 | $238,000 |
| 2019 | $18,000 | $220,000 | $0 | $238,000 | $238,000 |
| 2018 | $18,000 | $180,000 | $0 | $198,000 | $198,000 |
| 2017 | $18,000 | $180,000 | $0 | $198,000 | $198,000 |
| 2016 | $18,000 | $160,000 | $0 | $178,000 | $178,000 |
| 2015 | $18,000 | $160,000 | $0 | $178,000 | $178,000 |
| 2014 | $22,361 | $106,222 | $0 | $128,583 | $128,583 |
| 2013 | $22,361 | $106,222 | $0 | $128,583 | $128,583 |
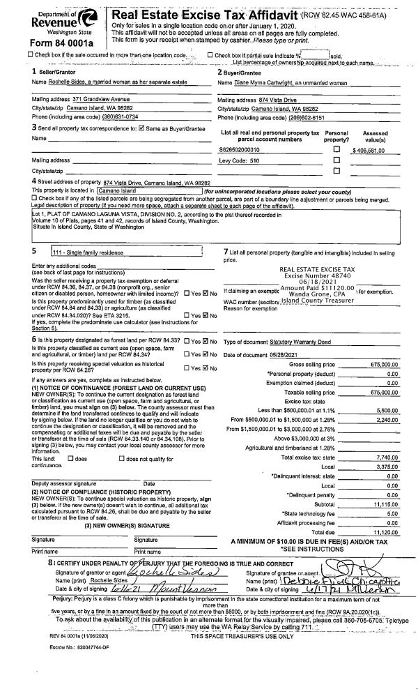
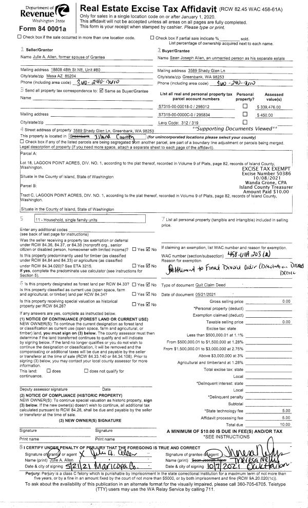
Deed and Sales History
| 1 | 11/22/2023 | WD | Warranty Deed | GABELEIN, RAY E | GABELEIN, TIMOTHY WILSON | | | $132,960.00 | 58641 | 4567180 |
| 2 | 03/25/2021 | WD | Warranty Deed | BLOODLINE-11, LLC | GABELEIN, RAY E | | | $250.00 | 47521 | 4514877 |
| 3 | 02/20/2015 | WD | Warranty Deed | MARSHALL, SANDRA M | GABELEIN, RAY E | | | $150,000.00 | 18604 | 4373957 |
| 4 | 12/30/2013 | QCD | Quit Claim Deed | MARSHALL, SANDRA M | MARSHALL, SANDRA M | | | $0.00 | 14032 | 4354010 |
| 5 | 12/30/2013 | QCD | Quit Claim Deed | GABELEIN ET AL, ALBERT G | MARSHALL, SANDRA M | | | $0.00 | 13911 | 4353364 |
Payout Agreement
| No payout information available.. |