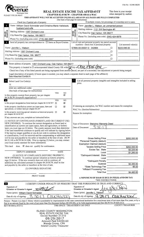
Property
Account |
| Property ID: | 811716 | Abbreviated Legal Description: | LOT 2 SP 197-08.33228-410-3460 AF#4353165 |
| Geographic ID: | R33228-407-3460 | Agent Code: | |
| Type: | Real | | |
| Tax Area: | 512 - APPRAISER-Stan/Cam Schl Dist, improved, greater than 1 acre | Land Use Code | 11 |
| Open Space: | N | DFL | N |
| Historic Property: | N | Remodel Property: | N |
| Multi-Family Redevelopment: | N | | |
| Township: | 32 | Section: | 28 |
| Range: | R3 |
Location |
| Address: | | Mapsco: | |
| Neighborhood: | Cycle 5 | Map ID: | 984 |
| Neighborhood CD: | 5 |
Owner |
| Name: | KRAJCAR, JONATHAN J | Owner ID: | 283307 |
| Mailing Address: | BRITTANY M KRAJCAR 1058 ZEPHYR LN CAMANO ISLAND, WA 98282 | % Ownership: | 100.0000000000% |
| | | Exemptions: | |
Taxes and Assessment Details
Values
| (+) Improvement Homesite Value: | + | $0 | |
| (+) Improvement Non-Homesite Value: | + | $763,121 | |
| (+) Land Homesite Value: | + | $0 | |
| (+) Land Non-Homesite Value: | + | $410,000 | |
| (+) Curr Use (HS): | + | $0 | $0 |
| (+) Curr Use (NHS): | + | $0 | $0 |
| | | -------------------------- | |
| (=) Market Value: | = | $1,173,121 | |
| (–) Productivity Loss: | – | $0 | |
| | | -------------------------- | |
| (=) Subtotal: | = | $1,173,121 | |
| (+) Senior Appraised Value: | + | $0 | |
| (+) Non-Senior Appraised Value: | + | $1,173,121 | |
| | | -------------------------- | |
| (=) Total Appraised Value: | = | $1,173,121 | |
| (–) Senior Exemption Loss: | – | $0 | |
| (–) Exemption Loss: | – | $0 | |
| | | -------------------------- | |
| (=) Taxable Value: | = | $1,173,121 | |
Taxing Jurisdiction
| Owner: | KRAJCAR, JONATHAN J | | |
| % Ownership: | 100.0000000000% | | |
| Total Value: | $1,173,121 | | |
| Tax Area: | 512 - APPRAISER-Stan/Cam Schl Dist, improved, greater than 1 acre |
| CF | Conservation Futures | 0.0316035091 | $1,173,121 | $1,173,121 | $37.07 | | |
| EMS1 | Fire & Rescue Dist #1 Camano GEN (EMS) | 0.3677864386 | $1,173,121 | $1,173,121 | $431.46 | | |
| FIRE1 | Fire & Rescue Dist #1 Camano GEN | 1.2502910536 | $1,173,121 | $1,173,121 | $1,466.74 | | |
| FIRE1BOND | Fire & Rescue Dist #1 Camano BOND | 0.1570001679 | $1,173,121 | $1,173,121 | $184.18 | | |
| CE | County Current Expense | 0.3708482477 | $1,173,121 | $1,173,121 | $435.05 | | |
| CR | County Roads | 0.4584763726 | $1,173,121 | $1,173,121 | $537.85 | | |
| LCIB | Library Sno-Isle BOND (Camano Island) | 0.0396325772 | $1,173,121 | $1,173,121 | $46.49 | | |
| LIB | Library Sno-Isle GEN | 0.3153421757 | $1,173,121 | $1,173,121 | $369.93 | | |
| SCH205_401 | School 205-401 Enrichment | 1.2698420524 | $1,173,121 | $1,173,121 | $1,489.68 | | |
| SCH205BOND | School 205-401 BOND | 0.9396497583 | $1,173,121 | $1,173,121 | $1,102.32 | | |
| ST | State School | 1.3035497053 | $1,173,121 | $1,173,121 | $1,529.22 | | |
| ST2 | State School Part 2 | 0.8169543533 | $1,173,121 | $1,173,121 | $958.39 | | |
| | Total Tax Rate: | 7.3209764117 | | | | | |
| | | | | Taxes w/Current Exemptions: | $8,588.38 | | |
| | | | | Taxes w/o Exemptions: | $8,588.38 | | |
Improvement / Building
| Improvement #1: | RESIDENTIAL | State Code: | Y | 2823.0 sqft | Value: | $763,121 |
| Bathrooms: | 3.5 | Bedrooms: | 3 | | Ceiling: | DRYWALL PAINTED | Cooling: | HEAT PUMP/CONV/V | | Exterior Wall/Cover: | CEMENT FIBER | Floor Covering: | CARPET/VINYL 20-80 | | Floor Structure: | WOOD W/SUBFLOOR | Foundation: | CONCRETE | | Interior Finish: | DRYWALL PAINT | Plumbing Fixture Cnt: | 16 | | Roof Slope: | 6" IN 12" | Roof Structure/Cover: | CJ ASPHALT |
|
| | Type | Description | Class CD | Sub Class CD | Year Built | Area |
| | BAS | BASE/MAIN FLOOR | 4 | 0 | 2019 | 2823.0 |
| | AGR | ATTACHED GARAGE | 4 | 0 | 2019 | 899.0 |
| | OP4 | OPEN PORCH W/CEILING-ROOF | 4 | 0 | 2019 | 1025.0 |
| | DGR | DETACHED GARAGE | 4 | 0 | 2019 | 1088.0 |
Sketch
Property Image
Land
| 1 | 32 | AC (03.01-09.99) | 5.1100 | 222591.60 | 0.00 | 0.00 | 1.00 | $410,000 | $0 |
Roll Value History
| 2026 | N/A | N/A | N/A | N/A | N/A |
| 2025 | $763,121 | $410,000 | $0 | $1,173,121 | $1,173,121 |
| 2024 | $769,227 | $390,000 | $0 | $1,159,227 | $1,159,227 |
| 2023 | $775,330 | $380,000 | $0 | $1,155,330 | $1,155,330 |
| 2022 | $709,463 | $350,000 | $0 | $1,059,463 | $1,059,463 |
| 2021 | $628,153 | $240,000 | $0 | $868,153 | $868,153 |
| 2020 | $563,298 | $200,000 | $0 | $763,298 | $763,298 |
| 2019 | $228,779 | $200,000 | $0 | $428,779 | $428,779 |
| 2018 | $0 | $150,000 | $0 | $150,000 | $150,000 |
| 2017 | $0 | $135,000 | $0 | $135,000 | $135,000 |
| 2016 | $0 | $135,000 | $0 | $135,000 | $135,000 |
| 2015 | $0 | $90,000 | $0 | $90,000 | $90,000 |
| 2014 | $0 | $90,000 | $0 | $90,000 | $90,000 |
| 2013 | $0 | $75,245 | $0 | $75,245 | $75,245 |
Deed and Sales History
| 1 | 12/12/2017 | WD | Warranty Deed | ALLEN TRUSTEE, JOHN WESLEY | KRAJCAR, JONATHAN J | | | $199,900.00 | 32307 | 4435927 |
| 2 | 05/01/2017 | OTHER | Other - Misc. Documents | ALLEN, JOHN W | ALLEN TRUSTEE, JOHN WESLEY | | | $0.00 | 29819 | 4424588 |
| 3 | 11/03/2016 | WD | Warranty Deed | PRATT, CHARLES D | ALLEN, JOHN W | | | $145,000.00 | 26869 | 4411234 |
Payout Agreement
| No payout information available.. |