Property
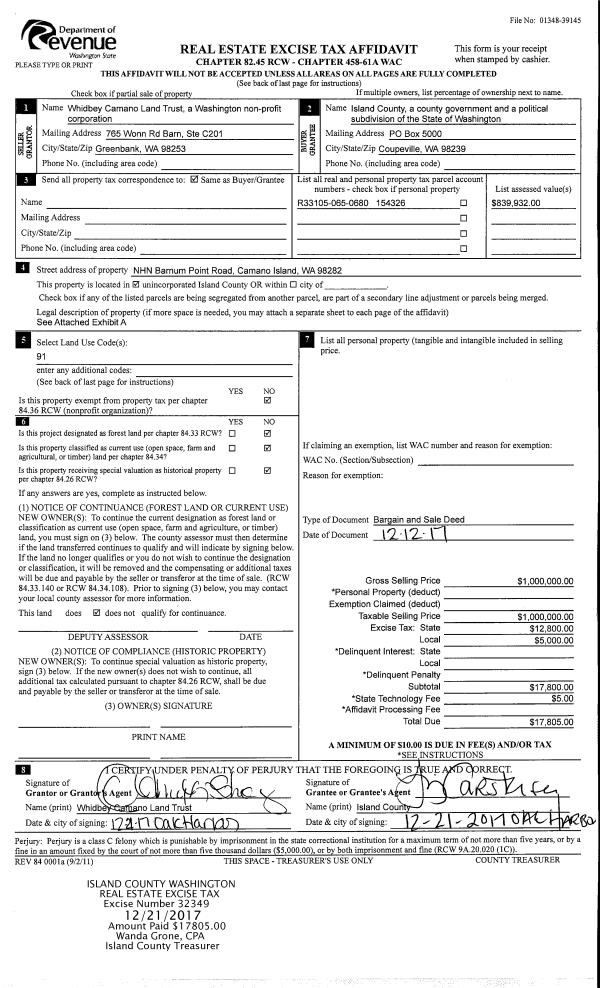
Account |
| Property ID: | 811724 | Abbreviated Legal Description: | 1983 MODULINE 14X66 VIN# 17587 TPO #91428 |
| Geographic ID: | M91000000027-2 | Agent Code: | |
| Type: | Mobile Home | | |
| Tax Area: | 300 - APPRAISER-Cpvl Schl Dist, in Cpvl | Land Use Code | 11 |
| Open Space: | N | DFL | N |
| Historic Property: | N | Remodel Property: | N |
| Multi-Family Redevelopment: | N | | |
| Township: | | Section: | |
| Range: | |
Location |
| Address: | 701 S MAIN ST # 27 COUPEVILLE, WA 98239 | Mapsco: | |
| Neighborhood: | Cycle 2 | Map ID: | |
| Neighborhood CD: | 2 |
Owner |
| Name: | CURT, DELIA G | Owner ID: | 304716 |
| Mailing Address: | 701 S MAIN ST #27 COUPEVILLE, WA 98239 | % Ownership: | 100.0000000000% |
| | | Exemptions: | |
Taxes and Assessment Details
Values
| (+) Improvement Homesite Value: | + | $0 | |
| (+) Improvement Non-Homesite Value: | + | $40,112 | |
| (+) Land Homesite Value: | + | $0 | |
| (+) Land Non-Homesite Value: | + | $0 | |
| (+) Curr Use (HS): | + | $0 | $0 |
| (+) Curr Use (NHS): | + | $0 | $0 |
| | | -------------------------- | |
| (=) Market Value: | = | $40,112 | |
| (–) Productivity Loss: | – | $0 | |
| | | -------------------------- | |
| (=) Subtotal: | = | $40,112 | |
| (+) Senior Appraised Value: | + | $0 | |
| (+) Non-Senior Appraised Value: | + | $40,112 | |
| | | -------------------------- | |
| (=) Total Appraised Value: | = | $40,112 | |
| (–) Senior Exemption Loss: | – | $0 | |
| (–) Exemption Loss: | – | $0 | |
| | | -------------------------- | |
| (=) Taxable Value: | = | $40,112 | |
Taxing Jurisdiction
| Owner: | CURT, DELIA G | | |
| % Ownership: | 100.0000000000% | | |
| Total Value: | $40,112 | | |
| Tax Area: | 300 - APPRAISER-Cpvl Schl Dist, in Cpvl |
| CF | Conservation Futures | 0.0316035091 | $40,112 | $40,112 | $1.27 | | |
| CEM2 | Cemetery #2 | 0.0095056933 | $40,112 | $40,112 | $0.38 | | |
| COUP | City: Town of Coupeville | 0.8426414490 | $40,112 | $40,112 | $33.80 | | |
| FIRE5 | Fire & Rescue Dist #5 C Whidbey GEN | 1.2008080668 | $40,112 | $40,112 | $48.17 | | |
| FIRE5BOND | Fire & Rescue Dist #5 C Whidbey BOND | 0.1400090713 | $40,112 | $40,112 | $5.62 | | |
| HOBOND | Hospital BOND | 0.1910887512 | $40,112 | $40,112 | $7.66 | | |
| HOGEN | Hospital GEN | 0.3902502903 | $40,112 | $40,112 | $15.65 | | |
| CE | County Current Expense | 0.3708482477 | $40,112 | $40,112 | $14.88 | | |
| ISLANDEMS | Hospital GEN (EMS) | 0.5000000000 | $40,112 | $40,112 | $20.06 | | |
| LIB | Library Sno-Isle GEN | 0.3153421757 | $40,112 | $40,112 | $12.65 | | |
| LIBCAP | Library Sno-Isle BOND (Cap Fac Imp Area) | 0.0543427938 | $40,112 | $40,112 | $2.18 | | |
| POCOUP | Port of Coupeville GEN | 0.1093371703 | $40,112 | $40,112 | $4.39 | | |
| POCOUPIDD | Port of Coupeville IDD | 0.3409740022 | $40,112 | $40,112 | $13.68 | | |
| COUPSDTECH | School 204 CP (TECH) | 0.7545480007 | $40,112 | $40,112 | $30.27 | | |
| SCH204MO | School 204 Enrichment | 0.6716186034 | $40,112 | $40,112 | $26.94 | | |
| ST | State School | 1.3035497053 | $40,112 | $40,112 | $52.29 | | |
| ST2 | State School Part 2 | 0.8169543533 | $40,112 | $40,112 | $32.77 | | |
| | Total Tax Rate: | 8.0434218834 | | | | | |
| | | | | Taxes w/Current Exemptions: | $322.66 | | |
| | | | | Taxes w/o Exemptions: | $322.66 | | |
Improvement / Building
| Improvement #1: | MANUFACTURED HOME | State Code: | Y | 924.0 sqft | Value: | $40,112 |
| Bathrooms: | 1 | Bedrooms: | 2 | | Ceiling: | PLASTER PAINTED | Cooling: | EVAP NO DUCT | | Exterior Wall/Cover: | VINYL | Floor Covering: | CARPET 100% | | Floor Structure: | SLAB ON GRADE | Foundation: | SLAB | | Heating: | FHA ELECTRIC | Interior Finish: | PLASTER | | Roof Slope: | FLAT | Roof Structure/Cover: | CJ ALUMINIUM HEAVY |
|
Sketch
Property Image
Land
No land segments exist for this property.
Roll Value History
| 2026 | N/A | N/A | N/A | N/A | N/A |
| 2025 | $40,112 | $0 | $0 | $40,112 | $40,112 |
| 2024 | $29,173 | $0 | $0 | $29,173 | $29,173 |
| 2023 | $18,018 | $0 | $0 | $18,018 | $18,018 |
| 2022 | $14,990 | $0 | $0 | $14,990 | $14,990 |
| 2021 | $13,627 | $0 | $0 | $13,627 | $13,627 |
| 2020 | $13,798 | $0 | $0 | $13,798 | $13,798 |
| 2019 | $11,555 | $0 | $0 | $11,555 | $11,555 |
| 2018 | $12,426 | $0 | $0 | $12,426 | $12,426 |
| 2017 | $12,896 | $0 | $0 | $12,896 | $12,896 |
| 2016 | $13,363 | $0 | $0 | $13,363 | $0 |
| 2015 | $14,067 | $0 | $0 | $14,067 | $0 |
| 2014 | $14,536 | $0 | $0 | $14,536 | $0 |
Deed and Sales History
| 1 | 06/15/2022 | MANHOME | Manufactured Home | GARDNER, ROBERT E | CURT, DELIA G | | | $92,500.00 | 53454 | |
| 2 | 09/17/2020 | MANHOME | Manufactured Home | OLANDER, TAMMY | GARDNER, ROBERT E | | | $35,000.00 | 44787 | |
| 3 | 12/15/2017 | MANHOME | Manufactured Home | LINES, LINDA | OLANDER, TAMMY | | | $11,000.00 | 32315 | |
| 4 | 06/13/2014 | MANHOME | Manufactured Home | WESCHE, CHARLES A | LINES, LINDA | | | $25,500.00 | 15673 | |
Payout Agreement
| No payout information available.. |