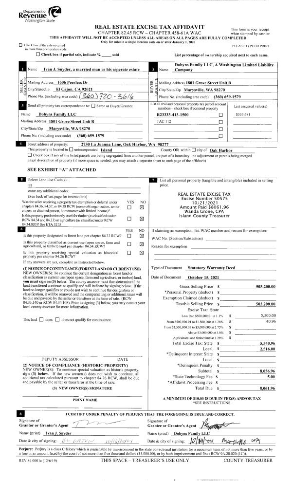
Property
Account |
| Property ID: | 81173 | Abbreviated Legal Description: | 23 - BG 277'S & 280'W OF NE CR GL2 S91' E250' M/L TO RD NLY ALG RD 91' M/L TP E TPB W250' M/L TPB |
| Geographic ID: | R23115-360-5120 | Agent Code: | |
| Type: | Real | | |
| Tax Area: | 510 - APPRAISER-Stan/Cam Schl Dist, improved & 1 acre or less | Land Use Code | 11 |
| Open Space: | N | DFL | N |
| Historic Property: | N | Remodel Property: | N |
| Multi-Family Redevelopment: | N | | |
| Township: | 31 | Section: | 15 |
| Range: | R2 |
Location |
| Address: | 926 S WEST CAMANO DR CAMANO ISLAND, WA 98282 | Mapsco: | |
| Neighborhood: | Cycle 5 | Map ID: | 486 |
| Neighborhood CD: | 5 |
Owner |
| Name: | BURKART, HERBERT | Owner ID: | 297180 |
| Mailing Address: | 426 N OLYMPIC AVE ARLINGTON, WA 98223 | % Ownership: | 100.0000000000% |
| | | Exemptions: | |
Taxes and Assessment Details
Values
| (+) Improvement Homesite Value: | + | $0 | |
| (+) Improvement Non-Homesite Value: | + | $187,590 | |
| (+) Land Homesite Value: | + | $0 | |
| (+) Land Non-Homesite Value: | + | $250,000 | |
| (+) Curr Use (HS): | + | $0 | $0 |
| (+) Curr Use (NHS): | + | $0 | $0 |
| | | -------------------------- | |
| (=) Market Value: | = | $437,590 | |
| (–) Productivity Loss: | – | $0 | |
| | | -------------------------- | |
| (=) Subtotal: | = | $437,590 | |
| (+) Senior Appraised Value: | + | $0 | |
| (+) Non-Senior Appraised Value: | + | $437,590 | |
| | | -------------------------- | |
| (=) Total Appraised Value: | = | $437,590 | |
| (–) Senior Exemption Loss: | – | $0 | |
| (–) Exemption Loss: | – | $0 | |
| | | -------------------------- | |
| (=) Taxable Value: | = | $437,590 | |
Taxing Jurisdiction
| Owner: | BURKART, HERBERT | | |
| % Ownership: | 100.0000000000% | | |
| Total Value: | $437,590 | | |
| Tax Area: | 510 - APPRAISER-Stan/Cam Schl Dist, improved & 1 acre or less |
| CF | Conservation Futures | 0.0316035091 | $437,590 | $437,590 | $13.83 | | |
| EMS1 | Fire & Rescue Dist #1 Camano GEN (EMS) | 0.3677864386 | $437,590 | $437,590 | $160.94 | | |
| FIRE1 | Fire & Rescue Dist #1 Camano GEN | 1.2502910536 | $437,590 | $437,590 | $547.11 | | |
| FIRE1BOND | Fire & Rescue Dist #1 Camano BOND | 0.1570001679 | $437,590 | $437,590 | $68.70 | | |
| CE | County Current Expense | 0.3708482477 | $437,590 | $437,590 | $162.28 | | |
| CR | County Roads | 0.4584763726 | $437,590 | $437,590 | $200.62 | | |
| LCIB | Library Sno-Isle BOND (Camano Island) | 0.0396325772 | $437,590 | $437,590 | $17.34 | | |
| LIB | Library Sno-Isle GEN | 0.3153421757 | $437,590 | $437,590 | $137.99 | | |
| SCH205_401 | School 205-401 Enrichment | 1.2698420524 | $437,590 | $437,590 | $555.67 | | |
| SCH205BOND | School 205-401 BOND | 0.9396497583 | $437,590 | $437,590 | $411.18 | | |
| ST | State School | 1.3035497053 | $437,590 | $437,590 | $570.42 | | |
| ST2 | State School Part 2 | 0.8169543533 | $437,590 | $437,590 | $357.49 | | |
| | Total Tax Rate: | 7.3209764117 | | | | | |
| | | | | Taxes w/Current Exemptions: | $3,203.57 | | |
| | | | | Taxes w/o Exemptions: | $3,203.57 | | |
Improvement / Building
| Improvement #1: | MANUFACTURED HOME | State Code: | Y | 1782.0 sqft | Value: | $187,590 |
| Bathrooms: | 0 | Bedrooms: | 0 | | Ceiling: | PLASTER PAINTED | Cooling: | EVAP NO DUCT | | Exterior Wall/Cover: | VINYL | Floor Covering: | CARPET 100% | | Floor Structure: | SLAB ON GRADE | Foundation: | SLAB | | Heating: | FHA ELECTRIC | Interior Finish: | PLASTER | | Plumbing Fixture Cnt: | 1 | Roof Slope: | FLAT | | Roof Structure/Cover: | CJ ALUMINIUM HEAVY |   |   |
|
| | Type | Description | Class CD | Sub Class CD | Year Built | Area |
| | BAS | BASE/MAIN FLOOR | 4 | 0 | 1995 | 1782.0 |
| | OWP | OPEN WOOD PORCH W/STEPS | 4 | 0 | 1995 | 564.0 |
| | OP3 | OPEN PORCH W/ROOF | 4 | 0 | 1995 | 276.0 |
| | OCP | OPEN CARPORT | 4 | 0 | 1995 | 361.0 |
| | UTY | STORAGE/UTILITY | 4 | 0 | 1995 | 76.0 |
Sketch
Property Image
Land
| 1 | 16 | AC (00.51-01.00) | 0.5300 | 23086.80 | 0.00 | 0.00 | 1.00 | $250,000 | $0 |
Roll Value History
| 2026 | N/A | N/A | N/A | N/A | N/A |
| 2025 | $187,590 | $250,000 | $0 | $437,590 | $437,590 |
| 2024 | $192,222 | $230,000 | $0 | $422,222 | $422,222 |
| 2023 | $171,175 | $230,000 | $0 | $401,175 | $401,175 |
| 2022 | $156,821 | $210,000 | $0 | $366,821 | $366,821 |
| 2021 | $134,777 | $120,000 | $0 | $254,777 | $254,777 |
| 2020 | $132,382 | $120,000 | $0 | $252,382 | $252,382 |
| 2019 | $105,494 | $160,000 | $0 | $265,494 | $265,494 |
| 2018 | $107,920 | $120,000 | $0 | $227,920 | $227,920 |
| 2017 | $109,132 | $100,000 | $0 | $209,132 | $209,132 |
| 2016 | $111,557 | $90,000 | $0 | $201,557 | $201,557 |
| 2015 | $116,600 | $65,000 | $0 | $181,600 | $181,600 |
| 2014 | $118,414 | $65,000 | $0 | $183,414 | $183,414 |
| 2013 | $119,321 | $41,600 | $0 | $160,921 | $160,921 |
| 2012 | $120,228 | $41,600 | $0 | $161,828 | $161,828 |
| 2011 | $122,042 | $52,000 | $0 | $174,042 | $174,042 |
| 2010 | $116,245 | $52,000 | $0 | $168,245 | $168,245 |
| 2009 | $121,172 | $90,000 | $0 | $211,172 | $211,172 |
| 2008 | $123,947 | $148,000 | $0 | $271,947 | $271,947 |
| 2007 | $0 | $275,336 | $0 | $275,336 | $275,336 |
Deed and Sales History
| 1 | 10/23/2020 | MANHOME | Manufactured Home | DONOVAN, JAMES L | BURKART, HERBERT | | | $132,382.00 | 45365 | |
| 2 | 10/20/2020 | WD | Warranty Deed | DONOVAN, JAMES L | BURKART, HERBERT | | | $147,618.00 | 45364 | 4500272 |
| 3 | 02/26/2014 | QCD | Quit Claim Deed | DONOVAN, JAMES L & DEBORAH A | DONOVAN, JAMES L | | | $0.00 | 22749 | 4392156 |
| 4 | 12/21/2009 | TRUSTEED | Trustee's Deed | FIRST HERITAGE BANK, | DONOVAN, JAMES L & DEBORAH A | | | $159,000.00 | 93182 | 4266075 |
| 5 | 10/01/2009 | TRUSTEED | Trustee's Deed | RIKE, DANIEL D | FIRST HERITAGE BANK, | | | $0.00 | 92545 | 4266216 |
| 6 | 04/11/2006 | WD | Warranty Deed | ROGERS, JOEL | RIKE, DANIEL D | | | $155,000.00 | 61649 | 4167809 |
| 7 | 09/29/2005 | WD | Warranty Deed | TARPLEY, OSCAR W | ROGERS, JOEL | | | $97,000.00 | 54967 | 4149490 |
| 8 | 09/28/2005 | ESTSEPPROP | Establish Separate Property | ROGERS, JOEL | ROGERS, JOEL | | | $0.00 | 54969 | 4149491 |
| 9 | 01/01/1900 | OTHER | Other - Misc. Documents | Unknown | TARPLEY, OSCAR W | | | $0.00 | 0 | 0 |
Payout Agreement
| No payout information available.. |