Property
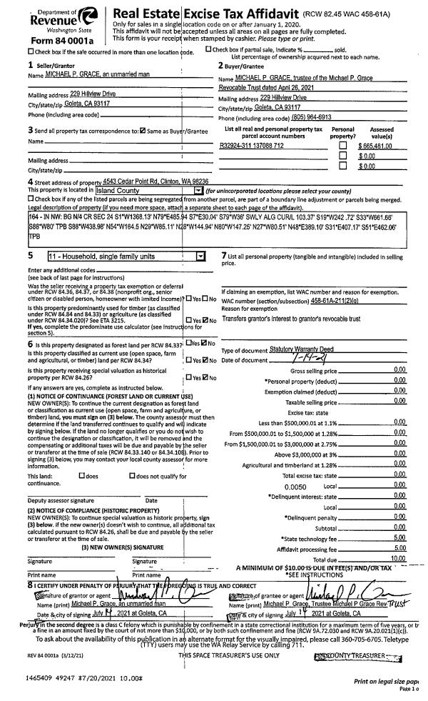
Account |
| Property ID: | 811850 | Abbreviated Legal Description: | FIFTH STREET COMMONS CONDO UNIT C-201 |
| Geographic ID: | S8555-00-0C201-0 | Agent Code: | |
| Type: | Real | | |
| Tax Area: | 700 - APPRAISER-S Whid Schl Dist, in town of Langley | Land Use Code | 14 |
| Open Space: | N | DFL | N |
| Historic Property: | N | Remodel Property: | N |
| Multi-Family Redevelopment: | N | | |
| Township: | 30 | Section: | 34 |
| Range: | R3 |
Location |
| Address: | 130 FIFTH ST BLDG C, UNIT C201 LANGLEY, WA 98260 | Mapsco: | |
| Neighborhood: | 42*LG-5th street | Map ID: | 913 |
| Neighborhood CD: | 42*LG5stre |
Owner |
| Name: | CAHILL TTEE, JOHN P | Owner ID: | 310776 |
| Mailing Address: | 161 IKENA KAI PL KULA, HI 96790 | % Ownership: | 100.0000000000% |
| | | Exemptions: | |
Taxes and Assessment Details
Values
| (+) Improvement Homesite Value: | + | $0 | |
| (+) Improvement Non-Homesite Value: | + | $166,577 | |
| (+) Land Homesite Value: | + | $0 | |
| (+) Land Non-Homesite Value: | + | $150,000 | |
| (+) Curr Use (HS): | + | $0 | $0 |
| (+) Curr Use (NHS): | + | $0 | $0 |
| | | -------------------------- | |
| (=) Market Value: | = | $316,577 | |
| (–) Productivity Loss: | – | $0 | |
| | | -------------------------- | |
| (=) Subtotal: | = | $316,577 | |
| (+) Senior Appraised Value: | + | $0 | |
| (+) Non-Senior Appraised Value: | + | $316,577 | |
| | | -------------------------- | |
| (=) Total Appraised Value: | = | $316,577 | |
| (–) Senior Exemption Loss: | – | $0 | |
| (–) Exemption Loss: | – | $0 | |
| | | -------------------------- | |
| (=) Taxable Value: | = | $316,577 | |
Taxing Jurisdiction
| Owner: | CAHILL TTEE, JOHN P | | |
| % Ownership: | 100.0000000000% | | |
| Total Value: | $316,577 | | |
| Tax Area: | 700 - APPRAISER-S Whid Schl Dist, in town of Langley |
| CF | Conservation Futures | 0.0316035091 | $316,577 | $316,577 | $10.00 | | |
| LANG | City of Langley | 1.0093520762 | $316,577 | $316,577 | $319.54 | | |
| LANGBOND | City of Langley BOND | 1.0326110892 | $316,577 | $316,577 | $326.90 | | |
| FIRE3 | Fire & Rescue Dist #3 S Whidbey GEN | 1.2004855531 | $316,577 | $316,577 | $380.05 | | |
| HOBOND | Hospital BOND | 0.1910887512 | $316,577 | $316,577 | $60.49 | | |
| HOGEN | Hospital GEN | 0.3902502903 | $316,577 | $316,577 | $123.54 | | |
| CE | County Current Expense | 0.3708482477 | $316,577 | $316,577 | $117.40 | | |
| ISLANDEMS | Hospital GEN (EMS) | 0.5000000000 | $316,577 | $316,577 | $158.29 | | |
| LIB | Library Sno-Isle GEN | 0.3153421757 | $316,577 | $316,577 | $99.83 | | |
| PORTWHID | Port of S Whidbey GEN | 0.1094540357 | $316,577 | $316,577 | $34.65 | | |
| SCH206BOND | School 206 BOND | 0.3161759235 | $316,577 | $316,577 | $100.09 | | |
| SCH206MO | School 206 Enrichment | 0.4547169547 | $316,577 | $316,577 | $143.95 | | |
| ST | State School | 1.3035497053 | $316,577 | $316,577 | $412.67 | | |
| ST2 | State School Part 2 | 0.8169543533 | $316,577 | $316,577 | $258.63 | | |
| SWHIDPRBD | P & R S Whidbey BOND | 0.0152817568 | $316,577 | $316,577 | $4.84 | | |
| SWHIDPRBD2 | P & R S Whidbey BOND2 | 0.0138911264 | $316,577 | $316,577 | $4.40 | | |
| SWHIDPRMT | P & R S Whidbey GEN | 0.2053334452 | $316,577 | $316,577 | $65.00 | | |
| | Total Tax Rate: | 8.2769389934 | | | | | |
| | | | | Taxes w/Current Exemptions: | $2,620.27 | | |
| | | | | Taxes w/o Exemptions: | $2,620.27 | | |
Improvement / Building
| Improvement #1: | RESIDENTIAL | State Code: | A1 | 741.3 sqft | Value: | $166,577 |
| Bathrooms: | 1 | Bedrooms: | 2 | | Ceiling: | DRYWALL PAINTED | Exterior Wall/Cover: | CEMENT FIBER | | Floor Covering: | CARPET/VINYL 80-20 | Floor Structure: | WOOD W/SUBFLOOR | | Foundation: | CONCRETE | Heating: | FHA GAS | | Interior Finish: | DRYWALL PAINT | Plumbing Fixture Cnt: | 6 | | Roof Slope: | 8" IN 12" | Roof Structure/Cover: | CJ ASPHALT |
|
| | Type | Description | Class CD | Sub Class CD | Year Built | Area |
| | BAS | BASE/MAIN FLOOR | 3 | 0 | 1997 | 741.3 |
| | OP1 | OPEN PORCH SLAB | 3 | 0 | 1997 | 84.0 |
| | OCP | OPEN CARPORT | 3 | 0 | 1997 | 162.0 |
| | COMA | Common Area Improvement | 3 | 0 | 1997 | 0.0 |
Sketch
Property Image
Land
| 1 | 61 | MULTIPLE RESIDENCES | 0.0000 | 0.00 | 0.00 | 0.00 | 1.00 | $150,000 | $0 |
Roll Value History
| 2026 | N/A | N/A | N/A | N/A | N/A |
| 2025 | $166,577 | $150,000 | $0 | $316,577 | $316,577 |
| 2024 | $168,387 | $120,000 | $0 | $288,387 | $288,387 |
| 2023 | $170,197 | $100,000 | $0 | $270,197 | $270,197 |
| 2022 | $157,251 | $70,000 | $0 | $227,251 | $227,251 |
| 2021 | $140,236 | $70,000 | $0 | $210,236 | $210,236 |
| 2020 | $115,576 | $95,000 | $0 | $210,576 | $210,576 |
| 2019 | $78,603 | $120,000 | $0 | $198,603 | $198,603 |
| 2018 | $78,851 | $60,000 | $0 | $138,851 | $138,851 |
| 2017 | $79,347 | $49,066 | $0 | $128,413 | $128,413 |
| 2016 | $80,340 | $49,066 | $0 | $129,406 | $129,406 |
| 2015 | $81,331 | $49,066 | $0 | $130,397 | $130,397 |
| 2014 | $67,245 | $49,066 | $0 | $116,311 | $116,311 |
Deed and Sales History
| 1 | 11/22/2023 | WD | Warranty Deed | CHAPIN, ROSS | CAHILL TTEE, JOHN P | | | $315,000.00 | 58616 | 4567079 |
| 2 | 09/10/2014 | WD | Warranty Deed | FIFTH STREET COMMONS LLC | CHAPIN, ROSS | | | $139,500.00 | 16749 | 4365301 |
Payout Agreement
| No payout information available.. |