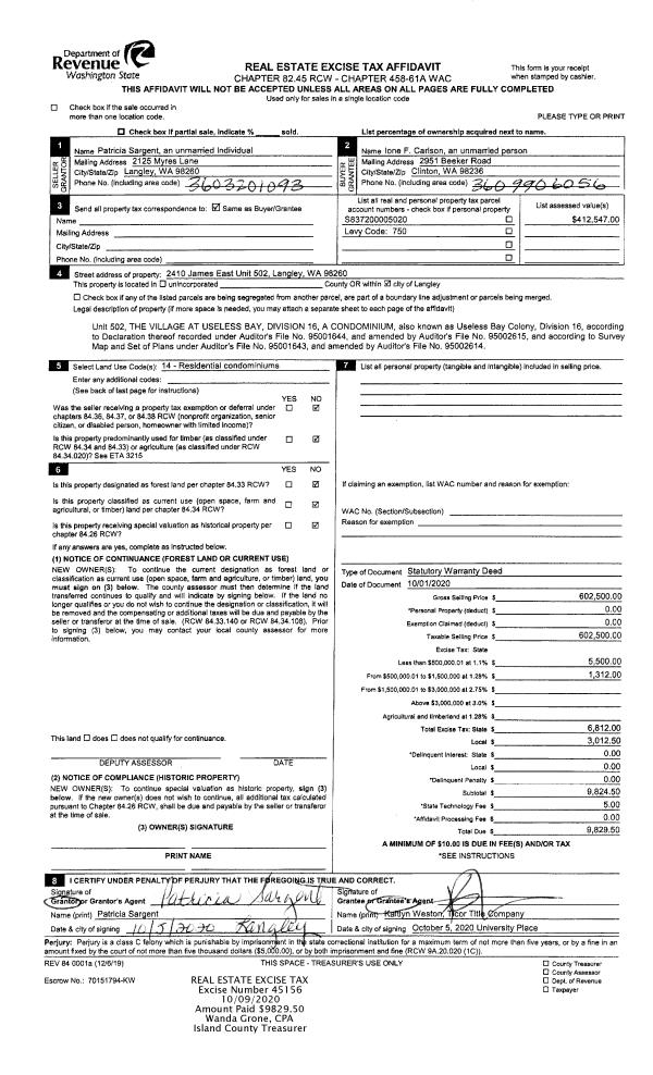
Property
Account |
| Property ID: | 811906 | Abbreviated Legal Description: | LOT 1 SP 110-14.22922-493-2800 AF#4362626 |
| Geographic ID: | R22922-508-2810 | Agent Code: | |
| Type: | Real | | |
| Tax Area: | 712 - APPRAISER-S Whid Schl Dist, outside Langley, improved, greater than 1 acre | Land Use Code | 11 |
| Open Space: | N | DFL | N |
| Historic Property: | N | Remodel Property: | N |
| Multi-Family Redevelopment: | N | | |
| Township: | 29 | Section: | 22 |
| Range: | R2 |
Location |
| Address: | | Mapsco: | |
| Neighborhood: | Cycle 3 | Map ID: | 336 |
| Neighborhood CD: | 3 |
Owner |
| Name: | ENDICOTT, RONALD E | Owner ID: | 268333 |
| Mailing Address: | DONALD E ENDICOTT 6003 ROBINSON RD FREELAND, WA 98249 | % Ownership: | 100.0000000000% |
| | | Exemptions: | SNR/DSBL |
Taxes and Assessment Details
Values
| (+) Improvement Homesite Value: | + | $119,019 | |
| (+) Improvement Non-Homesite Value: | + | $0 | |
| (+) Land Homesite Value: | + | $245,283 | |
| (+) Land Non-Homesite Value: | + | $144,717 | |
| (+) Curr Use (HS): | + | $0 | $0 |
| (+) Curr Use (NHS): | + | $0 | $0 |
| | | -------------------------- | |
| (=) Market Value: | = | $509,019 | |
| (–) Productivity Loss: | – | $0 | |
| | | -------------------------- | |
| (=) Subtotal: | = | $509,019 | |
| (+) Senior Appraised Value: | + | $239,720 | |
| (+) Non-Senior Appraised Value: | + | $144,717 | |
| | | -------------------------- | |
| (=) Total Appraised Value: | = | $384,437 | |
| (–) Senior Exemption Loss: | – | $143,832 | |
| (–) Exemption Loss: | – | $0 | |
| | | -------------------------- | |
| (=) Taxable Value: | = | $240,605 | |
Taxing Jurisdiction
| Owner: | ENDICOTT, RONALD E | | |
| % Ownership: | 100.0000000000% | | |
| Total Value: | $509,019 | | |
| Tax Area: | 712 - APPRAISER-S Whid Schl Dist, outside Langley, improved, greater than 1 acre |
| CF | Conservation Futures | 0.0316035091 | $509,019 | $240,605 | $7.60 | | |
| FIRE3 | Fire & Rescue Dist #3 S Whidbey GEN | 1.2004855531 | $509,019 | $240,605 | $288.84 | | |
| HOBOND | Hospital BOND | 0.0000000000 | $509,019 | $144,717 | $27.65 | | |
| HOGEN | Hospital GEN | 0.3902502903 | $509,019 | $240,605 | $93.90 | | |
| CE | County Current Expense | 0.3708482477 | $509,019 | $240,605 | $89.23 | | |
| CR | County Roads | 0.4584763726 | $509,019 | $240,605 | $110.31 | | |
| ISLANDEMS | Hospital GEN (EMS) | 0.5000000000 | $509,019 | $240,605 | $120.30 | | |
| LIB | Library Sno-Isle GEN | 0.3153421757 | $509,019 | $240,605 | $75.87 | | |
| PORTWHID | Port of S Whidbey GEN | 0.1094540357 | $509,019 | $240,605 | $26.34 | | |
| SCH206BOND | School 206 BOND | 0.3161759235 | $509,019 | $240,605 | $76.07 | | |
| SCH206MO | School 206 Enrichment | 0.0000000000 | $509,019 | $144,717 | $65.81 | | |
| ST | State School | 1.3035497053 | $509,019 | $240,605 | $313.64 | | |
| ST2 | State School Part 2 | 0.0000000000 | $509,019 | $144,717 | $118.23 | | |
| SWHIDPRBD | P & R S Whidbey BOND | 0.0000000000 | $509,019 | $144,717 | $2.21 | | |
| SWHIDPRBD2 | P & R S Whidbey BOND2 | 0.0000000000 | $509,019 | $144,717 | $2.01 | | |
| SWHIDPRMT | P & R S Whidbey GEN | 0.2053334452 | $509,019 | $240,605 | $49.40 | | |
| | Total Tax Rate: | 5.2015192582 | | | | | |
| | | | | Taxes w/Current Exemptions: | $1,467.41 | | |
| | | | | Taxes w/o Exemptions: | $3,407.10 | | |
Improvement / Building
| Improvement #1: | RESIDENTIAL | State Code: | Y | 984.0 sqft | Value: | $119,019 |
| Bathrooms: | 1 | Bedrooms: | 3 | | Ceiling: | DRYWALL PAINTED | Exterior Wall/Cover: | WOOD SIDING | | Floor Covering: | CARPET/VINYL 80-20 | Floor Structure: | WOOD W/SUBFLOOR | | Foundation: | CONCRETE | Heating: | FHA OIL | | Interior Finish: | DRYWALL PAINT | Plumbing Fixture Cnt: | 6 | | Roof Slope: | 8" IN 12" | Roof Structure/Cover: | CJ ALUMINIUM HEAVY |
|
| | Type | Description | Class CD | Sub Class CD | Year Built | Area |
| | BAS | BASE/MAIN FLOOR | 2 | 0 | 1930 | 984.0 |
| | UB6 | BASEMENT UNFINISHED 6" | 2 | 0 | 1930 | 660.0 |
| | OP1 | OPEN PORCH SLAB | 2 | 0 | 1930 | 375.0 |
| | OP2 | OPEN PORCH W/STEPS | 2 | 0 | 1930 | 65.0 |
| | BIG | BUILT IN GARAGE | 2 | 0 | 1930 | 324.0 |
| | ATU | ATTIC UNFINISHED | 2 | 0 | 1930 | 840.0 |
| | OWC | OPEN WOOD PORCH W/STEPS/ROOF/C | 2 | 0 | 1930 | 40.0 |
| | CPD | OPEN CARPORT DIRT FLOOR | 3 | 0 | 1930 | 912.0 |
| | UTY | STORAGE/UTILITY | 3 | 0 | 1930 | 624.0 |
Sketch
Property Image
Land
| 1 | 32 | AC (03.01-09.99) | 7.9500 | 346302.00 | 0.00 | 0.00 | 1.00 | $390,000 | $0 |
Roll Value History
| 2026 | N/A | N/A | N/A | N/A | N/A |
| 2025 | $119,019 | $390,000 | $0 | $509,019 | $240,605 |
| 2024 | $121,904 | $370,000 | $0 | $491,904 | $233,184 |
| 2023 | $124,788 | $350,000 | $0 | $474,788 | $140,416 |
| 2022 | $115,617 | $350,000 | $0 | $465,617 | $140,416 |
| 2021 | $102,809 | $280,000 | $0 | $382,809 | $140,416 |
| 2020 | $101,290 | $240,000 | $0 | $341,290 | $136,516 |
| 2019 | $51,041 | $300,000 | $0 | $351,041 | $207,209 |
| 2018 | $51,371 | $250,000 | $0 | $301,371 | $301,371 |
| 2017 | $52,030 | $220,000 | $0 | $272,030 | $272,030 |
| 2016 | $53,345 | $200,000 | $0 | $253,345 | $253,345 |
| 2015 | $54,662 | $200,000 | $0 | $254,662 | $254,662 |
| 2014 | $55,979 | $183,132 | $0 | $239,111 | $239,111 |
Deed and Sales History
| 1 | 08/13/2014 | PRD | Personal Representatives Deed | ENDICOTT, EMMA | ENDICOTT, RONALD E | | | | 16418 | 4364000 |
Payout Agreement
| No payout information available.. |