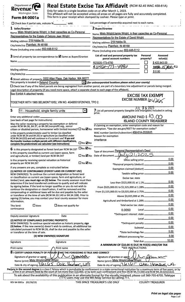
Property
Account |
| Property ID: | 811977 | Abbreviated Legal Description: | LOTS C & D SP 85-24.03225.330-4320 V1 SP P412 AF#85013823 |
| Geographic ID: | R03225-363-4330 | Agent Code: | |
| Type: | Real | | |
| Tax Area: | 332 - APPRAISER-Cpvl Schl Dist, Special Dist, improved, greater than 1 acre | Land Use Code | 11 |
| Open Space: | N | DFL | N |
| Historic Property: | N | Remodel Property: | N |
| Multi-Family Redevelopment: | N | | |
| Township: | 32 | Section: | 25 |
| Range: | R0 |
Location |
| Address: | 684 WEST BEACH RD COUPEVILLE, WA 98239 | Mapsco: | |
| Neighborhood: | Cycle 2 | Map ID: | 10 |
| Neighborhood CD: | 2 |
Owner |
| Name: | CAMPBELL, DORIS A | Owner ID: | 5537 |
| Mailing Address: | 61 SE 11TH AVE OAK HARBOR, WA 98277-3146 | % Ownership: | 100.0000000000% |
| | | Exemptions: | |
Taxes and Assessment Details
Values
| (+) Improvement Homesite Value: | + | $0 | |
| (+) Improvement Non-Homesite Value: | + | $546,816 | |
| (+) Land Homesite Value: | + | $0 | |
| (+) Land Non-Homesite Value: | + | $349,838 | |
| (+) Curr Use (HS): | + | $0 | $0 |
| (+) Curr Use (NHS): | + | $0 | $0 |
| | | -------------------------- | |
| (=) Market Value: | = | $896,654 | |
| (–) Productivity Loss: | – | $0 | |
| | | -------------------------- | |
| (=) Subtotal: | = | $896,654 | |
| (+) Senior Appraised Value: | + | $0 | |
| (+) Non-Senior Appraised Value: | + | $896,654 | |
| | | -------------------------- | |
| (=) Total Appraised Value: | = | $896,654 | |
| (–) Senior Exemption Loss: | – | $0 | |
| (–) Exemption Loss: | – | $0 | |
| | | -------------------------- | |
| (=) Taxable Value: | = | $896,654 | |
Taxing Jurisdiction
| Owner: | CAMPBELL, DORIS A | | |
| % Ownership: | 100.0000000000% | | |
| Total Value: | $896,654 | | |
| Tax Area: | 332 - APPRAISER-Cpvl Schl Dist, Special Dist, improved, greater than 1 acre |
| CF | Conservation Futures | 0.0316035091 | $896,654 | $896,654 | $28.34 | | |
| CEM2 | Cemetery #2 | 0.0095056933 | $896,654 | $896,654 | $8.52 | | |
| FIRE2 | Fire & Rescue Dist #2 N Whidbey GEN | 0.5475949600 | $896,654 | $896,654 | $491.00 | | |
| HOBOND | Hospital BOND | 0.1910887512 | $896,654 | $896,654 | $171.34 | | |
| HOGEN | Hospital GEN | 0.3902502903 | $896,654 | $896,654 | $349.92 | | |
| CE | County Current Expense | 0.3708482477 | $896,654 | $896,654 | $332.52 | | |
| CR | County Roads | 0.4584763726 | $896,654 | $896,654 | $411.09 | | |
| ISLANDEMS | Hospital GEN (EMS) | 0.5000000000 | $896,654 | $896,654 | $448.33 | | |
| LIB | Library Sno-Isle GEN | 0.3153421757 | $896,654 | $896,654 | $282.75 | | |
| LIBCAP | Library Sno-Isle BOND (Cap Fac Imp Area) | 0.0543427938 | $896,654 | $896,654 | $48.73 | | |
| POCOUP | Port of Coupeville GEN | 0.1093371703 | $896,654 | $896,654 | $98.04 | | |
| POCOUPIDD | Port of Coupeville IDD | 0.3409740022 | $896,654 | $896,654 | $305.74 | | |
| COUPSDTECH | School 204 CP (TECH) | 0.7545480007 | $896,654 | $896,654 | $676.57 | | |
| SCH204MO | School 204 Enrichment | 0.6716186034 | $896,654 | $896,654 | $602.21 | | |
| ST | State School | 1.3035497053 | $896,654 | $896,654 | $1,168.83 | | |
| ST2 | State School Part 2 | 0.8169543533 | $896,654 | $896,654 | $732.53 | | |
| | Total Tax Rate: | 6.8660346289 | | | | | |
| | | | | Taxes w/Current Exemptions: | $6,156.46 | | |
| | | | | Taxes w/o Exemptions: | $6,156.46 | | |
Improvement / Building
| Improvement #1: | MANUFACTURED HOME | State Code: | Y | 2079.5 sqft | Value: | $546,816 |
| Bathrooms: | 2 | Bedrooms: | 3 | | Ceiling: | PLASTER PAINTED | Cooling: | EVAP NO DUCT | | Exterior Wall/Cover: | VINYL | Floor Covering: | CARPET 100% | | Floor Structure: | SLAB ON GRADE | Foundation: | SLAB | | Heating: | FHA ELECTRIC | Interior Finish: | PLASTER | | Plumbing Fixture Cnt: | 1 | Roof Slope: | FLAT | | Roof Structure/Cover: | CJ ALUMINIUM HEAVY |   |   |
|
| | Type | Description | Class CD | Sub Class CD | Year Built | Area |
| | BAS | BASE/MAIN FLOOR | 4 | 0 | 1984 | 1311.5 |
| | DGR | DETACHED GARAGE | 4 | 0 | 1984 | 1344.0 |
| | OCP | OPEN CARPORT | 4 | 0 | 1984 | 224.0 |
| | LOF | LOFT | 4 | 0 | 1984 | 768.0 |
| | DGR | DETACHED GARAGE | 4 | 0 | 1984 | 1728.0 |
| | OCP | OPEN CARPORT | 4 | 0 | 1984 | 336.0 |
| | DGR | DETACHED GARAGE | 4 | 0 | 1984 | 14850.0 |
Sketch
Property Image
Land
| 1 | HS | HOMESITE | 1.0000 | 43560.00 | 9.79 | 0.00 | 1.00 | $220,000 | $0 |
| 2 | 91 | UNDEVELOPED LAND-METES AND BOUNDS | 8.7900 | 382892.40 | 9.79 | 0.00 | 1.00 | $129,838 | $0 |
Roll Value History
| 2026 | N/A | N/A | N/A | N/A | N/A |
| 2025 | $546,816 | $349,838 | $0 | $896,654 | $896,654 |
| 2024 | $423,629 | $300,000 | $0 | $723,629 | $723,629 |
| 2023 | $439,615 | $280,000 | $0 | $719,615 | $719,615 |
| 2022 | $412,603 | $260,000 | $0 | $672,603 | $672,603 |
| 2021 | $377,691 | $170,000 | $0 | $547,691 | $547,691 |
| 2020 | $378,776 | $160,000 | $0 | $538,776 | $538,776 |
| 2019 | $308,109 | $230,000 | $0 | $538,109 | $538,109 |
| 2018 | $317,737 | $230,000 | $0 | $547,737 | $547,737 |
| 2017 | $327,366 | $230,000 | $0 | $557,366 | $557,366 |
| 2016 | $136,464 | $230,000 | $0 | $366,464 | $366,464 |
| 2015 | $115,749 | $200,000 | $0 | $315,749 | $315,749 |
Deed and Sales History
Payout Agreement
| No payout information available.. |