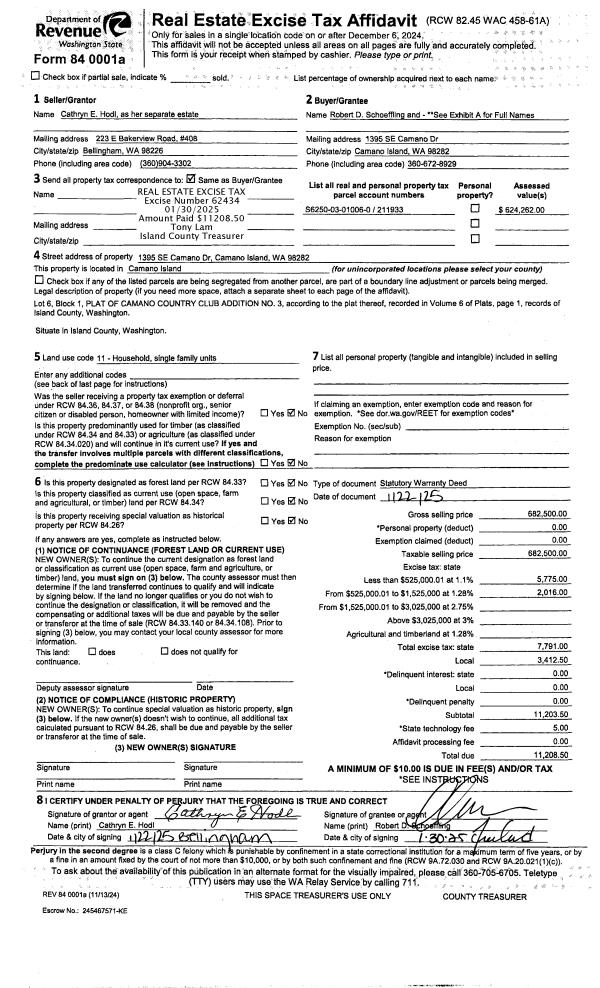
Property
Account |
| Property ID: | 812168 | Abbreviated Legal Description: | SHANG LA SH 2 LOT 1 SP 78-14.8150-02-03001-2 AF#4367893 |
| Geographic ID: | S8150-02-03001-3 | Agent Code: | |
| Type: | Real | | |
| Tax Area: | 310 - APPRAISER-Cpvl Schl Dist, outside Cpvl, improved & 1 acre or less | Land Use Code | 11 |
| Open Space: | N | DFL | N |
| Historic Property: | N | Remodel Property: | N |
| Multi-Family Redevelopment: | N | | |
| Township: | | Section: | |
| Range: | |
Location |
| Address: | 741 ARBOR DR COUPEVILLE, WA 98239 | Mapsco: | |
| Neighborhood: | Cycle 2 | Map ID: | 466 |
| Neighborhood CD: | 2 |
Owner |
| Name: | ROBERTS, R DIGBY | Owner ID: | 270846 |
| Mailing Address: | CHRIS D ROBERTS 15925 SE 44TH WAY BELLEVUE, WA 98006 | % Ownership: | 100.0000000000% |
| | | Exemptions: | |
Taxes and Assessment Details
Values
| (+) Improvement Homesite Value: | + | $0 | |
| (+) Improvement Non-Homesite Value: | + | $327,898 | |
| (+) Land Homesite Value: | + | $0 | |
| (+) Land Non-Homesite Value: | + | $701,702 | |
| (+) Curr Use (HS): | + | $0 | $0 |
| (+) Curr Use (NHS): | + | $0 | $0 |
| | | -------------------------- | |
| (=) Market Value: | = | $1,029,600 | |
| (–) Productivity Loss: | – | $0 | |
| | | -------------------------- | |
| (=) Subtotal: | = | $1,029,600 | |
| (+) Senior Appraised Value: | + | $0 | |
| (+) Non-Senior Appraised Value: | + | $1,029,600 | |
| | | -------------------------- | |
| (=) Total Appraised Value: | = | $1,029,600 | |
| (–) Senior Exemption Loss: | – | $0 | |
| (–) Exemption Loss: | – | $0 | |
| | | -------------------------- | |
| (=) Taxable Value: | = | $1,029,600 | |
Taxing Jurisdiction
| Owner: | ROBERTS, R DIGBY | | |
| % Ownership: | 100.0000000000% | | |
| Total Value: | $1,029,600 | | |
| Tax Area: | 310 - APPRAISER-Cpvl Schl Dist, outside Cpvl, improved & 1 acre or less |
| CF | Conservation Futures | 0.0316035091 | $1,029,600 | $1,029,600 | $32.54 | | |
| CEM2 | Cemetery #2 | 0.0095056933 | $1,029,600 | $1,029,600 | $9.79 | | |
| FIRE5 | Fire & Rescue Dist #5 C Whidbey GEN | 1.2008080668 | $1,029,600 | $1,029,600 | $1,236.35 | | |
| FIRE5BOND | Fire & Rescue Dist #5 C Whidbey BOND | 0.1400090713 | $1,029,600 | $1,029,600 | $144.15 | | |
| HOBOND | Hospital BOND | 0.1910887512 | $1,029,600 | $1,029,600 | $196.74 | | |
| HOGEN | Hospital GEN | 0.3902502903 | $1,029,600 | $1,029,600 | $401.80 | | |
| CE | County Current Expense | 0.3708482477 | $1,029,600 | $1,029,600 | $381.83 | | |
| CR | County Roads | 0.4584763726 | $1,029,600 | $1,029,600 | $472.05 | | |
| ISLANDEMS | Hospital GEN (EMS) | 0.5000000000 | $1,029,600 | $1,029,600 | $514.80 | | |
| LIB | Library Sno-Isle GEN | 0.3153421757 | $1,029,600 | $1,029,600 | $324.68 | | |
| LIBCAP | Library Sno-Isle BOND (Cap Fac Imp Area) | 0.0543427938 | $1,029,600 | $1,029,600 | $55.95 | | |
| POCOUP | Port of Coupeville GEN | 0.1093371703 | $1,029,600 | $1,029,600 | $112.57 | | |
| POCOUPIDD | Port of Coupeville IDD | 0.3409740022 | $1,029,600 | $1,029,600 | $351.07 | | |
| COUPSDTECH | School 204 CP (TECH) | 0.7545480007 | $1,029,600 | $1,029,600 | $776.88 | | |
| SCH204MO | School 204 Enrichment | 0.6716186034 | $1,029,600 | $1,029,600 | $691.50 | | |
| ST | State School | 1.3035497053 | $1,029,600 | $1,029,600 | $1,342.13 | | |
| ST2 | State School Part 2 | 0.8169543533 | $1,029,600 | $1,029,600 | $841.14 | | |
| | Total Tax Rate: | 7.6592568070 | | | | | |
| | | | | Taxes w/Current Exemptions: | $7,885.97 | | |
| | | | | Taxes w/o Exemptions: | $7,885.97 | | |
Improvement / Building
| Improvement #1: | RESIDENTIAL | State Code: | Y | 1447.0 sqft | Value: | $327,898 |
| Bathrooms: | 1 | Bedrooms: | 2 | | Ceiling: | ACOUSTIC FURRED | Exterior Wall/Cover: | WOOD SIDING | | Floor Covering: | CARPET/VINYL 60-40 | Floor Structure: | WOOD W/SUBFLOOR | | Foundation: | CONCRETE | Heating: | FHA OIL | | Interior Finish: | DRYWALL PAINT | Plumbing Fixture Cnt: | 6 | | Roof Slope: | 8" IN 12" | Roof Structure/Cover: | CJ ASPHALT |
|
| | Type | Description | Class CD | Sub Class CD | Year Built | Area |
| | BAS | BASE/MAIN FLOOR | 3 | 0 | 1935 | 1447.0 |
| | UB6 | BASEMENT UNFINISHED 6" | 3 | 0 | 1935 | 682.0 |
| | OCP | OPEN CARPORT | 3 | 0 | 1935 | 440.0 |
| | UTY | STORAGE/UTILITY | 3 | 0 | 1935 | 280.0 |
| | OWP | OPEN WOOD PORCH W/STEPS | 3 | 0 | 1935 | 528.0 |
| | oPOL | POLE BARN | 2 | 0 | 1935 | 2304.0 |
Sketch
| No sketches available for this property. |
Property Image
Land
| 1 | MB | MEDIUM BANK | 0.7500 | 32670.00 | 158.00 | 0.00 | 1.00 | $700,000 | $0 |
| 2 | 55 | TIDES | 0.0000 | 0.00 | 158.00 | 0.00 | 1.00 | $1,702 | $0 |
Roll Value History
| 2026 | N/A | N/A | N/A | N/A | N/A |
| 2025 | $327,898 | $701,702 | $0 | $1,029,600 | $1,029,600 |
| 2024 | $329,997 | $676,702 | $0 | $1,006,699 | $1,006,699 |
| 2023 | $334,564 | $651,702 | $0 | $986,266 | $986,266 |
| 2022 | $307,107 | $526,702 | $0 | $833,809 | $833,809 |
| 2021 | $270,638 | $501,702 | $0 | $772,340 | $772,340 |
| 2020 | $264,665 | $426,702 | $0 | $691,367 | $691,367 |
| 2019 | $195,279 | $476,702 | $0 | $671,981 | $671,981 |
| 2018 | $73,711 | $476,702 | $0 | $550,413 | $550,413 |
| 2017 | $74,737 | $451,702 | $0 | $526,439 | $526,439 |
| 2016 | $76,787 | $451,702 | $0 | $528,489 | $528,489 |
| 2015 | $78,838 | $457,471 | $0 | $536,309 | $536,309 |
| 2014 | $80,889 | $457,471 | $0 | $538,360 | $538,360 |
Deed and Sales History
Payout Agreement
| No payout information available.. |