Property
Account |
| Property ID: | 812209 | Abbreviated Legal Description: | PT SE SE & PT SW SE DESC: BG SECR SEC 21 N89*W1433.71' N30.01' N293.02' TO NWCR OF SP 199-12 AF#4353086 TPB N1006.40' S89*E250.02' S317.37' TO NLN DRAINAGE EZ AF#4170191 S20.81' S73*E117.59' S2*W103.68' N89*E68.37' S27.66' S89*E218.33' S89*E175.02' S136.9 |
| Geographic ID: | R33221-060-4260 | Agent Code: | |
| Type: | Real | | |
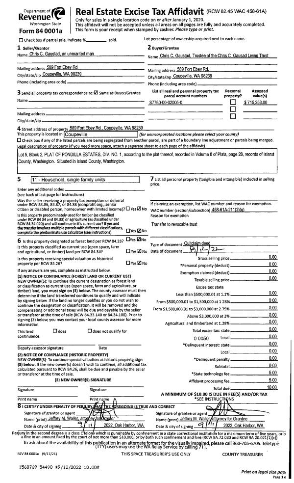
| Tax Area: | 512 - APPRAISER-Stan/Cam Schl Dist, improved, greater than 1 acre | Land Use Code | 69 |
| Open Space: | N | DFL | N |
| Historic Property: | N | Remodel Property: | N |
| Multi-Family Redevelopment: | N | | |
| Township: | 32 | Section: | 21 |
| Range: | R3 |
Location |
| Address: | | Mapsco: | |
| Neighborhood: | 51cRR-highway 532 | Map ID: | 969 |
| Neighborhood CD: | 51cRRhw532 |
Owner |
| Name: | BDT HOLDINGS LLC | Owner ID: | 312035 |
| Mailing Address: | 18928 94TH DR NW STANWOOD, WA 98292 | % Ownership: | 100.0000000000% |
| | | Exemptions: | |
Taxes and Assessment Details
Values
| (+) Improvement Homesite Value: | + | $0 | |
| (+) Improvement Non-Homesite Value: | + | $202,131 | |
| (+) Land Homesite Value: | + | $0 | |
| (+) Land Non-Homesite Value: | + | $370,000 | |
| (+) Curr Use (HS): | + | $0 | $0 |
| (+) Curr Use (NHS): | + | $0 | $0 |
| | | -------------------------- | |
| (=) Market Value: | = | $572,131 | |
| (–) Productivity Loss: | – | $0 | |
| | | -------------------------- | |
| (=) Subtotal: | = | $572,131 | |
| (+) Senior Appraised Value: | + | $0 | |
| (+) Non-Senior Appraised Value: | + | $572,131 | |
| | | -------------------------- | |
| (=) Total Appraised Value: | = | $572,131 | |
| (–) Senior Exemption Loss: | – | $0 | |
| (–) Exemption Loss: | – | $0 | |
| | | -------------------------- | |
| (=) Taxable Value: | = | $572,131 | |
Taxing Jurisdiction
| Owner: | BDT HOLDINGS LLC | | |
| % Ownership: | 100.0000000000% | | |
| Total Value: | $572,131 | | |
| Tax Area: | 512 - APPRAISER-Stan/Cam Schl Dist, improved, greater than 1 acre |
| CF | Conservation Futures | 0.0316035091 | $572,131 | $572,131 | $18.08 | | |
| EMS1 | Fire & Rescue Dist #1 Camano GEN (EMS) | 0.3677864386 | $572,131 | $572,131 | $210.42 | | |
| FIRE1 | Fire & Rescue Dist #1 Camano GEN | 1.2502910536 | $572,131 | $572,131 | $715.33 | | |
| FIRE1BOND | Fire & Rescue Dist #1 Camano BOND | 0.1570001679 | $572,131 | $572,131 | $89.82 | | |
| CE | County Current Expense | 0.3708482477 | $572,131 | $572,131 | $212.17 | | |
| CR | County Roads | 0.4584763726 | $572,131 | $572,131 | $262.31 | | |
| LCIB | Library Sno-Isle BOND (Camano Island) | 0.0396325772 | $572,131 | $572,131 | $22.68 | | |
| LIB | Library Sno-Isle GEN | 0.3153421757 | $572,131 | $572,131 | $180.42 | | |
| SCH205_401 | School 205-401 Enrichment | 1.2698420524 | $572,131 | $572,131 | $726.52 | | |
| SCH205BOND | School 205-401 BOND | 0.9396497583 | $572,131 | $572,131 | $537.60 | | |
| ST | State School | 1.3035497053 | $572,131 | $572,131 | $745.80 | | |
| ST2 | State School Part 2 | 0.8169543533 | $572,131 | $572,131 | $467.40 | | |
| | Total Tax Rate: | 7.3209764117 | | | | | |
| | | | | Taxes w/Current Exemptions: | $4,188.55 | | |
| | | | | Taxes w/o Exemptions: | $4,188.55 | | |
Improvement / Building
| Improvement #1: | COMMERCIAL | State Code: | Y | 4315.0 sqft | Value: | $202,131 |
| Bathrooms: | 0 | Bedrooms: | 0 | | Ceiling: | PAINT OPEN FLOOR BAS | Exterior Wall/Cover: | STL/ALUM/SINGWL ST F | | Floor Covering: | CONCRETE SEALER | Floor Structure: | CONCRETE ON GROUND | | Foundation: | SLAB | Heating: | SPACE HEATERS | | Interior Finish: | WAREHOUSE STORAGE | Plumbing Fixture Cnt: | 1 | | Roof Structure/Cover: | METAL/OPEN STEEL |   |   |
|
| | Type | Description | Class CD | Sub Class CD | Year Built | Area |
| | BAS | BASE/MAIN FLOOR | 3 | 0 | 2006 | 4015.0 |
| | OP1 | OPEN PORCH SLAB | 3 | 0 | 2006 | 5890.5 |
| | OP3 | OPEN PORCH W/ROOF | 3 | 0 | 2006 | 115.0 |
| | STG | STORAGE | 3 | 0 | 2006 | 175.0 |
| | STG | STORAGE | 3 | 0 | 2006 | 125.0 |
| | oUTI | UTILITY | 3 | 0 | 2006 | 0.0 |
Sketch
Property Image
Land
| 1 | 72 | INDUSTRIAL STORAGE | 12.8000 | 557568.00 | 0.00 | 0.00 | 1.00 | $370,000 | $0 |
Roll Value History
| 2026 | N/A | N/A | N/A | N/A | N/A |
| 2025 | $202,131 | $370,000 | $0 | $572,131 | $572,131 |
| 2024 | $213,713 | $340,000 | $0 | $553,713 | $553,713 |
| 2023 | $222,675 | $290,000 | $0 | $512,675 | $512,675 |
| 2022 | $187,600 | $270,000 | $0 | $457,600 | $457,600 |
| 2021 | $183,417 | $270,000 | $0 | $453,417 | $453,417 |
| 2020 | $182,271 | $270,000 | $0 | $452,271 | $452,271 |
| 2019 | $185,448 | $270,000 | $0 | $455,448 | $455,448 |
| 2018 | $185,593 | $240,000 | $0 | $425,593 | $425,593 |
| 2017 | $185,881 | $192,000 | $0 | $377,881 | $377,881 |
| 2016 | $186,463 | $192,000 | $0 | $378,463 | $378,463 |
| 2015 | $219,196 | $164,891 | $0 | $384,087 | $384,087 |
Deed and Sales History
| 1 | 04/08/2024 | PRD | Personal Representatives Deed | TANIELIAN, RONALD WAYNE | BDT HOLDINGS LLC | | | $0.00 | 59684 | 4571390 |
Payout Agreement
| No payout information available.. |