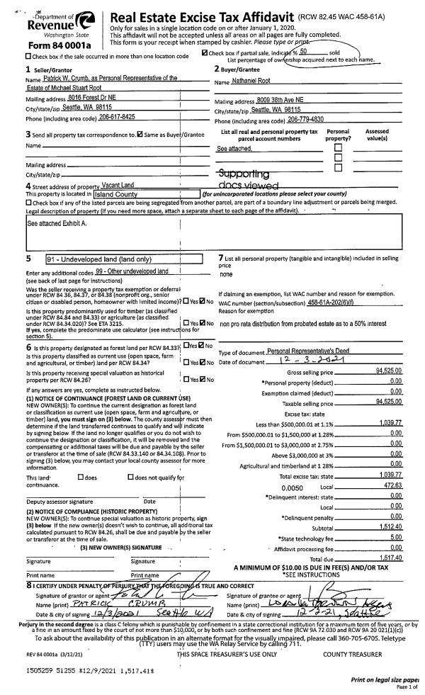
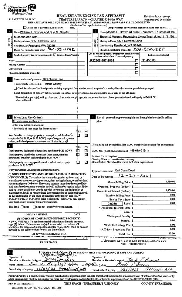
Property
Account |
| Property ID: | 81226 | Abbreviated Legal Description: | 35 - IN GL2:BG NLY CR N CAMANO S75*E70' N14*E130' N75*W51.25' S28*W132 .2' TPB |
| Geographic ID: | R23115-371-4460 | Agent Code: | |
| Type: | Real | | |
| Tax Area: | 510 - APPRAISER-Stan/Cam Schl Dist, improved & 1 acre or less | Land Use Code | 11 |
| Open Space: | N | DFL | N |
| Historic Property: | N | Remodel Property: | N |
| Multi-Family Redevelopment: | N | | |
| Township: | 31 | Section: | 15 |
| Range: | R2 |
Location |
| Address: | 864 WESTVIEW CT CAMANO ISLAND, WA 98282 | Mapsco: | |
| Neighborhood: | Cycle 5 | Map ID: | 486 |
| Neighborhood CD: | 5 |
Owner |
| Name: | SCHMALZ TTEE, JOSEPH MARK | Owner ID: | 302017 |
| Mailing Address: | JULENE MARIE SCHMALZ TTEE 867 WESTVIEW CT CAMANO ISLAND, WA 98260 | % Ownership: | 100.0000000000% |
| | | Exemptions: | |
Taxes and Assessment Details
Values
| (+) Improvement Homesite Value: | + | $0 | |
| (+) Improvement Non-Homesite Value: | + | $170,925 | |
| (+) Land Homesite Value: | + | $0 | |
| (+) Land Non-Homesite Value: | + | $200,000 | |
| (+) Curr Use (HS): | + | $0 | $0 |
| (+) Curr Use (NHS): | + | $0 | $0 |
| | | -------------------------- | |
| (=) Market Value: | = | $370,925 | |
| (–) Productivity Loss: | – | $0 | |
| | | -------------------------- | |
| (=) Subtotal: | = | $370,925 | |
| (+) Senior Appraised Value: | + | $0 | |
| (+) Non-Senior Appraised Value: | + | $370,925 | |
| | | -------------------------- | |
| (=) Total Appraised Value: | = | $370,925 | |
| (–) Senior Exemption Loss: | – | $0 | |
| (–) Exemption Loss: | – | $0 | |
| | | -------------------------- | |
| (=) Taxable Value: | = | $370,925 | |
Taxing Jurisdiction
| Owner: | SCHMALZ TTEE, JOSEPH MARK | | |
| % Ownership: | 100.0000000000% | | |
| Total Value: | $370,925 | | |
| Tax Area: | 510 - APPRAISER-Stan/Cam Schl Dist, improved & 1 acre or less |
| CF | Conservation Futures | 0.0316035091 | $370,925 | $370,925 | $11.72 | | |
| EMS1 | Fire & Rescue Dist #1 Camano GEN (EMS) | 0.3677864386 | $370,925 | $370,925 | $136.42 | | |
| FIRE1 | Fire & Rescue Dist #1 Camano GEN | 1.2502910536 | $370,925 | $370,925 | $463.76 | | |
| FIRE1BOND | Fire & Rescue Dist #1 Camano BOND | 0.1570001679 | $370,925 | $370,925 | $58.24 | | |
| CE | County Current Expense | 0.3708482477 | $370,925 | $370,925 | $137.56 | | |
| CR | County Roads | 0.4584763726 | $370,925 | $370,925 | $170.06 | | |
| LCIB | Library Sno-Isle BOND (Camano Island) | 0.0396325772 | $370,925 | $370,925 | $14.70 | | |
| LIB | Library Sno-Isle GEN | 0.3153421757 | $370,925 | $370,925 | $116.97 | | |
| SCH205_401 | School 205-401 Enrichment | 1.2698420524 | $370,925 | $370,925 | $471.02 | | |
| SCH205BOND | School 205-401 BOND | 0.9396497583 | $370,925 | $370,925 | $348.54 | | |
| ST | State School | 1.3035497053 | $370,925 | $370,925 | $483.52 | | |
| ST2 | State School Part 2 | 0.8169543533 | $370,925 | $370,925 | $303.03 | | |
| | Total Tax Rate: | 7.3209764117 | | | | | |
| | | | | Taxes w/Current Exemptions: | $2,715.54 | | |
| | | | | Taxes w/o Exemptions: | $2,715.54 | | |
Improvement / Building
| Improvement #1: | RESIDENTIAL | State Code: | Y | 816.0 sqft | Value: | $170,925 |
| Bathrooms: | 1 | Bedrooms: | 2 | | Ceiling: | TONGUE & GROOVE | Exterior Wall/Cover: | WOOD SIDING | | Floor Covering: | HARDWOOD 100% | Floor Structure: | WOOD W/SUBFLOOR | | Foundation: | CONCRETE | Heating: | BASEBOARD ELECTRIC | | Interior Finish: | DRYWALL PAINT | Plumbing Fixture Cnt: | 6 | | Roof Slope: | 3" IN 12" | Roof Structure/Cover: | BEAM BUILT-UP ROCK |
|
| | Type | Description | Class CD | Sub Class CD | Year Built | Area |
| | BAS | BASE/MAIN FLOOR | 3 | 0 | 1965 | 816.0 |
| | OCP | OPEN CARPORT | 3 | 0 | 1965 | 190.0 |
| | UTY | STORAGE/UTILITY | 3 | 0 | 1965 | 50.0 |
| | OWP | OPEN WOOD PORCH W/STEPS | 3 | 0 | 1965 | 260.0 |
| | UTY | STORAGE/UTILITY | 3 | 0 | 1965 | 48.0 |
Sketch
Property Image
Land
| 1 | 12 | SQ (00000-06000) | 0.1800 | 7840.80 | 0.00 | 0.00 | 1.00 | $200,000 | $0 |
Roll Value History
| 2026 | N/A | N/A | N/A | N/A | N/A |
| 2025 | $170,925 | $200,000 | $0 | $370,925 | $370,925 |
| 2024 | $176,243 | $200,000 | $0 | $376,243 | $376,243 |
| 2023 | $178,384 | $200,000 | $0 | $378,384 | $378,384 |
| 2022 | $163,468 | $200,000 | $0 | $363,468 | $363,468 |
| 2021 | $143,831 | $140,000 | $0 | $283,831 | $283,831 |
| 2020 | $140,009 | $120,000 | $0 | $260,009 | $260,009 |
| 2019 | $98,424 | $160,000 | $0 | $258,424 | $258,424 |
| 2018 | $98,707 | $120,000 | $0 | $218,707 | $218,707 |
| 2017 | $99,271 | $100,000 | $0 | $199,271 | $199,271 |
| 2016 | $100,399 | $90,000 | $0 | $190,399 | $190,399 |
| 2015 | $77,775 | $65,000 | $0 | $142,775 | $142,775 |
| 2014 | $78,850 | $65,000 | $0 | $143,850 | $143,850 |
| 2013 | $79,923 | $41,600 | $0 | $121,523 | $121,523 |
| 2012 | $80,997 | $41,600 | $0 | $122,597 | $122,597 |
| 2011 | $82,072 | $52,000 | $0 | $134,072 | $134,072 |
| 2010 | $82,695 | $52,000 | $0 | $134,695 | $134,695 |
| 2009 | $83,585 | $90,000 | $0 | $173,585 | $173,585 |
| 2008 | $84,787 | $76,125 | $0 | $160,912 | $160,912 |
| 2007 | $85,977 | $76,125 | $0 | $162,102 | $162,102 |
Deed and Sales History
| 1 | 09/16/2021 | QCD | Quit Claim Deed | SCHMALZ, JULENE MARIE | SCHMALZ TTEE, JOSEPH MARK | | | $0.00 | 50957 | 4534113 |
| 2 | 06/30/2021 | WD | Warranty Deed | HILL, BARBARA C | SCHMALZ, JULENE MARIE | | | $410,000.00 | 49007 | 4523486 |
| 3 | 08/13/2014 | WD | Warranty Deed | TIEDEMAN, SCOTT | HILL, BARBARA C | | | $174,000.00 | 16519 | 4364376 |
| 4 | 10/11/2012 | ESTSEPPROP | Establish Separate Property | FORSTROM, JULIE | TIEDEMAN, SCOTT | | | $0.00 | 9437 | 4327155 |
| 5 | 10/10/2004 | WD | Warranty Deed | FINN, JUDITH | FORSTROM, JULIE | | | $160,000.00 | 34635 | 4079206 |
| 6 | 04/19/1999 | QCD | Quit Claim Deed | SCHERMERHORN, DOUGLAS A | FINN, JUDITH | | | $0.00 | 91484 | 99009656 |
| 7 | 05/01/1997 | DECREE | Divorce Decree/Legal Separation | SCHERMERHORN, DOUGLAS A | SCHERMERHORN, DOUGLAS A | | | $0.00 | 71922 | 97008857 |
| 8 | 02/01/1983 | WD | Warranty Deed | SMITH, HAZEL A | SCHERMERHORN, DOUGLAS A | | | $0.00 | 31178 | 409121 |
| 9 | 01/01/1900 | OTHER | Other - Misc. Documents | Unknown | SMITH, HAZEL A | | | $0.00 | 0 | 0 |
Payout Agreement
| No payout information available.. |