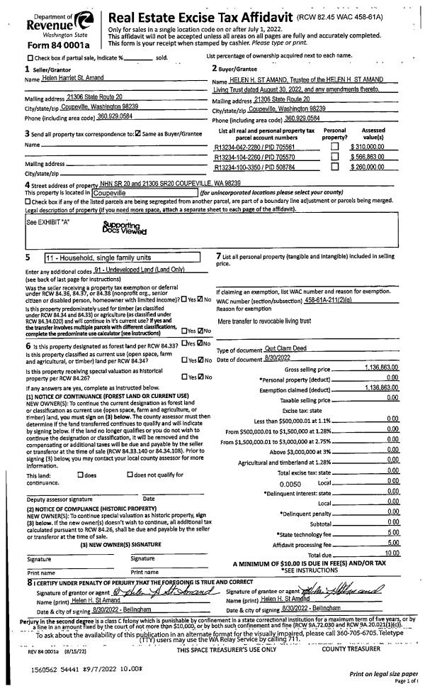
Property
Account |
| Property ID: | 812281 | Abbreviated Legal Description: | CAMANO SUNRISE VIEW ESTATES #2 LOT 10 |
| Geographic ID: | S8556-02-00010-0 | Agent Code: | |
| Type: | Real | | |
| Tax Area: | 510 - APPRAISER-Stan/Cam Schl Dist, improved & 1 acre or less | Land Use Code | 11 |
| Open Space: | N | DFL | N |
| Historic Property: | N | Remodel Property: | N |
| Multi-Family Redevelopment: | N | | |
| Township: | 31 | Section: | 19 |
| Range: | R3 |
Location |
| Address: | 1303 SUNRISE ESTATES PLACE CAMANO ISLAND, WA 98282 | Mapsco: | |
| Neighborhood: | Cycle 5 | Map ID: | 931 |
| Neighborhood CD: | 5 |
Owner |
| Name: | RILEY, DAVID S | Owner ID: | 278963 |
| Mailing Address: | MICHELE P RILEY 1303 SUNRISE ESTATES PLACE CAMANO ISLAND, WA 98282 | % Ownership: | 100.0000000000% |
| | | Exemptions: | |
Taxes and Assessment Details
Values
| (+) Improvement Homesite Value: | + | $0 | |
| (+) Improvement Non-Homesite Value: | + | $541,302 | |
| (+) Land Homesite Value: | + | $0 | |
| (+) Land Non-Homesite Value: | + | $295,000 | |
| (+) Curr Use (HS): | + | $0 | $0 |
| (+) Curr Use (NHS): | + | $0 | $0 |
| | | -------------------------- | |
| (=) Market Value: | = | $836,302 | |
| (–) Productivity Loss: | – | $0 | |
| | | -------------------------- | |
| (=) Subtotal: | = | $836,302 | |
| (+) Senior Appraised Value: | + | $0 | |
| (+) Non-Senior Appraised Value: | + | $836,302 | |
| | | -------------------------- | |
| (=) Total Appraised Value: | = | $836,302 | |
| (–) Senior Exemption Loss: | – | $0 | |
| (–) Exemption Loss: | – | $0 | |
| | | -------------------------- | |
| (=) Taxable Value: | = | $836,302 | |
Taxing Jurisdiction
| Owner: | RILEY, DAVID S | | |
| % Ownership: | 100.0000000000% | | |
| Total Value: | $836,302 | | |
| Tax Area: | 510 - APPRAISER-Stan/Cam Schl Dist, improved & 1 acre or less |
| CF | Conservation Futures | 0.0316035091 | $836,302 | $836,302 | $26.43 | | |
| EMS1 | Fire & Rescue Dist #1 Camano GEN (EMS) | 0.3677864386 | $836,302 | $836,302 | $307.58 | | |
| FIRE1 | Fire & Rescue Dist #1 Camano GEN | 1.2502910536 | $836,302 | $836,302 | $1,045.62 | | |
| FIRE1BOND | Fire & Rescue Dist #1 Camano BOND | 0.1570001679 | $836,302 | $836,302 | $131.30 | | |
| CE | County Current Expense | 0.3708482477 | $836,302 | $836,302 | $310.14 | | |
| CR | County Roads | 0.4584763726 | $836,302 | $836,302 | $383.42 | | |
| LCIB | Library Sno-Isle BOND (Camano Island) | 0.0396325772 | $836,302 | $836,302 | $33.14 | | |
| LIB | Library Sno-Isle GEN | 0.3153421757 | $836,302 | $836,302 | $263.72 | | |
| SCH205_401 | School 205-401 Enrichment | 1.2698420524 | $836,302 | $836,302 | $1,061.97 | | |
| SCH205BOND | School 205-401 BOND | 0.9396497583 | $836,302 | $836,302 | $785.83 | | |
| ST | State School | 1.3035497053 | $836,302 | $836,302 | $1,090.16 | | |
| ST2 | State School Part 2 | 0.8169543533 | $836,302 | $836,302 | $683.22 | | |
| | Total Tax Rate: | 7.3209764117 | | | | | |
| | | | | Taxes w/Current Exemptions: | $6,122.53 | | |
| | | | | Taxes w/o Exemptions: | $6,122.53 | | |
Improvement / Building
| Improvement #1: | RESIDENTIAL | State Code: | Y | 2345.4 sqft | Value: | $541,302 |
| Bathrooms: | 2.5 | Bedrooms: | 3 | | Ceiling: | DRYWALL PAINTED | Exterior Wall/Cover: | CEMENT FIBER | | Floor Covering: | CERAMIC TILE/HWD 40/60 | Floor Structure: | WOOD W/SUBFLOOR | | Foundation: | CONCRETE | Heating: | WALL HEAT ELECTRIC | | Interior Finish: | DRYWALL PAINT | Plumbing Fixture Cnt: | 13 | | Roof Slope: | 6" IN 12" | Roof Structure/Cover: | CJ ASPHALT |
|
| | Type | Description | Class CD | Sub Class CD | Year Built | Area |
| | BAS | BASE/MAIN FLOOR | 4 | 0 | 2017 | 2345.4 |
| | AGR | ATTACHED GARAGE | 4 | 0 | 2017 | 609.0 |
| | OWC | OPEN WOOD PORCH W/STEPS/ROOF/C | 4 | 0 | 2017 | 144.6 |
Sketch
Property Image
Land
| 1 | 15 | SQ (12001-21780) | 0.0000 | 0.00 | 0.00 | 0.00 | 1.00 | $295,000 | $0 |
Roll Value History
| 2026 | N/A | N/A | N/A | N/A | N/A |
| 2025 | $541,302 | $295,000 | $0 | $836,302 | $836,302 |
| 2024 | $545,739 | $275,000 | $0 | $820,739 | $820,739 |
| 2023 | $550,176 | $275,000 | $0 | $825,176 | $825,176 |
| 2022 | $502,219 | $250,000 | $0 | $752,219 | $752,219 |
| 2021 | $440,200 | $180,000 | $0 | $620,200 | $620,200 |
| 2020 | $427,392 | $150,000 | $0 | $577,392 | $577,392 |
| 2019 | $327,223 | $170,000 | $0 | $497,223 | $497,223 |
| 2018 | $328,055 | $150,000 | $0 | $478,055 | $478,055 |
| 2017 | $333,051 | $125,000 | $0 | $458,051 | $458,051 |
| 2016 | $0 | $45,000 | $0 | $45,000 | $45,000 |
Deed and Sales History
| 1 | 03/09/2017 | WD | Warranty Deed | NORTHWEST QUALITY BUILDERS LLC | RILEY, DAVID S | | | $454,500.00 | 28469 | 4418957 |
| 2 | 08/30/2016 | WD | Warranty Deed | HANSELL MITZEL LLC | NORTHWEST QUALITY BUILDERS LLC | | | $110,000.00 | 25887 | 4406226 |
Payout Agreement
| No payout information available.. |