Property
Account |
| Property ID: | 812282 | Abbreviated Legal Description: | CAMANO SUNRISE VIEW ESTATES #2 LOT 11 |
| Geographic ID: | S8556-02-00011-0 | Agent Code: | |
| Type: | Real | | |
| Tax Area: | 510 - APPRAISER-Stan/Cam Schl Dist, improved & 1 acre or less | Land Use Code | 11 |
| Open Space: | N | DFL | N |
| Historic Property: | N | Remodel Property: | N |
| Multi-Family Redevelopment: | N | | |
| Township: | 31 | Section: | 19 |
| Range: | R3 |
Location |
| Address: | 1310 SUNRISE ESTATES PLACE CAMANO ISLAND, WA 98282 | Mapsco: | |
| Neighborhood: | Cycle 5 | Map ID: | 931 |
| Neighborhood CD: | 5 |
Owner |
| Name: | TURFAROLO, JEFFREY J | Owner ID: | 302517 |
| Mailing Address: | PO BOX 3108 EVERETT, WA 98213 | % Ownership: | 100.0000000000% |
| | | Exemptions: | |
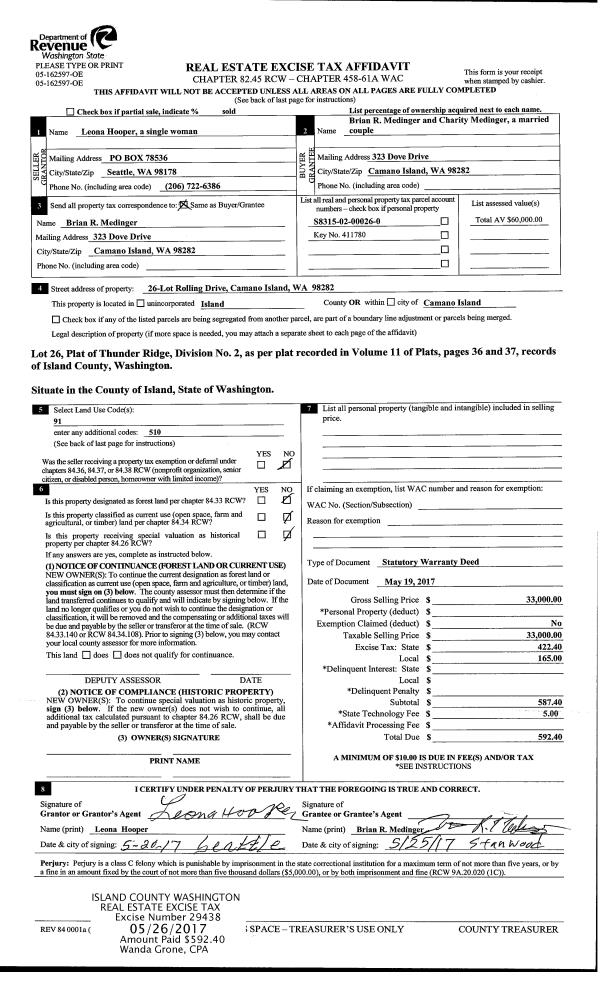
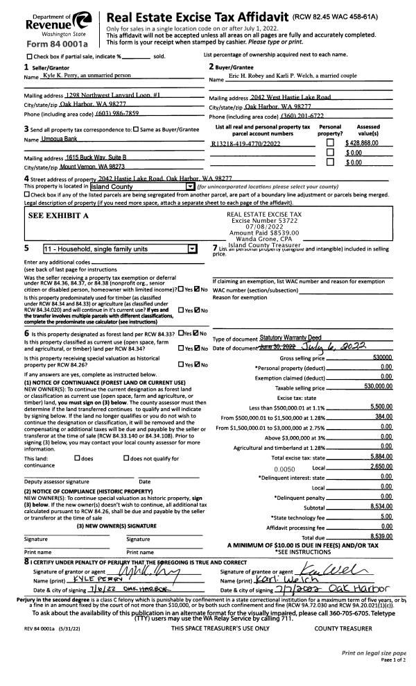
Taxes and Assessment Details
Values
| (+) Improvement Homesite Value: | + | $0 | |
| (+) Improvement Non-Homesite Value: | + | $474,100 | |
| (+) Land Homesite Value: | + | $0 | |
| (+) Land Non-Homesite Value: | + | $270,000 | |
| (+) Curr Use (HS): | + | $0 | $0 |
| (+) Curr Use (NHS): | + | $0 | $0 |
| | | -------------------------- | |
| (=) Market Value: | = | $744,100 | |
| (–) Productivity Loss: | – | $0 | |
| | | -------------------------- | |
| (=) Subtotal: | = | $744,100 | |
| (+) Senior Appraised Value: | + | $0 | |
| (+) Non-Senior Appraised Value: | + | $744,100 | |
| | | -------------------------- | |
| (=) Total Appraised Value: | = | $744,100 | |
| (–) Senior Exemption Loss: | – | $0 | |
| (–) Exemption Loss: | – | $0 | |
| | | -------------------------- | |
| (=) Taxable Value: | = | $744,100 | |
Taxing Jurisdiction
| Owner: | TURFAROLO, JEFFREY J | | |
| % Ownership: | 100.0000000000% | | |
| Total Value: | $744,100 | | |
| Tax Area: | 510 - APPRAISER-Stan/Cam Schl Dist, improved & 1 acre or less |
| CF | Conservation Futures | 0.0316035091 | $744,100 | $744,100 | $23.52 | | |
| EMS1 | Fire & Rescue Dist #1 Camano GEN (EMS) | 0.3677864386 | $744,100 | $744,100 | $273.67 | | |
| FIRE1 | Fire & Rescue Dist #1 Camano GEN | 1.2502910536 | $744,100 | $744,100 | $930.34 | | |
| FIRE1BOND | Fire & Rescue Dist #1 Camano BOND | 0.1570001679 | $744,100 | $744,100 | $116.82 | | |
| CE | County Current Expense | 0.3708482477 | $744,100 | $744,100 | $275.95 | | |
| CR | County Roads | 0.4584763726 | $744,100 | $744,100 | $341.15 | | |
| LCIB | Library Sno-Isle BOND (Camano Island) | 0.0396325772 | $744,100 | $744,100 | $29.49 | | |
| LIB | Library Sno-Isle GEN | 0.3153421757 | $744,100 | $744,100 | $234.65 | | |
| SCH205_401 | School 205-401 Enrichment | 1.2698420524 | $744,100 | $744,100 | $944.89 | | |
| SCH205BOND | School 205-401 BOND | 0.9396497583 | $744,100 | $744,100 | $699.19 | | |
| ST | State School | 1.3035497053 | $744,100 | $744,100 | $969.97 | | |
| ST2 | State School Part 2 | 0.8169543533 | $744,100 | $744,100 | $607.90 | | |
| | Total Tax Rate: | 7.3209764117 | | | | | |
| | | | | Taxes w/Current Exemptions: | $5,447.54 | | |
| | | | | Taxes w/o Exemptions: | $5,447.54 | | |
Improvement / Building
| Improvement #1: | RESIDENTIAL | State Code: | Y | 2310.0 sqft | Value: | $474,100 |
| Bathrooms: | 3 | Bedrooms: | 4 | | Ceiling: | DRYWALL PAINTED | Cooling: | HEAT PUMP/CONV/V | | Exterior Wall/Cover: | CEMENT FIBER | Floor Covering: | CARPET/VINYL 20-80 | | Floor Structure: | WOOD W/SUBFLOOR | Foundation: | CONCRETE | | Interior Finish: | DRYWALL PAINT | Plumbing Fixture Cnt: | 13 | | Roof Slope: | 6" IN 12" | Roof Structure/Cover: | CJ ASPHALT |
|
| | Type | Description | Class CD | Sub Class CD | Year Built | Area |
| | BAS | BASE/MAIN FLOOR | 4 | 0 | 2018 | 1418.0 |
| | AGR | ATTACHED GARAGE | 4 | 0 | 2018 | 456.0 |
| | DWN | DOWNSTAIRS LIVING AREA | 4 | 0 | 2018 | 892.0 |
| | OWP | OPEN WOOD PORCH W/STEPS | 4 | 0 | 2018 | 64.0 |
| | OWR | OPEN WOOD PORCH W/STEPS/ROOF | 4 | 0 | 2018 | 35.0 |
Sketch
Property Image
Land
| 1 | 15 | SQ (12001-21780) | 0.0000 | 0.00 | 0.00 | 0.00 | 1.00 | $270,000 | $0 |
Roll Value History
| 2026 | N/A | N/A | N/A | N/A | N/A |
| 2025 | $474,100 | $270,000 | $0 | $744,100 | $744,100 |
| 2024 | $477,957 | $250,000 | $0 | $727,957 | $727,957 |
| 2023 | $481,811 | $230,000 | $0 | $711,811 | $711,811 |
| 2022 | $439,773 | $200,000 | $0 | $639,773 | $639,773 |
| 2021 | $385,451 | $140,000 | $0 | $525,451 | $525,451 |
| 2020 | $375,037 | $120,000 | $0 | $495,037 | $495,037 |
| 2019 | $286,204 | $160,000 | $0 | $446,204 | $446,204 |
| 2018 | $288,367 | $140,000 | $0 | $428,367 | $428,367 |
| 2017 | $0 | $110,000 | $0 | $110,000 | $110,000 |
| 2016 | $0 | $45,000 | $0 | $45,000 | $45,000 |
Deed and Sales History
| 1 | 12/27/2021 | WD | Warranty Deed | LAYTON, CHRISTOPHER JOHN | TURFAROLO, JEFFREY J | | | $720,000.00 | 51523 | 4536920 |
| 2 | 12/19/2017 | WD | Warranty Deed | CORNERSTONE HOMES NW LLC | LAYTON, CHRISTOPHER JOHN | | | $439,950.00 | 32458 | 4436572 |
| 3 | 03/28/2017 | WD | Warranty Deed | HANSELL MITZEL LLC | CORNERSTONE HOMES NW LLC | | | $725,000.00 | 28641 | 4419811 |
|   | |
Payout Agreement
| No payout information available.. |