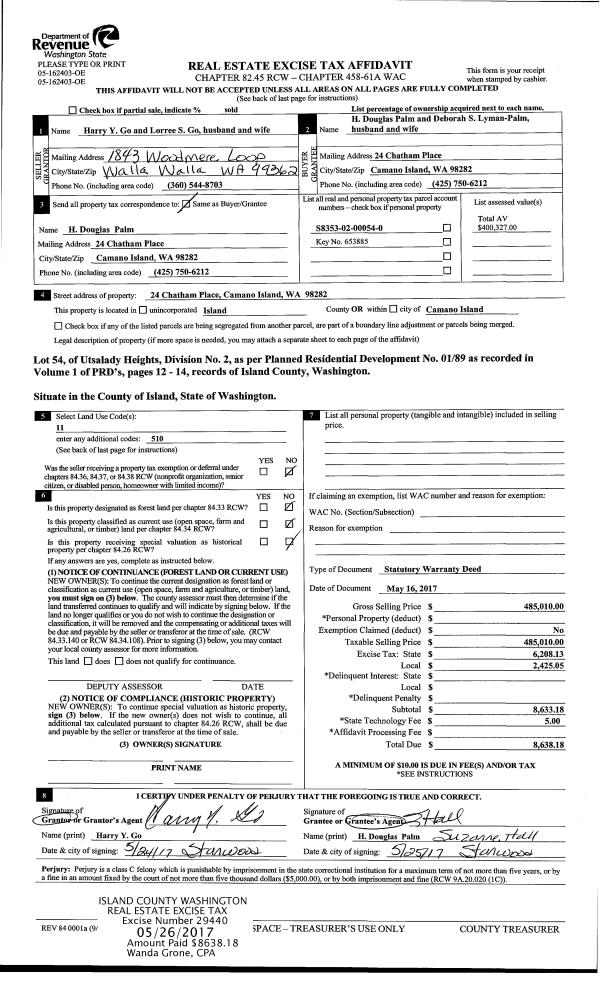
Property
Account |
| Property ID: | 812284 | Abbreviated Legal Description: | CAMANO SUNRISE VIEW ESTATES #2 LOT 13 |
| Geographic ID: | S8556-02-00013-0 | Agent Code: | |
| Type: | Real | | |
| Tax Area: | 510 - APPRAISER-Stan/Cam Schl Dist, improved & 1 acre or less | Land Use Code | 11 |
| Open Space: | N | DFL | N |
| Historic Property: | N | Remodel Property: | N |
| Multi-Family Redevelopment: | N | | |
| Township: | 31 | Section: | 19 |
| Range: | R3 |
Location |
| Address: | 1320 SUNRISE ESTATES PLACE CAMANO ISLAND, WA 98282 | Mapsco: | |
| Neighborhood: | Cycle 5 | Map ID: | 931 |
| Neighborhood CD: | 5 |
Owner |
| Name: | BURNHAM, WILLIAM P | Owner ID: | 283578 |
| Mailing Address: | BETTINA V KOHLER JOINT TENANTS 1320 SUNRISE ESTATES PLACE CAMANO ISLAND, WA 98282 | % Ownership: | 100.0000000000% |
| | | Exemptions: | |
Taxes and Assessment Details
Values
| (+) Improvement Homesite Value: | + | $0 | |
| (+) Improvement Non-Homesite Value: | + | $498,796 | |
| (+) Land Homesite Value: | + | $0 | |
| (+) Land Non-Homesite Value: | + | $270,000 | |
| (+) Curr Use (HS): | + | $0 | $0 |
| (+) Curr Use (NHS): | + | $0 | $0 |
| | | -------------------------- | |
| (=) Market Value: | = | $768,796 | |
| (–) Productivity Loss: | – | $0 | |
| | | -------------------------- | |
| (=) Subtotal: | = | $768,796 | |
| (+) Senior Appraised Value: | + | $0 | |
| (+) Non-Senior Appraised Value: | + | $768,796 | |
| | | -------------------------- | |
| (=) Total Appraised Value: | = | $768,796 | |
| (–) Senior Exemption Loss: | – | $0 | |
| (–) Exemption Loss: | – | $0 | |
| | | -------------------------- | |
| (=) Taxable Value: | = | $768,796 | |
Taxing Jurisdiction
| Owner: | BURNHAM, WILLIAM P | | |
| % Ownership: | 100.0000000000% | | |
| Total Value: | $768,796 | | |
| Tax Area: | 510 - APPRAISER-Stan/Cam Schl Dist, improved & 1 acre or less |
| CF | Conservation Futures | 0.0316035091 | $768,796 | $768,796 | $24.30 | | |
| EMS1 | Fire & Rescue Dist #1 Camano GEN (EMS) | 0.3677864386 | $768,796 | $768,796 | $282.75 | | |
| FIRE1 | Fire & Rescue Dist #1 Camano GEN | 1.2502910536 | $768,796 | $768,796 | $961.22 | | |
| FIRE1BOND | Fire & Rescue Dist #1 Camano BOND | 0.1570001679 | $768,796 | $768,796 | $120.70 | | |
| CE | County Current Expense | 0.3708482477 | $768,796 | $768,796 | $285.11 | | |
| CR | County Roads | 0.4584763726 | $768,796 | $768,796 | $352.47 | | |
| LCIB | Library Sno-Isle BOND (Camano Island) | 0.0396325772 | $768,796 | $768,796 | $30.47 | | |
| LIB | Library Sno-Isle GEN | 0.3153421757 | $768,796 | $768,796 | $242.43 | | |
| SCH205_401 | School 205-401 Enrichment | 1.2698420524 | $768,796 | $768,796 | $976.25 | | |
| SCH205BOND | School 205-401 BOND | 0.9396497583 | $768,796 | $768,796 | $722.40 | | |
| ST | State School | 1.3035497053 | $768,796 | $768,796 | $1,002.16 | | |
| ST2 | State School Part 2 | 0.8169543533 | $768,796 | $768,796 | $628.07 | | |
| | Total Tax Rate: | 7.3209764117 | | | | | |
| | | | | Taxes w/Current Exemptions: | $5,628.33 | | |
| | | | | Taxes w/o Exemptions: | $5,628.33 | | |
Improvement / Building
| Improvement #1: | RESIDENTIAL | State Code: | Y | 1996.5 sqft | Value: | $498,796 |
| Bathrooms: | 2.5 | Bedrooms: | 3 | | Ceiling: | DRYWALL PAINTED | Cooling: | HEAT PUMP/CONV/V | | Exterior Wall/Cover: | CEMENT FIBER | Floor Covering: | VINYL 100% | | Floor Structure: | WOOD W/SUBFLOOR | Foundation: | CONCRETE | | Interior Finish: | DRYWALL PAINT | Plumbing Fixture Cnt: | 12 | | Roof Slope: | 6" IN 12" | Roof Structure/Cover: | CJ ASPHALT |
|
| | Type | Description | Class CD | Sub Class CD | Year Built | Area |
| | BAS | BASE/MAIN FLOOR | 4 | 0 | 2018 | 1996.5 |
| | AGR | ATTACHED GARAGE | 4 | 0 | 2018 | 671.0 |
| | OP4 | OPEN PORCH W/CEILING-ROOF | 4 | 0 | 2018 | 133.0 |
| | OP4 | OPEN PORCH W/CEILING-ROOF | 4 | 0 | 2018 | 60.0 |
| | OWP | OPEN WOOD PORCH W/STEPS | 4 | 0 | 2018 | 592.5 |
Sketch
Property Image
Land
| 1 | 15 | SQ (12001-21780) | 0.0000 | 0.00 | 0.00 | 0.00 | 1.00 | $270,000 | $0 |
Roll Value History
| 2026 | N/A | N/A | N/A | N/A | N/A |
| 2025 | $498,796 | $270,000 | $0 | $768,796 | $768,796 |
| 2024 | $502,851 | $250,000 | $0 | $752,851 | $752,851 |
| 2023 | $506,906 | $230,000 | $0 | $736,906 | $736,906 |
| 2022 | $462,686 | $200,000 | $0 | $662,686 | $662,686 |
| 2021 | $392,951 | $140,000 | $0 | $532,951 | $532,951 |
| 2020 | $382,147 | $120,000 | $0 | $502,147 | $502,147 |
| 2019 | $290,822 | $160,000 | $0 | $450,822 | $450,822 |
| 2018 | $293,020 | $140,000 | $0 | $433,020 | $433,020 |
| 2017 | $0 | $110,000 | $0 | $110,000 | $110,000 |
| 2016 | $0 | $45,000 | $0 | $45,000 | $45,000 |
Deed and Sales History
| 1 | 01/03/2018 | WD | Warranty Deed | CORNERSTONE HOMES NW LLC | BURNHAM, WILLIAM P | | | $439,950.00 | 32599 | 4437489 |
| 2 | 03/28/2017 | WD | Warranty Deed | HANSELL MITZEL LLC | CORNERSTONE HOMES NW LLC | | | $725,000.00 | 28641 | 4419811 |
|   | |
Payout Agreement
| No payout information available.. |