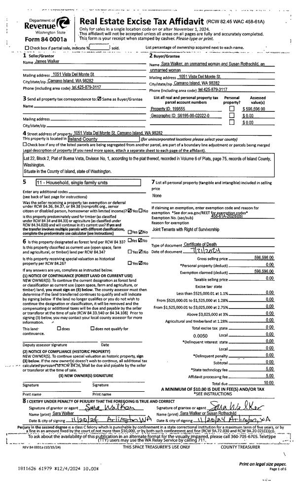
Property
Account |
| Property ID: | 812285 | Abbreviated Legal Description: | CAMANO SUNRISE VIEW ESTATES #2 LOT 14 |
| Geographic ID: | S8556-02-00014-0 | Agent Code: | |
| Type: | Real | | |
| Tax Area: | 510 - APPRAISER-Stan/Cam Schl Dist, improved & 1 acre or less | Land Use Code | 11 |
| Open Space: | N | DFL | N |
| Historic Property: | N | Remodel Property: | N |
| Multi-Family Redevelopment: | N | | |
| Township: | 31 | Section: | 19 |
| Range: | R3 |
Location |
| Address: | 1326 SUNRISE ESTATES PLACE CAMANO ISLAND, WA 98282 | Mapsco: | |
| Neighborhood: | Cycle 5 | Map ID: | 931 |
| Neighborhood CD: | 5 |
Owner |
| Name: | EGAN, TIMOTHY E | Owner ID: | 312523 |
| Mailing Address: | LORI A EGAN 1326 SUNRISE ESTATE PL CAMANO ISLAND, WA 98282 | % Ownership: | 100.0000000000% |
| | | Exemptions: | |
Taxes and Assessment Details
Values
| (+) Improvement Homesite Value: | + | $0 | |
| (+) Improvement Non-Homesite Value: | + | $432,526 | |
| (+) Land Homesite Value: | + | $0 | |
| (+) Land Non-Homesite Value: | + | $270,000 | |
| (+) Curr Use (HS): | + | $0 | $0 |
| (+) Curr Use (NHS): | + | $0 | $0 |
| | | -------------------------- | |
| (=) Market Value: | = | $702,526 | |
| (–) Productivity Loss: | – | $0 | |
| | | -------------------------- | |
| (=) Subtotal: | = | $702,526 | |
| (+) Senior Appraised Value: | + | $0 | |
| (+) Non-Senior Appraised Value: | + | $702,526 | |
| | | -------------------------- | |
| (=) Total Appraised Value: | = | $702,526 | |
| (–) Senior Exemption Loss: | – | $0 | |
| (–) Exemption Loss: | – | $0 | |
| | | -------------------------- | |
| (=) Taxable Value: | = | $702,526 | |
Taxing Jurisdiction
| Owner: | EGAN, TIMOTHY E | | |
| % Ownership: | 100.0000000000% | | |
| Total Value: | $702,526 | | |
| Tax Area: | 510 - APPRAISER-Stan/Cam Schl Dist, improved & 1 acre or less |
| CF | Conservation Futures | 0.0316035091 | $702,526 | $702,526 | $22.20 | | |
| EMS1 | Fire & Rescue Dist #1 Camano GEN (EMS) | 0.3677864386 | $702,526 | $702,526 | $258.38 | | |
| FIRE1 | Fire & Rescue Dist #1 Camano GEN | 1.2502910536 | $702,526 | $702,526 | $878.36 | | |
| FIRE1BOND | Fire & Rescue Dist #1 Camano BOND | 0.1570001679 | $702,526 | $702,526 | $110.30 | | |
| CE | County Current Expense | 0.3708482477 | $702,526 | $702,526 | $260.53 | | |
| CR | County Roads | 0.4584763726 | $702,526 | $702,526 | $322.09 | | |
| LCIB | Library Sno-Isle BOND (Camano Island) | 0.0396325772 | $702,526 | $702,526 | $27.84 | | |
| LIB | Library Sno-Isle GEN | 0.3153421757 | $702,526 | $702,526 | $221.54 | | |
| SCH205_401 | School 205-401 Enrichment | 1.2698420524 | $702,526 | $702,526 | $892.10 | | |
| SCH205BOND | School 205-401 BOND | 0.9396497583 | $702,526 | $702,526 | $660.13 | | |
| ST | State School | 1.3035497053 | $702,526 | $702,526 | $915.78 | | |
| ST2 | State School Part 2 | 0.8169543533 | $702,526 | $702,526 | $573.93 | | |
| | Total Tax Rate: | 7.3209764117 | | | | | |
| | | | | Taxes w/Current Exemptions: | $5,143.18 | | |
| | | | | Taxes w/o Exemptions: | $5,143.18 | | |
Improvement / Building
| Improvement #1: | RESIDENTIAL | State Code: | Y | 1864.0 sqft | Value: | $432,526 |
| Bathrooms: | 2 | Bedrooms: | 3 | | Ceiling: | DRYWALL PAINTED | Cooling: | HEAT PUMP/CONV/V | | Exterior Wall/Cover: | CEMENT FIBER | Floor Covering: | CARPET/VINYL 20-80 | | Floor Structure: | WOOD W/SUBFLOOR | Foundation: | CONCRETE | | Interior Finish: | DRYWALL PAINT | Plumbing Fixture Cnt: | 10 | | Roof Slope: | 8" IN 12" | Roof Structure/Cover: | CJ ASPHALT |
|
| | Type | Description | Class CD | Sub Class CD | Year Built | Area |
| | BAS | BASE/MAIN FLOOR | 4 | 0 | 2018 | 1864.0 |
| | AGR | ATTACHED GARAGE | 4 | 0 | 2018 | 462.0 |
| | OP1 | OPEN PORCH SLAB | 4 | 0 | 2018 | 253.0 |
Sketch
Property Image
Land
| 1 | 15 | SQ (12001-21780) | 0.0000 | 0.00 | 0.00 | 0.00 | 1.00 | $270,000 | $0 |
Roll Value History
| 2026 | N/A | N/A | N/A | N/A | N/A |
| 2025 | $432,526 | $270,000 | $0 | $702,526 | $702,526 |
| 2024 | $436,043 | $250,000 | $0 | $686,043 | $686,043 |
| 2023 | $439,561 | $230,000 | $0 | $669,561 | $669,561 |
| 2022 | $401,224 | $200,000 | $0 | $601,224 | $601,224 |
| 2021 | $342,713 | $140,000 | $0 | $482,713 | $482,713 |
| 2020 | $333,580 | $120,000 | $0 | $453,580 | $453,580 |
| 2019 | $253,875 | $160,000 | $0 | $413,875 | $413,875 |
| 2018 | $255,793 | $140,000 | $0 | $395,793 | $395,793 |
| 2017 | $0 | $110,000 | $0 | $110,000 | $110,000 |
| 2016 | $0 | $45,000 | $0 | $45,000 | $45,000 |
Deed and Sales History
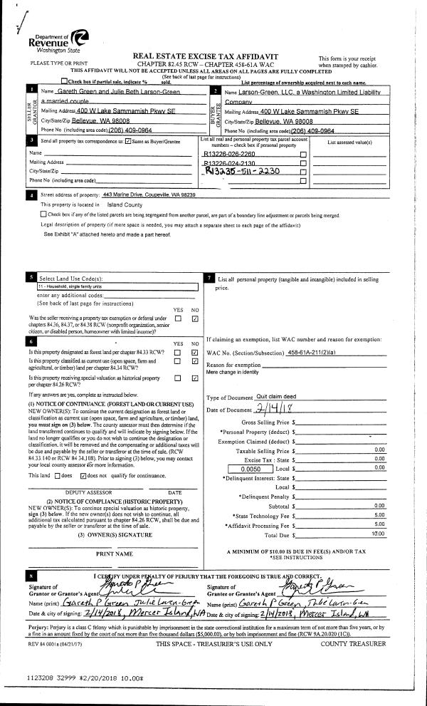
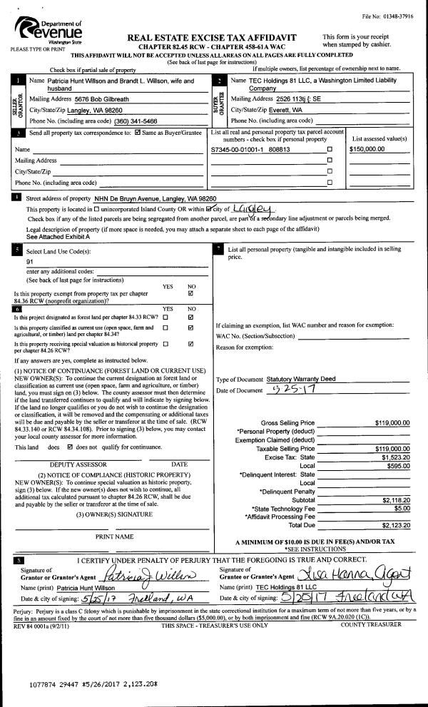
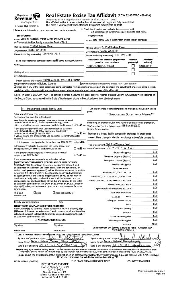
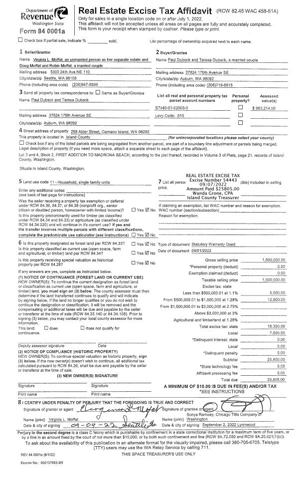
| 1 | 05/23/2024 | WD | Warranty Deed | MONTANO, MARTIN A | EGAN, TIMOTHY E | | | $710,000.00 | 60101 | 4572784 |
| 2 | 08/13/2021 | WD | Warranty Deed | MIER, MARTIN ALLEN | MONTANO, MARTIN A | | | $622,500.00 | 49649 | 4526966 |
| 3 | 12/18/2017 | WD | Warranty Deed | CORNERSTONE HOMES NW LLC | MIER, MARTIN ALLEN | | | $423,450.00 | 32354 | 4436158 |
| 4 | 03/28/2017 | WD | Warranty Deed | HANSELL MITZEL LLC | CORNERSTONE HOMES NW LLC | | | $725,000.00 | 28641 | 4419811 |
|   | |
Payout Agreement
| No payout information available.. |