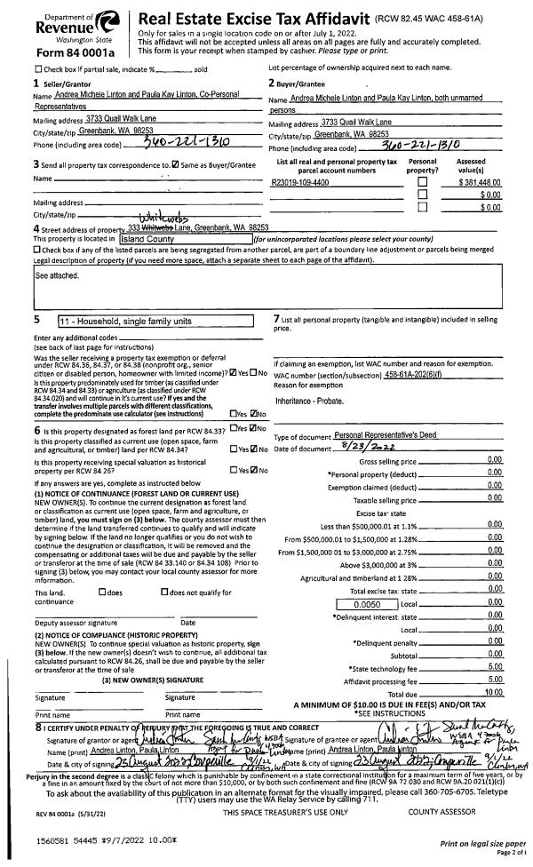
Property
Account |
| Property ID: | 812287 | Abbreviated Legal Description: | CAMANO SUNRISE VIEW ESTATES #2 LOT 16 |
| Geographic ID: | S8556-02-00016-0 | Agent Code: | |
| Type: | Real | | |
| Tax Area: | 510 - APPRAISER-Stan/Cam Schl Dist, improved & 1 acre or less | Land Use Code | 11 |
| Open Space: | N | DFL | N |
| Historic Property: | N | Remodel Property: | N |
| Multi-Family Redevelopment: | N | | |
| Township: | 31 | Section: | 19 |
| Range: | R3 |
Location |
| Address: | 1338 SUNRISE ESTATES PLACE CAMANO ISLAND, WA 98282 | Mapsco: | |
| Neighborhood: | Cycle 5 | Map ID: | 931 |
| Neighborhood CD: | 5 |
Owner |
| Name: | GRIGGS, ALLAN | Owner ID: | 283567 |
| Mailing Address: | CARIN GRIGGS 1338 SUNRISE ESTATES PLACE CAMANO ISLAND, WA 98282 | % Ownership: | 100.0000000000% |
| | | Exemptions: | |
Taxes and Assessment Details
Values
| (+) Improvement Homesite Value: | + | $0 | |
| (+) Improvement Non-Homesite Value: | + | $485,824 | |
| (+) Land Homesite Value: | + | $0 | |
| (+) Land Non-Homesite Value: | + | $270,000 | |
| (+) Curr Use (HS): | + | $0 | $0 |
| (+) Curr Use (NHS): | + | $0 | $0 |
| | | -------------------------- | |
| (=) Market Value: | = | $755,824 | |
| (–) Productivity Loss: | – | $0 | |
| | | -------------------------- | |
| (=) Subtotal: | = | $755,824 | |
| (+) Senior Appraised Value: | + | $0 | |
| (+) Non-Senior Appraised Value: | + | $755,824 | |
| | | -------------------------- | |
| (=) Total Appraised Value: | = | $755,824 | |
| (–) Senior Exemption Loss: | – | $0 | |
| (–) Exemption Loss: | – | $0 | |
| | | -------------------------- | |
| (=) Taxable Value: | = | $755,824 | |
Taxing Jurisdiction
| Owner: | GRIGGS, ALLAN | | |
| % Ownership: | 100.0000000000% | | |
| Total Value: | $755,824 | | |
| Tax Area: | 510 - APPRAISER-Stan/Cam Schl Dist, improved & 1 acre or less |
| CF | Conservation Futures | 0.0316035091 | $755,824 | $755,824 | $23.89 | | |
| EMS1 | Fire & Rescue Dist #1 Camano GEN (EMS) | 0.3677864386 | $755,824 | $755,824 | $277.98 | | |
| FIRE1 | Fire & Rescue Dist #1 Camano GEN | 1.2502910536 | $755,824 | $755,824 | $945.00 | | |
| FIRE1BOND | Fire & Rescue Dist #1 Camano BOND | 0.1570001679 | $755,824 | $755,824 | $118.66 | | |
| CE | County Current Expense | 0.3708482477 | $755,824 | $755,824 | $280.30 | | |
| CR | County Roads | 0.4584763726 | $755,824 | $755,824 | $346.53 | | |
| LCIB | Library Sno-Isle BOND (Camano Island) | 0.0396325772 | $755,824 | $755,824 | $29.96 | | |
| LIB | Library Sno-Isle GEN | 0.3153421757 | $755,824 | $755,824 | $238.34 | | |
| SCH205_401 | School 205-401 Enrichment | 1.2698420524 | $755,824 | $755,824 | $959.78 | | |
| SCH205BOND | School 205-401 BOND | 0.9396497583 | $755,824 | $755,824 | $710.21 | | |
| ST | State School | 1.3035497053 | $755,824 | $755,824 | $985.25 | | |
| ST2 | State School Part 2 | 0.8169543533 | $755,824 | $755,824 | $617.47 | | |
| | Total Tax Rate: | 7.3209764117 | | | | | |
| | | | | Taxes w/Current Exemptions: | $5,533.37 | | |
| | | | | Taxes w/o Exemptions: | $5,533.37 | | |
Improvement / Building
| Improvement #1: | RESIDENTIAL | State Code: | Y | 1996.5 sqft | Value: | $485,824 |
| Bathrooms: | 2.5 | Bedrooms: | 3 | | Ceiling: | DRYWALL PAINTED | Cooling: | HEAT PUMP/CONV/V | | Exterior Wall/Cover: | CEMENT FIBER | Floor Covering: | VINYL 100% | | Floor Structure: | WOOD W/SUBFLOOR | Foundation: | CONCRETE | | Interior Finish: | DRYWALL PAINT | Plumbing Fixture Cnt: | 12 | | Roof Slope: | 6" IN 12" | Roof Structure/Cover: | CJ ASPHALT |
|
| | Type | Description | Class CD | Sub Class CD | Year Built | Area |
| | BAS | BASE/MAIN FLOOR | 4 | 0 | 2018 | 1996.5 |
| | AGR | ATTACHED GARAGE | 4 | 0 | 2018 | 671.0 |
| | OP4 | OPEN PORCH W/CEILING-ROOF | 4 | 0 | 2018 | 133.0 |
| | OP4 | OPEN PORCH W/CEILING-ROOF | 4 | 0 | 2018 | 60.0 |
| | OP1 | OPEN PORCH SLAB | 4 | 0 | 2018 | 229.0 |
Sketch
Property Image
Land
| 1 | 15 | SQ (12001-21780) | 0.0000 | 0.00 | 0.00 | 0.00 | 1.00 | $270,000 | $0 |
Roll Value History
| 2026 | N/A | N/A | N/A | N/A | N/A |
| 2025 | $485,824 | $270,000 | $0 | $755,824 | $755,824 |
| 2024 | $489,773 | $250,000 | $0 | $739,773 | $739,773 |
| 2023 | $493,723 | $230,000 | $0 | $723,723 | $723,723 |
| 2022 | $450,652 | $200,000 | $0 | $650,652 | $650,652 |
| 2021 | $394,975 | $140,000 | $0 | $534,975 | $534,975 |
| 2020 | $384,115 | $120,000 | $0 | $504,115 | $504,115 |
| 2019 | $292,320 | $160,000 | $0 | $452,320 | $452,320 |
| 2018 | $294,529 | $140,000 | $0 | $434,529 | $434,529 |
| 2017 | $0 | $110,000 | $0 | $110,000 | $110,000 |
| 2016 | $0 | $45,000 | $0 | $45,000 | $45,000 |
Deed and Sales History
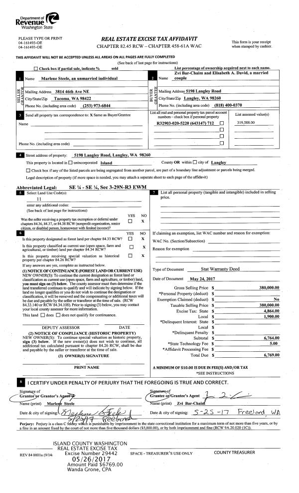
| 1 | 12/29/2017 | WD | Warranty Deed | CORNERSTONE HOMES NW LLC | GRIGGS, ALLAN | | | $439,950.00 | 32592 | 4437368 |
| 2 | 03/28/2017 | WD | Warranty Deed | HANSELL MITZEL LLC | CORNERSTONE HOMES NW LLC | | | $725,000.00 | 28641 | 4419811 |
|   | |
Payout Agreement
| No payout information available.. |