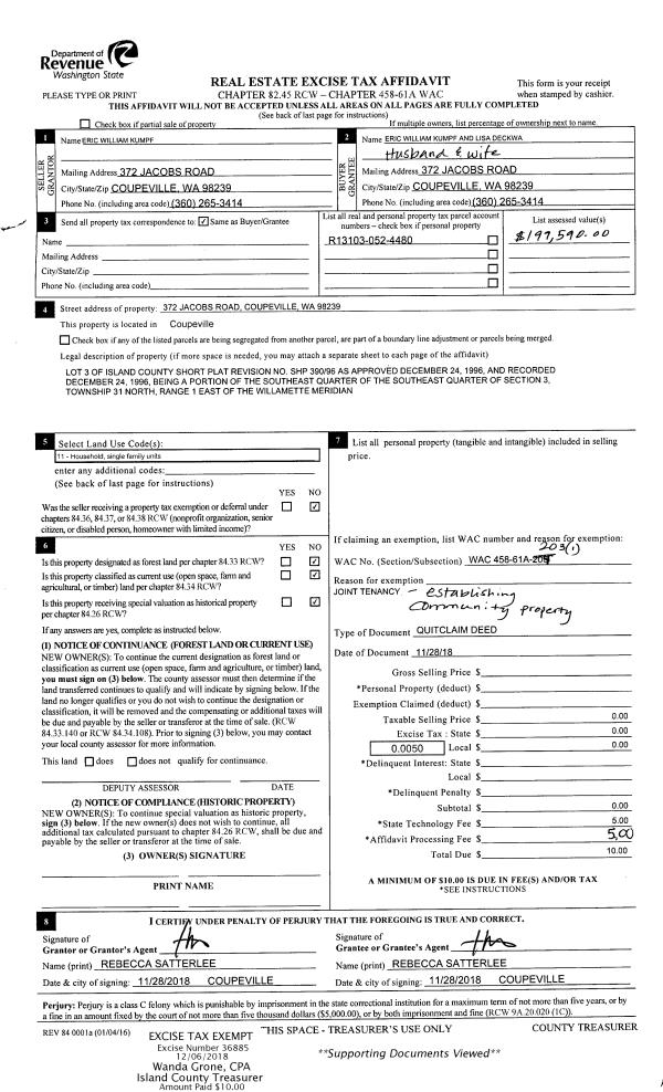
Property
Account |
| Property ID: | 812337 | Abbreviated Legal Description: | UPPER LANGLEY LOT 9 |
| Geographic ID: | S8557-00-00009-0 | Agent Code: | |
| Type: | Real | | |
| Tax Area: | 700 - APPRAISER-S Whid Schl Dist, in town of Langley | Land Use Code | 11 |
| Open Space: | N | DFL | N |
| Historic Property: | N | Remodel Property: | N |
| Multi-Family Redevelopment: | N | | |
| Township: | 29 | Section: | 3 |
| Range: | R3 |
Location |
| Address: | 1126 AL ANDERSON AVE LANGLEY, WA 98260 | Mapsco: | |
| Neighborhood: | City of Langley | Map ID: | 723 |
| Neighborhood CD: | 04-L |
Owner |
| Name: | SAVIDGE, GLORIA | Owner ID: | 317095 |
| Mailing Address: | 1126 AL ANDERSON AVE LANGLEY, WA 98260 | % Ownership: | 100.0000000000% |
| | | Exemptions: | |
Taxes and Assessment Details
Values
| (+) Improvement Homesite Value: | + | $0 | |
| (+) Improvement Non-Homesite Value: | + | $131,700 | |
| (+) Land Homesite Value: | + | $0 | |
| (+) Land Non-Homesite Value: | + | $80,796 | |
| (+) Curr Use (HS): | + | $0 | $0 |
| (+) Curr Use (NHS): | + | $0 | $0 |
| | | -------------------------- | |
| (=) Market Value: | = | $212,496 | |
| (–) Productivity Loss: | – | $0 | |
| | | -------------------------- | |
| (=) Subtotal: | = | $212,496 | |
| (+) Senior Appraised Value: | + | $0 | |
| (+) Non-Senior Appraised Value: | + | $212,496 | |
| | | -------------------------- | |
| (=) Total Appraised Value: | = | $212,496 | |
| (–) Senior Exemption Loss: | – | $0 | |
| (–) Exemption Loss: | – | $0 | |
| | | -------------------------- | |
| (=) Taxable Value: | = | $212,496 | |
Taxing Jurisdiction
| Owner: | SAVIDGE, GLORIA | | |
| % Ownership: | 100.0000000000% | | |
| Total Value: | $212,496 | | |
| Tax Area: | 700 - APPRAISER-S Whid Schl Dist, in town of Langley |
| CF | Conservation Futures | 0.0316035091 | $212,496 | $212,496 | $6.72 | | |
| LANG | City of Langley | 1.0093520762 | $212,496 | $212,496 | $214.48 | | |
| LANGBOND | City of Langley BOND | 1.0326110892 | $212,496 | $212,496 | $219.43 | | |
| FIRE3 | Fire & Rescue Dist #3 S Whidbey GEN | 1.2004855531 | $212,496 | $212,496 | $255.10 | | |
| HOBOND | Hospital BOND | 0.1910887512 | $212,496 | $212,496 | $40.61 | | |
| HOGEN | Hospital GEN | 0.3902502903 | $212,496 | $212,496 | $82.93 | | |
| CE | County Current Expense | 0.3708482477 | $212,496 | $212,496 | $78.80 | | |
| ISLANDEMS | Hospital GEN (EMS) | 0.5000000000 | $212,496 | $212,496 | $106.25 | | |
| LIB | Library Sno-Isle GEN | 0.3153421757 | $212,496 | $212,496 | $67.01 | | |
| PORTWHID | Port of S Whidbey GEN | 0.1094540357 | $212,496 | $212,496 | $23.26 | | |
| SCH206BOND | School 206 BOND | 0.3161759235 | $212,496 | $212,496 | $67.19 | | |
| SCH206MO | School 206 Enrichment | 0.4547169547 | $212,496 | $212,496 | $96.63 | | |
| ST | State School | 1.3035497053 | $212,496 | $212,496 | $277.00 | | |
| ST2 | State School Part 2 | 0.8169543533 | $212,496 | $212,496 | $173.60 | | |
| SWHIDPRBD | P & R S Whidbey BOND | 0.0152817568 | $212,496 | $212,496 | $3.25 | | |
| SWHIDPRBD2 | P & R S Whidbey BOND2 | 0.0138911264 | $212,496 | $212,496 | $2.95 | | |
| SWHIDPRMT | P & R S Whidbey GEN | 0.2053334452 | $212,496 | $212,496 | $43.63 | | |
| | Total Tax Rate: | 8.2769389934 | | | | | |
| | | | | Taxes w/Current Exemptions: | $1,758.84 | | |
| | | | | Taxes w/o Exemptions: | $1,758.84 | | |
Improvement / Building
| Improvement #1: | RESIDENTIAL | State Code: | Y | 676.0 sqft | Value: | $131,700 |
| Bathrooms: | 1 | Bedrooms: | 1 | | Ceiling: | DRYWALL PAINTED | Exterior Wall/Cover: | PLY/HARDBOARD T-111 | | Floor Covering: | VINYL 100% | Floor Structure: | WOOD W/SUBFLOOR | | Foundation: | CONCRETE | Heating: | WALL HEAT ELECTRIC | | Interior Finish: | DRYWALL PAINT | Plumbing Fixture Cnt: | 6 | | Roof Slope: | 6" IN 12" | Roof Structure/Cover: | CJ ALUMINIUM HEAVY |
|
Sketch
Property Image
Land
| 1 | 12 | SQ (00000-06000) | 0.0500 | 2178.00 | 0.00 | 0.00 | 1.00 | $80,796 | $0 |
Roll Value History
| 2026 | N/A | N/A | N/A | N/A | N/A |
| 2025 | $131,700 | $80,796 | $0 | $212,496 | $212,496 |
| 2024 | $131,700 | $79,602 | $0 | $211,302 | $211,302 |
| 2023 | $129,754 | $78,426 | $0 | $208,180 | $208,180 |
| 2022 | $127,837 | $77,267 | $0 | $205,104 | $205,104 |
| 2021 | $125,948 | $76,125 | $0 | $202,073 | $202,073 |
| 2020 | $124,087 | $75,000 | $0 | $199,087 | $199,087 |
| 2019 | $0 | $60,000 | $0 | $60,000 | $60,000 |
| 2018 | $0 | $60,000 | $0 | $60,000 | $60,000 |
| 2017 | $0 | $60,000 | $0 | $60,000 | $60,000 |
| 2016 | $0 | $60,000 | $0 | $60,000 | $60,000 |
Deed and Sales History
| 1 | 04/08/2025 | WD | Warranty Deed | PETERSON TTEE, CAROLYN A | SAVIDGE, GLORIA | | | $255,000.00 | 63081 | 4584299 |
| 2 | 11/20/2018 | QCD | Quit Claim Deed | PETERSON, CAROLYN A | PETERSON TTEE, CAROLYN A | | | $0.00 | 36757 | 4455507 |
| 3 | 10/24/2016 | QCD | Quit Claim Deed | UPPER LANGLEY LLC | PETERSON, CAROLYN A | | | $60,000.00 | 26840 | 4411114 |
Payout Agreement
| No payout information available.. |