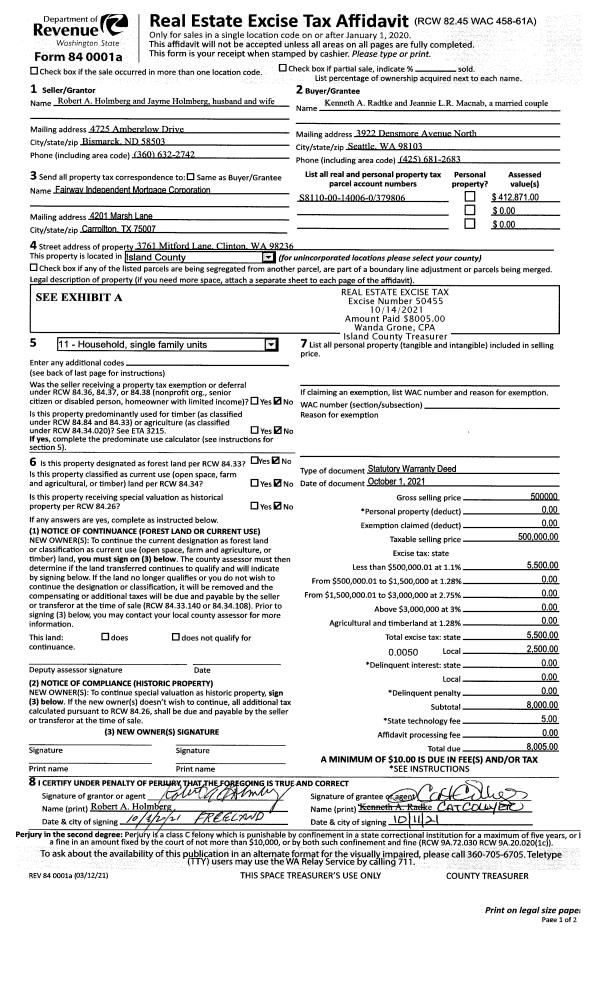
Property
Account |
| Property ID: | 812360 | Abbreviated Legal Description: | ISLAND PLACE #2 LOT 45 AMENDED AF#4399407 |
| Geographic ID: | S7234-02-00045-0 | Agent Code: | |
| Type: | Real | | |
| Tax Area: | 100 - APPRAISER-OH Schl Dist, in OH | Land Use Code | 11 |
| Open Space: | N | DFL | N |
| Historic Property: | N | Remodel Property: | N |
| Multi-Family Redevelopment: | N | | |
| Township: | 33 | Section: | 34 |
| Range: | R1 |
Location |
| Address: | 1597 NW 5TH AVE OAK HARBOR, WA 98277 | Mapsco: | |
| Neighborhood: | Cycle 1 | Map ID: | 252 |
| Neighborhood CD: | 1 |
Owner |
| Name: | NICHOLAS, DAVID | Owner ID: | 299383 |
| Mailing Address: | SANDRA J COLWELL 5105 GRAND LOOP #805 TACOMA, WA 98407 | % Ownership: | 100.0000000000% |
| | | Exemptions: | |
Taxes and Assessment Details
Values
| (+) Improvement Homesite Value: | + | $0 | |
| (+) Improvement Non-Homesite Value: | + | $322,234 | |
| (+) Land Homesite Value: | + | $0 | |
| (+) Land Non-Homesite Value: | + | $155,000 | |
| (+) Curr Use (HS): | + | $0 | $0 |
| (+) Curr Use (NHS): | + | $0 | $0 |
| | | -------------------------- | |
| (=) Market Value: | = | $477,234 | |
| (–) Productivity Loss: | – | $0 | |
| | | -------------------------- | |
| (=) Subtotal: | = | $477,234 | |
| (+) Senior Appraised Value: | + | $0 | |
| (+) Non-Senior Appraised Value: | + | $477,234 | |
| | | -------------------------- | |
| (=) Total Appraised Value: | = | $477,234 | |
| (–) Senior Exemption Loss: | – | $0 | |
| (–) Exemption Loss: | – | $0 | |
| | | -------------------------- | |
| (=) Taxable Value: | = | $477,234 | |
Taxing Jurisdiction
| Owner: | NICHOLAS, DAVID | | |
| % Ownership: | 100.0000000000% | | |
| Total Value: | $477,234 | | |
| Tax Area: | 100 - APPRAISER-OH Schl Dist, in OH |
| CF | Conservation Futures | 0.0316035091 | $477,234 | $477,234 | $15.08 | | |
| CEM1 | Cemetery #1 | 0.0040320932 | $477,234 | $477,234 | $1.92 | | |
| COH | City of Oak Harbor | 2.3001546061 | $477,234 | $477,234 | $1,097.71 | | |
| OAKBOND | City of Oak Harbor BOND | 0.1926904192 | $477,234 | $477,234 | $91.96 | | |
| HOBOND | Hospital BOND | 0.1910887512 | $477,234 | $477,234 | $91.19 | | |
| HOGEN | Hospital GEN | 0.3902502903 | $477,234 | $477,234 | $186.24 | | |
| CE | County Current Expense | 0.3708482477 | $477,234 | $477,234 | $176.98 | | |
| ISLANDEMS | Hospital GEN (EMS) | 0.5000000000 | $477,234 | $477,234 | $238.62 | | |
| LIB | Library Sno-Isle GEN | 0.3153421757 | $477,234 | $477,234 | $150.49 | | |
| NWHIDPRMT | P & R N Whidbey GEN | 0.2004466701 | $477,234 | $477,234 | $95.66 | | |
| SCH201MO | School 201 Enrichment | 1.8559231640 | $477,234 | $477,234 | $885.71 | | |
| ST | State School | 1.3035497053 | $477,234 | $477,234 | $622.10 | | |
| ST2 | State School Part 2 | 0.8169543533 | $477,234 | $477,234 | $389.88 | | |
| | Total Tax Rate: | 8.4728839852 | | | | | |
| | | | | Taxes w/Current Exemptions: | $4,043.54 | | |
| | | | | Taxes w/o Exemptions: | $4,043.54 | | |
Improvement / Building
| Improvement #1: | RESIDENTIAL | State Code: | Y | 1522.0 sqft | Value: | $322,234 |
| Bathrooms: | 2.5 | Bedrooms: | 3 | | Ceiling: | DRYWALL PAINTED | Cooling: | HEAT PUMP/CONV/V | | Exterior Wall/Cover: | CEMENT FIBER | Floor Covering: | HARDWOOD/CARP 60-40 | | Floor Structure: | WOOD W/SUBFLOOR | Foundation: | CONCRETE | | Interior Finish: | DRYWALL PAINT | Plumbing Fixture Cnt: | 11 | | Roof Slope: | 5" IN 12" | Roof Structure/Cover: | CJ ASPHALT |
|
| | Type | Description | Class CD | Sub Class CD | Year Built | Area |
| | BAS | BASE/MAIN FLOOR | 3 | 0 | 2018 | 608.0 |
| | OP1 | OPEN PORCH SLAB | 3 | 0 | 2018 | 110.0 |
| | OP3 | OPEN PORCH W/ROOF | 3 | 0 | 2018 | 40.0 |
| | OP4 | OPEN PORCH W/CEILING-ROOF | 3 | 0 | 2018 | 24.8 |
| | UPS | UPPER STORY | 3 | 0 | 2018 | 914.0 |
| | AGR | ATTACHED GARAGE | 3 | 0 | 2018 | 387.2 |
Sketch
Property Image
Land
| 1 | 12 | SQ (00000-06000) | 0.0800 | 3484.80 | 0.00 | 0.00 | 1.00 | $155,000 | $0 |
Roll Value History
| 2026 | N/A | N/A | N/A | N/A | N/A |
| 2025 | $322,234 | $155,000 | $0 | $477,234 | $477,234 |
| 2024 | $324,853 | $145,000 | $0 | $469,853 | $469,853 |
| 2023 | $327,476 | $145,000 | $0 | $472,476 | $472,476 |
| 2022 | $298,909 | $120,000 | $0 | $418,909 | $418,909 |
| 2021 | $261,977 | $95,000 | $0 | $356,977 | $356,977 |
| 2020 | $245,227 | $80,000 | $0 | $325,227 | $325,227 |
| 2019 | $180,277 | $125,000 | $0 | $305,277 | $305,277 |
| 2018 | $181,641 | $105,000 | $0 | $286,641 | $286,641 |
| 2017 | $0 | $40,000 | $0 | $40,000 | $40,000 |
| 2016 | $0 | $40,000 | $0 | $40,000 | $40,000 |
Deed and Sales History
| 1 | 05/17/2021 | WD | Warranty Deed | LANGE, VICKI S | NICHOLAS, DAVID | | | $421,100.00 | 48259 | 4519456 |
| 2 | 08/13/2018 | WD | Warranty Deed | GB VENTURES L L C | LANGE, VICKI S | | | $325,000.00 | 35474 | 4449969 |
Payout Agreement
| No payout information available.. |