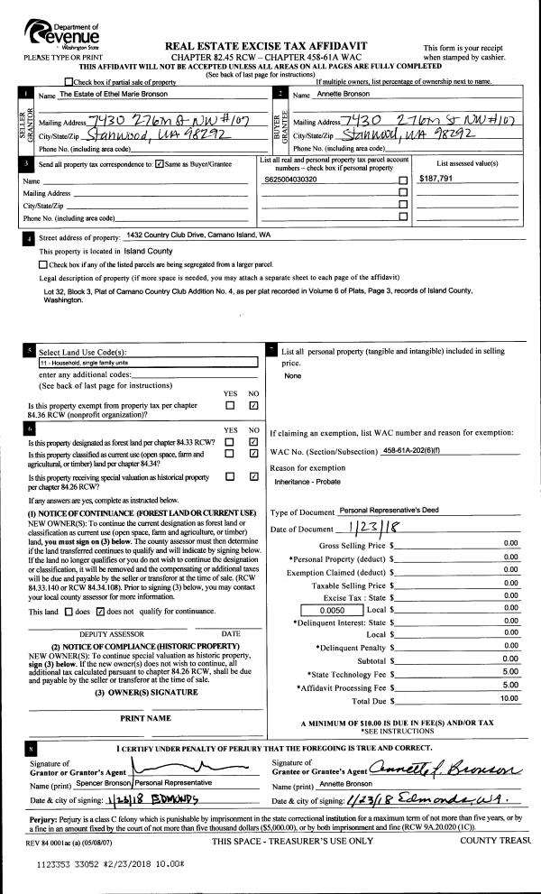
Property
Account |
| Property ID: | 812394 | Abbreviated Legal Description: | ISLAND PLACE #2 LOT 79 AMENDED AF#4399407 |
| Geographic ID: | S7234-02-00079-0 | Agent Code: | |
| Type: | Real | | |
| Tax Area: | 100 - APPRAISER-OH Schl Dist, in OH | Land Use Code | 11 |
| Open Space: | N | DFL | N |
| Historic Property: | N | Remodel Property: | N |
| Multi-Family Redevelopment: | N | | |
| Township: | 33 | Section: | 34 |
| Range: | R1 |
Location |
| Address: | 1751 NW 6TH AVE OAK HARBOR, WA 98277 | Mapsco: | |
| Neighborhood: | Cycle 1 | Map ID: | 252 |
| Neighborhood CD: | 1 |
Owner |
| Name: | MOORE, MICAH C | Owner ID: | 294851 |
| Mailing Address: | 70 TYSON CT ST AUGUSTINE, FL 32092-3569 | % Ownership: | 100.0000000000% |
| | | Exemptions: | |
Taxes and Assessment Details
Values
| (+) Improvement Homesite Value: | + | $0 | |
| (+) Improvement Non-Homesite Value: | + | $376,452 | |
| (+) Land Homesite Value: | + | $0 | |
| (+) Land Non-Homesite Value: | + | $155,000 | |
| (+) Curr Use (HS): | + | $0 | $0 |
| (+) Curr Use (NHS): | + | $0 | $0 |
| | | -------------------------- | |
| (=) Market Value: | = | $531,452 | |
| (–) Productivity Loss: | – | $0 | |
| | | -------------------------- | |
| (=) Subtotal: | = | $531,452 | |
| (+) Senior Appraised Value: | + | $0 | |
| (+) Non-Senior Appraised Value: | + | $531,452 | |
| | | -------------------------- | |
| (=) Total Appraised Value: | = | $531,452 | |
| (–) Senior Exemption Loss: | – | $0 | |
| (–) Exemption Loss: | – | $0 | |
| | | -------------------------- | |
| (=) Taxable Value: | = | $531,452 | |
Taxing Jurisdiction
| Owner: | MOORE, MICAH C | | |
| % Ownership: | 100.0000000000% | | |
| Total Value: | $531,452 | | |
| Tax Area: | 100 - APPRAISER-OH Schl Dist, in OH |
| CF | Conservation Futures | 0.0316035091 | $531,452 | $531,452 | $16.80 | | |
| CEM1 | Cemetery #1 | 0.0040320932 | $531,452 | $531,452 | $2.14 | | |
| COH | City of Oak Harbor | 2.3001546061 | $531,452 | $531,452 | $1,222.42 | | |
| OAKBOND | City of Oak Harbor BOND | 0.1926904192 | $531,452 | $531,452 | $102.41 | | |
| HOBOND | Hospital BOND | 0.1910887512 | $531,452 | $531,452 | $101.55 | | |
| HOGEN | Hospital GEN | 0.3902502903 | $531,452 | $531,452 | $207.40 | | |
| CE | County Current Expense | 0.3708482477 | $531,452 | $531,452 | $197.09 | | |
| ISLANDEMS | Hospital GEN (EMS) | 0.5000000000 | $531,452 | $531,452 | $265.73 | | |
| LIB | Library Sno-Isle GEN | 0.3153421757 | $531,452 | $531,452 | $167.59 | | |
| NWHIDPRMT | P & R N Whidbey GEN | 0.2004466701 | $531,452 | $531,452 | $106.53 | | |
| SCH201MO | School 201 Enrichment | 1.8559231640 | $531,452 | $531,452 | $986.33 | | |
| ST | State School | 1.3035497053 | $531,452 | $531,452 | $692.77 | | |
| ST2 | State School Part 2 | 0.8169543533 | $531,452 | $531,452 | $434.17 | | |
| | Total Tax Rate: | 8.4728839852 | | | | | |
| | | | | Taxes w/Current Exemptions: | $4,502.93 | | |
| | | | | Taxes w/o Exemptions: | $4,502.93 | | |
Improvement / Building
| Improvement #1: | RESIDENTIAL | State Code: | Y | 2104.0 sqft | Value: | $376,452 |
| Bathrooms: | 2.5 | Bedrooms: | 4 | | Ceiling: | DRYWALL PAINTED | Cooling: | HEAT PUMP/CONV/V | | Exterior Wall/Cover: | CEMENT FIBER | Floor Covering: | CARPET/VINYL 60-40 | | Floor Structure: | WOOD W/SUBFLOOR | Foundation: | CONCRETE | | Interior Finish: | DRYWALL PAINT | Plumbing Fixture Cnt: | 13 | | Roof Slope: | 6" IN 12" | Roof Structure/Cover: | CJ ASPHALT |
|
| | Type | Description | Class CD | Sub Class CD | Year Built | Area |
| | BAS | BASE/MAIN FLOOR | 3 | 0 | 2017 | 800.0 |
| | UPS | UPPER STORY | 3 | 0 | 2017 | 1304.0 |
| | BIG | BUILT IN GARAGE | 3 | 0 | 2017 | 480.0 |
| | OWC | OPEN WOOD PORCH W/STEPS/ROOF/C | 3 | 0 | 2017 | 120.0 |
| | OP4 | OPEN PORCH W/CEILING-ROOF | 3 | 0 | 2017 | 120.0 |
Sketch
Property Image
Land
| 1 | 12 | SQ (00000-06000) | 0.1100 | 4791.60 | 0.00 | 0.00 | 1.00 | $155,000 | $0 |
Roll Value History
| 2026 | N/A | N/A | N/A | N/A | N/A |
| 2025 | $376,452 | $155,000 | $0 | $531,452 | $531,452 |
| 2024 | $379,512 | $145,000 | $0 | $524,512 | $524,512 |
| 2023 | $382,572 | $140,000 | $0 | $522,572 | $522,572 |
| 2022 | $349,196 | $125,000 | $0 | $474,196 | $474,196 |
| 2021 | $306,059 | $110,000 | $0 | $416,059 | $416,059 |
| 2020 | $297,675 | $85,000 | $0 | $382,675 | $382,675 |
| 2019 | $230,423 | $130,000 | $0 | $360,423 | $360,423 |
| 2018 | $232,164 | $125,000 | $0 | $357,164 | $357,164 |
| 2017 | $8,000 | $40,000 | $0 | $48,000 | $48,000 |
| 2016 | $0 | $40,000 | $0 | $40,000 | $40,000 |
Deed and Sales History
| 1 | 06/15/2020 | WD | Warranty Deed | YEISER, KIRTLEY N | MOORE, MICAH C | | | $427,100.00 | 43463 | 4489427 |
| 2 | 12/19/2017 | WD | Warranty Deed | GB VENTURES L L C | YEISER, KIRTLEY N | | | $363,453.00 | 32404 | 4436373 |
Payout Agreement
| No payout information available.. |