Property
Account |
| Property ID: | 812611 | Abbreviated Legal Description: | 6.3300 Acres ins Section 08s Township 29s Range R3s LOT B BLA 342-16 SP 79-283 TR 1 IN GL1 AF# 4413596;s |
| Geographic ID: | R32908-466-2170 | Agent Code: | |
| Type: | Real | | |
| Tax Area: | 712 - APPRAISER-S Whid Schl Dist, outside Langley, improved, greater than 1 acre | Land Use Code | 11 |
| Open Space: | N | DFL | N |
| Historic Property: | N | Remodel Property: | N |
| Multi-Family Redevelopment: | N | | |
| Township: | 29 | Section: | 08 |
| Range: | R3 |
Location |
| Address: | 2990 QUIGLEY RD LANGLEY, WA 98260 | Mapsco: | |
| Neighborhood: | Cycle 4 | Map ID: | 748 |
| Neighborhood CD: | 4 |
Owner |
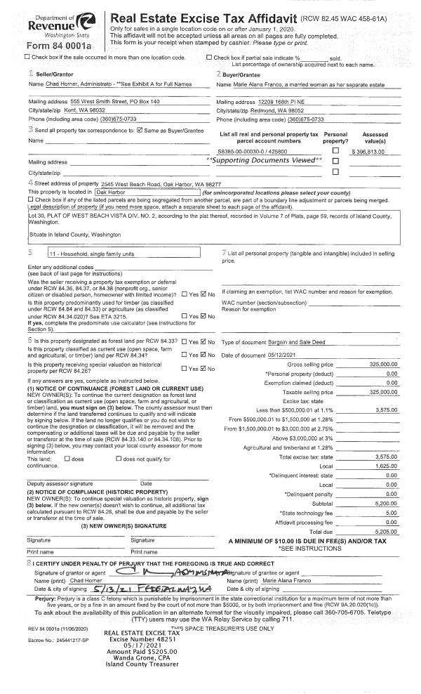
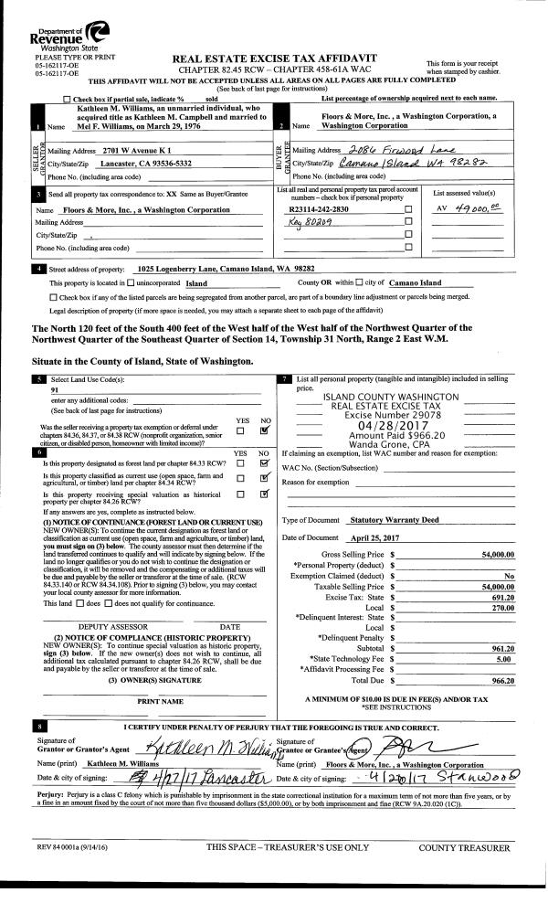
| Name: | POWELL, CHRISTOPHER J | Owner ID: | 279552 |
| Mailing Address: | ANNA L POWELL 2990 QUIGLEY RD LANGLEY, WA 98260 | % Ownership: | 100.0000000000% |
| | | Exemptions: | |
Taxes and Assessment Details
Values
| (+) Improvement Homesite Value: | + | $0 | |
| (+) Improvement Non-Homesite Value: | + | $411,453 | |
| (+) Land Homesite Value: | + | $0 | |
| (+) Land Non-Homesite Value: | + | $380,000 | |
| (+) Curr Use (HS): | + | $0 | $0 |
| (+) Curr Use (NHS): | + | $0 | $0 |
| | | -------------------------- | |
| (=) Market Value: | = | $791,453 | |
| (–) Productivity Loss: | – | $0 | |
| | | -------------------------- | |
| (=) Subtotal: | = | $791,453 | |
| (+) Senior Appraised Value: | + | $0 | |
| (+) Non-Senior Appraised Value: | + | $791,453 | |
| | | -------------------------- | |
| (=) Total Appraised Value: | = | $791,453 | |
| (–) Senior Exemption Loss: | – | $0 | |
| (–) Exemption Loss: | – | $0 | |
| | | -------------------------- | |
| (=) Taxable Value: | = | $791,453 | |
Taxing Jurisdiction
| Owner: | POWELL, CHRISTOPHER J | | |
| % Ownership: | 100.0000000000% | | |
| Total Value: | $791,453 | | |
| Tax Area: | 712 - APPRAISER-S Whid Schl Dist, outside Langley, improved, greater than 1 acre |
| CF | Conservation Futures | 0.0316035091 | $791,453 | $791,453 | $25.01 | | |
| FIRE3 | Fire & Rescue Dist #3 S Whidbey GEN | 1.2004855531 | $791,453 | $791,453 | $950.13 | | |
| HOBOND | Hospital BOND | 0.1910887512 | $791,453 | $791,453 | $151.24 | | |
| HOGEN | Hospital GEN | 0.3902502903 | $791,453 | $791,453 | $308.86 | | |
| CE | County Current Expense | 0.3708482477 | $791,453 | $791,453 | $293.51 | | |
| CR | County Roads | 0.4584763726 | $791,453 | $791,453 | $362.86 | | |
| ISLANDEMS | Hospital GEN (EMS) | 0.5000000000 | $791,453 | $791,453 | $395.73 | | |
| LIB | Library Sno-Isle GEN | 0.3153421757 | $791,453 | $791,453 | $249.58 | | |
| PORTWHID | Port of S Whidbey GEN | 0.1094540357 | $791,453 | $791,453 | $86.63 | | |
| SCH206BOND | School 206 BOND | 0.3161759235 | $791,453 | $791,453 | $250.24 | | |
| SCH206MO | School 206 Enrichment | 0.4547169547 | $791,453 | $791,453 | $359.89 | | |
| ST | State School | 1.3035497053 | $791,453 | $791,453 | $1,031.70 | | |
| ST2 | State School Part 2 | 0.8169543533 | $791,453 | $791,453 | $646.58 | | |
| SWHIDPRBD | P & R S Whidbey BOND | 0.0152817568 | $791,453 | $791,453 | $12.09 | | |
| SWHIDPRBD2 | P & R S Whidbey BOND2 | 0.0138911264 | $791,453 | $791,453 | $10.99 | | |
| SWHIDPRMT | P & R S Whidbey GEN | 0.2053334452 | $791,453 | $791,453 | $162.51 | | |
| | Total Tax Rate: | 6.6934522006 | | | | | |
| | | | | Taxes w/Current Exemptions: | $5,297.55 | | |
| | | | | Taxes w/o Exemptions: | $5,297.55 | | |
Improvement / Building
| Improvement #1: | RESIDENTIAL | State Code: | Y | 2072.0 sqft | Value: | $315,093 |
| Bathrooms: | 1 | Bedrooms: | 2 | | Ceiling: | DRYWALL PAINTED | Exterior Wall/Cover: | VINYL | | Floor Covering: | HARDWOOD/CARP 60-40 | Floor Structure: | WOOD W/SUBFLOOR | | Foundation: | CONCRETE BLOCKS | Interior Finish: | DRYWALL PAINT | | Plumbing Fixture Cnt: | 9 | Roof Slope: | 5" IN 12" | | Roof Structure/Cover: | CJ ASPHALT |   |   |
|
| | Type | Description | Class CD | Sub Class CD | Year Built | Area |
| | OP3 | OPEN PORCH W/ROOF | 3 | 0 | 1995 | 280.0 |
| | OCP | OPEN CARPORT | 3 | 0 | 1995 | 300.0 |
| | UPS | UPPER STORY | 3 | 0 | 1995 | 561.6 |
| | BAS | BASE/MAIN FLOOR | 3 | 0 | 1995 | 1510.4 |
| | OWR | OPEN WOOD PORCH W/STEPS/ROOF | 3 | 0 | 1995 | 119.1 |
| | OWP | OPEN WOOD PORCH W/STEPS | 3 | 0 | 1995 | 213.4 |
| Improvement #2: | RESIDENTIAL | State Code: | Y | 416.0 sqft | Value: | $96,360 |
| Bathrooms: | 1 | Bedrooms: | 2 | | Ceiling: | PLASTER PAINTED | Exterior Wall/Cover: | WOOD SIDING | | Floor Covering: | CARPET/VINYL 20-80 | Floor Structure: | SLAB ON GRADE | | Foundation: | SLAB | Heating: | RADIANT FLOOR | | Interior Finish: | DRYWALL PAINT | Plumbing Fixture Cnt: | 2 | | Roof Slope: | 3" IN 12" | Roof Structure/Cover: | CJ ASPHALT |
|
| | Type | Description | Class CD | Sub Class CD | Year Built | Area |
| | BAS | BASE/MAIN FLOOR | 2 | 0 | 1999 | 416.0 |
| | DGR | DETACHED GARAGE | 2 | 0 | 1999 | 780.0 |
| | UTY | STORAGE/UTILITY | 2 | 0 | 1999 | 150.0 |
Sketch
Property Image
Land
| 1 | 32 | AC (03.01-09.99) | 6.3300 | 275734.80 | 0.00 | 0.00 | 1.00 | $380,000 | $0 |
Roll Value History
| 2026 | N/A | N/A | N/A | N/A | N/A |
| 2025 | $411,453 | $380,000 | $0 | $791,453 | $791,453 |
| 2024 | $416,626 | $350,000 | $0 | $766,626 | $766,626 |
| 2023 | $421,799 | $330,000 | $0 | $751,799 | $751,799 |
| 2022 | $386,629 | $290,000 | $0 | $676,629 | $676,629 |
| 2021 | $340,266 | $230,000 | $0 | $570,266 | $570,266 |
| 2020 | $332,281 | $190,000 | $0 | $522,281 | $522,281 |
| 2019 | $254,210 | $250,000 | $0 | $504,210 | $504,210 |
| 2018 | $254,955 | $210,000 | $0 | $464,955 | $464,955 |
| 2017 | $254,548 | $190,000 | $0 | $444,548 | $444,548 |
| 2016 | $257,500 | $220,000 | $0 | $477,500 | $477,500 |
Deed and Sales History
| 1 | 04/18/2017 | WD | Warranty Deed | HALLIDAY, GAIL | POWELL, CHRISTOPHER J | | | $0.00 | 29927 | 4425037 |
| 2 | 04/18/2017 | WD | Warranty Deed | HALLIDAY, GAIL | POWELL, CHRISTOPHER J | | | $429,000.00 | 28971 | 4421152 |
| 3 | 12/29/2016 | QCD | Quit Claim Deed | POWELL, CHRISTOPHER J | | | | | 0 | 4414311 |
Payout Agreement
| No payout information available.. |