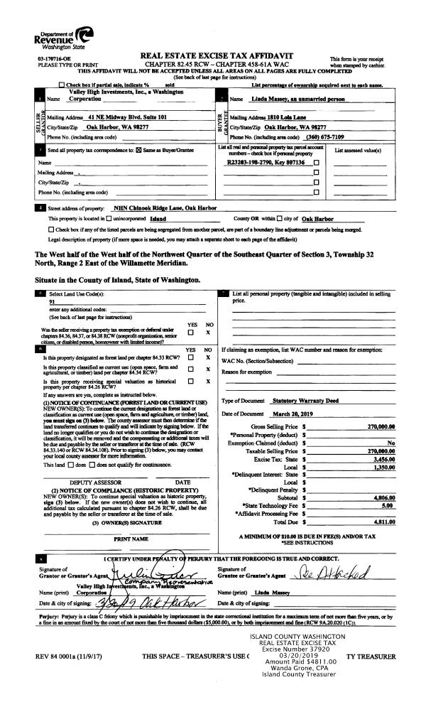
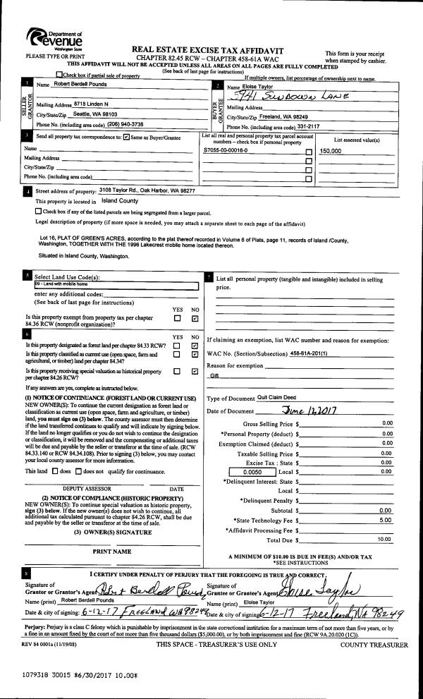
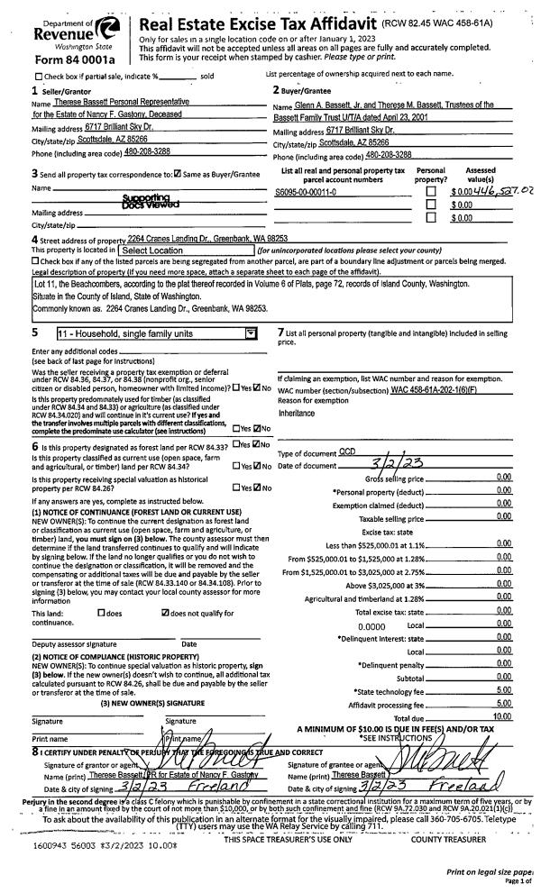
Property
Account |
| Property ID: | 812655 | Abbreviated Legal Description: | LOT 1 SP 128-15.33232-099-1640 AF#4384920 EX PT TO IS CO AF#4485751 |
| Geographic ID: | R33232-091-1510 | Agent Code: | |
| Type: | Real | | |
| Tax Area: | 590 - APPRAISER-Stan/Cam Schl Dist, Special Dist, improved & less than 1 acre | Land Use Code | 11 |
| Open Space: | N | DFL | N |
| Historic Property: | N | Remodel Property: | N |
| Multi-Family Redevelopment: | N | | |
| Township: | 32 | Section: | 32 |
| Range: | R3 |
Location |
| Address: | 520 KONNERUP CT CAMANO ISLAND, WA 98282 | Mapsco: | |
| Neighborhood: | Cycle 5 | Map ID: | 996 |
| Neighborhood CD: | 5 |
Owner |
| Name: | DONAGHY, MICHAEL | Owner ID: | 304513 |
| Mailing Address: | AMY BERGREN 520 KONNERUP CT CAMANO ISLAND, WA 98282 | % Ownership: | 100.0000000000% |
| | | Exemptions: | |
Taxes and Assessment Details
Values
| (+) Improvement Homesite Value: | + | $0 | |
| (+) Improvement Non-Homesite Value: | + | $696,942 | |
| (+) Land Homesite Value: | + | $0 | |
| (+) Land Non-Homesite Value: | + | $290,000 | |
| (+) Curr Use (HS): | + | $0 | $0 |
| (+) Curr Use (NHS): | + | $0 | $0 |
| | | -------------------------- | |
| (=) Market Value: | = | $986,942 | |
| (–) Productivity Loss: | – | $0 | |
| | | -------------------------- | |
| (=) Subtotal: | = | $986,942 | |
| (+) Senior Appraised Value: | + | $0 | |
| (+) Non-Senior Appraised Value: | + | $986,942 | |
| | | -------------------------- | |
| (=) Total Appraised Value: | = | $986,942 | |
| (–) Senior Exemption Loss: | – | $0 | |
| (–) Exemption Loss: | – | $0 | |
| | | -------------------------- | |
| (=) Taxable Value: | = | $986,942 | |
Taxing Jurisdiction
| Owner: | DONAGHY, MICHAEL | | |
| % Ownership: | 100.0000000000% | | |
| Total Value: | $986,942 | | |
| Tax Area: | 590 - APPRAISER-Stan/Cam Schl Dist, Special Dist, improved & less than 1 acre |
| CF | Conservation Futures | 0.0316035091 | $986,942 | $986,942 | $31.19 | | |
| EMS1 | Fire & Rescue Dist #1 Camano GEN (EMS) | 0.3677864386 | $986,942 | $986,942 | $362.98 | | |
| FIRE1 | Fire & Rescue Dist #1 Camano GEN | 1.2502910536 | $986,942 | $986,942 | $1,233.96 | | |
| FIRE1BOND | Fire & Rescue Dist #1 Camano BOND | 0.1570001679 | $986,942 | $986,942 | $154.95 | | |
| CE | County Current Expense | 0.3708482477 | $986,942 | $986,942 | $366.01 | | |
| CR | County Roads | 0.4584763726 | $986,942 | $986,942 | $452.49 | | |
| LCIB | Library Sno-Isle BOND (Camano Island) | 0.0396325772 | $986,942 | $986,942 | $39.12 | | |
| LIB | Library Sno-Isle GEN | 0.3153421757 | $986,942 | $986,942 | $311.22 | | |
| SCH205_401 | School 205-401 Enrichment | 1.2698420524 | $986,942 | $986,942 | $1,253.26 | | |
| SCH205BOND | School 205-401 BOND | 0.9396497583 | $986,942 | $986,942 | $927.38 | | |
| ST | State School | 1.3035497053 | $986,942 | $986,942 | $1,286.53 | | |
| ST2 | State School Part 2 | 0.8169543533 | $986,942 | $986,942 | $806.29 | | |
| | Total Tax Rate: | 7.3209764117 | | | | | |
| | | | | Taxes w/Current Exemptions: | $7,225.38 | | |
| | | | | Taxes w/o Exemptions: | $7,225.38 | | |
Improvement / Building
| Improvement #1: | RESIDENTIAL | State Code: | Y | 2740.5 sqft | Value: | $696,942 |
| Bathrooms: | 2.5 | Bedrooms: | 3 | | Ceiling: | DRYWALL PAINTED | Exterior Wall/Cover: | CEMENT FIBER | | Floor Covering: | HARDWOOD/CARP 60-40 | Floor Structure: | WOOD W/SUBFLOOR | | Foundation: | CONCRETE | Heating: | FHA GAS | | Interior Finish: | DRYWALL PAINT | Plumbing Fixture Cnt: | 15 | | Roof Slope: | 8" IN 12" | Roof Structure/Cover: | CJ ASPHALT |
|
| | Type | Description | Class CD | Sub Class CD | Year Built | Area |
| | BAS | BASE/MAIN FLOOR | 5 | 0 | 2017 | 2362.5 |
| | UPS | UPPER STORY | 5 | 0 | 2017 | 378.0 |
| | AGR | ATTACHED GARAGE | 5 | 0 | 2017 | 798.0 |
| | OP4 | OPEN PORCH W/CEILING-ROOF | 5 | 0 | 2017 | 30.0 |
| | UTY | STORAGE/UTILITY | 5 | 0 | 2017 | 192.0 |
| | OCP | OPEN CARPORT | 5 | 0 | 2017 | 720.0 |
Sketch
Property Image
Land
| 1 | 16 | AC (00.51-01.00) | 1.0400 | 45302.40 | 0.00 | 0.00 | 1.00 | $290,000 | $0 |
Roll Value History
| 2026 | N/A | N/A | N/A | N/A | N/A |
| 2025 | $696,942 | $290,000 | $0 | $986,942 | $986,942 |
| 2024 | $702,517 | $280,000 | $0 | $982,517 | $982,517 |
| 2023 | $708,092 | $280,000 | $0 | $988,092 | $988,092 |
| 2022 | $579,109 | $230,000 | $0 | $809,109 | $809,109 |
| 2021 | $492,970 | $160,000 | $0 | $652,970 | $652,970 |
| 2020 | $479,627 | $130,000 | $0 | $609,627 | $609,627 |
| 2019 | $373,400 | $170,000 | $0 | $543,400 | $543,400 |
| 2018 | $330,806 | $150,000 | $0 | $480,806 | $480,806 |
| 2017 | $335,843 | $135,000 | $0 | $470,843 | $470,843 |
| 2016 | $0 | $29,416 | $0 | $29,416 | $29,416 |
| 2015 | $0 | $29,416 | $0 | $29,416 | $29,416 |
Deed and Sales History
| 1 | 05/20/2022 | WD | Warranty Deed | TECH PROPERTY LLC | DONAGHY, MICHAEL | | | $990,000.00 | 53296 | 4546013 |
| 2 | 03/16/2021 | WD | Warranty Deed | SCHAEFFER, GARY | TECH PROPERTY LLC | | | $815,000.00 | 47397 | 4513909 |
| 3 | 02/20/2020 | WD | Warranty Deed | SCHAEFFER, GARY | SCHAEFFER, GARY | | | $0.00 | 42868 | 4485751 |
| 4 | 01/05/2019 | WD | Warranty Deed | HAMMER SR JTWROS, HOWARD H | SCHAEFFER, GARY | | | $575,000.00 | 37239 | 4457649 |
| 5 | 07/10/2017 | WD | Warranty Deed | HAMMER, HOWARD H SR | HAMMER SR JTWROS, HOWARD H | | | $0.00 | 30388 | 4424122 |
| 6 | 05/01/2017 | WD | Warranty Deed | KIRKPATRICK, SCOTT | HAMMER, HOWARD H SR | | | $479,000.00 | 29141 | 4421838 |
| 7 | 07/21/2016 | WD | Warranty Deed | KONNERUP JR, NELS M | KIRKPATRICK, SCOTT | | | $91,000.00 | 25488 | 4404287 |
Payout Agreement
| No payout information available.. |