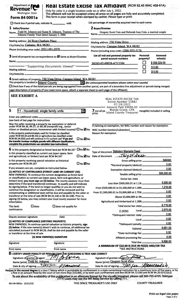
Property
Account |
| Property ID: | 812660 | Abbreviated Legal Description: | LOT 2 SP 370-14.33106-370-3410 AF#4390158 |
| Geographic ID: | R33106-369-3750 | Agent Code: | |
| Type: | Real | | |
| Tax Area: | 592 - APPRAISER-Stan/Cam Schl Dist, Special Dist, improved, greater than 1 acre | Land Use Code | 66 |
| Open Space: | N | DFL | N |
| Historic Property: | N | Remodel Property: | N |
| Multi-Family Redevelopment: | N | | |
| Township: | 31 | Section: | 06 |
| Range: | R3 |
Location |
| Address: | 292 RUSSELL RD CAMANO ISLAND, WA 98282 | Mapsco: | |
| Neighborhood: | Cycle 5 | Map ID: | 921 |
| Neighborhood CD: | 5 |
Owner |
| Name: | STEVENS, SHELDON | Owner ID: | 304989 |
| Mailing Address: | 292 RUSSELL RD CAMANO ISLAND, WA 98282 | % Ownership: | 100.0000000000% |
| | | Exemptions: | |
Taxes and Assessment Details
Values
| (+) Improvement Homesite Value: | + | $0 | |
| (+) Improvement Non-Homesite Value: | + | $395,849 | |
| (+) Land Homesite Value: | + | $0 | |
| (+) Land Non-Homesite Value: | + | $360,000 | |
| (+) Curr Use (HS): | + | $0 | $0 |
| (+) Curr Use (NHS): | + | $0 | $0 |
| | | -------------------------- | |
| (=) Market Value: | = | $755,849 | |
| (–) Productivity Loss: | – | $0 | |
| | | -------------------------- | |
| (=) Subtotal: | = | $755,849 | |
| (+) Senior Appraised Value: | + | $0 | |
| (+) Non-Senior Appraised Value: | + | $755,849 | |
| | | -------------------------- | |
| (=) Total Appraised Value: | = | $755,849 | |
| (–) Senior Exemption Loss: | – | $0 | |
| (–) Exemption Loss: | – | $0 | |
| | | -------------------------- | |
| (=) Taxable Value: | = | $755,849 | |
Taxing Jurisdiction
| Owner: | STEVENS, SHELDON | | |
| % Ownership: | 100.0000000000% | | |
| Total Value: | $755,849 | | |
| Tax Area: | 592 - APPRAISER-Stan/Cam Schl Dist, Special Dist, improved, greater than 1 acre |
| CF | Conservation Futures | 0.0316035091 | $755,849 | $755,849 | $23.89 | | |
| EMS1 | Fire & Rescue Dist #1 Camano GEN (EMS) | 0.3677864386 | $755,849 | $755,849 | $277.99 | | |
| FIRE1 | Fire & Rescue Dist #1 Camano GEN | 1.2502910536 | $755,849 | $755,849 | $945.03 | | |
| FIRE1BOND | Fire & Rescue Dist #1 Camano BOND | 0.1570001679 | $755,849 | $755,849 | $118.67 | | |
| CE | County Current Expense | 0.3708482477 | $755,849 | $755,849 | $280.31 | | |
| CR | County Roads | 0.4584763726 | $755,849 | $755,849 | $346.54 | | |
| LCIB | Library Sno-Isle BOND (Camano Island) | 0.0396325772 | $755,849 | $755,849 | $29.96 | | |
| LIB | Library Sno-Isle GEN | 0.3153421757 | $755,849 | $755,849 | $238.35 | | |
| SCH205_401 | School 205-401 Enrichment | 1.2698420524 | $755,849 | $755,849 | $959.81 | | |
| SCH205BOND | School 205-401 BOND | 0.9396497583 | $755,849 | $755,849 | $710.23 | | |
| ST | State School | 1.3035497053 | $755,849 | $755,849 | $985.29 | | |
| ST2 | State School Part 2 | 0.8169543533 | $755,849 | $755,849 | $617.49 | | |
| | Total Tax Rate: | 7.3209764117 | | | | | |
| | | | | Taxes w/Current Exemptions: | $5,533.56 | | |
| | | | | Taxes w/o Exemptions: | $5,533.56 | | |
Improvement / Building
| Improvement #1: | COMMERCIAL | State Code: | Y | 1200.0 sqft | Value: | $395,849 |
| Bathrooms: | 0.5 | Ceiling: | DRYWALL PAINTED | | Exterior Wall/Cover: | WOOD SIDING | Floor Covering: | VINYL 100% | | Floor Structure: | SLAB ON GRADE | Foundation: | SLAB/CONCRETE | | Heating: | WALL HEAT ELECTRIC | Interior Finish: | DRYWALL PAINT | | Plumbing Fixture Cnt: | 5 | Roof Slope: | 3" IN 12" | | Roof Structure/Cover: | CJ COMP ROLL |   |   |
|
| | Type | Description | Class CD | Sub Class CD | Year Built | Area |
| | AGR | ATTACHED GARAGE | 4 | 0 | 2018 | 5196.0 |
| | UTY | STORAGE/UTILITY | 4 | 0 | 2018 | 196.0 |
| | BAS | BASE/MAIN FLOOR | 4 | 0 | 2018 | 1200.0 |
| | OP4 | OPEN PORCH W/CEILING-ROOF | 4 | 0 | 2018 | 180.0 |
Sketch
Property Image
Land
| 1 | 32 | AC (03.01-09.99) | 0.0000 | 0.00 | 0.00 | 0.00 | 1.00 | $360,000 | $0 |
Roll Value History
| 2026 | N/A | N/A | N/A | N/A | N/A |
| 2025 | $395,849 | $360,000 | $0 | $755,849 | $755,849 |
| 2024 | $421,388 | $340,000 | $0 | $761,388 | $761,388 |
| 2023 | $433,349 | $320,000 | $0 | $753,349 | $753,349 |
| 2022 | $330,238 | $300,000 | $0 | $630,238 | $630,238 |
| 2021 | $197,940 | $160,000 | $0 | $357,940 | $357,940 |
| 2020 | $197,940 | $130,000 | $0 | $327,940 | $327,940 |
| 2019 | $197,940 | $150,000 | $0 | $347,940 | $347,940 |
| 2018 | $37,890 | $150,000 | $0 | $187,890 | $187,890 |
| 2017 | $0 | $135,000 | $0 | $135,000 | $135,000 |
| 2016 | $0 | $94,000 | $0 | $94,000 | $94,000 |
| 2015 | $0 | $82,711 | $0 | $82,711 | $82,711 |
Deed and Sales History
| 1 | 07/08/2022 | WD | Warranty Deed | HAMLIN, ANGELA | STEVENS, SHELDON | | | $970,000.00 | 53744 | 4547940 |
| 2 | 04/26/2016 | WD | Warranty Deed | STRELINGER, PETER G | HAMLIN, ANGELA | | | $135,000.00 | 24033 | 4398307 |
Payout Agreement
| No payout information available.. |