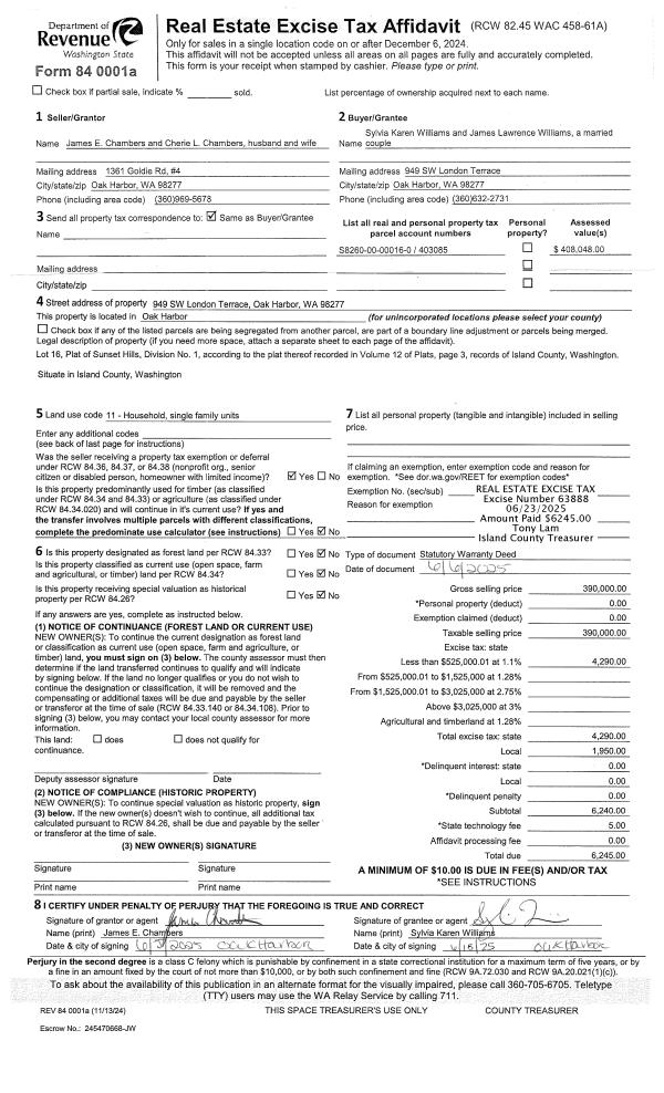
Property
Account |
| Property ID: | 812666 | Abbreviated Legal Description: | LOT 2 SP 220-15.03213-182-5040 AF#4396605 |
| Geographic ID: | R03213-194-5040 | Agent Code: | |
| Type: | Real | | |
| Tax Area: | 112 - APPRAISER-OH Schl Dist, outside OH, improved, greater than 1 acre | Land Use Code | 11 |
| Open Space: | N | DFL | N |
| Historic Property: | N | Remodel Property: | N |
| Multi-Family Redevelopment: | N | | |
| Township: | 32 | Section: | 13 |
| Range: | R0 |
Location |
| Address: | 1327 GREAT HORNED OWL LN OAK HARBOR, WA 98277 | Mapsco: | |
| Neighborhood: | Cycle 2 | Map ID: | 1 |
| Neighborhood CD: | 2 |
Owner |
| Name: | DALTON, CODY C | Owner ID: | 295601 |
| Mailing Address: | SARA B SCHREIBER-DALTON 1327 GREAT HORNED OWL LN OAK HARBOR, WA 98277 | % Ownership: | 100.0000000000% |
| | | Exemptions: | |
Taxes and Assessment Details
Values
| (+) Improvement Homesite Value: | + | $0 | |
| (+) Improvement Non-Homesite Value: | + | $383,498 | |
| (+) Land Homesite Value: | + | $0 | |
| (+) Land Non-Homesite Value: | + | $277,000 | |
| (+) Curr Use (HS): | + | $0 | $0 |
| (+) Curr Use (NHS): | + | $0 | $0 |
| | | -------------------------- | |
| (=) Market Value: | = | $660,498 | |
| (–) Productivity Loss: | – | $0 | |
| | | -------------------------- | |
| (=) Subtotal: | = | $660,498 | |
| (+) Senior Appraised Value: | + | $0 | |
| (+) Non-Senior Appraised Value: | + | $660,498 | |
| | | -------------------------- | |
| (=) Total Appraised Value: | = | $660,498 | |
| (–) Senior Exemption Loss: | – | $0 | |
| (–) Exemption Loss: | – | $0 | |
| | | -------------------------- | |
| (=) Taxable Value: | = | $660,498 | |
Taxing Jurisdiction
| Owner: | DALTON, CODY C | | |
| % Ownership: | 100.0000000000% | | |
| Total Value: | $660,498 | | |
| Tax Area: | 112 - APPRAISER-OH Schl Dist, outside OH, improved, greater than 1 acre |
| CF | Conservation Futures | 0.0316035091 | $660,498 | $660,498 | $20.87 | | |
| CEM1 | Cemetery #1 | 0.0040320932 | $660,498 | $660,498 | $2.66 | | |
| FIRE2 | Fire & Rescue Dist #2 N Whidbey GEN | 0.5475949600 | $660,498 | $660,498 | $361.69 | | |
| HOBOND | Hospital BOND | 0.1910887512 | $660,498 | $660,498 | $126.21 | | |
| HOGEN | Hospital GEN | 0.3902502903 | $660,498 | $660,498 | $257.76 | | |
| CE | County Current Expense | 0.3708482477 | $660,498 | $660,498 | $244.94 | | |
| CR | County Roads | 0.4584763726 | $660,498 | $660,498 | $302.82 | | |
| ISLANDEMS | Hospital GEN (EMS) | 0.5000000000 | $660,498 | $660,498 | $330.25 | | |
| LIB | Library Sno-Isle GEN | 0.3153421757 | $660,498 | $660,498 | $208.28 | | |
| NWHIDPRMT | P & R N Whidbey GEN | 0.2004466701 | $660,498 | $660,498 | $132.39 | | |
| SCH201MO | School 201 Enrichment | 1.8559231640 | $660,498 | $660,498 | $1,225.83 | | |
| ST | State School | 1.3035497053 | $660,498 | $660,498 | $860.99 | | |
| ST2 | State School Part 2 | 0.8169543533 | $660,498 | $660,498 | $539.60 | | |
| | Total Tax Rate: | 6.9861102925 | | | | | |
| | | | | Taxes w/Current Exemptions: | $4,614.29 | | |
| | | | | Taxes w/o Exemptions: | $4,614.29 | | |
Improvement / Building
| Improvement #1: | RESIDENTIAL | State Code: | Y | 1719.5 sqft | Value: | $383,498 |
| Bathrooms: | 2.5 | Bedrooms: | 3 | | Ceiling: | DRYWALL PAINTED | Exterior Wall/Cover: | CEMENT FIBER | | Floor Covering: | COLORED CONCRETE | Floor Structure: | SLAB ON GRADE | | Foundation: | CONCRETE | Heating: | RADIANT FLOOR | | Interior Finish: | DRYWALL PAINT | Plumbing Fixture Cnt: | 12 | | Roof Slope: | 4" IN 12" | Roof Structure/Cover: | CJ ASPHALT |
|
| | Type | Description | Class CD | Sub Class CD | Year Built | Area |
| | BAS | BASE/MAIN FLOOR | 4 | 0 | 2016 | 903.5 |
| | UPS | UPPER STORY | 4 | 0 | 2016 | 816.0 |
| | AGR | ATTACHED GARAGE | 4 | 0 | 2016 | 630.0 |
| | OP4 | OPEN PORCH W/CEILING-ROOF | 4 | 0 | 2016 | 160.0 |
| | OP4 | OPEN PORCH W/CEILING-ROOF | 4 | 0 | 2016 | 43.7 |
Sketch
| No sketches available for this property. |
Property Image
Land
| 1 | 99 | OTHER UNDEVELOPED LAND PLATS/SUBDIVISION | 0.3500 | 15246.00 | 0.00 | 0.00 | 1.00 | $7,000 | $0 |
| 2 | HS | HOMESITE | 1.0000 | 43560.00 | 0.00 | 0.00 | 1.00 | $270,000 | $0 |
Roll Value History
| 2026 | N/A | N/A | N/A | N/A | N/A |
| 2025 | $383,498 | $277,000 | $0 | $660,498 | $660,498 |
| 2024 | $386,642 | $280,000 | $0 | $666,642 | $666,642 |
| 2023 | $389,785 | $290,000 | $0 | $679,785 | $679,785 |
| 2022 | $355,805 | $280,000 | $0 | $635,805 | $635,805 |
| 2021 | $311,868 | $180,000 | $0 | $491,868 | $491,868 |
| 2020 | $301,850 | $170,000 | $0 | $471,850 | $471,850 |
| 2019 | $240,985 | $190,000 | $0 | $430,985 | $430,985 |
| 2018 | $241,598 | $160,000 | $0 | $401,598 | $401,598 |
| 2017 | $245,277 | $170,000 | $0 | $415,277 | $415,277 |
| 2016 | $155,972 | $41,160 | $0 | $197,132 | $197,132 |
Deed and Sales History
| 1 | 08/07/2020 | WD | Warranty Deed | MIRANDA, IAN | DALTON, CODY C | | | $505,000.00 | 44198 | 4493663 |
| 2 | 10/24/2016 | WD | Warranty Deed | MIRANDA, DANIEL L | MIRANDA, IAN | | | $275,000.00 | 26677 | 4410127 |
| 3 | 05/20/2016 | QCD | Quit Claim Deed | VIEWRIDGE INVESTMENTS LLC | MIRANDA, DANIEL L | | | | 24374 | 4399565 |
Payout Agreement
| No payout information available.. |