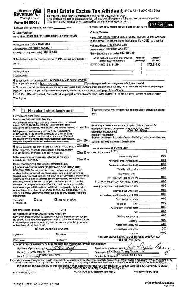
Property
Account |
| Property ID: | 812670 | Abbreviated Legal Description: | LOT 2 SP 221-15.03213-147-5050 AF#4396606 |
| Geographic ID: | R03213-145-4940 | Agent Code: | |
| Type: | Real | | |
| Tax Area: | 119 - APPRAISER-OH Schl Dist, outside OH, vacant & 50 acres or less | Land Use Code | 91 |
| Open Space: | N | DFL | N |
| Historic Property: | N | Remodel Property: | N |
| Multi-Family Redevelopment: | N | | |
| Township: | 32 | Section: | 13 |
| Range: | R0 |
Location |
| Address: | | Mapsco: | |
| Neighborhood: | Cycle 2 | Map ID: | 1 |
| Neighborhood CD: | 2 |
Owner |
| Name: | SHELTON, TIM | Owner ID: | 295298 |
| Mailing Address: | TRACEE SHELTON SOPHIA SHELTON 15506 25TH DR SE MILL CREEK, WA 98012 | % Ownership: | 100.0000000000% |
| | | Exemptions: | |
Taxes and Assessment Details
Values
| (+) Improvement Homesite Value: | + | $0 | |
| (+) Improvement Non-Homesite Value: | + | $0 | |
| (+) Land Homesite Value: | + | $0 | |
| (+) Land Non-Homesite Value: | + | $113,600 | |
| (+) Curr Use (HS): | + | $0 | $0 |
| (+) Curr Use (NHS): | + | $0 | $0 |
| | | -------------------------- | |
| (=) Market Value: | = | $113,600 | |
| (–) Productivity Loss: | – | $0 | |
| | | -------------------------- | |
| (=) Subtotal: | = | $113,600 | |
| (+) Senior Appraised Value: | + | $0 | |
| (+) Non-Senior Appraised Value: | + | $113,600 | |
| | | -------------------------- | |
| (=) Total Appraised Value: | = | $113,600 | |
| (–) Senior Exemption Loss: | – | $0 | |
| (–) Exemption Loss: | – | $0 | |
| | | -------------------------- | |
| (=) Taxable Value: | = | $113,600 | |
Taxing Jurisdiction
| Owner: | SHELTON, TIM | | |
| % Ownership: | 100.0000000000% | | |
| Total Value: | $113,600 | | |
| Tax Area: | 119 - APPRAISER-OH Schl Dist, outside OH, vacant & 50 acres or less |
| CF | Conservation Futures | 0.0316035091 | $113,600 | $113,600 | $3.59 | | |
| CEM1 | Cemetery #1 | 0.0040320932 | $113,600 | $113,600 | $0.46 | | |
| HOBOND | Hospital BOND | 0.1910887512 | $113,600 | $113,600 | $21.71 | | |
| HOGEN | Hospital GEN | 0.3902502903 | $113,600 | $113,600 | $44.33 | | |
| CE | County Current Expense | 0.3708482477 | $113,600 | $113,600 | $42.13 | | |
| CR | County Roads | 0.4584763726 | $113,600 | $113,600 | $52.08 | | |
| ISLANDEMS | Hospital GEN (EMS) | 0.5000000000 | $113,600 | $113,600 | $56.80 | | |
| LIB | Library Sno-Isle GEN | 0.3153421757 | $113,600 | $113,600 | $35.82 | | |
| NWHIDPRMT | P & R N Whidbey GEN | 0.2004466701 | $113,600 | $113,600 | $22.77 | | |
| SCH201MO | School 201 Enrichment | 1.8559231640 | $113,600 | $113,600 | $210.83 | | |
| ST | State School | 1.3035497053 | $113,600 | $113,600 | $148.08 | | |
| ST2 | State School Part 2 | 0.8169543533 | $113,600 | $113,600 | $92.81 | | |
| | Total Tax Rate: | 6.4385153325 | | | | | |
| | | | | Taxes w/Current Exemptions: | $731.41 | | |
| | | | | Taxes w/o Exemptions: | $731.41 | | |
Improvement / Building
Sketch
| No sketches available for this property. |
Property Image
Land
| 1 | 91 | UNDEVELOPED LAND-METES AND BOUNDS | 0.5600 | 24393.60 | 0.00 | 0.00 | 1.00 | $113,600 | $0 |
Roll Value History
| 2026 | N/A | N/A | N/A | N/A | N/A |
| 2025 | $0 | $113,600 | $0 | $113,600 | $113,600 |
| 2024 | $0 | $130,000 | $0 | $130,000 | $130,000 |
| 2023 | $0 | $130,000 | $0 | $130,000 | $130,000 |
| 2022 | $0 | $130,000 | $0 | $130,000 | $130,000 |
| 2021 | $0 | $90,000 | $0 | $90,000 | $90,000 |
| 2020 | $0 | $90,000 | $0 | $90,000 | $90,000 |
| 2019 | $0 | $90,000 | $0 | $90,000 | $90,000 |
| 2018 | $0 | $75,000 | $0 | $75,000 | $75,000 |
| 2017 | $0 | $85,000 | $0 | $85,000 | $85,000 |
| 2016 | $0 | $26,280 | $0 | $26,280 | $26,280 |
Deed and Sales History
| 1 | 07/21/2020 | WD | Warranty Deed | NELSON TRUSTEE, RONALD M | SHELTON, TIM | | | $128,000.00 | 43906 | 4491912 |
| 2 | 04/28/2016 | WD | Warranty Deed | VIEWRIDGE INVESTMENTS LLC | NELSON TRUSTEE, RONALD M | | | $83,000.00 | 24076 | 4398415 |
Payout Agreement
| No payout information available.. |